PTS-NXT-10JE - 第667页
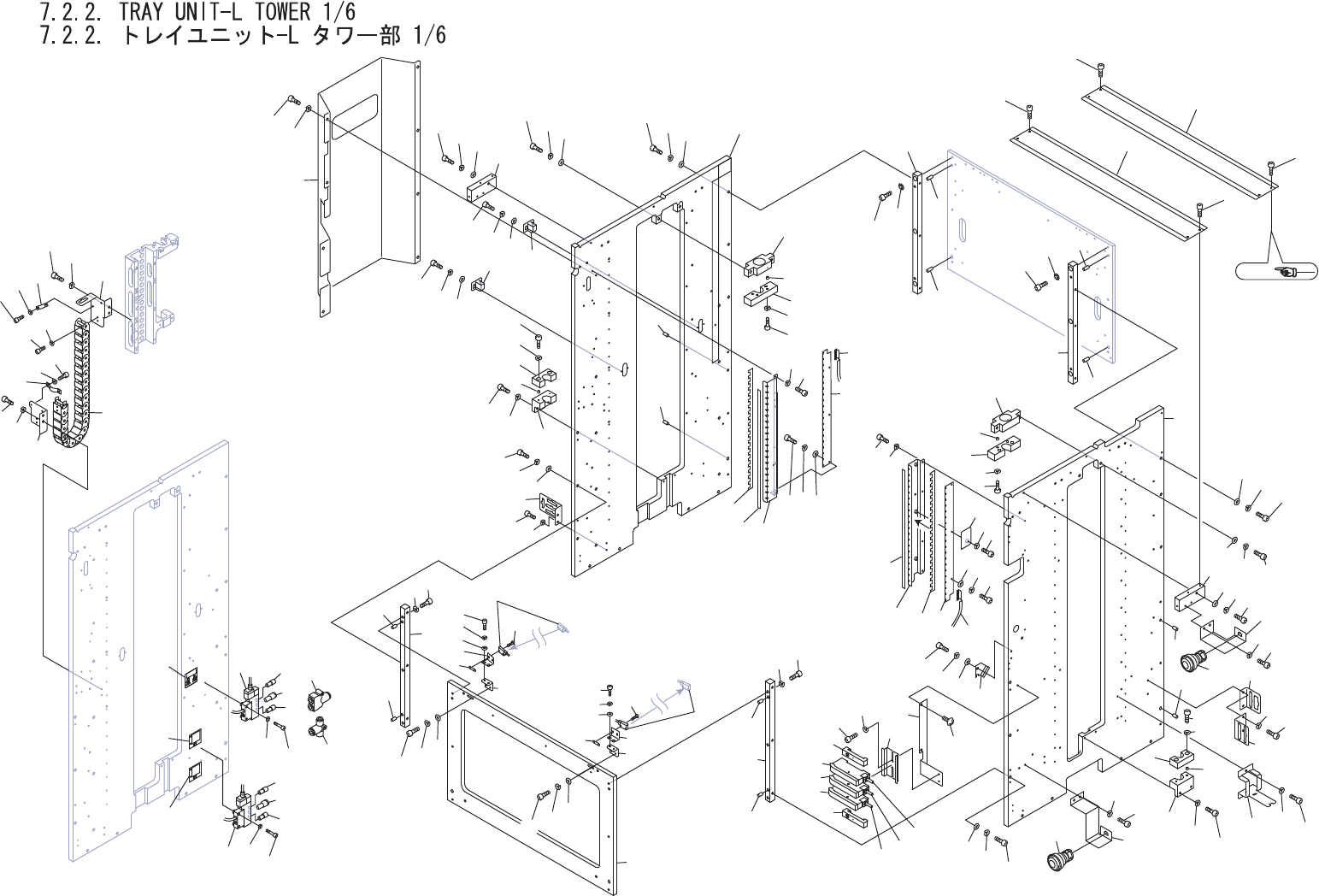
7.2.2.TRAYUNIT-LTOWER1/6 7.2.2 .トレ イユニッ ト-L タワー部 1/6 AA1ZR19 No. Drg.No.&CodeNo. Q TY Description Rating Materials Remarks 番号 図番 &コード 番号 個数 品名 規格 材質 備考 1 PM28801 2 BKT BKT FE 2 PG00790 2 STOPPER ストッ …

Ref.2/
1
9
14
14
94
15
15
95
91
95
10
10
3
2
4
5
6
11
12
13
66
11
69
70
71
72
28
30
31
32
33
53
53
54
55
56
34
29
26
27
103
50
51
57
58
77
77
78
78
79
79
59
52
60
61
49
19
12
13
11
12
13
4
5
6
7
8
1
3
2
7
8
14
15
11
12
13
23
35
36
37
25
24
19
25
25
25
28
30
29
115
116
114
117
118
119
120
121
122
123
123
124
124
124
125
126
126
31
97
100
127
102
101
98
99
32
33
34
73
73
62
62
63
74
75
75
76
76
42
43
43
84
85
86
87
88
86
87
88
89
89
89.2
89.3
89.1
89.4
92
93
44
45
46
14
15
107
108
109
54
55
56
67
68
68
67
68
68
69
70
110
113
111
112
71
72
74.1
74.2
74.2
64
65
106
83
90
82
93
81
83
82
81
80
80
16
18
18
18
17
18
21
22
21
22
38
39
40
41
38
39
40
41
AA1ZR19
7.
PARTS
SUPPLY
/
部品供給
76
PTS-NXT-10JE
Vol.3

7.2.2.TRAYUNIT-LTOWER1/6
7.2.2.トレイユニット-Lタワー部1/6
AA1ZR19
No. Drg.No.&CodeNo. QTY Description Rating
Materials
Remarks
番号 図番&コード番号 個数 品名 規格 材質 備考
1 PM28801 2 BKT BKT FE
2 PG00790 2 STOPPER ストッパ PL
3 S3060G 4 SPACER スペーサ CF-305ZE FE
4 H5300A 4 BOLT,HEXSOCKET ボルト六角穴 M05X015 FE
5 W1023A 4 WASHER,LOCK ワッシャスプリング 5M/M FE
6 W1050A 4 WASHER,FLAT ワッシャ平 5M/MX1.0X10(1W-5) FE
7 H5276A 4 BOLT,HEXSOCKET ボルト六角穴 M03X010 FE
8 W1021A 4 WASHER,LOCK ワッシャスプリング 3M/M FE
9 PM28930 1 BLOCK,LOCATING ブロック位置決め AL
10 H21460 2 PIN,PARALLEL ピン平行 MSTH5-10 OT
11 H5263C 12 BOLT,HEXSOCKET ボルト六角穴 M05X016 FE
12 W1023A 12 WASHER,LOCK ワッシャスプリング 5M/M FE
13 W1050A 12 WASHER,FLAT ワッシャ平 5M/MX1.0X10(1W-5) FE
14 H5299A 12 BOLT,HEXSOCKET ボルト六角穴 M05X012 FE
15 W1012A 12 WASHER,CONICAL ワッシャ皿 M-5-L FE
16 H1122G 1 VALVE,SOL バルブSOL SY3120-5L0-C4-F2 OT
17 H1122L 1 VALVE,SOL バルブSOL SY3220-5LO-C4-F2 OT
18 S1058A 4 SILENCER サイレンサ AN120-M5 OT
19 Y3086Y 2 UNION,HALF ユニオンハーフ KQ2S06-M5 OT
21 H5275A 4 BOLT,HEXSOCKET ボルト六角穴 M03X008 FE
22 W1021A 4 WASHER,LOCK ワッシャスプリング 3M/M FE
23 K5586A 1 CONNECTOR コネクタ KQ2U08-00 OT
24 Y3071C 1 UNION ユニオン KQ2T06-08 OT
25 H21460 4 PIN,PARALLEL ピン平行 MSTH5-10 OT
26 PZ12251 1 SEAL シール PL
27 PZ12241 1 SEAL シール PL
28 PG00780 2 STOPPER ストッパ PL
29 PM28821 2 BKT,STOPPER BKTストッパ FE
30 S3060G 4 SPACER スペーサ CF-305ZE OT
31 H5290A 4 BOLT,HEXSOCKET ボルト六角穴 M04X015 FE
32 W1022A 4 WASHER,LOCK ワッシャスプリング 4M/M FE
33 H5276A 4 BOLT,HEXSOCKET ボルト六角穴 M03X010 FE
34 W1021A 4 WASHER,LOCK ワッシャスプリング 3M/M FE
35 PB29901 1 BKT,WIRING BKT配線 FE
36 H5287A 2 BOLT,HEXSOCKET ボルト六角穴 M04X008ゼンネジ FE
37 W1022A 2 WASHER,LOCK ワッシャスプリング 4M/M FE
38 XK02410 2 BOARD,PRINTEDCIRCUIT 基板プリント OT
39 H5268S 5 BOLT,HEXSOCKET ボルト六角穴 M02.5X005ステンレス FE
7.
PARTS
SUPPLY
/
部品供給
77
PTS-NXT-10JE
Vol.3

7.2.2.TRAYUNIT-LTOWER1/6
7.2.2.トレイユニット-Lタワー部1/6
AA1ZR19
No. Drg.No.&CodeNo. QTY Description Rating
Materials
Remarks
番号 図番&コード番号 個数 品名 規格 材質 備考
40 W1020H 5 WASHER,LOCK ワッシャスプリング 2.5M/M FE
41 W1039T 5 WASHER,FLAT ワッシャ平 2.6M/MX0.5X5 FE
42 PM28350 1 BLOCK,LOCATING ブロック位置決め AL
43 H21460 2 PIN,PARALLEL ピン平行 MSTH5-10 OT
44 PB19732 1 PLATE,CONNECTING プレートツナギ FE
45 H5298A 8 BOLT,HEXSOCKET ボルト六角穴 M05X010 FE
46 W1023A 8 WASHER,LOCK ワッシャスプリング 5M/M FE
49 K4148Y 1 FLEXIBLETRACK ケーブルベア TKP0180-20B-R28-19L+PA+PA OT
50 PB17251 1 BKT BKT FE
51 H5287A 2 BOLT,HEXSOCKET ボルト六角穴 M04X008ゼンネジ FE
52 W1022A 2 WASHER,LOCK ワッシャスプリング 4M/M FE
53 PM33131 2 BLOCK,STOPPER ブロックストッパ FE
54 H5276A 4 BOLT,HEXSOCKET ボルト六角穴 M03X010 FE
55 W1021A 4 WASHER,LOCK ワッシャスプリング 3M/M FE
56 W1042A 4 WASHER,FLAT ワッシャ平 4W-3 FE
57 PB17263 1 BKT BKT FE
58 H5287A 2 BOLT,HEXSOCKET ボルト六角穴 M04X008ゼンネジ FE
59 W1022A 2 WASHER,LOCK ワッシャスプリング 4M/M FE
60 H5273A 4 BOLT,HEXSOCKET ボルト六角穴 M03X005 FE
61 W1021A 4 WASHER,LOCK ワッシャスプリング 3M/M FE
62 RH12880 1 HARNESS ハーネス OT
63 PB28512 1 COVER カバー FE
64 H5268X 1 BOLT,HEXSOCKET ボルト六角穴 M02.5X010 FE
65 W1020H 1 WASHER,LOCK ワッシャスプリング 2.5M/M FE
66 PM29199 1 PLATE,SIDE プレートサイド AL
67 PB16652 2 PLATE,CONNECTING プレートツナギ FE
68 H5274C 8 BOLT,HEXSOCKET ボルト六角穴 M03X006(SUS)ゴクテイトウ FE
69 PM29681 2 BLOCK,LOCATING ブロック位置決め AL
70 H5292A 2 BOLT,HEXSOCKET ボルト六角穴 M04X020 FE
71 W1022A 2 WASHER,LOCK ワッシャスプリング 4M/M FE
72 W1041A 2 WASHER,FLAT ワッシャ平 4M/MX0.8X9(1W-4) FE
73 PZ16490 2 SEAL シール PL
74 PB28491 1 BKT BKT FE
74.1 PB33030 1 BKT BKT FE
74.2 PS00940 2 SHEET シート OT
75 H5273A 8 BOLT,HEXSOCKET ボルト六角穴 M03X005 FE
76 W1021A 8 WASHER,LOCK ワッシャスプリング 3M/M FE
77 PB17241 2 RETAINER,WIRING 押え配線 FE
7.
PARTS
SUPPLY
/
部品供給
78
PTS-NXT-10JE
Vol.3