PTS-NXT-10JE - 第788页
8. ACCESSORIES / アクセサリ 198 PTS-NXT-10JE Vol.3

This page intentionally blank.
8.
ACCESSORIES
/
アクセサリ
197
PTS-NXT-10JE
Vol.3

8.
ACCESSORIES
/
アクセサリ
198
PTS-NXT-10JE
Vol.3

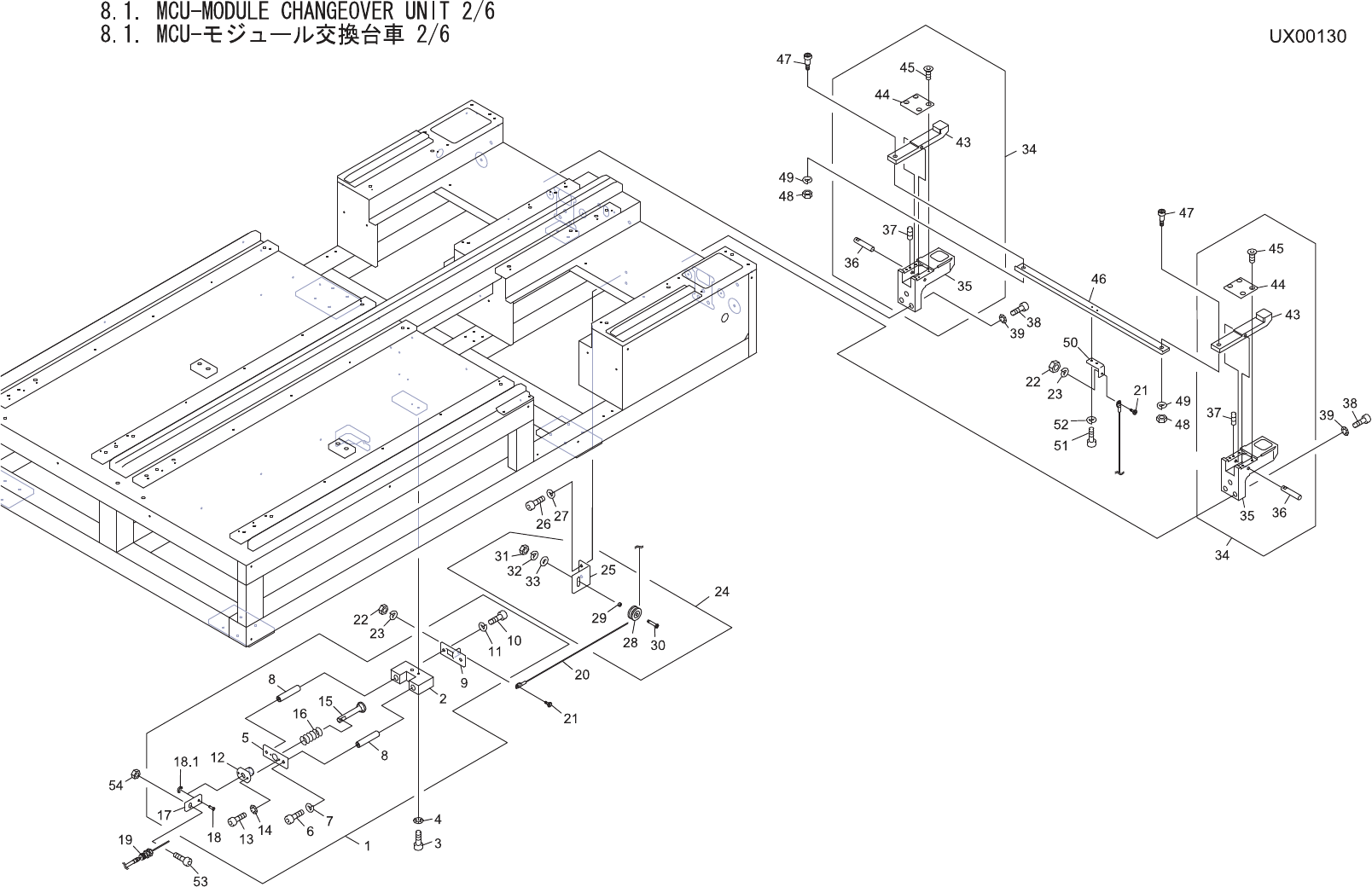
8.1.MCU-MODULECHANGEOVERUNIT2/6
8.1.MCU-モジュール交換台車2/6
UX00130
No. Drg.No.&CodeNo. QTY Description Rating
Materials
Remarks
番号 図番&コード番号 個数 品名 規格 材質 備考
1 AA27005 1 STOPPER ストッパ OT
2 PM30941 1 HOLDER ホルダ FE
3 H5292A 2 BOLT,HEXSOCKET ボルト六角穴 M04X020 FE
4 W1011A 2 WASHER,CONICAL ワッシャ皿 M-4-L FE
5 PB04153 1 PLATE プレート FE
6 H5299A 2 BOLT,HEXSOCKET ボルト六角穴 M05X012 FE
7 W1023A 2 WASHER,LOCK ワッシャスプリング 5M/M FE
8 PM52651 2 SHAFT シャフト FE
9 PB17451 1 BKT BKT FE
10 H5299A 2 BOLT,HEXSOCKET ボルト六角穴 M05X012 FE
11 W1023A 2 WASHER,LOCK ワッシャスプリング 5M/M FE
12 S3261T 1 SLEEVE スリーブ JBN8-16 OT
13 H5273A 2 BOLT,HEXSOCKET ボルト六角穴 M03X005 FE
14 W1010A 2 WASHER,CONICAL ワッシャ皿 M-3-L FE
15 PM07782 1 SHAFT シャフト FE
16 PZ05101 1 SPRING スプリング FE
17 PB04232 1 PLATE プレート FE
18 PM52631 1 PIN ピン FE
18.1 S1021A 1 CIR-CLIP サークリップ ST-EW-3 OT
19 XW00102 1 WIRE ワイヤ OT
20 W1093D 1 WIRE ワイヤ TM-173C2(NO.7988)L=530 OT
21 PM52501 2 PIN,PIVOT ピン支点 FE
22 N10812 2 NUT,HEX ナット六角 M033シュ(3カクロ) FE
23 W1021A 2 WASHER,LOCK ワッシャスプリング 3M/M FE
24 AA26905 1 ROLLER ローラ OT
25 PB19531 1 BKT,ROLLER BKTローラ FE
26 H5299A 2 BOLT,HEXSOCKET ボルト六角穴 M05X012 FE
27 W1023A 2 WASHER,LOCK ワッシャスプリング 5M/M FE
28 R5001R 1 ROLLER ローラ MBG20-1.5 OT
29 PM52601 1 WASHER ワッシャ FE
30 H2015W 1 PIN ピン BGP4-7-L20 OT
31 N10796 1 NUT,HEX ナット六角 M04(3カクロ) FE
32 W1022A 1 WASHER,LOCK ワッシャスプリング 4M/M FE
33 W1043A 1 WASHER,FLAT ワッシャ平 4W-4 FE
34 AA26504 2 GUIDE ガイド OT
35 PM30931 2 GUIDE,CLAMP ガイドクランプ FE
36 PM52581 2 PIN ピン FE
37 N4026A 2 SCREW,HEXSOCKETSET ネジ六角穴止め M04X004クボミサキ FE
8.
ACCESSORIES
/
アクセサリ
199
PTS-NXT-10JE
Vol.3