PTS-NXT-10JE - 第803页
This page intentionally blank. 8. ACCESSORIES / アクセサリ 213 PTS-NXT-10JE Vol.3

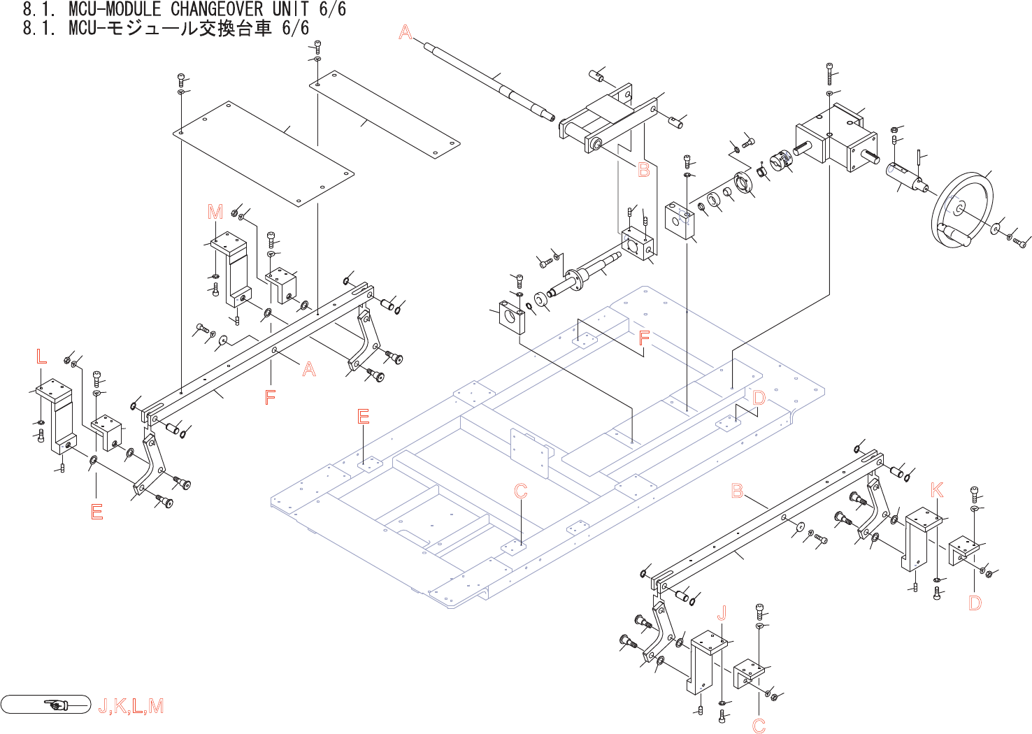
8.1.MCU-MODULECHANGEOVERUNIT5/6
8.1.MCU-モジュール交換台車5/6
UX00130
No. Drg.No.&CodeNo. QTY Description Rating
Materials
Remarks
番号 図番&コード番号 個数 品名 規格 材質 備考
39 H2186R 1 PIN ピン CCGH20-160 OT
40 PM08252 1 SHAFT,PIVOT シャフト支点 FE
41 H5362A 2 BOLT,HEXSOCKET ボルト六角穴 M10X035 FE
42 W1015A 2 WASHER,CONICAL ワッシャ皿 M-10-H FE
43 PB04262 1 PLATE プレート FE
44 H5503R 2 BOLT ボルト UUSCB6-15 OT
45 H5289A 2 BOLT,HEXSOCKET ボルト六角穴 M04X012 FE
46 W1022A 2 WASHER,LOCK ワッシャスプリング 4M/M FE
47 PM08262 1 BKT BKT FE
48 W1092W 1 WASHER ワッシャ WSSBH35-10-5 OT
49 H5210A 1 BOLT,HEX ボルト六角 M10X02510.9ゼンネジ FE
50 W1026A 1 WASHER,LOCK ワッシャスプリング 10M/M FE
51 H1187W 2 PAD パット LEMN12 OT
52 H5234A 2 BOLT,HEX ボルト六角 M12X07010.9ゼンネジ FE
53 N1080D 4 NUT,HEX ナット六角 M12(3カクロ) FE
54 H4902E 2 BEARING,DRY ベアリン
グ
ドライ K5B1212 OT
8.
ACCESSORIES
/
アクセサリ
212
PTS-NXT-10JE
Vol.3

This page intentionally blank.
8.
ACCESSORIES
/
アクセサリ
213
PTS-NXT-10JE
Vol.3

C
E
C
J
D
E
F
A
L
M
B
K
B
A
J,K,L,M
F
D
Ref.1/
1
2
3
4
6
5
7
8
7
8
9
11
10
14
15
17
16
6
1
2
3
4
5
6
7
7
8
8
9
10
11
14
15
16
17
5
6
6.1
7
7
14
15
16
17
9
8
8
10
11
24
25
26
27
28
29
30
31
32
34
33
35
36
37
38
39
40
41
42
43
44
45
46
47
48
49
49
50
54
56
57
58
55
5
7
8
7
8
9
11
10
12
13
14
15
17
16
12
13
12
13
12
13
6.1
6.1
6.1
6.1
6.1
6.1
6.1
18
19
20
21
22
23
51
52
53
UX00130
8.
ACCESSORIES
/
アクセサリ
214
PTS-NXT-10JE
Vol.3