PTS-NXT-10JE - 第820页
U U A B V G Ref.4/ Ref.2/ Ref.2/ DET AIL U DET AIL V 9 8 0 9 6 0 9 4 0 9 2 0 9 0 0 8 8 0 C Ref.2/ J Ref.2/ 1 30 41 42 43 1 1 10 50 49 50 49.1 9 1 1 10 9 29 28 98, 99 35 36 37 34 39 40 27 16 19 22 23 24 47 56 48 48 51 55 …

This page intentionally blank.
8.
ACCESSORIES
/
アクセサリ
229
PTS-NXT-10JE
Vol.3

U
U
A
B
V
G
Ref.4/
Ref.2/
Ref.2/
DETAIL U
DETAIL V
9
8
0
9
6
0
9
4
0
9
2
0
9
0
0
8
8
0
C
Ref.2/
J
Ref.2/
1
30
41
42
43
11
10
50
49
50
49.1
9
11
10
9
29
28
98,
99
35
36
37
34
39
40
27
16
19
22
23
24
47
56
48
48
51
55
52
54
53
62
61
38
53
17
18
19
20
21
26
25
65
64
47
44
31
32
33
45
46
59
60
63
66
67
68
13
14
12
15
7
8
5
6
5.1
69
72
72.1
72.2
72.3
72.4
70
71
73
74
75
76
77
78
7
8
5
6
5.1
107
108
109
110
111
112
113
58
57
93
94
95
97
96
100
101
102
101
102
103
104
105
106
103
104
105
100
79
81
80
102.1
102.1
114
UX04304(M6S)
UX04204(M3S)
8.
ACCESSORIES
/
アクセサリ
230
PTS-NXT-10JE
Vol.3

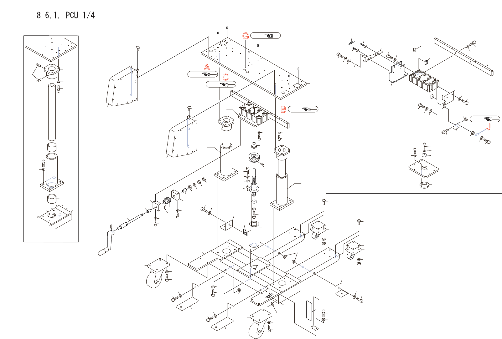
8.6.1.PCU1/4
UX04204(M3S)
UX04304(M6S)
No. Drg.No.&CodeNo. QTY Description Rating
Materials
Remarks
番号 図番&コード番号 個数 品名 規格 材質 備考
1 PM02EG2 1 FRAME フレーム FE
5 K2142C 2 CASTER キャスタ NO.102HB2-EP<TG> OT
5.1 PB70851 2 SPACER スペーサ AL
6 K52584 8 SCREW,HEXSOCKETBUTTON 小ネジ六角穴ボタン M06X012(3カシロ) FE
7 W1106F 8 WASHER,LOCK ワッシャスプリング 6M/M(3カシロ) FE
8 N1079K 8 NUT,HEX ナット六角 M06(3カシロ) FE
9 K2142D 2 CASTER キャスタ NO.107BS<TG> OT
10 H5428F 8 BOLT,HEXSOCKET ボルト六角穴 M08X015(3カシロ) FE
11 W1106G 8 WASHER,LOCK ワッシャスプリング 8M/M(3カシロ) FE
12 PB77831 1 BKT BKT FE
13 H5425C 2 BOLT,HEXSOCKET ボルト六角穴 M06X012(3カシロ) FE
14 W1106F 2 WASHER,LOCK ワッシャスプリング 6M/M(3カシロ) FE
15 PZ20501 1 SCALE スケール PL
16 PM87061 2 HOLDER ホルダ FE
17 H5428N 8 BOLT,HEXSOCKET ボルト六角穴 M08X025(3カシロ) FE
18 W1106G 8 WASHER,LOCK ワッシャスプリング 8M/M(3カシロ) FE
19 H30638 4 BUSHING ブシュ SPB-405030 OT
20 H5055K 2 HOLDER ホルダ STHSB40 OT
21 N4046B 4 SCREW,HEXSOCKETSET ネジ六角穴止め M06X008(3カシロ) FE
22 PZ40450 2 SHAFT シャフト OT
23 PM08HN0 1 PLATE,BASE プレートベース AL
24 H2095A 6 PIN,PARALLEL ピン平行 ゚6X12Aシュ(M6) OT
25 H5428M 8 BOLT,HEXSOCKET ボルト六角穴 M08X022(3カシロ) FE
26 W1014B 8 WASHER,CONICAL ワッシャ皿 M-8-H(3カシロ) FE
27 PM009B1 1 SPACER スペーサ AL
28 H54272 3 BOLT,HEXSOCKET ボルト六角穴 M06X020(3カシロ) FE
29 W1106F 3 WASHER,LOCK ワッシャスプリング 6M/M(3カシロ) FE
30 XN00242 1 SCREW,TRAPEZOID ネジ台形 OT
31 H5425D 1 BOLT,HEXSOCKET ボルト六角穴 M06X015(3カシロ) FE
32 W1106F 1 WASHER,LOCK ワッシャスプリング 6M/M(3カシロ) FE
33 W1087R 1 WASHER ワッシャ R10-27 OT
34 K1135B 4 COLLAR カラー CLBSB6-8.0 OT
35 H5426S 4 BOLT,HEXSOCKET ボルト六角穴 M04X018(3カシロ) FE
36 W1106D 4 WASHER,LOCK ワッシャスプリング 4M/M(3カシロ) FE
37 W1090B 4 WASHER ワッシャ WSSM8-4-2 FE
38 W1090F 1 WASHER ワッシャ WSSB25-6-5 FE
39 H5425D 1 BOLT,HEXSOCKET ボルト六角穴 M06X015(3カシロ) FE
40 W1106F 1 WASHER,LOCK ワッシャスプリング 6M/M(3カシロ) FE
8.
ACCESSORIES
/
アクセサリ
231
PTS-NXT-10JE
Vol.3