SM421_Technical_Reference(Eng_Ver8[1].3) - 第168页
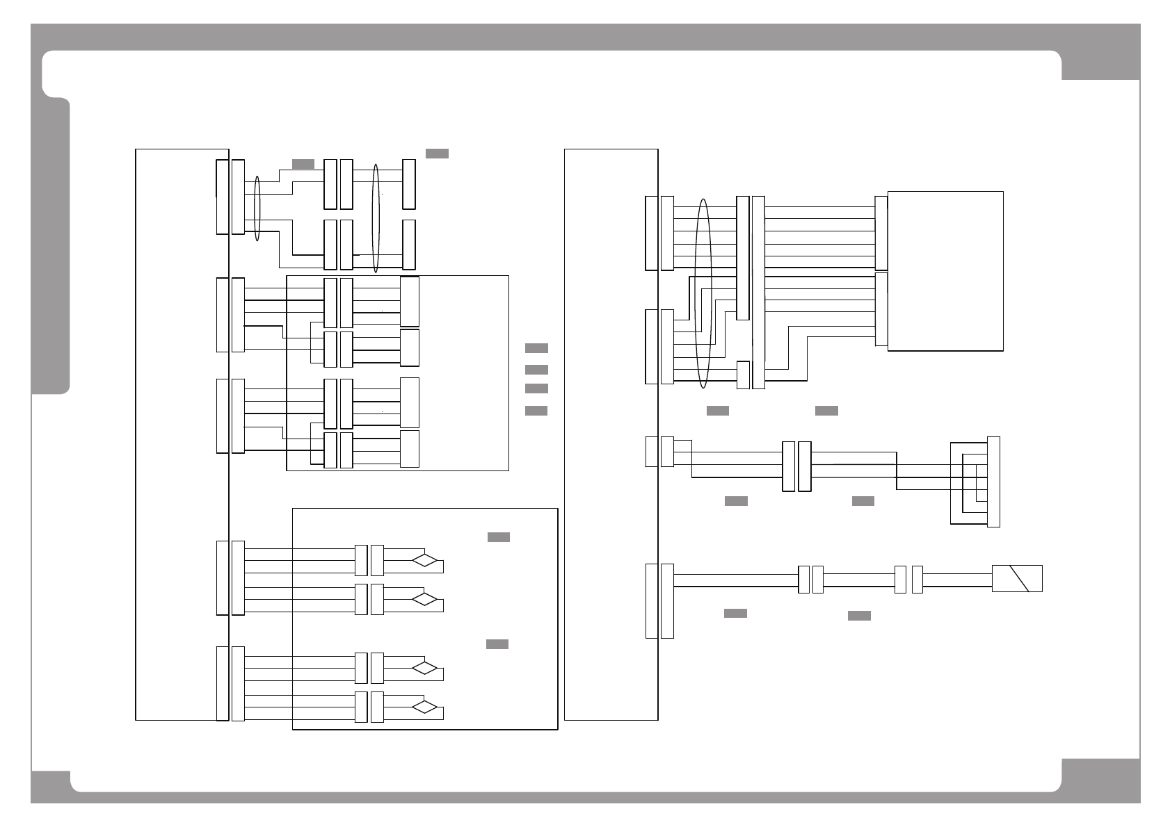
Page SAMSUNG TECHWIN 156 SM421 C onveyor Board Interface (4/5) NO. P ART NO. P ART NAME Q'TY Old No. Stock Apply Reference 1 AM03-00354 3A CABLE ASSY -CONV_SW_INPUT1_2 1

Page
SAMSUNG TECHWIN
155
SM421
Conveyor Board Interface (4/5)
CN19S
6P
CN19P
2
4
6
1
5
3
CN18S
CN17P
CONVEYOR
I/F BOARD
24P
22 22
16
18
16
18
14 14
CN17S
CONV SUB I/F B/D
18
16
14
CONVEYOR
I/F BOARD
24P
CN18P
18
16
14
F-EM
F-DOOR
FFD S/W
R-EM
R-DOOR
READY SW
START SW
STOP SW
PW-ON
AIR
24G
+24V
+24V
24G
24G
23 23
2121
RESET SW
15
17
8
10
15
17
8
10
9
1
4
3
9
1
4
3
3
2
5
1
3
2
5
1
+24V
+24V
24G
4
4
10
10
15
15
R-STATUS
F-STATUS
22
22
21
21
F-SO
R-SO
12
2
3
1
4
6
5
8
7
11
CN2S
10
9
12
CN2P
9
10
11
7
8
5
6
4
1
3
2
12P
SM421_CV013
11
12
8
7
5
1
3
2
4
9
10
CN3S
RFD S/W
9
96
12
11
9
10
7
6
8
5
4
3
2
1
CN3P
12P
CONV SUB I/F B/D
SM33_CV014
4
2
6
1
5
3
^4`

Page
SAMSUNG TECHWIN
156
SM421
Conveyor Board Interface (4/5)
NO. PART NO. PART NAME Q'TY Old No. Stock Apply Reference
1 AM03-003543A CABLE ASSY-CONV_SW_INPUT1_2 1

Page
SAMSUNG TECHWIN
157
SM421
Conveyor Board Interface (5/5)
INLINE BEFORE
INLINE AFTER
6P
CN24P
6
4
4
6
2
5
33
2
5
CN24S
1
6
1
6
6P
CN23P
2
5
4
2
5
4
CN23S
3
1
3
1
6P
CN21P
4
6
6
4
3
5
2
5
2
3
CN21S
11
6
6
CONVEYOR
I/F BOARD
CN20P
6P
2
5
4
2
5
4
CN20S
3
1
3
1
3
4
2
1
2
1
3
4 4
2
1
3
2
3
4
1
3
4
2
1
3
4
2
1
CN28S
33
CN28P
3P
2
1
2
1
5
6
4
6
5
4
MVME3100 B/D
RXD
TXD
GND
3
6
8
7
5
4
2
1
CONVEYOR
I/F BOARD
CN27S
CN26S
CN27P
6P
2
3
11
2
3
5
6
6
5
CN26P
6P
2
3
4
2
3
4
11
BUSY INPUT
AVAILABLE INPUT
3
1
2
4
4
3
1
2
RECEIVER
FRONT ARER SENSOR
+24V
FASEN
24G
3
1
2
2
3
1
+24V
24G
FRONT AREA SENSOR
EMMITER
FASEN
SYNC
SYNC
+24V
24G
+24V
24G
3
1
2
3
1
2
4
2
33
24G
+24V
2
3
1
24G
4
3
2
5
2
5
4
6
6
4
RASEN
+24V
1
11
CN22S
CN22P
6P
REAR ARER SENSOR
SYNC
SYNC
+24V
24G
24G
EMMITER
REAR AREA SENSOR
RECEIVER
+24V
RASEN
1
3
1
3
CN12S
4
5
2
4
5
2
CN12P
6P
6
6
OPTION!
SM421_CV121
CN-FDOCK2
CN-FDOCK1
24G
FDOCK2
+24V
24G
FDOCK1
+24V
3
2
2
3
1
2
1
3
3
2
11
EE-SPY312
EE-SPY312
FRONT DOCKING SENSOR 2
FRONT DOCKING SENSOR 1
CN-RDOCK1
CN-RDOCK2
RDOCK2
RDOCK1
+24V
24G
+24V
24G
EE-SPY312
EE-SPY312
REAR DOCKING SENSOR 2
REAR DOCKING SENSOR 1
11
2
3
3
1
2
1
3
2
2
3
DOCKING CART OPTION
SM421_CV106-1
SM421_CV106-2
SM421_CV115
SM33_CV016
SM421_CV117
SM33_CV018
SM33_CV019
SM33_CV020
B1
A1
1
2
HEAD AIR SOL VALVE
HEAD1 AIR SOL
+24V
PMC-3 PORT
SM421_CV132
TEACHING BOX CABLE
SM421_CA201
A2
B1
A1
A3
B2
A4
B3
A5
B4
B5
B1
A1
A4
A5
B4
B5
B9
A9
A6
A7
B6
B7
A8
B8
A2
B1
A1
A3
B3
B2
A2
B1
A1
A3
B3
B2
SM421_SC202
CN33
CN35
SAFETY&FROP V2.0
3
1
2
2
3
1
SM421_CV121-1
B4
A4
2
1
FL-J7-2
SM421_CV131
^4`
^5`
^6`
^7`
^8`
^9`
^:`
^;`
^<`
^43`
^44`
^45`
^46`
^47`