SM421_Technical_Reference(Eng_Ver8[1].3) - 第232页
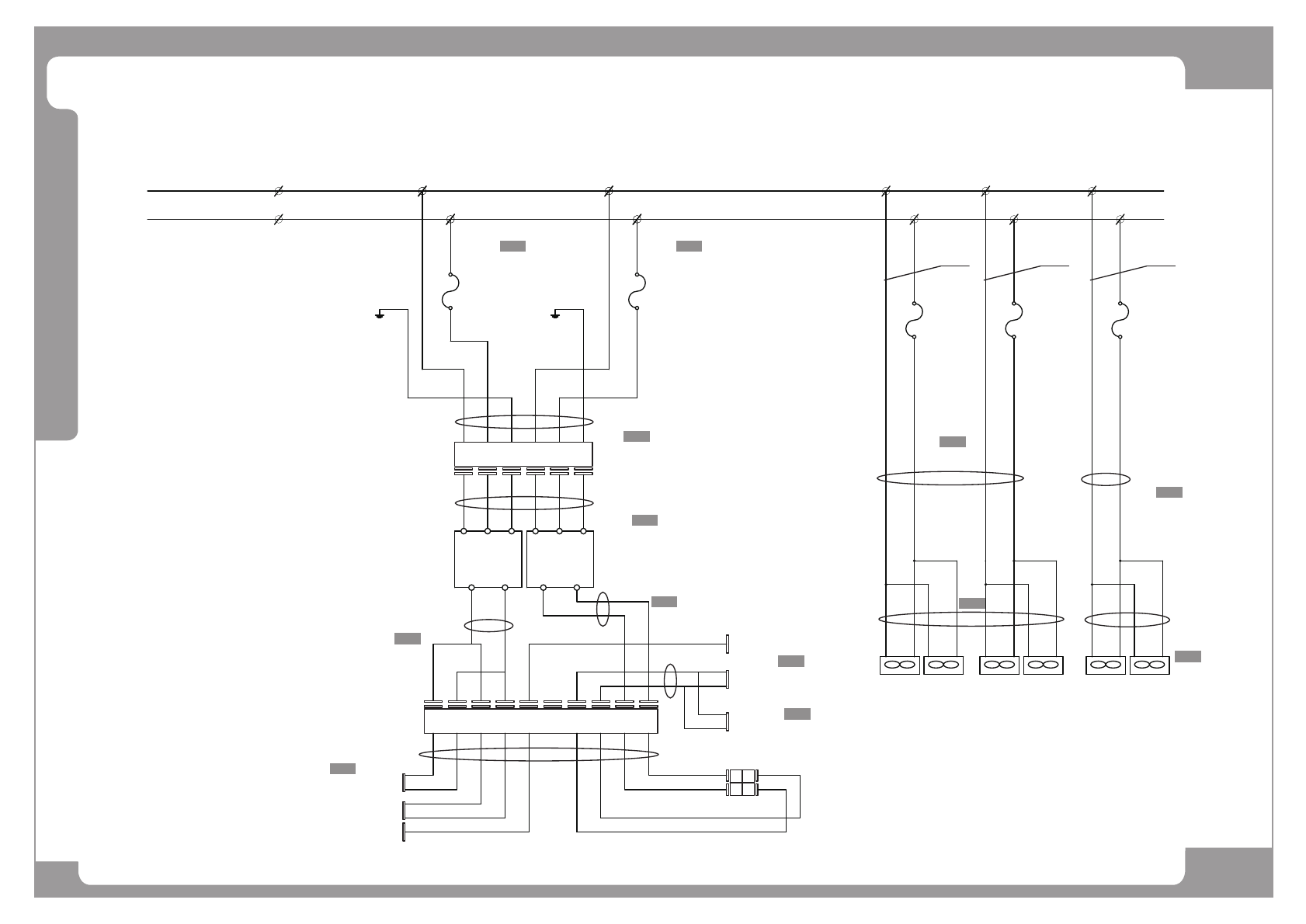
Page SAMSUNG TECHWIN 220 SM421 E lectric Circuit Diagram (4/6) NO. P ART NO. P ART NAME Q'TY Old No. Stock Apply Reference 1 AM03-00412 0A CABLE ASSY -CONTROL_RACK_PW_ EXT 1 2 AM03-0041 19A CABLE ASSY -CONTROL_RACK_…

Page
SAMSUNG TECHWIN
219
SM421
Electric Circuit Diagram (4/6)
^5`
^4`
^6`
* UPS사용시만결선
PE04 PE05
PE03
PC-PW-EXT [R]
1
2
3
9
10
T4 [R] T1 [L]
9
10
9
10
9
10
1
2
3
TO REAR MONITOR
(PC+VME ASSY POWER)
TO CONTROL BOX
TO FRONT MONITOR
FROM CP1
1L2
1L1
POWER INLET
1L1 1L2
AC220V
(SM421_PW110-1)
LN
OUTLETINLET
UPS OPTION INSTALL
-UPS
(800VA)
(SM421_PW110)
FG
LNFG
LN
LN
(SM421_PW121)
(SM421_MD203)
LN
LN
(SM421_PW122)
(SM421_MD201)
1L1 1L21L1 1L2
5A
5B
1A 1B
6A
2A 3A
7A
4A
4B
8A
8B
^7`
^8`
^9`

Page
SAMSUNG TECHWIN
220
SM421
Electric Circuit Diagram (4/6)
NO. PART NO. PART NAME Q'TY Old No. Stock Apply Reference
1 AM03-004120A CABLE ASSY-CONTROL_RACK_PW_EXT 1
2 AM03-004119A CABLE ASSY-CONTROL_RACK_PW 1
3 AM03-003487A CABLE ASSY-Y2_WD_MOT_F_MON_PW_T4 1
4 AM03-003503A CABLE ASSY-F_MON_PW_T4 1
5 AM03-003484A CABLE ASSY-XY1_MOT_R_MON_PW_T1 1
6 AM03-003504A CABLE ASSY-F_MON_PW_T1 1

Page
SAMSUNG TECHWIN
221
SM421
Electric Circuit Diagram (5/6)
^5`
^4`
^6`
^7`
^8`
^9`
2 2 2
PE06 PE07
1
2
3
4
5
6
DC POWER(400W)
24VDC
(+) (-)
AC IN
LNFG
T2 [L]
1
2
3
4
5
6
DC POWER(400W)
24VDC
(+) (-)
AC IN
LNFG
78910
Z1-PW
Z2-PW
HD-FG
T3 [L]
SC-CN1
SC-CN2
PE
BA
2020
1919
TB
1L2
1L1
(RIGHT SIDE)
-FAN1
-FAN2
1L1 1L2(F3)
0.75mm
-FUSE3 (AC250V,5A)
-FAN3
(LEFT SIDE)
-FAN4
1L1 1L2(F4)
-FUSE4 (AC250V,5A)
0.75mm
(SERVO DRIVER RACK)
-FAN5
-FAN6
1L2(F5)
-FUSE5 (AC250V,5A)
0.75mm
1L1
AC220V
(SM41_PW012)
(SM41_PW013)
(SM41_PW014) (SM41_PW015)
FROM CP1
1L1
-FUSE1 (AC250V,10A)
1L1
-FUSE2 (AC250V,10A)
(SM421_PW111-1) (SM421_PW111-1)
(SM421_PW111)
(SM421_MD202)
(SM421_PW116)
(SM421_PW117)
(SM421_PW118)
(SM421_PW201)
-PS1 -PS2
(SM421_PW102)
14A
9B
A
B
16B
11A9A
14B 15B
10A
B
A
12A
17B
A
B
18B
13A
A
B
A
B
15B
10A9A
14B
^:`
^;`
^<`
^43`
^44`
^45`
^4`