SM421_Technical_Reference(Eng_Ver8[1].3) - 第244页
Page SAMSUNG TECHWIN 232 SM421 E lectric Circuit Diagram - SM421N (4/6) NO. P ART NO. P ART NAME Q'TY Old No. Stock Apply Reference 1 J90831352C TB1_PS 1-PS2_POWER_ CABLE_AS SY 1 2 J90831357 B PS1_SAFE TY_BD_CABLE _…

Page
SAMSUNG TECHWIN
231
SM421
Electric Circuit Diagram - SM421N (4/6)
ڌڏڜ
ڔڝ
ڜ
ڝ
ڌڑڝ
ڌڌڜڔڜ
ڜ
ڝ
ڌڏڝ
ڜ
ڝ
ڌڐڝ
ڌڋڜ
ڝ
ڜ
ڌڍڜ
ڌڒڝ
ڜ
ڝ
ڌړڝ
ڌڎڜ
ڌڔڝ
ڌڎ
ڌڏ
ڍڋڝ
ڍڋڜ
ڌڔڜ
ڌڍ
ڌڧڍ
ڌڧڌ
ڃڭڤڢڣگٻڮڤڟڠڄڃڭڤڢڣگٻڮڤڟڠڄ
ڈڡڜکڌڈڡڜکڌ
ڈڡڜکڍڈڡڜکڍ
ڌڧڌ ڌڧڍڃڡڎڄ
ڋډڒڐۈۈ
ڈګڮڌ
ڌډڐۈۈ
ڌڧڌ
ڌڧڍڃڡڌڄ
ڈڡڰڮڠڌٻڃڜڞڍڐڋڱڇڌڋڜڄ
چڍڏڱ ڍڏڢ چڍڏڱڨ ڍڏڢ
ڌڧڌ
ڌڧڍڃڡڍڄ
ڈڡڰڮڠڍٻڃڜڞڍڐڋڱڇڌڋڜڄ
ڌډڐۈۈ
ڈګڮڍ
ڈڡڰڮڠڎٻڃڜڞڍڐڋڱڇڐڜڄ
ڈڡڜکڎڈڡڜکڎ
ڃڧڠڡگٻڮڤڟڠڄڃڧڠڡگٻڮڤڟڠڄ
ڈڡڜکڏڈڡڜکڏ
ڌڧڌ ڌڧڍڃڡڏڄ
ڈڡڰڮڠڏٻڃڜڞڍڐڋڱڇڐڜڄ
ڋډڒڐۈۈ
ڃڮڠڭڱڪٻڟڭڤڱڠڭٻڭڜڞڦڄڃڮڠڭڱڪٻڟڭڤڱڠڭٻڭڜڞڦڄ
ڈڡڜکڐڈڡڜکڐ
ڈڡڜکڑڈڡڜکڑ
ڌڧڍڃڡڐڄ
ڈڡڰڮڠڐٻڃڜڞڍڐڋڱڇڐڜڄ
ڋډڒڐۈۈ
ڌڧڌ
(SM41_PW011)
(SM41_PW012) (SM41_PW013)
(SM41_PW014) (SM41_PW015)
(SM421F_PW031) : SM421FC
ڍڏڢ
چڍڏڱڵ
ڈڨڞڌ
ڌډڐٻۈۈ
(SM41_PW017)
(SM41_PW017)
ڡڭڪڨٻڞګڌ
(SM41_PW016)
ڍ
ڟڞٻګڪڲڠڭڃڏڋڋڲڄڟڞٻګڪڲڠڭڃڏڋڋڲڄ
ڃچڄ
ګڠڋڑ
ڃڈڄ
ڜڞ ڤک
ڍ
ڍڏڱڟڞڍڏڱڟڞ
ڟڞٻګڪڲڠڭڃڏڋڋڲڄڟڞٻګڪڲڠڭڃڏڋڋڲڄ
ڃڈڄ
ڍڏڱڟڞڍڏڱڟڞ
ڃچڄ
ڜڞ ڤک
ڍ
ګڠڋڒ
ڍ ڍ
ڵڈڜڨګ
ڍ
^4`
^5`
^6`
^6`
^7`
^;`
^8`
^9`
^:`
(SM33_PW014)

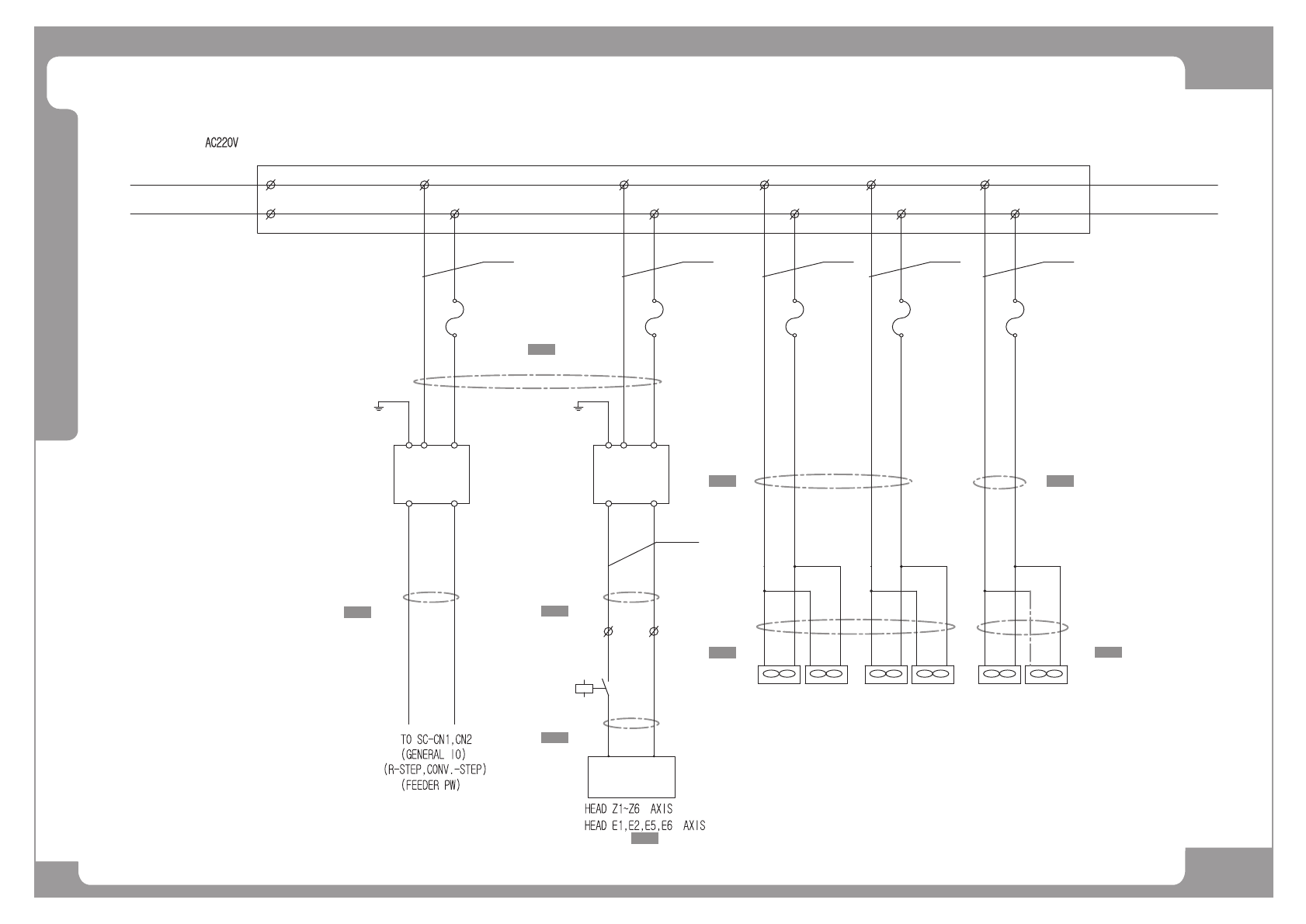
Page
SAMSUNG TECHWIN
232
SM421
Electric Circuit Diagram - SM421N (4/6)
NO. PART NO. PART NAME Q'TY Old No. Stock Apply Reference
1 J90831352C TB1_PS1-PS2_POWER_CABLE_ASSY 1
2 J90831357B PS1_SAFETY_BD_CABLE_ASSY 1
3 J90831358C PS2_Z_AMP_DC_POWER_CABLE_ASSY 1
4 J90831353B COVER_FAN_POWER_CABLE_ASSY 1
5 J90831354D SERVO_FAN_POWER_CABLE_ASSY 1
6 J90831356C SERVO_FAN_FG_CABLE_ASSY 1
7 J90831228B Z_DRIVER_PW_JUMPER_CABLE_ASSY 1
8 J90831356C SERVO_FAN_FG_CABLE_ASSY 1

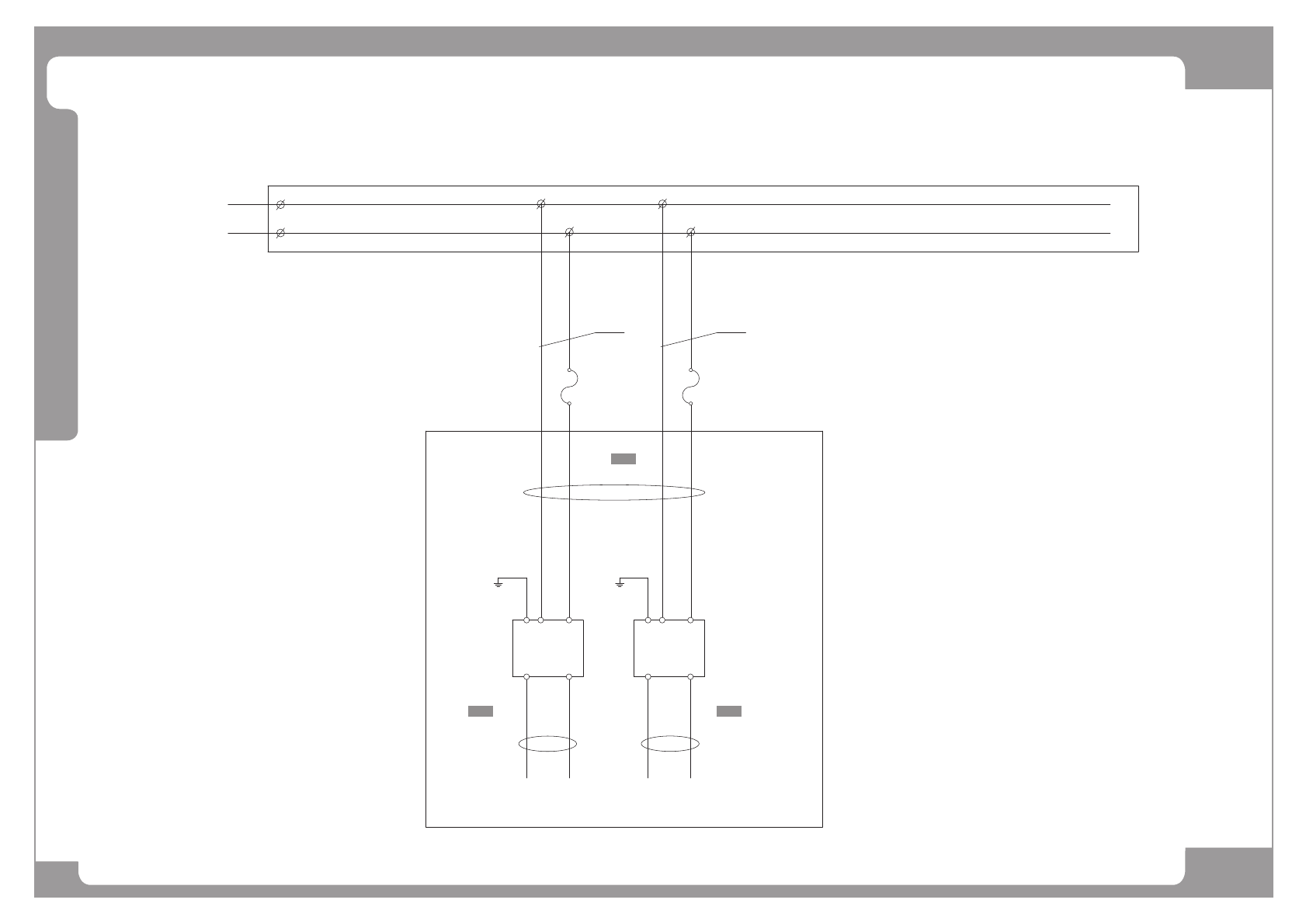
Page
SAMSUNG TECHWIN
233
SM421
Electric Circuit Diagram - SM421N (5/6)
FROM CP1
1L2
1L1
14A
9B
(REAR FEEDER PW)
DC POWER(400W)
-PS3
(+)
PE06-1
(-)
AC IN
9A
1.5mm
1L1 1L2(F1)
A
B
1L21L1
2
14B
24VDC
-FUSE1 (AC250V,10A)
+24V 24G +24VM 24G
DC POWER(400W)
(-)
24VDC
(+)
AC IN
1L1 1L2(F2)
-FUSE2 (AC250V,10A)
A
B
1.5mm
1L1 1L2
2
15B
10A
-PS4
PE07-1
AC220V
(SM421N_PW001)
(FRONT FEEDER PW)
(SM421N_PW003)
(SM421N_PW004)
SM421N ONLY
^4`
^5`
^6`