SM421_Technical_Reference(Eng_Ver8[1].3) - 第39页
Page SAMSUNG TECHWIN 27 SM421 C onveyor Ass’y (4/5) NO. P ART NO. P ART NAME Q'TY Old No. Stock Apply Reference 1 J31041014A ST EP_MOT OR 2S56Q-01842SR2 1 2 J660210 17A BEL T_410_1 MAM-5P-123 5-7W 4 3 J660210 19A BE…

Page
SAMSUNG TECHWIN
26
SM421
Conveyor Ass’y (4/5)
17
23
18
13
12
14
28
21
19
24
8
20
8
12
12
14
22
13
23
13
12
14
22
13
12
13
13
23
12
18
23
17
9
10
15
16
7
11
25
25
26
15
10
16
27
9
2
2
3
1
6
5
1
6
5
1
6
4

Page
SAMSUNG TECHWIN
27
SM421
Conveyor Ass’y (4/5)
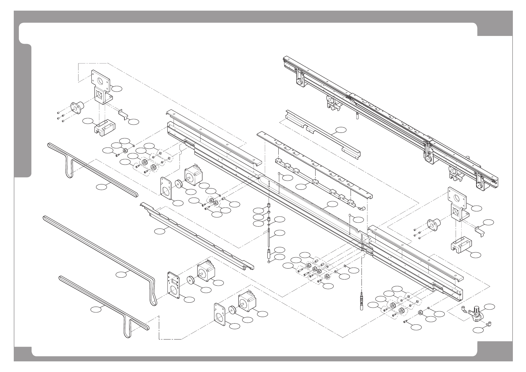
NO. PART NO. PART NAME Q'TY Old No. Stock Apply Reference
1 J31041014A STEP_MOTOR 2S56Q-01842SR2 1
2 J66021017A BELT_410_1 MAM-5P-1235-7W 4
3 J66021019A BELT_410_R MAM-5P-1482-7W 1
4 J70531085A BRACKET_BELT_MOTOR_M J70531085A 1
5 J70531106A BRACKET_BELT_MOTOR_S J70531106A 4
6 J7153111A TEP MOTOR PULLEY [J7153111A] 6
7 J71531028A CONV_REAR_FRAME J71531028A 1
8 J66011035A BALL_BUSH LMU5 8
9 J6711001A ELBOW FITTING 4
10 J6607083A LM GUIDE[SBG20-SL-1-575-N] 2
11 J6701087A EDGE CYLINDER[CQ2B6-CJJC2948] 1
12 J7053047A IDLER SPACER-S 18
13 J7053009A IDLER SHAFT-S2 [J7053009A] 18
14 J7053184A SQUARE NUT M4 55
15 J7053216B DOG-SENSOR [J7053216B] 1
16 J7053677A MOVE STAND[J7053677A] 2
17 J7053763A IDLER SPACER-M[J7053763A] 3
18 J7053770A IDLER SHAFT-M[J7053770A] 6
19 J7153010B ADJUST SHAFT [J7153010B] 4
20 J7153033A BUSH SPACER 4
21 J7153034A CLAMP SHAFT 4
22 J7253006A IDLER 1 8
23 J7253007A IDLER 2 16
24 J7253008A STOPPER 4
25 J7253009B STOPPER 2 [J7253009B] 4
26 J7051113A CABLE DUCT-U-F[J7051113A] 1
27 J67090018B REGULATOR 1

Page
SAMSUNG TECHWIN
28
SM421
Conveyor Ass’y (4/5)
NO. PART NO. PART NAME Q'TY Old No. Stock Apply Reference
28 J6073010136H C-RING DIA11(HOLE) 4