KE-3010_KE-3020V_KE-3020VR-Rev04 - 第261页
- 25 2 - N O TE ( 注記 ) # 0 1 ....FO R 3010 30 10用 # 0 2 ....FO R E N EN 用 # 0 3 ....OP TIO N AL PART S オプ ション部品 # 0 4 ....UNT IL M /C REV .D マ シン REV. D まで # 0 5 ....A F T ER M/C RE V.E マ シン REV. E 以降 # 0 6 ....FO R 3010…

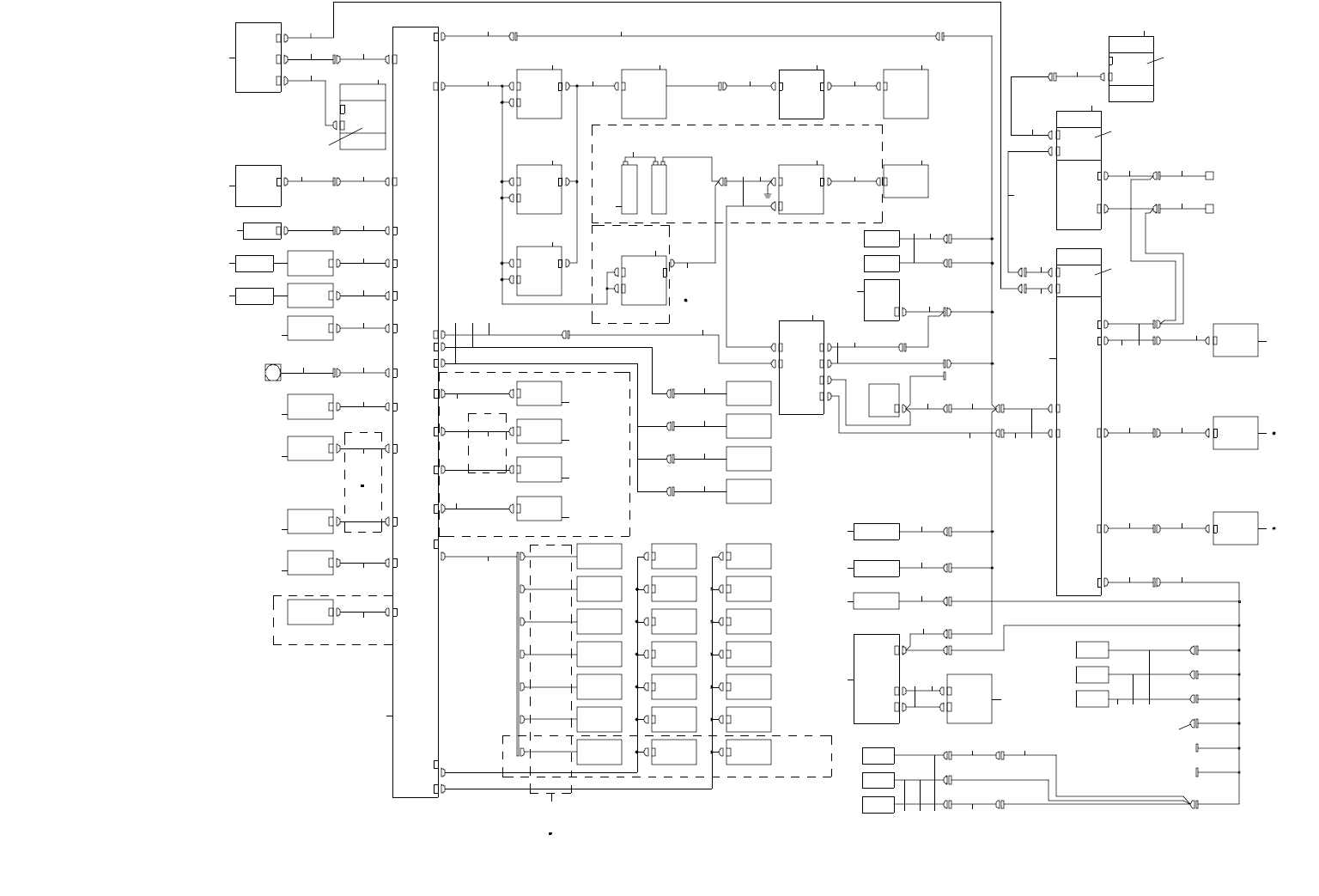
- 251 -
126.SYSTEM DIAGRAM(3)
SYSTEM DIAGRAM(3)
10
126
104
128
72
127
73
74
75
7
92 9390 91
131
100
130
97
96
94
95
88
89
42
43
86
87
85
7
7
8484
83
129
76
77
78 79
80
81 82
124 54
50
51
53
125
59
60
58
57
555556
45
44
47
46
29
101
36
37 41
42
4338 39
49
48
118
120
105
106
107
108
35 123
40
31
102
33
34
32
30
5
6
313131
67676665
68 71
63
62
61
5
6
24
27
64
8
9
20181614
12
22
24
25
5 6
103
7
121
5
6
4
3
2
122
11
13 15
17
19
21 23 26 26
27 28
1
EN3
EN2
EN1
S -HE AD MAIN
P CB ASM
4A XIS SER VO
AM P(1 )
CN 4B CN 5CN19
CN 4D
4A XIS SER VO
AM P(2 )
CN 4B CN 5
CN 4D
4A XIS SER VO
AM P(3 )
CN 4B CN 5
CN 4D
4A XI S S ER VO
AM P( 4)
CN4 C C N5
CN4 D
1-5 A
1-5 B
1-5 C
1-5D
LNC6 0
CN 1
S CM3
PCB
J4 CO M
CN 84 8
ETH ER
MAI N PC B
J8
XY- RE LA Y
PCB
CN1 6
1-3A
SAFTY
UNIT
(EN)
AIR PRESS
METER (+)
AIR PRESS
METER (-)
EN2
EN1
ETH ER
SLA VE
PCB
BASE I/ O
PCB
EN2
EN1
ETH ER
SLA VE
PCB
4-2A
F EEDER
PCB
EN2
EN1
ETHE R
SLAV E
PCB
3 -2A
XY 03
CN 34
XY 05
CN1
CN2
I/F L
I/F R
MTS I/F
MTC I/F
H EAD IO
S AFE IO
CNP1
CNP2
CN06 4
CN4
XY 04
Y - LI MIT
SENSOR
Y ++LIN IT
SENSOR
YNEAR
SE NS OR
Y - LIM
X ++ LIM
YNEAR
X - LI MI T
SENSOR
X + LI MI T
SENSOR
XNEAR
SENSOR
X -LI M
XNEAR
X +LI M X +LIM
CN1 27
CN15
POWER UNIT
CN17
CN2 6
CN0 64
CN 20CN13
CN201
I ONIZ ER
IONIZER
IO N PWR
CN901
CN 33
CN7
CN9
CPU
BOARD
CO M2
4- 4A
OPERA TION
PCB ( F)
CN14
3- 4A
OPERA TION
PCB ( R)
CN14
3- 4B
XY 08
XY01
XY 02
I EEE1394a
R EPEATER
CH 2
LN C60
CN245
CH1
IE EE1394
BO ARD
CH1
4- 4C
CPU
BOARD
COM1
2- 5B
2-4A
IP-X7
PCB
AC3
CN 47 8
CN2
4-1D
FMLA
1 -3B
HMS HEADR C N32
B/M FIBER CN14
B/M AMP
CDS FIBER
CN 20
CDS AMP
EN1
CN813
S L IG HT
CTR L PCB
EN2
EN1
ETH ER
SLA VE
PCB
4 -2C
3- 3B
CN1
OC CRCN31
OC CL
CN9
LIGH T-CCN 6
LIG HT-C
CN10
LIGHT-A1CN 7
LIGHT-A1
CN11
LIG HT-A 2CN 8
L IGHT -A2
C N27
CN2 4
BR1
CN2 5
CN2 6
C N23
T EM PER AT UR E
SENSOR
PWB ASM
CN12
CN 32
CN16
CN2 8
CN10
XY 10
CN19
NZ DW N 3
NZ DW N1
NZ DW N 2
ES F
XY EN2
XYE N2
LED F
LED R
COP LA LA
HMS
4-5A
ON LY 3020 V 30 20R V
ONLY 3020V 3020RV
OCC
CAM ERA
OCC
CAMER A
OCC C
LIGHT
PCB ASM
OCC C
LIGHT
PCB ASM
OCC A
LIG HT
PCB ASM
OCC A
LIGHT
PCB A SM
OCC A
LIG HT
PCB ASM
OCC A
LIGHT
PCB A SM
T7 SLOW
DOWN
SENSOR
Z1
PR ES SU RE
SE NS OR
Z2
PR ES SU RE
SE NS OR
Z3
PR ES SU RE
SE NS OR
Z4
PR ES SU RE
SE NS OR
Z5
PR ES SU RE
SE NS OR
Z6
PR ES SU RE
SE NS OR
Z7
PR ES SU RE
SE NS OR
Z1 VA C S V Z 1 B L W SV
Z2 VAC SV Z2 BLW SV
Z3 VAC SV Z3 BLW SV
Z4 VAC SV Z4 BLW SV
Z5 VAC SV Z5 BLW SV
Z6 VAC SV Z6 BLW SV
Z7 VAC SV Z7 BLW SV
FA N
NOZZLE
DOWN
SENSOR R
NOZZLE
DOWN
SENSOR L
NOZZLE
DOWN
SENSOR IC
NOZZLE
UP
SV ASM
COPLA
LASER KEY
PI LOT LA MP
PI LOT LA MP
CN61
CN62
MOT OR
SWI CH
FULX R LYFULX RLY2
R T FUL X
112
111
110
113
114
F ULX PW R
F ULX RL Y1
R T FLUX opt ion
ROTARY FLUXER
MOTOR
SWI TCH
116
117
115
98
PUM P-I O
C N68
132
109
CN61
CN62
FULX RLY2
FU LX R LY1
SWIC H
MOTO R
RT F ULX
FU LX RLY
FULX PWR
M OTOR
SWICH
133
135134
99

- 252 -
N OTE ( 注記 ) # 01....FOR 3010 3010用
# 02....FOR EN EN 用
# 03....OPTIO NAL PARTS オプション部品
# 04....UNT IL M /C REV .D マ シン REV.D まで
# 05....AFT ER M/C RE V.E マシン REV.E 以降
# 06....FOR 3010(UNTIL M /C REV.D) 3010用(マシン REV.D まで)
# 07....FOR 3010(AFTER M/C REV.E) 3010用(マシン REV.E 以降)
# 08....FOR EN(A FTER M/C R EV.E) E N 用(マシンREV.E 以降
REF.NO NOTE PAR T NO D E S C R I P T I O N
品 名
Qty
1 40 1-49647 E THER MA IN BOAR D
イーサメイン基板
1
2 40 1-13624 E THER C ABLE MAI N-XY AS M イーサケーブル メイン− XY 組 1
3 40 1-13625 E THER H EAD CABLE A SM
イーサヘッドケーブル組
1
4 40 1-136 27 E THER LI G HT CABLE ASM イーサライトケーブル組 1
5
#0 4
40 1- 136 21 X Y BEA R 5 P CABLE S ASM
XY ベア5連ケーブル組
4
6 #0 5 401-35796 X Y BEA R CABLES AS M XY ベアケーブル組 1
7 400-47557 E THER -SLAVE PCB ASM
ETHER − SLAVE 基板組
4
8
#0 4
40 1- 067 99 S -HEAD M AIN PCB ASM
S ヘッドメイン基板組
1
9 #0 5 40 1- 302 59 S -HEAD M AIN PCB ASM S − HEAD メイン基板組 1
10
#0 4
40 1- 136 96 H IGH T SEN SOR UNIT AS M
HMS ケーブル組
1
1 1 40 1-136 94 S ENS OR センサー (1)
12 40 1-13697 HIGHT SEN SOR RE LAY CABLE ASM
HIGHT センサリレーケーブル組
(1)
1 3 H D-00 131 00-30 F IB ER UN IT ファイバユニット 1
1 4 40 0-479 81 B AD MAR K FIBE R A MP A SM
バッドマークファイバアンプ組
1
1 5 H D-00 260 00-10 S ENSOR センサ 1
1 6 40 0-454 84 NOZ Z LE S ENS OR A MP A SM
ノズルセンサアンプ組
1
17 40 0-29824 TEMPERATURE S ENS OR P CB ASM
温度センサ基板組
1
18 40 1-13707 B ASE T EM P C ABL E ASM ベース温度ケーブル組 1
1 9 40 1-137 08 HEAD FAN C ABLE ASM
ヘッド冷却ファンケーブル組
1
2 0 40 1-137 09 HEAD FAN R ELAY CAB LE A SM ヘッド冷却ファン中継ケーブル組 1
2 1 40 0-480 28 O CC CAMERA
OCC カメラ
1
2 2 40 0-924 66 O CC CAMERA L CA BLE ASM OCC カメラ L ケーブル組 1
2 3 40 0-475 12 O CC C LIGH T PC B ASM
OCC C ライト基板組
1
2 4 40 1-099 77 O CC LIGH T C ABLE ASM
OCC ライトケーブル組
2
25 #0 1 40 1-099 78 O CC LIGH T 30 10 C ABL E AS M OCCライト3010ケーブル組 1
2 6 40 0-475 08 O CC A L IG HT P CB ASM
OCC A ライト基板組
2
2 7 40 1-099 79 O CC OPAS S LIGH T C ABLE ASM OCC ライト OPASS ケーブル組 2
28 40 1-13698 T7 SLOW DOW N SENSOR ASM
T 7スローダウンセンサケーブル組
1
2 9 40 1-099 76 HEAD I/O CA BLE A SM ヘッドI/Oケーブル組 1
30 40 1-13706 Z-THETA S IGNAL CABLE ASM
Z − θ 信号ケーブル組
1
31 40 0-44535 4 AXIS SER VO AM P 4軸一体型サーボアンプ 4
3 2 40 0-802 03 LNC60 I/F C ABLE ASM LNC 60 I / F ケーブル組 1
33 E9 345 -721-0A0 C ABL E AS M.
LA センサ−接続ケ−ブル組
1
3 4 40 0-032 64 FM LA S ENS OR FMLA センサ 1
3 5 40 0-445 17 1394 R OBOT CA BLE A SM
1394ロボットケーブル組
1
36 40 0-44518 IEEE1 394 REPEATER BOAR D IEEE 1394リピータボード 1
3 7 40 1-136 17 1394 R ELAY CAB LE AS M
1394中継ケーブル組
1
38 #0 4 400-48003 IEEE1394 BOARD IEEE 1394ボード 1
39
#0 5
401-50021 I EEE1 394 BOAR D
IEEE 1394 ボード
1
4 0 40 1-099 72 S CM 3 PC B P WR CA BLE A SM
SCM 3電源ケーブル組
1
4 1 40 1-099 73 FM LA S ERIAL C ABL E ASM FMLA シリアルケーブル組 1
42
#0 4
40 1- 137 23 C PU BOA RD
CPU ボード
2
43 #0 5 40 1-354 32 CPU BOA RD CPU BOARD 1
4 4 40 0-479 87 V ACUUM P RES SUR E S W ASM
負圧センサー組
1
4 5 40 0-976 26 IONIZ ER CABL E ASM イオナイザケーブル組 1
4 6 40 0-937 24 IONIZ ER
イオナイザ
1
4 7 40 0-481 68 A IR PRE SSURE SW AS M 正圧センサー組 1
4 8 40 1-136 73 IONIZ ER PW R CAB LE AS M イオナイザ電源ケーブル組 1
4 9 40 1-099 62 P WR UNIT I/O CAB LE A SM
電源ユニット I / O ケーブル組
1
5 0 40 1-136 40 S AFETY U 901 CA BLE ASM(EN) SAFETY U 901 ケーブル組 1
5 1 40 1-099 61 X Y-R EL AY I/O CAB LE A SM
XY リレー I / O ケーブル組
1
52 #0 3 40 1-227 82 X Y-R EL AY I/O CAB LE A SM XY リレー I / O ケーブル組 1
53
#0 5
40 1- 227 82 X Y-R EL AY I/O CAB LE A SM
XY − RELAY I / O ケーブル組
1
54 40 1-13690 X Y-REL AY PW R RELAY CABLE ASM XY リレー PWR リレーケーブル組 1
5 5 40 0-999 03 P ILOT LA MP
パイロットランプ
2
5 6 40 0-999 02 K EY SW ITCH
キースイッチ
1
5 7 40 0-999 06 P ILOT LA MP C ABL E F ASM パイロットランプケーブル F組 1
5 8 40 0-999 07 P ILOT LA MP C ABL E R ASM
パイロットランプケーブル R 組
1
59 #0 4 400-99904 K EY SW ITCH C ABLE ASM キー SW ケーブル組 1
60
#0 5
401-13714 K EY SW ITCH CABLE ASM
キースイッチケーブル組
1
6 1 40 1-137 05 NOZ Z LE U P S V RE LAY CAB LE AS M ノズルアップ SV リレーケーブル組 1
6 2 40 1-137 03 NOZ Z LE D OWN C ABLE ASM
ノズルダウンケーブル組
1
6 3 40 0-924 67 O CC CAMERA R C ABLE ASM OCC カメラ R ケーブル組 1
64 #0 4 40 0-924 75 E JECTOR R ELAY CAB LE A SM エジェクタ中継ケーブル組 1
6 5 40 0-480 28 O CC CAMERA
OCC カメラ
1
6 6 40 0-475 12 O CC C LIGH T PC B ASM OCC C LIGHT 基板組 1
6 7 40 0-475 08 O CC A L IG HT P CB ASM
OCC A ライト基板組
2
68 #0 4 40 1-136 99 V ACUUM S V C ABLE ASM 302 0 バキューム SV ケーブル組3020 1
69
#0 6
40 1- 137 00 V ACUUM S V C ABLE ASM 301 0
バキューム SV ケーブル組3010
1
70 #0 5 401-35793 V ACUU M C ABL E ASM (7AXIS) バキュームケーブル(7軸) 1
71
#0 7
40 1- 357 90 V ACUUM C ABL E ASM
バキュームケーブル
1
72 40 1-09954 X ORG RANGE SEN SOR ASM
X 軸原点周囲センサ組
1
7 3 40 1-099 56 X PLUS S ENS OR RELA Y C ABLE ASM X 軸センサ中継組 1
74
#0 4
401-13623 Y BEAR CABLES ASM
Y ベアケーブル組
1
75 #0 5 401-35797 Y BEAR CABL ES ASM Y ベアケーブル組 1
7 6 40 0-475 60 FEE DER PC B A SM
フィーダ基板組
1
77 40 0-71680 B ASE I O PCB ASM ベース IO 基板組 1
78 40 1-13626 E THER C ABLE BASE FEEDER A SM
ETHER ケーブルベースフィーダ組
1
79 40 0-92610 E THER C ABL XY BAS E ASM
イーサケーブル XY ベース組
1
8 0 40 1-067 95 S -XY RE LAY P CB ASM S − XY リレー基板組 1
81 40 0-97621 E THER C ABL XY BAS E RELAY ASM
イーサケーブル XY ベース中継組
1
8 2 40 0-976 22 E THER C ABLE MAI N-XY R ELA Y ASM イーサケーブル メイン− XY 中継ケーブル組 1
83 40 1-10049 M TC MT S I/F CABLE ASM
MTC MTS I / F ケーブル組
1
84 40 1-10050 M TC MT S I/F B R CABLE ASM MTC MTS I / F ブラケットケーブル組 2
8 5 40 1-136 88 X Y M TC M TS CAB LE A SM
XY MTC MTS ケーブル組
1
8 6 40 1-136 91 X Y-R EL AY HOD 232 C R ELA Y C ABLE ASM XY リレー HOD 232 C リレーケーブル組 1
87 40 1-09964 X Y-REL AY HOD 232C CABLE ASM
XY リレー HOD 232 C ケーブル組
1
8 8 40 0-976 19 X Y-R EL AY OPE RATION RELAY CA BLE A SM
XY リレーオペレーションリレー
1
8 9 40 1-100 68 O PER ATION R LY CABLE F A SM オペレーションリレーケーブル組 1
9 0 40 0-924 08 O PER ATION P CB FRO N T1 0 AS M
オペレーション基板フロント10組
1
91 #0 2 40 0-924 82 O PER ATION P CB FRO N T1 0 AS M(EN ) オペレーション基板フロント10組(EN) 1
92 40 0-92481 O PERATION P CB REA R10 ASM
オペレーション基板リア10組
1
93 #0 2 400-92483 O PER ATION PCB REAR10 ASM (EN) オペレーション基板リア10組(EN) 1
9 4 40 0-976 20 X Y-R EL AY OPE RATION RELAY CA BLE A SM
XY リレーオペレーションリレーケーブル組
1
95 40 1-10069 O PERATION RLY CABLE R AS M
オペレーションリレーケーブル組
1
96 40 1-13689 X Y-REL AY SE NSOR RELAY CABLE ASM XY リレー センサリレーケーブル組 1
97 40 1-09952 X Y-REL AY SE NSOR CABLE ASM
XY リレー センサケーブル組
1
98 #0 5 40 1-099 63 P UM P I/O CAB LE A SM ポンプ I / O ケーブル組 1
99
#0 5
401-22786 R OTAR Y FLUXER C ABLE ASM
ロータリーフラクサケーブル組
1
100 401-09958 Y NEAR SENSOR ASM Y 軸原点周囲センサ組 1
10 1 40 0-924 60 S CM 3 PC B
SCM 3基板
1
102 401-13622 X Y BEA R 1P C ABLE S ASM XY ベア1連ケーブル組 1
103 401-09975 O CC CABLE ASM OCC 束線組 1
10 4 40 0-455 47 LNC60
LNC 60
1
10 5 40 1-137 04 NOZ Z LE U P S V ASM ノズルアップケーブル組 1
10 6 40 1-137 02 NOZ Z LE D OWN SE NS I C A SM
ノズルダウンセンサ IC ケーブル組
1
10 7 40 0-924 95 NOZ Z LE D OWN SE NS L ASM ノズルダウンセンサ L ケーブル組 1
10 8 40 1-137 01 NOZ Z LE D OWN SE NS R AS M
ノズルダウンセンサ R ケーブル組
1
10 9 #0 5 401-22783 ROTAR Y F LUXER PWR CABL E ASM ロータリーフラクサ電源ケーブル 1
11 0
#0 3
401-22784 R OTAR Y FLUXER I/O CABLE AS M
ロータリーフラクサ I / O ケーブル組
1
11 1
#0 3
401-22785 R OTAR Y FLUXER R LY CABLE ASM
ロータリーフラクサ中継ケーブル組
1
11 2 #0 3 401-22783 ROTAR Y F LUXER PWR CABL E ASM ロータリーフラクサ電源ケーブル組 1
11 3
#0 3
40 1- 227 87 R OT ARY F LU XER MOT OR C ABLE ASM
ロータリーフラクサモーターケーブル組
1
11 4 #0 3 401-22786 ROTAR Y F LUXER CABLE ASM ロータリーフラクサケーブル組 1
11 5
#0 3
40 1- 227 89 R OT ARY F LU XER SWI TCH ASM
ロータリーフラクサスイッチ組
1
11 6 #0 3 40 1-22788 ROT ARY F LU XER MO TOR ASM ロータリーフラクサモーター組 1
11 7
#0 3
HA-0 005 900 -0 0 P OWER SW ITCH
電源スイッチ
1
11 8 #0 4 40 1-14531 P OWER U NIT A SM 電源ユニット組 1
11 9 #0 5 40 1-33955 P OWER SU PPL Y U NIT AS M 電源ユニット組 1
12 0
#0 8
40 1- 339 58 P OWER SU PPL Y U NIT (EN ) A SM
電源ユニット(EN)組
1
12 1 40 1-086 07 S -L IGHT C TRL PC B ASM S ライトコントロール基板組 1
12 2 40 0-713 00 IPX7 ASM
IPX 7組図
1
123 401-09971 LA SE NSOR RELA Y CABLE ASM LA センサ中継ケーブル組 1
124 400-97616 X Y-REL AY I/O REA LY CABLE ASM
XY リレー I / O 中継ケーブル組
1
125 401-09960 X Y-REL AY PW R CABL E AS M XY リレー 電源ケーブル組 1
126 401-09974 HEAD M AIN PWR C ABL E ASM
ヘッドメイン電源ケーブル組
1
127 401-09953 X MINU L L MT SEN SOR ASM
X 軸マイナスリミットセンサ組
1
128 401-09955 X PLUS LMT SEN SOR ASM X 軸プラスリミットセンサ組 1
12 9 40 0-479 54 E THER C ABLE FE EDE R LR-RF A SM
イーサフィーダ LR − RF ケーブル組
1
13 0 40 1-099 57 Y - L MT SE NSOR AS M Y 軸マイナスリミットセンサ組 1
13 1 40 1-099 59 Y ++ LM T SEN SOR ASM
Y 軸プラスリミットセンサ組
1
13 2 #0 5 401-22784 ROTAR Y F LUXER I/O CABL E AS M ロータリーフラクサ I/Oケーブル組 1
13 3
#0 5
40 1- 227 87 R OT ARY F LU XER MOT OR C ABLE ASM
ロータリーフラクサモーターケーブル組
1
13 4
#0 5
40 1- 227 88 R OT ARY F LU XER MOT OR ASM
ロータリーフラクサモーター組
1
13 5 #0 5 40 1-22789 ROT ARY F LU XER SWI TC H ASM ロータリーフラクサスイッチ組 1

- 253 -
127.SYSTEM DIAGRAM(4)(TYPE XL)(AFTER M/C REV.E)
SYSTEM DIAGRAM(4)(XL 仕様)(マシン REV.E 以降)
IP-X7
PCB
B/M
FIBER
CDS
FIBER
E THER
M AIN P CB
N OZ ZLE UP
S V ASM
N OZZ LE DOW N
S ENS OR IC
N OZZ LE DOW N
S ENS OR L
N OZZ LE DOW N
S ENS OR R
FAN
Z7 BLW SVZ7 VAC SV
Z6 BLW SVZ6 VAC SV
Z5 BLW SVZ5 VAC SV
Z4 BLW SVZ4 VAC SV
Z3 BLW SVZ3 VAC SV
Z2 BLW SVZ2 VAC SV
Z1 BLW SVZ1 V AC SV
Z7
PRE SSU RE
SEN SOR
Z6
PRE SSU RE
SEN SOR
Z5
PRE SSU RE
SEN SOR
Z4
PRE SSU RE
SEN SOR
Z3
PRE SSU RE
SEN SOR
Z2
PRE SSU RE
SEN SOR
Z1
PRE SSU RE
SEN SOR
T7 SLOW
DO WN
SE NS O R
OCC A LI GHT
PCB ASM
OC C A LIGHT
PC B ASM
OCC A LI GHT
PCB ASM
OC C A LIGHT
PC B ASM
OCC C LIGHT
PCB ASM
OCC C LIGHT
PCB ASM
OCC CAM ERA
OC C CAMERA
CPU
BOARD
CPU
BOA RD
PILOT
LAMP
PILOT
LAMP
COP LA
LAS ER KE Y
ONL Y 3 020 V 302 0VR
O NLY 30 20V R
O NLY 30 20V 3 020 RV
ON LY 302 0V 302 0R V
ON LY 30 20V 30 20R V
HMS
NZ DW N2
NZ DWN 1
NZ DW N3
TE MPE RAT UR E SE NS OR
PW B A SM
BR1
LIGHT- A2
LIGH T-A2
LIGHT-A1
LIGHT-A1
LIGH T-C
LIGHT -C
OCC L
OCC R
CDS AM P
B/M AM P
HMS
HEADR
1-3D
4- 5A
C OPLA S ENSOR
H EAD
CN 09
CN13
CO PLA LA
LED R
LED F
CN12
SCALE01
S CALE 02
M AG NET IC
SCALE PCB
X YEN 2
X YEN 2
ES F
CN19
XY10
CN 30
CN2 8
CN16
CN 32
CN12
C N23
CN2 6
CN2 5
CN2 4
C N27
CN 8
CN11
CN 7
CN10
CN 6
CN9
CN31
CN1
3-3 B
4- 2C
ETHER
SLAVE
PCB
EN1
EN 2
S L IGH T
CTR L P CB
CN813
EN1
CN2 0
CN14
C N32
1-3B
FMLA
4-1D
CN2
C N47 8
AC 3
2- 4A
2- 5B
COM1
CH1
IEEE1394
BOARD
CH1
CN 245
LN C60
CH 2
IEEE1394a
REPEATER
XY02
XY01
XY08
3 -4B
CN14
OPERATION
PCB (R)
3 -4A
CN14
OPERATION
PCB (F)
4 -4A
C OM2
CN9
CN7
CN 33
CN901
ION P WR
IONIZER
ION IZER
CN201
CN13
CN20 CN06 4
C N26
CN17
POWER
UNIT
CN15
CN127
CN131
CN130
CN132
CN130
CN131
X NEA R
SE NSO R
X +L IMI T
SE NS OR
X - LIM IT
SEN SOR
CN 430
CN431
CN139
CN143
CN138
CN137
XY04
CN2
CN06 4
CNP 2
CNP1
SAFE I O
HEAD IO
MTC I/F
MTS I/F
I/F R
I/F L
CN2
CN1
XY05
CN 34
XY03
3 -2A
ETH ER
SLA VE
PCB
EN1
EN2
FEEDER
PCB
4 -2A
ETH ER
SLA VE
PCB
EN1
EN2
BASE
I/O PCB
ETH ER
SLA VE
PCB
EN1
EN2
AI R P RES S
ME TER (- )
AI R P RES S
ME TER (+ )
SA FT Y
UN IT
(E N)
1-3A
CN16
XY- RE LAY
PCB
J8
CN 848
COMJ4
SCM 3
PCB
CN1
LN C60
1-5D
1-5C
1-5B
1-5A
CN4 D
CN5CN4 C
4 AXI S
S ERV O
A MP( 4)
CN4 D
CN5CN4 B
4 AXI S
S ERV O
A MP( 3)
CN4 D
CN5CN4 B
4 AXI S
S ERV O
A MP( 2)
CN4 D
CN19 CN5CN4 B
4A XIS
SE RVO
AM P(1 )
H EAD
M AIN P CB
EN1
EN 2
EN 3
2
1 9
3 4
10
5 11 13
12
14 16
15 17 19 21 23 25 26 28 29
20
18 2422 27 27
59
57
55
53
52
49
8
60 61
30 32
34
31
33
35
33
47 48
41
36
42
43
62 63 64 65
50
54 56 58 58
40
37
39
44
46
38 45
67
68
70
71
72
77 78 80
82
74
73
75
83
84
87
88
87
98 99
69
797676 81
85
105 109 111
112110106
103
102
101
116
115
9797
96
93
92
91
94
100
7 7
7
104 107 108 113 114
118
6
66
95
51
7
Y - LI MIT
SEN SO R
Y ++LINIT
SENSOR
YNEAR
SEN SO R
117
33 33
86
89
90
119
120