JUKYX-193-5100_G5S2 - 第94页
3-A 193-5100 JUKYX 3

193-5100
JUKYX
2-20
記 号 名 称 記 号 名 称
Y_SH ノズルストッカ 2 シャッタ開閉 1
Y_UP1 多機能ノズルストッカ 2 上昇 1
B_DWN1 多機能ノズルストッカ 2 ユニット下限検出 1
B_SH1 多機能ノズルストッカ 2 シャッタ閉確認 1
B_CMP1 多機能ノズルストッカ 2 クランプ確認 1
B_1611 多機能ノズルストッカ 2 浮き検出
B_DWN1
B_SH1
Y_UP1
Y_SH
B_CMP1
B1611
Fig_2-20S

193-5100
JUKYX
3-1
Q221
INPUT : 100-240VA 0.5 A 50/60Hz
HWS15 - 5 /A
OUTPUT : 5 V 3 A
R
1
2
7
8
IC1
L
E
D
8
(赤)
L
E
D
7
L
E
D
6
L
E
D
5
L
E
D
4
L
E
D
3
L
E
D
2
L
E
D
1
1
2
7
8
1
2
13
14
1
2
9
10
1
2
9
10
1
2
9
10
1
2
9
10
1
2
23
24
1
2
5
6
1
2
15
16
1
2
13
14
1
2
15
16
1
2
9
10
1
2
9
10
1
2
9
10
1
2
9
10
1
2
19
20
X1
1
2
3
4
1
2
3
4
1
2
9
10
1
2
9
10
1
2
25
26
1
2
25
26
1
2
25
26
1
2
25
26
SW1
12 3 456 7 8
ON
1 6
3
4
1 6
3
4
1 6
3
4
1 6
3
4
1 6
3
4
1 6
3
4
X2
61
1
2
7
8
1
2
7
8
1
2
7
8
CN1
1
2
7
8
1
2
7
8
1
2
3
4
1
2
3
4
1
2
3
4
1
2
3
4
1
2
9
10
1
2
9
10
1
2
9
10
1
2
9
10
CN2 CN3 CN4 CN5 CN6 CN7
CN8 CN9
CN60
CN10
1
2
29
30
1
2
29
30
1
2
21
22
omron
1 8
3
4
6
5
1 6
3
4
1 6
3
4
CN11 CN12 CN13 CN14
CN15 CN16
CN17 CN18
CN20CN19
CN22CN21
CN23
CN24
CN25
CN26 CN27
CN28
CN29
CN31
CN30
CN32
CN36CN35CN34CN33
CN37 CN38 CN39 CN40
CN42CN41
CN43 CN44
CN51
CN45 CN46
CN53 CN54
CN47 CN48
CN55 CN56
CN49 CN50
CN57 CN58
INPUT(A)OUTPUT(A)
DUAL-A DUAL-A
INPUT(B)OUTPUT(B)
SINGLE/DUAL-B SINGLE/DUAL-B
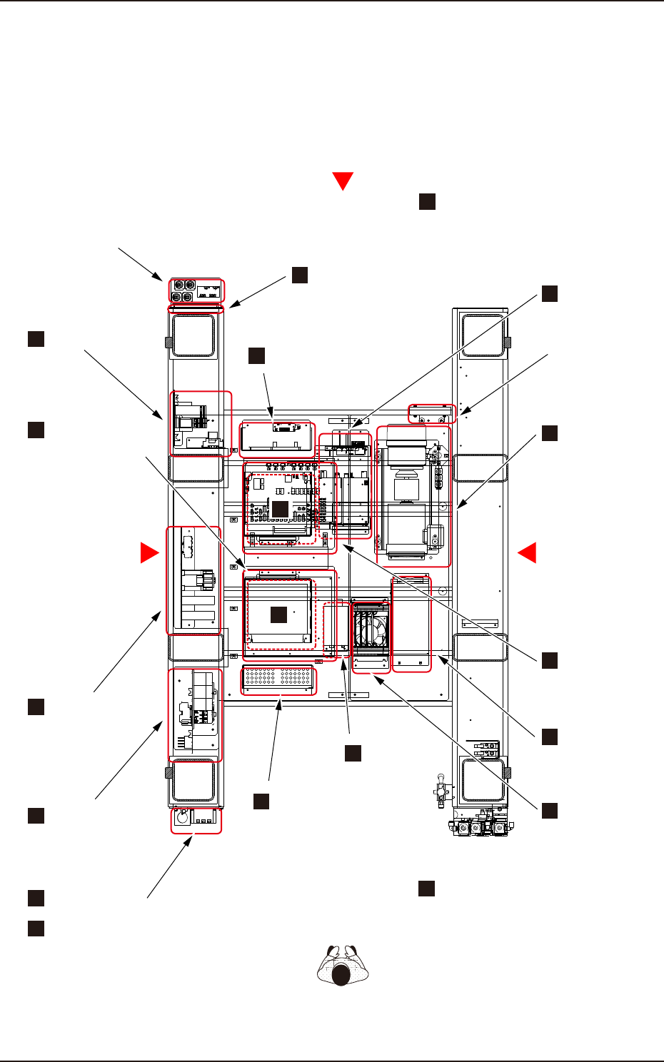
LED Lighting Control 基板
SIDE A
XY モータアンプユニット後
XY モータアンプ
ユニット前
SIDE B
ヘッド部モータ
アンプユニット
ATX 電源
CPU1
CPU2
FRONT
側面パネル 前
側面パネル 中
側面パネル 後
ヘッド部 I/O 基板パネル
DC 電源
ユニット
真空ポンプ
リレー基板パネル
前後工程
インターフェイス
コネクタ部
REAR
冷却ファン
I/O 基板
電源ブレーカ
ノイズフィルタ
9
10
10
15
7
7
11
16
6
8
12
17
1
2
3
14
4
13
5
Fig_3-1A
