NPM_D3Wiring Diagram - 第89页
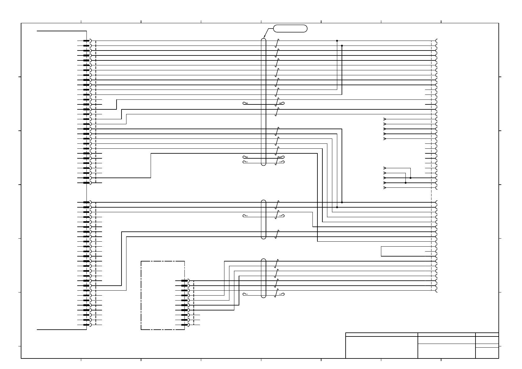
CNEXR-M 1 2 3 4 5 6 7 8 9 10 11 12 13 14 15 16 17 18 19 20 21 22 23 24 25 26 27 28 29 30 31 32 33 34 35 P24(M) GND(M) P24(C) GND(C) M-REV31 OT120 M-SPD31 EMG10 D+Main D-Main P24(M) GND(M) P24(C) GND(C) +24V GND IN114 OT1…

CNEXL-M
1
2
3
4
5
6
7
8
9
10
11
12
13
14
15
16
17
18
19
20
21
22
23
24
25
26
27
28
29
30
-K321
PNF0B4
V24(M)
GND(M)
V24(C)
GND(C)
M-REV21
OT122
M-SPD21
EMG11
D+Main
D-Main
V24(M)
GND(M)
V24(C)
GND(C)
+24V
GND
IN135
OT107
V24(M)
GND(M)
S-REV21
OT123
S-SPD21
EMG20
D+SUB
D-SUB
V24(M)
GND(M)
IN137
IN042
ILK Board #1
To
Extension
Conveyor
(Left Side)
N610159603AG
CNEXL-S
1
2
3
4
5
6
7
8
9
10
11
12
13
14
15
16
17
18
19
20
21
22
23
24
25
26
V24(M)
GND(M)
EMG20
COMP
D+MAIN
D-MAIN
+24V
LN004
GND
LN005
GND
OT004
OT005
V24(C)
GND(C)
EMG10
OT124+
D+SUB
D-SUB
+24V
OT107
COM00
OT125+
COM00
NC
NC
UL#24 80/300-0.2mm2 BU
UL2464 (SPV840) 4P×24AWG(11/0.16TA) LF BK
RD
RD/WH
BK
BK/WH
GN
GN/WH
YE
YE/WH
CNEXL01
1
2
3
4
5
6
7
8
9
10
-A02
Power Unit 1
P24
G24
RL1
CHECK3
CHECK3
CHECK2
K1K2OUT
NC
NC
NC
P24(M)
GND(M)
P24(C)
GND(C)
M-REV21
OT122
M-SPD21
EMG11
D+Main
D-Main
OT117
IN230
IN231
G24EXL
IN237
P24
G24
OPENXL
CHECK3
CHECK3
K1K2OUT
CHECK2
P24
G24
RL1
+24V
IN135
OT107
P24(M)
GND(M)
S-REV21
OT123
S-SPD21
EMG20
D+SUB
D-SUB
IN137
JST
CNEXL-MK321
PUDP-30V-S
1
2
3
4
5
6
7
8
9
10
11
12
13
14
15
16
17
18
19
20
21
22
23
24
25
26
27
28
29
30
JST
CNEXL-SK321
PUDP-26V-S
1
2
3
4
5
6
7
8
9
10
11
12
13
14
15
16
17
18
19
20
21
22
23
24
25
26
MOLEX
CNEXL
51238-5011
A1
A2
A5
A6
B1
B2
B3
B4
B5
B6
C7
B8
D1
B7
D4
D6
D7
D8
D9
D10
E10
A7
A8
B10
D2
B9
C8
C9
E7
E6
E5
A3
A4
C1
C2
C3
C4
C5
C6
D5
C10
E8
E9
E1
E2
E3
E4
A9
D3
A10
IN230 P041-7B
IN231 P041-7B
G24EXL P041-7B
IN237 P041-7B
P24XLP P042-2B
G24XLP P042-2B
P24XLR P042-2C
G24XLR P042-2C
OPENXL P042-2C
OT117R-2 P038-7D
LB/WH
LB
PK/WH
PK
LG/WH
LG
VT/WH
VT
OG/WH
OG
GY/WH
GY
BU/WH
BU
BN/WH
BN
YE/WH
YE
GN/WH
GN
BK/WH
BK
RD/WH
RD
UL2464 (SPV840) 12P×24AWG(11/0.16TA) LF BK
GN/WH
GN
BK/WH
BK
RD/WH
RD
UL2464 (SPV840) 3P×24AWG(11/0.16TA) LF BK
Note1) Connector Pin arrangement is not sequential.
Note1)
MOLEX
CNEXL01R
5557-10R-210
1
2
3
4
5
6
7
8
9
10
3 4
2464C(BPF)VVP AWG#24×3P-B
5
2464C(BPF)VVP AWG#24×12P-B
5
5
2464-1061/ⅡA(PF) LF 4P×24AWG
3
U-TKVV 4P-AWG24
4
2464-1061/ⅡA(PF) LF 12P×24AWG
3
2464-1061/ⅡA(PF) LF 3P×24AWG
3
Panasonic Smart Factory Solutions Co.,Ltd. パナソニック スマートファクトリーソリューションズ株式会社
Name
Drawing No.
Loc. No.
F4K1020-05A
1
2 3 4 5 6 7 8
A
B
C
D
E
F
1 2 3 4 5 6 7 8
A
B
C
D
E
F
Page. No.
Main Body Wiring : NPM-D3
(Left Extension Conveyor I/F)
N610159580+039AF
P039

CNEXR-M
1
2
3
4
5
6
7
8
9
10
11
12
13
14
15
16
17
18
19
20
21
22
23
24
25
26
27
28
29
30
31
32
33
34
35
P24(M)
GND(M)
P24(C)
GND(C)
M-REV31
OT120
M-SPD31
EMG10
D+Main
D-Main
P24(M)
GND(M)
P24(C)
GND(C)
+24V
GND
IN114
OT106
V24(M)
GND(M)
S-REV31
OT121
S-SPD31
EMG20
D+SUB
D-SUB
V24(M)
GND(M)
IN116
OT113
OT140
OT141
OT142
OT143
IN043
To
Extension
Conveyor
(Right Side)
-K321
PNF0B4
ILK Board #1
E5
E6
E7
C9
C8
B9
B8
B7
C7
D7
D2
A8
A7
B6
B5
B4
B3
B2
B1
A6
MOLEX
CNEXR
51233-5011
A5
A2
A1
D6
D4
D1
N610159604AF
C1
C2
C3
A3
A4
B10
C4
D5
C5
C6
CNEXR-S
1
2
3
4
5
6
7
8
9
10
11
12
13
14
15
16
17
18
19
20
V24(M)
GND(M)
EMG20
COMS
D+MAIN
D-MAIN
+24V
LN006
GND
LN007
GND
OT006
OT007
V24(C)
GND(C)
EMG10
OT126+
D+SUB
D-SUB
+24V
C10
E8
E9
UL#24 80/300-0.2mm2 BU
D8
D9
D10
E10
A9
D3
A10
E1
E2
E3
E4
1
2
3
4
5
6
7
8
9
10
P24(M)
GND(M)
P24(C)
GND(C)
M-REV31
OT120
M-SPD31
EMG10
D+Main
D-Main
+24V
S-REV31
OT121
S-SPD31
EMG20
V24(M)
GND(M)
IN116
D+SUB
D-SUB
CHECK4
CHECK4
A1
K1K2OUT
P24
G24
RL2
P24
G24
OPENXR
IN114
OT106
OT113
IN242
IN243
G24EXR
IN237
CNEXR01
P24
G24
RL2
CHECK4
CHECK4
K1K2OUT
A1
NC
NC
NC
JST
CNEXR-MK321
PUDP-36V-S
1
2
3
4
5
6
7
8
9
10
11
12
13
14
15
16
17
18
19
20
21
22
23
24
25
26
27
28
29
30
31
32
33
34
35
JST
CNEXR-SK321
PUDP-26V-S
1
2
3
4
5
6
7
8
9
10
11
12
13
14
15
16
17
18
19
20
RD
RD/WH
BK
BK/WH
GN
GN/WH
YE
YE/WH
UL2464 (SPV840) 4P×24AWG(11/0.16TA) LF BK
IN242 P041-7C
IN243 P041-7C
G24EXR P041-7D
IN237 P041-7C
P24XRP P042-2D
G24XRP P042-2D
P24XRR P042-2D
G24XRR P042-2E
OPENXR P042-2E
LB/WH
LB
PK/WH
PK
LG/WH
LG
VT/WH
VT
OG/WH
OG
GY/WH
GY
BU/WH
BU
BN/WH
BN
YE/WH
YE
GN/WH
GN
BK/WH
BK
RD/WH
RD
RD
RD/WH
BK
BK/WH
UL2464 (SPV840) 12P×24AWG(11/0.16TA) LF BK
UL2464 (SPV840) 2P×24AWG(11/0.16TA) LF BK
Note1) Connector Pin arrangement is not sequential.
Note1)
-A02
Power Unit 1
MOLEX
CNEXR01R
5557-10R-210
1
2
3
4
5
6
7
8
9
10
2464C(BPF)VVP AWG#24×2P-B
6
2464C(BPF)VVP AWG#24×12P-B
6
5 4 6
U-TKVV 4P-AWG24
5
Panasonic Smart Factory Solutions Co.,Ltd. パナソニック スマートファクトリーソリューションズ株式会社
Name
Drawing No.
Loc. No.
F4K1020-05A
1
2 3 4 5 6 7 8
A
B
C
D
E
F
1 2 3 4 5 6 7 8
A
B
C
D
E
F
Page. No.
Main Body Wiring : NPM-D3
(Right Extension Conveyor I/F)
N610159580+040AG
P040

-K322
PNF0B3
I/O Board
CNIOA
1
2
3
4
5
6
7
8
9
10
11
12
13
14
15
16
24VOUT
IN230
IN231
IN237
IN242
IN243
NC
24GND
24VOUT
IN232
IN213
OT214
OT215
OT216
OT217
24GND
BK/WH
BK
RD/WH
RD
UL2464 (SPV840) 2P×24AWG(11/0.16TA) LF BK
BK/WH
BK
RD/WH
RD
UL2464 (SPV840) 2P×24AWG(11/0.16TA) LF BK
BK/WH
BK
RD/WH
RD
UL2464 (SPV840) 2P×24AWG(11/0.16TA) LF BK
IN230
P039-7B
IN231
P039-7B
IN237
P039-7C
G24EXL
P039-7C
IN242
P040-6D
IN243
P040-6D
IN237
P040-6D
G24EXR
P040-6D
MOLEX
EXL-P
5559-04P-210
4
3
2
1
MOLEX
EXL-R
5557-04R-210
4
3
2
1
MOLEX
CNIOA
5557-16R-210
1
2
3
4
5
6
7
8
9
10
11
12
13
14
15
16
2464C(BPF)VVP AWG#24×2P-B
2464C(BPF)VVP AWG#24×2P-B
2464C(BPF)VVP AWG#24×2P-B
2464-1061/ⅡA(PF) LF 2P×24AWG 2464-1061/ⅡA(PF) LF 2P×24AWG
2464-1061/ⅡA(PF) LF 2P×24AWG
Panasonic Smart Factory Solutions Co.,Ltd. パナソニック スマートファクトリーソリューションズ株式会社
Name
Drawing No.
Loc. No.
F4K1020-05A
1
2 3 4 5 6 7 8
A
B
C
D
E
F
1 2 3 4 5 6 7 8
A
B
C
D
E
F
Page. No.
Main Body Wiring : NPM-D3
(Identification Signal)
N610159580+041AC
P041