MRF-L_MRF-LF-Rev05PDFA - 第9页

- 6 - NOTE( 注記 ) #01....FOR MRF-LF MRF − LF 用 REF.NO NOTE PART NO D E S C R I P T I O N 品 名 Qty 1 401-20451 CUT UNIT L カットユニット L 1 2 #01 401-37581 CUT UNIT SNAP I N カットユニットスナップイン 1 3 401-20452 CUTTER DRIVE UNIT L カッタードライ…

100%1 / 16
- 5 -
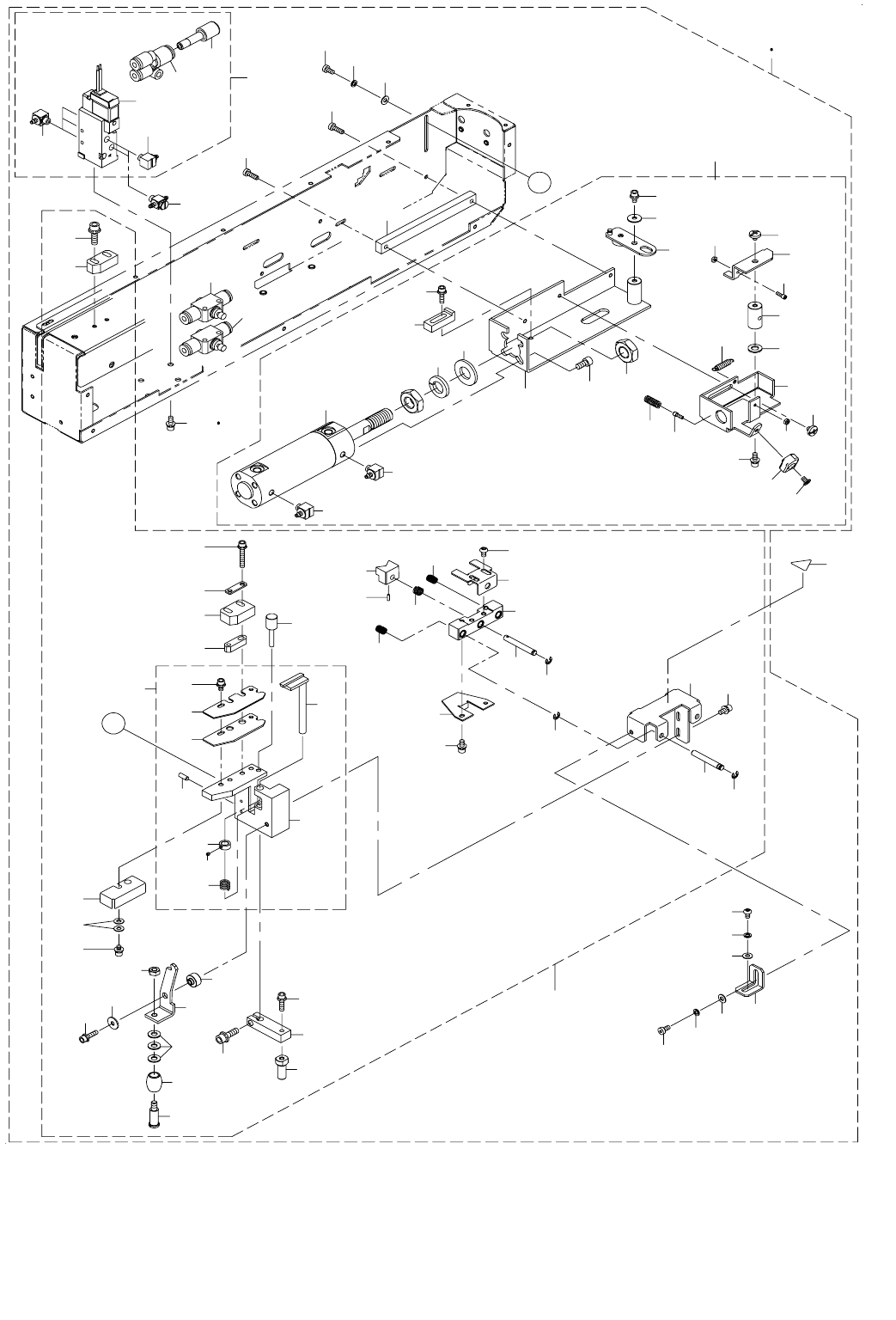
3. CUTTER UNIT COMPONENTS
カッターユニット関係
11
4
1
2
80
79
83
7
A
A
67
61
54
55
66
66
64
63
62
60
59
58
44
45
42
12
53
51
50
48
47
46
43
41
40
57
30
39
38
35
34
36
33
32
31
3
22
23
87
87
14
13
21
23
22
24
20
19
16
18
17
8
6
28
9
10
5
5
25
26
83
37
52
68
69
49
73
56
65
67
78
81
80
84
88
29
90
91
15
77
93
27
82
82
70
71
72
86
85
86
82
91
92
86
89
74
76
75
- 6 -
NOTE( 注記 ) #01....FOR MRF-LF MRF LF
REF.NO NOTE PART NO D E S C R I P T I O N
品 名
Qty
1 401-20451 CUT UNIT L
カットユニット
1
2
#01
401-37581 CUT UNIT SNAP IN
カットユニットスナップイン
1
3 401-20452 CUTTER DRIVE UNIT L
カッタードライブユニット
(1)
4 401-15868 CUT CYLINDER L
カットシリンダ
(1)
5 PJ-0460525-01 BARB ELBOW
バーブエルボ
(2)
6 SM-6050802-TN BOLT
六角穴ボルト
(4)
7 401-15854 CLAMP SLIDE BR L
クランプスライドブラケット
(1)
8 E1120-706-C00 FREE LINK JOINT SCREW
フリーリンクジョイントスクリュウ
(1)
9 WP-1052001-SC WASHER 10
平座金みがき丸 M 10
(1)
10 WS-1020002-KN SPRING WASHER M10
ばね座金 M 10
(1)
11 NM-6540013-SB NUT M10X1.25 TYPE3
六角 ナット M 10 1.25 3種
(1)
12 401-20453 CUT LINK ARM B ASSY L
カットリンクアーム アッシー
(1)
13 401-18161 STOPPER CUT
ストッパカット
(1)
14 SL-6031092-TN SCREW M3 L=10
座金付き六角穴ボルト M 3 L =10
(2)
15 WP-0531001-SC WASHER M5
平座金みがき丸 M
(1)
16 SL-6030692-TN SCREW M3 L=6
座金付き六角穴ボルト M 3 L =6
(1)
17 401-15830 CUT LINK ARM SUPPORT SH L
カットリンクアームサポートシャフト
(1)
18 SL-6030892-TN SCREW M3 L=8
座金付き六角穴ボルト M 3 L =8
(1)
19 401-15790 PRESSURE BR
プレッシャブラケット
(1)
20 E1120-706-C00 FREE LINK JOINT SCREW
フリーリンクジョイントスクリュウ
(1)
21 401-15791 LEAD CLAMP SP
リードクランプスプリング
(1)
22 401-17033 SP SH
スプリングシャフト
(2)
23 NM-6020001-SC NUT M2X0.4 TYPE1
六角ナット M 0.4 1種
(2)
24 401-22531 CUTTER RETURN SP L
カッターリターンスプリング
(1)
25 E1119-706-C00 FREE LINK CAP
フリーリンクキャップ
(1)
26 SM-1030501-SC SCREW M3 L=5
皿小ねじ M 3 L =5
(1)
27 WP-0330816-SF WASHER 3.25X10X0.8
平座金 3.25 10 0.8
(1)
28 401-15852 C C SUPPORT BASE L
CC サポートベース
(1)
29 401-20454 CUTTER UNIT L
カッターユニット
(1)
30 401-44690 CUTTER_ASM_L
カッター組_
(1)
31 401-44521 LEAD_CLAMP_F_L
リードクランプF_L
(1)
32 401-44520 CUT_BLADE_F_L
カットベースF_L
(1)
33 SL-6030692-TN SCREW M3 L=6
座金付き六角穴ボルト M 3 L =6
(2)
34 401-44522 CUT_BLADE_M_L
カットブレイドM_L
(1)
35 401-15871 CUTTER SP L
カッタースプリング
(1)
36 401-20457 CUTTER SP FIX COLLAR
カッタースプリングフィクスカラー
(1)
37 SM-8020202-UZ SCREW
止めねじ
(1)
38 PH-0300083-U0 PARALLEL PIN TYPE A 3X8
平行ピン A 種 3
(2)
39 401-44519 CUT_BASE_L
カットベース_
(1)
40 401-15787 CLAMP LINK ARM SH
クランプリンクアームシャフト
(1)
41 SL-6031292-TN SCREW M3 L=12
座金付き六角穴ボルト M 3 L =12
(1)
42 WP-0330816-SF WASHER 3.25X10X0.8
平座金 3.25 10 0.8
(1)
43 401-17034 BEARING SH
ベアリングシャフト
(1)
44 401-17477 CLAMP ROLLER
クランプローラ
(1)
45 WP-0430801-SC WASHER M4
平座金 M
(3)
46 NM-6040001-SC NUT M4X0.7 TYPE1
六角ナット M ー0.7 1種
(1)
47 401-21060 CUT LINK ARM U_L
カットリンクアームU_L
(1)
48 SL-6041492-TN SCREW M4 L=14
座金付き六角穴ボルト M 4 L =14
(1)
49 401-15859 BODY CLAMP ADJUST BR
ボディクランプアジャストブラケット
(1)
50 401-15869 CUT LINK SH L
カットリンクシャフト
(1)
51 SL-6031292-TN SCREW M3 L=12
座金付き六角穴ボルト M 3 L =12
(1)
52 401-15866 BODY CLAMP F1 L
ボディクランプ 1 L
(1)
53 SL-6032042-TN SCREW
座金付き六角穴ボルト
(2)
54 401-15858 CLAMP SUPPORT BR L
クランプサポートブラケット
(1)
55 SL-6030692-TN SCREW M3 L=6
座金付き六角穴ボルト M 3 L =6
(2)
56 401-20455 CLAMP BASE BLOCK ASM L
クランプブロックベース組
(1)
57 401-15786 CLAMP LINK ARM
クランプリンクアーム
(1)
58 401-15862 BODY CLAMP SH L
ボディクランプシャフト
(1)
59 RE-0250000-K0 E-RING 2.5
形止め輪 2.5
(1)
60 401-15798 BODY CLAMP SP
ボディクランプスプリング
(1)
61 401-35022 BODY CLAMP M L A
ボディクランプ M L A
(1)
62 PH-0150052-C0 PARALLEL PIN TYPE B 1.5X5
平行ピン B 種 1.5
(1)
63 401-15860 LEAD CLAMP M L
リードクランプ M L
(1)
64 SL-6030692-TN SCREW M3 L=6
座金付き六角穴ボルト M 3 L =6
(2)
65 401-15861 CLAMP SUPPORT SH L
クランプサポートシャフト
(2)
66 401-15864 CLAMP RETURN SP L
クランプリターンスプリング
(2)
67 RE-0250000-K0 E-RING 2.5
形止め輪 2.5
(4)
68 401-15867 BODY CLAMP F2 L
ボディクランプ 2 L
(1)
69 SL-6031492-TN SCREW M3 L=14
座金付き六角穴ボルト M 3 L =14
(2)
70 401-32210 BODY CLAMP SPACER
ボディクランプスペーサ
(1)
71 401-44030 BODY_CLAMP_PLATE
ボディークランププレート
(1)
72 401-44046 HEIGHT_ADJUSTER
ハイトアジャスタ
(1)
73 SM-3030552-TN SCREW M3 L=5
丸ねじ M 3 L =5
(2)
74 401-61498 PARTS_SIDE_COVER
パーツサイドカバー
(1)
75 SL-6030592-TN SCREW M3 L=5
座金付き六角穴ボルト
(1)
76 WP-0320501-SC WASHER M3
平座金 3.2X7X0
(2)
77 401-17044 CUT SOLENOID VALVE ASSY
カットソレノイドバルブ組
(1)
78 401-15813 SILENCER
サイレンサ
(1)
79 401-16322 RF CUT SV CABLE ASM
RF CUT SV ケーブル組
(1)
80 PJ-0460525-01 BARB ELBOW
バーブエルボ
(5)
81 PJ-3080600-05 DIFFERENT DIAMETER UNION Y
異径ユニオンワイ
(1)
82 WP-0320501-SC WASHER M3
平座金 3.2X7X0
(4)
83 PC-0124010-00 SPEED CONTROLLER
スピードコントローラ
(2)
84 SL-6030892-TN SCREW M3 L=8
座金付き六角穴ボルト M 3 L =8
(2)
85 401-23725 LOWHEAD_SCREW_M3
低頭ねじ M
(2)
86 WS-0310002-KN SPRING WASHER M3
ばね座金 3.1 5.9 0.7
(4)
87 401-41274 LOW_HEAD_CAP_SCREW_M3
低頭六角穴付ボルト M
(2)
88
#01
SL-6031092-TN SCREW
座金付き六角穴ボルト
(2)
89
#01
PJ-0460590-05 CONNECTOR
バーブ継手
(4)
90 401-20445 REINFORCE BR L
レインフォースブラケット
(1)
91 401-23725 LOWHEAD_SCREW_M3
低頭ねじ M
(2)
92 401-41185 CUT_SPACER
カットスペーサ
(1)
93 CM-3002000-01 FINGER INJURY CAUTION LABEL (16)
指怪我注意シール(16)
1
- 7 -
4. FORMING COMPONENTS(FOR MRF-LF)
フォーミング関係(MRF LF 用)
2
3
3
4
4
6
7
8
9
9
10
11
12
13
14
15
16
17
18
19
20
21
21
22
25
26
28
29
33
34
35
36
42
47
48
5
5
30
45
41
43
37
38
39
40
23
A
A
27
24
34
29
44
32
31
46
1
59
51
54
58
53
56
55
57
52
50
49