1OM-1752-002w_G5S.pdf - 第173页
1OM-1752 4-3 1304-001 项 目 内 容 线路板全体补正用示例 为了提高识别精度,在 2 点识别时,请将线路板识别标记配置到对角位置。 另外, 在 3 点识别时, 请将 2 点配置在对角位置, 余下的 1 点配置在边角附近。 线路板识别标记 线路板识别标记 线路板 线路板 F1D5 元件贴装点补正用示例 1(1 点识别 ) 请在元件贴装点中心或周围附近的任意 1 点上配置线路板识别标记。 建议位置:元件贴装点中心 …

1OM-1752
4-21304-001
项 目 内 容
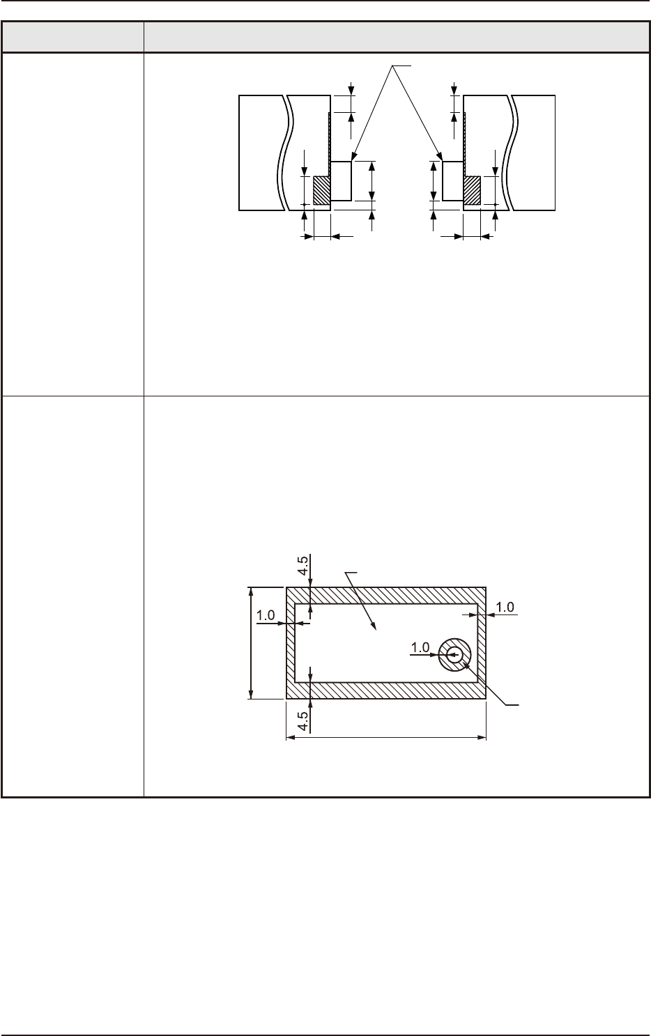
8.线路板的缺口
以及孔的限制
30.5
15
9
255
线路板流动方向
右 → 左
15
30.5
9
255
15
线路板流动方向
左 → 右
15
线路板制动器
单位 :mm
F1D3
注 : 斜线部为不能有缺口范围。
斜线部若有缺口及孔时,请进行线路板定位教示模式,确认线路板是否能
够正常被定位。
9. 线路板位置
补正方法
线路板识别
• 通过用线路板识别照相机识别线路板识别标记,补正线路板全体的位置偏离
量和线路板印刷图形的伸长量。
• 线路板全体补正在线路板上 ( 分区 1 ~ 5) 设定 2 处或 3 处线路板识别标记 ( 多
倒角线路板时,每个线路板设定 2 处 )。
• 元件贴装点补正在线路板上设定 1 ~ 2 处线路板识别标记。
此时,建议设定点对称的线路板识别标记 2 处的重心位置成为元件贴装点中
心。
(装置前侧)
可设定线路板识别标记的范围
50.0 ~ 610.0
50.0 ~ 510.0
孔等
单位:mm
F1D4
T1D1-2
1.1 SIGMA-G5S 贴片机规格

1OM-1752
4-31304-001
项 目 内 容
线路板全体补正用示例
为了提高识别精度,在 2 点识别时,请将线路板识别标记配置到对角位置。
另外,在 3 点识别时,请将 2 点配置在对角位置,余下的 1 点配置在边角附近。
线路板识别标记 线路板识别标记
线路板 线路板
F1D5
元件贴装点补正用示例 1(1 点识别 )
请在元件贴装点中心或周围附近的任意 1 点上配置线路板识别标记。
建议位置:元件贴装点中心
线路板识别标记
F1D6
元件贴装点补正用示例 2(2 点识别 )
请在元件贴装点中心附近的任意 2 点配置线路板识别标记。
建议位置: 点对称
建议选择对于元件贴装点中心成为点对称的 2 点。
(A-A’/B-B’)
• 根据本线路板识别标记 (2 点 ) 补正元件贴装位置和角度。
并且,2 点识别在局部的印刷图形的偏离和歪斜中有效。
线路板识别标记
F1D7
T1D1-3
1.1 SIGMA-G5S 贴片机规格

1OM-1752
4-4
项 目 内 容
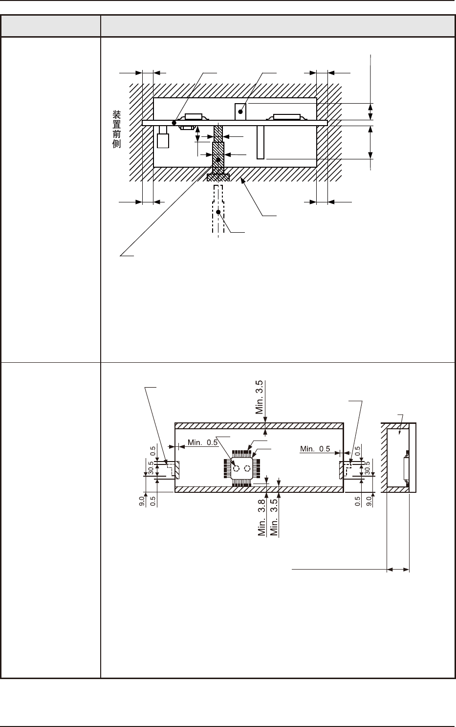
10.贴装前的线路板
条件 ( 元件高度
限制 )
3.0
线路板
线路板支撑销
(表示线路板搬送时)
先装元件不可以贴装范围
元件
3.0
线路板支撑销(多处)
φ5
φ2
4.0
3.0 3.0
高速安装头时
M ax.12.7
多功能安装头时
M ax.25.4
M ax.30
单位:mm
F1D8
注 : (a)线路板支撑销位置可用 “10mm” 间距移动。
(b)将线路板支撑销设定在触及不到已装元件的位置。
(c)上图表示支撑线路板的状态。
(d)尺寸表示设计基准尺寸。请留有富余。
11.可以贴装范围
线路板定位制动阀
(线路板流动方向:从右到左)
粘合剂
QFP
锡膏
线路板定位制动阀
(线路板流动方向:
从左到右)
线路板上面
高速安装头时 Max.12.7
多功能安装头时 Max.25.4
(装置前侧)
Note(c)
单位:mm
F1D9
注 :(a)上图表示吸嘴未从元件外形出来时的状态。
(b)斜线部表示不可以贴装的范围。
孔等开口部周围 “0.5mm” 的范围成为不可以贴装的范围。
(c)成为包括贴装元件的线路板上的最高可以贴装高度。
1304-001
1.1 SIGMA-G5S 贴片机规格