P-119-001e - 第223页
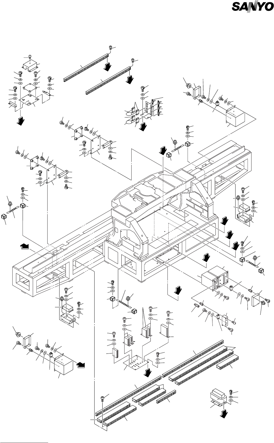
MODEL TCM-3500Z 9810-001 1 1-12 Key No. PART No. PART NAME Q' ty REMARKS 1 630 064 0045 UNIT,DRIVER 2 678FB-02D-019 2 411 088 1702 W ASHER V 5X10X1 8 FW 5 F 3 411 008 2109 W ASHER SPR 5 8 SW 5 F 4 411 043 6803 SCR P…

MODEL TCM-3500Z
9810-001
電気制御部 ELECTRICAL SECTION
Fig.11-12 機械廻り1 Miscellaneous Parts-1
A
C
D
E
F
B
50
49
48
47
41
50
49
48
46
45
51
44
43
55
52
54
53
42
C
72
B
A
71
73
73
G
G
10-1
10-5
10-1
10-6
10-2
10-3
10-4
30
31
32
24
25
23
22
21
26
32
31
30
29
28
27
D
95
90
96
97
91
87
92
92
93
93
92
89
88
21
29
28
27
32
31
30
22
23
32
26-1
31
30
24
25
1
111
115
2
4
3
112
114
113
10-2
10-1
10-5
10-1
10-6
10-3
10-4
101
103
104
105
106
107
108
20-1
20-2
20-5
20-1
20-6
20-3
20-4
E
F
116
4
3
2
108
107
106
100
102
105
104
103
19-4
19-3
19-2
19-1
56
66
61
65
62
14
13
12
11-1
14
13
12
11-2
14
13
12
11-3
15-3
15-2
15-1
15
11
16
17
18
58
59
57
19-6
19-1
19-5
111
112
113
115
114
117
1
68
67
64
63
61
7
8
9
6
5
111
115
112
113
114
116
124
119
118
118-1
124-1
120
121
122
123
4796
-002
117
116
117-1
102
108-1
117
117-1
108-1
117-1

MODEL TCM-3500Z
9810-001
11-12
Key No. PART No. PART NAME Q'ty REMARKS
1 630 064 0045 UNIT,DRIVER 2 678FB-02D-019
2 411 088 1702 WASHER V 5X10X1 8 FW5 F
3 411 008 2109 WASHER SPR 5 8 SW5 F
4 411 043 6803 SCR PAN 5X12 8 M5X12 PAN
5 630 064 0052 UNIT,DRIVER 1 678FB-02D-021
6 630 064 0816 UNIT,DRIVER 1 678FB-02D-022
7 411 088 1702 WASHER V 5X10X1 8 FW5 F
8 411 008 2109 WASHER SPR 5 8 SW5 F
9 411 043 6803 SCR PAN 5X12 8 M5X12 PAN
10 -1 630 051 5763 WIRE PARTS 4 678FB-02D-101
10 -2 411 119 2104 WASHER V 4X9X0.8 4 FW4 F
10 -3 411 008 1706 WASHER SPR 4 4 SW4 F
10 -4 411 043 5004 SCR PAN 4X8 4 M4X8 PAN
10 -6 411 036 8609 SCR PAN+SW+W 5X12 12
11 630 065 2581 PLATE 1 678FB-02V-035
11 -1 630 053 2654 UNIT,DRIVER 1 678FB-02D-082
11 -2 630 051 6555 UNIT,DRIVER 2 678FB-02D-018
11 -3 630 066 0906 UNIT,DRIVER 2 678FB-02D-152
12 411 119 2104 WASHER V 4X9X0.8 10 FW4 F
13 411 008 1706 WASHER SPR 4 10 SW4 F
14 411 042 3001 SCR PAN 4X10 10 M4X10 PAN
15 630 049 0626 UNIT,POWER 1 678FB-02D-081
15 -1 411 119 1909 WASHER V 3X7X0.5 2 FW3 F
15 -2 411 086 4408 WASHER SPR 3 2 SW3 F
15 -3 411 042 0703 SCR PAN 3X8 2 M3X8 PAN
16 411 141 4107 WASHER V 5X10X1 3 FW5
17 411 141 6705 WASHER SPR 5 3 SW5
18 630 000 7756 BOLT,HEX-SCT 3 M5X12
19 -1 630 051 5763 WIRE PARTS 2 678FB-02D-101
19 -2 411 119 2104 WASHER V 4X9X0.8 2 FW4 F
19 -3 411 008 1706 WASHER SPR 4 2 SW4 F
19 -4 411 043 5004 SCR PAN 4X8 2 M4X8 PAN
19 -6 411 036 8609 SCR PAN+SW+W 5X12 8
20 -1 630 051 5763 WIRE PARTS 2 678FB-02D-101
20 -2 411 119 2104 WASHER V 4X9X0.8 2 FW4 F
20 -3 411 008 1706 WASHER SPR 4 2 SW4 F
20 -4 411 043 5004 SCR PAN 4X8 2 M4X8 PAN
20 -6 411 036 8609 SCR PAN+SW+W 5X12 6
21 630 057 9017 SUPPORT 2 678FB-02V-004
22 630 001 0220 WASHER 4 BW5
23 411 141 6705 WASHER SPR 5 4 SW5
24 630 000 7763 BOLT,HEX-SCT 4 M5X16
25 630 057 9000 PANEL 2 678FB-02V-003
26 630 052 3010 P.C.B,MOUNT(MEKAHAI) 1 678FB-02U-001
26 -1 630 065 8989 P.C.B,MOUNT(MEKAHAI) 1 678FB-02U-004
27 411 119 1909 WASHER V 3X7X0.5 4 FW3 F
28 411 086 4408 WASHER SPR 3 4 SW3 F
29 411 162 1604 SCR PAN 3X20 4 M3X20 PAN
30 630 001 0220 WASHER 8 BW5
31 411 141 6705 WASHER SPR 5 8 SW5
NOTE

MODEL TCM-3500Z
9810-001
11-12
Key No. PART No. PART NAME Q'ty REMARKS
32 630 000 7763 BOLT,HEX-SCT 8 M5X16
41 630 065 2413 PLATE 1 678FB-02V-030
42 630 065 8965 P.C.B,MOUNT(MEKAHAI) 1 678FB-02U-003
43 411 119 1909 WASHER V 3X7X0.5 4 FW3 F
44 411 086 4408 WASHER SPR 3 4 SW3 F
45 411 113 0700 SCR PAN 3X16 4 M3X16 PAN
46 630 051 6722 COVER 1 678FB-02V-032
47 630 051 6739 COVER 1 678FB-02V-034
48 411 141 4008 WASHER V 4X9X0.8 4 FW4
49 411 141 2905 WASHER SPR 4 4 SW4
50 630 000 7619 BOLT,HEX-SCT 4 M4X8
51 630 076 1788 COVER 1 678FB-02V-031
52 411 051 2804 SCR TRS 4X8 4 M4X8 TRS
53 411 141 4107 WASHER V 5X10X1 3 FW5
54 411 141 6705 WASHER SPR 5 3 SW5
55 630 000 7756 BOLT,HEX-SCT 3 M5X12
56 630 053 4689 TRANSFORMER,POWER 1 678FB-02D-011
57 411 141 4305 WASHER V 6X12.5X1.6 4 FW6
58 411 141 3001 WASHER SPR 6 4 SW6
59 630 000 7879 BOLT,HEX-SCT 4 M6X12
68 411 113 9109 SCR TRS 5X10 26 M5X10 TRS
73 411 113 9109 SCR TRS 5X10 8 M5X10 TRS
87 630 060 7352 PANEL 1 678FB-02V-005
88 630 060 1718 CORD 1 678FB-02D-121
89 630 060 1718 CORD 1 678FB-02D-121
91 630 057 9307 CORD 1 678FB-02D-123
92 630 066 8513 CONNECTOR 2 678FB-02D-112
93 630 056 9537 CORD 2 678FB-02D-113
95 630 001 0220 WASHER 2 BW5
96 411 141 6705 WASHER SPR 5 2 SW5
97 630 000 7749 BOLT,HEX-SCT 2 M5X10
100 630 061 6392 COVER 1 678FB-02V-024
101 630 061 6408 COVER 1 678FB-02V-025
102 630 058 2574 FILTER,NOISE 2 678FB-02D-136
103 411 119 2104 WASHER V 4X9X0.8 8 FW4 F
104 411 008 1706 WASHER SPR 4 8 SW4 F
105 411 043 5004 SCR PAN 4X8 8 M4X8 PAN
106 630 001 0220 WASHER 2 BW5
107 411 141 6705 WASHER SPR 5 2 SW5
108 630 000 7756 BOLT,HEX-SCT 2 M5X12
108 -1 411 036 8609 SCR PAN+SW+W 5X12 2
111 630 060 5662 FILTER,NOISE 3 678FB-02D-135
112 411 119 2104 WASHER V 4X9X0.8 6 FW4 F
113 411 008 1706 WASHER SPR 4 6 SW4 F
114 411 043 5004 SCR PAN 4X8 6 M4X8 PAN
115 630 060 7420 ROD 12 678FB-02V-026
116 630 061 3902 COVER 3 678FB-02V-027
117 411 051 1708 SCR TRS 4X6 9 M4X6 TRS
117 -1 411 114 7807 SCR PAN+SW+W 4X10 3
118 630 066 2061 STAY 1 678FB-02V-038
NOTE