FX-3-Rev13(k-).pdf - 第31页
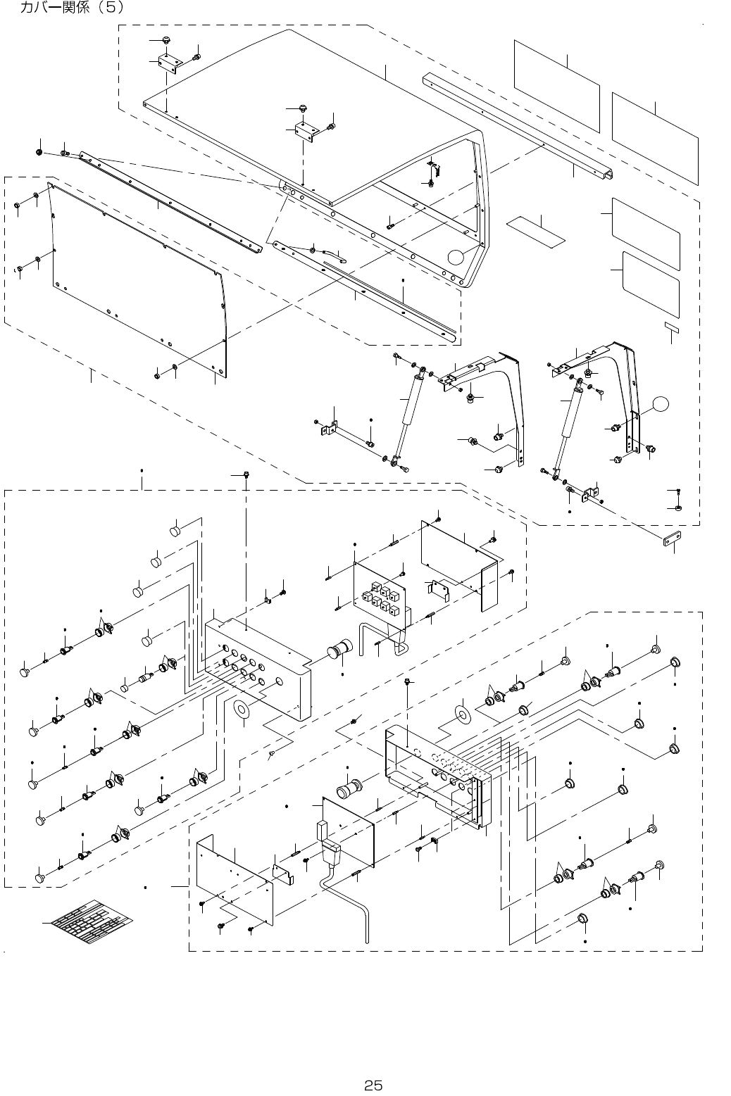
- - REF.NO NOTE PART NO D E S C R I P T I O N Qty 1 400-94081 SAFETY COVER AS SY 4 2 400-92194 SAFETY COVER FR AME (1) 3 E1318-715- 000 SAFTY COVER HINGE ( 2) 4 SM-3061252-TN SCREW M 6 L=12 (4) 5 SL-6061242-TN BOLT (4)…

- -
13.COVER COMPONENTS (5)
6 6
6 7
6 9
6 7
7 0
7 0
6 7
7 0
7 1
7 2
5 5 5 6
6 2
6 3
6 0 6 1
9 0
9 1
9 5
9 5
9 5
9 7
9 6
9 8
9 8
9 8
9 9
1 0 0
8 6 8 7
8 8 8 9
3 6
3 7
4 5 7 3
4 5 7 3
4 5
4 5 7 3
4 5 7 3
4 5 7 3
4 6
4 6
4 8 4 7
4 7
4 9
5 1
5 0
5 0 7 4
5 1
5 1
4 4 5 2
5 3
5 2
5 3
5 3
5 3
4 2 4 3
1 0 1
1 0 2
8 2
7 9 1 0 1
1 0 3
8 0
8 1
8 3
8 3
8 4 8 5
8 4 8 5
9 4
7 9 1 0 1
8 1
8 3
4 0
4 1
7 7 7 8
5 8
5 7
5 9
5 4
7
6
1 9
1 1
5
3
2 4
8
4
1 4
2
5
3
4
1 2
1 4
1 3
1 4
1 3
2 2
2 3
2 3
A
A
2 2
8
1 9
1 6
2 4
2 5 2 7
1 0
1 3
2 6
8
1 6
6 8
6 4
6 5
8
1 8
2 0
2 1
1 7
5 4
5 4
5 4
8 4 8 5
8 4 8 5
8 4 8 5
9 2
9 3
8 5
3 4
3 5
3 1
3 3
1 5
2 8
2 9
3 0
3 2
3 9
1 0 4
7 9 1 0 1
8 4 8 5
1
3 8
9
2 5 2 7
7 5 7 6

- -
REF.NO NOTE PART NO D E S C R I P T I O N Qty
1 400-94081 SAFETY COVER ASSY 4
2 400-92194 SAFETY COVER FRAME (1)
3 E1318-715-000 SAFTY COVER HINGE (2)
4 SM-3061252-TN SCREW M6 L=12 (4)
5 SL-6061242-TN BOLT (4)
6 400-92195 SAFETY COVER STAY L (1)
7 400-92196 SAFETY COVER STAY R (1)
8 SL-6061092-TN SCREW (12)
9 401-05880 CRUSH HAZARD LABEL (50) (2)
10 400-63514 SAFETY COVER HANDLE (1)
11 SM-6040502-TN BOLT (4)
12 400-63512 SCF PLATE T (1)
13 NM-6060001-SC NUT M6 (12)
14 WP-0641601-SC WASHER (12)
15 400-51621 CHIP BOX NOTICE LABEL G1 (1)
16 SL-3061232-TN SCREW (2)
17 400-69695 CAUTION SEAL (1)
18 400-49671 COVER CUSHION (1)
19 SL-6061492-TN BOLT (2)
20 SM-4030601-SC SCREW M3 X 6 (1)
21 400-69696 EXCHANGE SEAL (1)
22 400-38381 STEP SCREW (2)
23 401-10176 GAS_SPRING (2)
24 400-31237 GS BRACKET BN (2)
25 SL-6061242-TN BOLT (4)
26 SL-6041042-TN BOLT (2)
27
#03
SL-6062042-TN BOLT (4)
28 400-93168 HANDLE SUPPORT F (1)
29 NM-3040510-SL FLANGE NUT (5)
30 WP-0531001-SC WASHER (2)
31 400-93169 HANDLE SUPPORT R (1)
32 400-93170 HANDLE (1)
33 SL-6051292-TN BOLT (2)
34 400-73237 LOCATION LABEL F 1
35 400-73238 LOCATION LABEL R 1
36 SL-6041092-TN SCREW 2
37 SM-3040652-TN SCREW M4 L=6 4
38
#03
400-92163 GS BRACKET SPACER XL 4
39 400-82823 LABEL SET 1
40 SL-6040892-TN BOLT 2
41 SM-3040652-TN SCREW M4 L=6 4
42
#01
400-90177 OP SW ASSY F 1
43
#02
400-90178 OP SW ASSY F(EN) 4
44
#02
HA-0053400-4A SWITCH (1)
45
#01
HA-0053400-20 SWITCH ACTUATOR (6)
46 HA-0053400-70 LED GREEN (2)
47
#01
HA-0053400-7A LED YELLOW (2)
48
#02
HA-0053400-7A SWITCH (1)
49 HA-0055200-10 LED RED (1)
50
#01
HA-0055200-1A LENSE YELLOW (2)
51 HA-0055200-1B LENSE GREEN (3)
52
#01
HA-0053400-4A BEZEL (2)
53 HA-0055200-30 BEZEL (4)
54 HX-0032600-0A BUSH (4)
55
#01
400-92833 EMG SW(F) ASM (1)
56
#02
400-92905 EM SW F CABLE ASM(EN) (1)
57
#02
HA-0053500-20 SWITCH ACTUATOR (1)
58
#02
HA-0053500-3A BEZEL (1)
59
#02
HA-0055200-20 KEY SWITCH BEZEL (1)
60
#01
400-47520 OPERATION PCB FRONT ASM (1)
61
#02
400-47543 OPERATION PCB FRONT ASM (EN) (1)
62 HX-0029400-00 FIXED BASE (3)
63 SM-4040601-SC SCREW M4X0.7 L=6 (3)
64 400-73246 SP FINGER GUARD (1)
65 SL-4040691-SC SCREW M4 L=6 (2)
66 400-92956 SWITH PANEL (1)
67 HX-0035400-0H SPACER (6)
68 HX-0035400-0P STUD (1)
69 HX-0035400-0M STUD (3)
70 SL-4030891-SC SCREW M3X8 (6)
71 E1326-715-000 EMERGENCY SEAL (1)
72 400-47177 SWITCH PANEL COVER (1)
73
#02
HA-0053400-20 SWITCH (5)
74
#02
HA-0055200-1A SWITCH (1)
75
#04
400-77282 POSITION LABEL F 1
76
#05
400-77349 POSITION LABEL R 1
77
#01
400-90179 OP SW ASSY R 1
78
#02
400-90180 OP SW ASSY R(EN) 1
79
#02
HA-0053400-20 SWITCH (3)
80
#01
HA-0055200-1A LENSE YELLOW (1)
81 HA-0055200-1B LENSE GREEN (2)
82
#01
HA-0053400-4A BEZEL (1)
83 HA-0055200-30 BEZEL (3)
84
#01
HX-0032600-0A BUSH (6)
85
#02
HX-0032600-0A BUSH (7)
86
#01
400-92860 EMG SW(R) ASM (1)
87
#02
400-89956 EM SW R CABLE ASM(EN) XL (1)
88
#01
400-47542 OPERATION PCB REAR ASM (1)
89
#02
400-47544 OPERATION PCB REAR ASM (EN) (1)
90 HX-0029400-00 FIXED BASE (3)
91 SM-4040601-SC SCREW M4X0.7 L=6 (3)
92 400-73246 SP FINGER GUARD (1)
93 SL-4040691-SC SCREW M4 L=6 (2)
94 400-92956 SWITH PANEL (1)
95 HX-0035400-0H SPACER (6)
96 HX-0035400-0M STUD (3)
97 HX-0035400-0P STUD (1)
98 SL-4030891-SC SCREW M3X8 (6)
99 E1326-715-000 EMERGENCY SEAL (1)
100 400-47177 SWITCH PANEL COVER (1)
101
#01
HA-0053400-20 SWITCH ACTUATOR (4)
102 HA-0053400-70 LED GREEN (1)
103
#01
HA-0053400-7A LED YELLOW (1)
104 HA-0055200-10 LED RED (1)

- -
14.AIR COMPONENTS
4 6
1
8
5
6
7
9
1 0
4 9
1 5
4 5
1 3
1 4
5 0
3 4
3 5
3 2
1 7
1 7
4 3
3 1
2 2
2 2
2 5
1 9
2 2
2 0
2 3 2 4
2 6
2 7
2 8
2 9 3 3
3 7 4 1
2
3
2 5
2 5
1 7
1 8
4 8
2 5
4
2 5
1 7
8
5
6
7
9
1 0
1 8
4 7
2 1
1 1
1 2
1 1
1 2
5 1
4 4
4 2 1 6
3 0
3 6
3 9
3 8
4 0
4