FX-3-Rev13(k-).pdf - 第61页
- - REF.NO NOTE PART NO D E S C R I P T I O N Qty 1 40 0-92013 RAIL STAN D A XL 2 2 40 0-92014 RAIL STAN D B XL 2 3 SL -6083092-TN SCREW 1 6 4 40 0-46900 MOVA BLE RAIL STAND 8 5 SL -6041692-TN SCREW 3 2 6 40 0-91999 GU…

- -
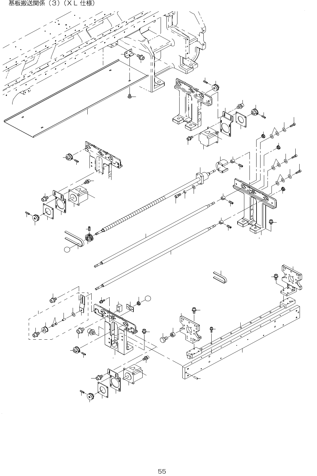
28.PWB CONVEYOR COMPONENTS (3)(TYPE XL)
5
6
1 0
1 9
1 2
1 3
1 5
1 7
1 6
1 1
2 3 8
2 0
1 8
6 6
6 7
3 9
2 4
2 5
2 6
2 7
2 8
7
2 9
3 4
3 1
3 2
3 3
3 5
3 6
1 3 7
4 6
4 7
6 2
6 3
5 7
6 0
5 8
6 1
6 4
6 5
6 5
6 4
6 6
6 7
3 9
2 1
2 2
2 3
4 0
4 1
4 0
4 1
1 8
54
A
A
3
3
4 2
4 3
4 4
3 0
8
9
5 0
4 9
5 2
4 6
4 7
5 3
7 0
7 1
7 2
7 3
4 7
5 9
4 6
5 1
5 6
4 7
4 6
6 8
6 9
4
5 5
5 4
4 5
4 8
1 4
7 4
7 4
7 4

- -
REF.NO NOTE PART NO D E S C R I P T I O N Qty
1 400-92013 RAIL STAND A XL 2
2 400-92014 RAIL STAND B XL 2
3 SL-6083092-TN SCREW 16
4 400-46900 MOVABLE RAIL STAND 8
5 SL-6041692-TN SCREW 32
6 400-91999 GUIDE BAR XL 4
7 SL-6063592-TN SCREW 16
8 PH-0600202-S0 PIN 6X20 8
9 400-92053 LINEAR WAY B XL 4
10 SM-6031602-TN SCREW M3 L=16 44
11 400-46905 RAIL STAND SPACER 8
12 SL-6063592-TN SCREW 16
13 400-92052 SCREW SHAFT XL 2
14 400-93516 SCREW_NUT_SPACER 2
15 SM-6045052-TN SCREW M4 L=50 8
16 WP-0430801-SC WASHER 4.3X9X0.8 8
17 WS-0410002-KN SPRING WASHER 8
18 SB-1080002-00 SIDE BEARING 4
19 E2012-721-000 ADJUST PLATE 2
20 SL-6031492-TN SCREW 4
21 WP-0320500-SF WASHER 3.2X7X0.5 8
22 WP-0330516-SC WASHER 3.3X8X0.5 4
23 SM-6030602-TN HEX SCREW M3 X 6 4
24 E2141-721-000 STOPPER COLLAR 2
25 SM-8040302-TP SETSCREW 4
26 E4561-729-000 TIMING PULLEY A (30) 2
27 SM-8040602-TP SCREW M4X0.7 L=6 4
28 400-92064 TIMING BELT AWC SHAFT XL 1
29 400-94145 IDLER BRACKET XL ASM 2
30 400-92030 IDLER BRACKET XL (1)
31 E4563-729-000 WIDTH ADJUST IDLER PULLEY (30) (1)
32 E2017-715-000 M LINER BUSH (2)
33 E2018-715-000 PULLEY SLEEVE (1)
34 SL-6052592-TN BOLT (1)
35 WP-0531001-SC WASHER (1)
36 SL-6051292-TN BOLT 4
37 400-92015 RAIL STAND C XL 2
38 400-92016 RAIL STAND D XL 2
39 SM-6030602-TN HEX SCREW M3 X 6 2
40 E2141-721-000 STOPPER COLLAR 1
41 SM-8040302-TP SETSCREW 2
42 400-92066 TIMING BELT JOINT XL 1
43 SM-9061613-SC SCREW M6 L=16 2
44 NM-6060001-SC NUT M6 2
45 400-93161 JOINT GUARD XL 1
46 400-00870 MOTOR PULLEY C 4
47 SM-8030602-TP SCREW M3X0.5 L=6 8
48 SM-3040652-TN SCREW M4 L=6 4
49 400-46956 CONVEYOR MOTOR BRACKET 1
50 400-00869 MOTOR ADJUST PLATE 1
51 SL-6051292-TN BOLT 2
52 400-48075 JOINT MOTOR ASM 1
53 SL-6041642-TN SCREW 4
54 400-93160 JOINT GUARD STAY XL 4
55 SL-6051292-TN BOLT 8
56 SL-6041642-TN SCREW 4
57 400-46956 CONVEYOR MOTOR BRACKET 1
58 400-00869 MOTOR ADJUST PLATE 1
59 SL-6051292-TN BOLT 2
60 400-48075 JOINT MOTOR ASM 1
61 SL-6041642-TN SCREW 4
62 400-00870 MOTOR PULLEY C 1
63 SM-8030602-TP SCREW M3X0.5 L=6 3
64 400-92029 DRIVE SHAFT XL 1
65 SB-1080002-00 SIDE BEARING 2
66 WP-0320500-SF WASHER 3.2X7X0.5 4
67 WP-0330516-SC WASHER 3.3X8X0.5 4
68 400-00870 MOTOR PULLEY C 1
69 SM-8030602-TP SCREW M3X0.5 L=6 2
70 400-46956 CONVEYOR MOTOR BRACKET 1
71 400-00869 MOTOR ADJUST PLATE 1
72 SL-6051292-TN BOLT 2
73 400-48075 JOINT MOTOR ASM 1
74 CM-3003000-02 LABEL2 (25) 3

- -
29.PWB CONVEYOR COMPONENTS (4)
3
2
3
4
4
4
5
5
6
6
5
7
8
9
1 0
1 1 4 6
1 5
1 6
1 8
1 7
1 9
2 0
2 1
2 6
2 4
2 5
3 0
2 7
3 1
2 8
2 8
2 9
3 2
3 5
2 9
3 5
3 2
3 3
3 4
3 8
3 4
3 9
1
2 2
2 3
1 2 4 3
1 4 4 5
1 3 4 4
5
7
3 0
3 7
3 6
4 0
4 1
4 1
4 2
4 2
4 2