Excellent Modular Component Placer EXCEN Series EXCEN PRO(M)/(D)/(L) Technical Reference - 第333页
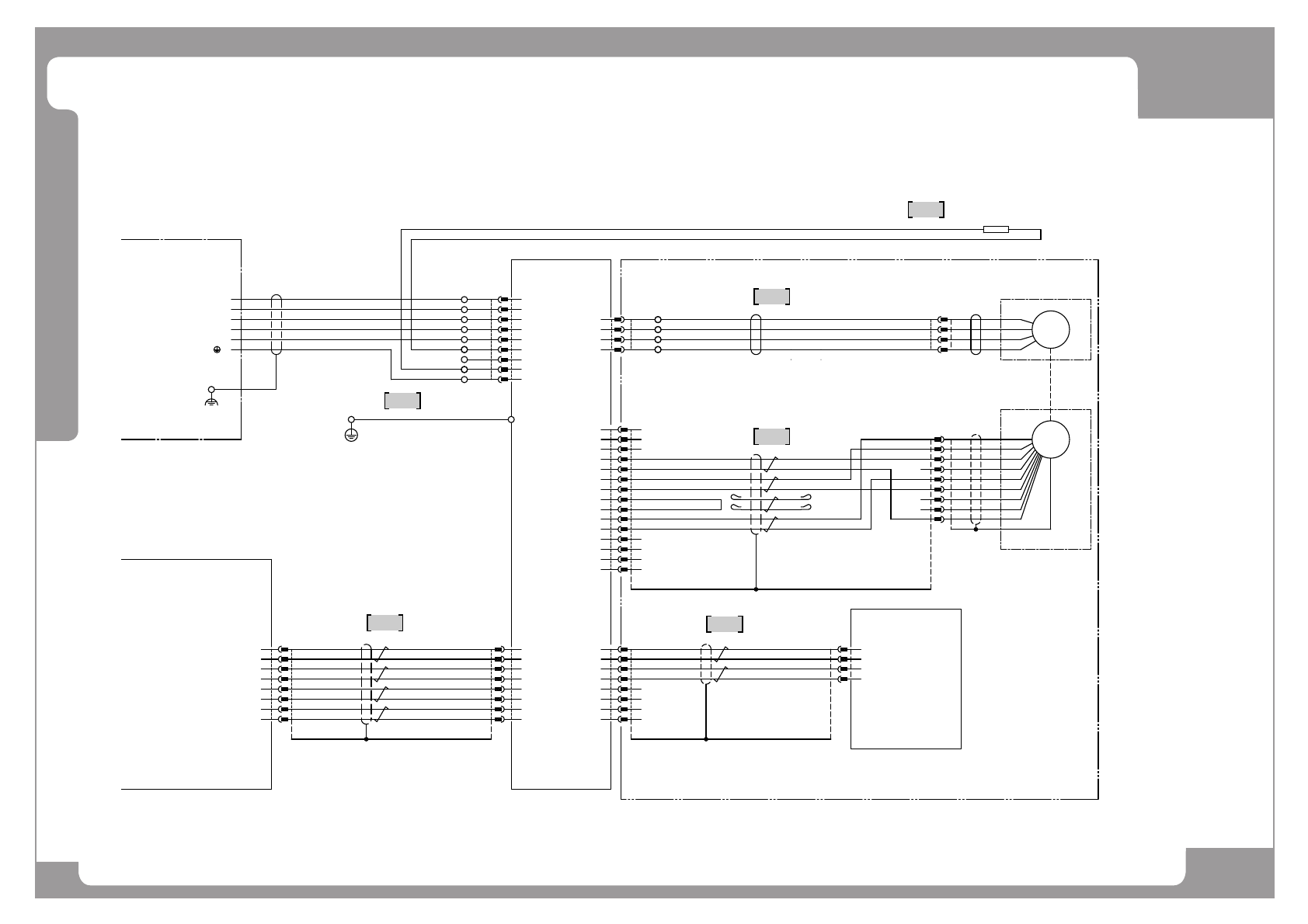
Page +$1:+$ 327 Base - ARY Axis EXCEN PRO(M) EXCEN PRO(D) EXCEN PRO(L) NO. P ART NO. P ART NAME Q'TY Old No. Supply Supply L T Reference 1 J90834000A ARY PE CABLE;V1_BASE_012 1 2 EP0 2-000662B HARNESS-AR SYNQNET CAB…

Page
+$1:+$
326
EXCEN PRO(M)
EXCEN PRO(D
)
EXCEN PRO(L)
Base - ARY Axis
-A02
L111
L211
L311
L11
L21
8
7
5
4
6
3
2
1
J11
8
7
5
4
6
3
2
1
J12
ARY-DRV-J11
8
7
5
4
6
3
2
1
AMP
5-569552-3
8
7
5
4
6
3
2
1
ARX-DRV-J12
AMP
5-569552-3
RD1+
RD1-
TD1+
TD1-
RTERM1
RTERM1
TTERM1
TTERM1
TD0+
TD0-
RD0+
RD0-
RTERM0
RTERM0
TTERM0
TTERM0
L1
L2
L3
C1
C2
+BUS
-BUS
REGEN
PE
1
J1
9
8
7
6
5
4
3
2
(-K504)
U
V
W
PE
RD1+
RD1-
TD1+
+5V
GND
DATA+
DATA-
AUXPTC
PTCRTN
+5V
GND
AUXA+
AUXA-
AUXB+
AUXB-
J2
1
2
3
4
AI 2.5-12 BU
MSTB2.5/4-STF-5.08
PHOENIX CONTACT
4
3
2
1
ARY-DRV-J2
350536-1
350780-1
AMP
ARY-MOT
1
2
3
4
15
14
13
12
11
10
9
8
7
6
5
4
3
2
1
J14
15
14
13
12
11
10
9
8
7
6
5
4
3
2
1
ARY-DRV-J14
AMP
748364-1(3ROW 15P)
1658670-1
BU UL#24 80/300-0.2mm2
(0.16mm2-4P)
EP02-001808A
RMFEV-SW-P(2517)AWG25-4P
BN
RD
OG
WH
GN
BK
YE
BU
POWER UNIT
AM03-001754A : XY HARNESS ASSY
HKIV 2.5SQ, GRN/YEL
J90834000A
ARY Driver
8
7
5
4
6
3
2
1
J12
8
7
5
4
6
3
2
1
ARY-DRV-J12
AMP
5-569552-3
RD1+
RD1-
TD1+
TD1-
RTERM1
RTERM1
TTERM1
TTERM1
TDIN+
TDIN-
RDIN+
RDIN-
-AR HEAD AMP (-K317)
G2 HEAD AMP(AR)
ARX Driver
(-K503)
1.5SQ/M4
FG
U
V
W
ARY-LIN
8
7
6
5
4
3
2
1
DDK
17JE23090-02(D1)
9
4
3
2
1
Linear
SSG
SM
ARY-axis MOTOR
U
V
W
-ARY -(M504)
8
7
6
5
4
3
2
1
9
GN
BK
RD
WH
RMFEV(2517)AWG15-4C
EP02-001800B
2.5SQ/M4
ARY-DRV-FG
FG
2.5SQ/M4
EP02-000662A
Ca5e LAN Cable 300
2
4
1
3
AR-AMP-CN13B
HIROSE
GT17HNS-4DS-HU
GT8-2428SCF(70)
GT17HNS-4DS-5CF
GT17HN-4DS-2C(B)
2
4
1
3
CN13B
RM-CAT5STB-4500
EP02-002073A
RD
WH
BK
BU
BN
GN/YE
HRZVV-SB-H(c2570)
AWG15(1.5mm2)
AWG15(1.5mm2)
AWG15(1.5mm2)
AWG19(0.65mm2)
AWG19(0.65mm2)
AWG15(1.5mm2)
1
AI 0.75-12GY
AI 2.5-12 BU
MSTB2,5/9-STF-5,08-BK
PHONENIX CONTACT
ARY-J1
9
8
7
6
5
4
3
2
AWG15x4C+AWG19x4C
-R2002
RARA
IRN 100/ULN 100C
DANAHER
S20660-SRS
DRV-J1-2
DRV-J1-4
J90834544A
-ARYDRV
-ARX
1
3
6
4
5
2

Page
+$1:+$
327
Base - ARY Axis
EXCEN PRO(M)
EXCEN PRO(D)
EXCEN PRO(L)
NO. PART NO. PART NAME Q'TY Old No. Supply Supply LT Reference
1 J90834000A ARY PE CABLE;V1_BASE_012 1
2 EP02-000662B HARNESS-AR SYNQNET CABLE 300 1 EP02-000662A
3 EP02-001800B HARNESS-ARY MOTOR PW CABLE ASSY 1
4 EP02-001808A HARNESS-ARY DRIVER ENC CABLE ASSY 1
5 EP02-002073A HARNESS-ARY SYNQNET IN ROBOT CABLE 1
6 J90834544A REGEN_RESISTER_ASSY;V1_BASE_202 1

Page
+$1:+$
328
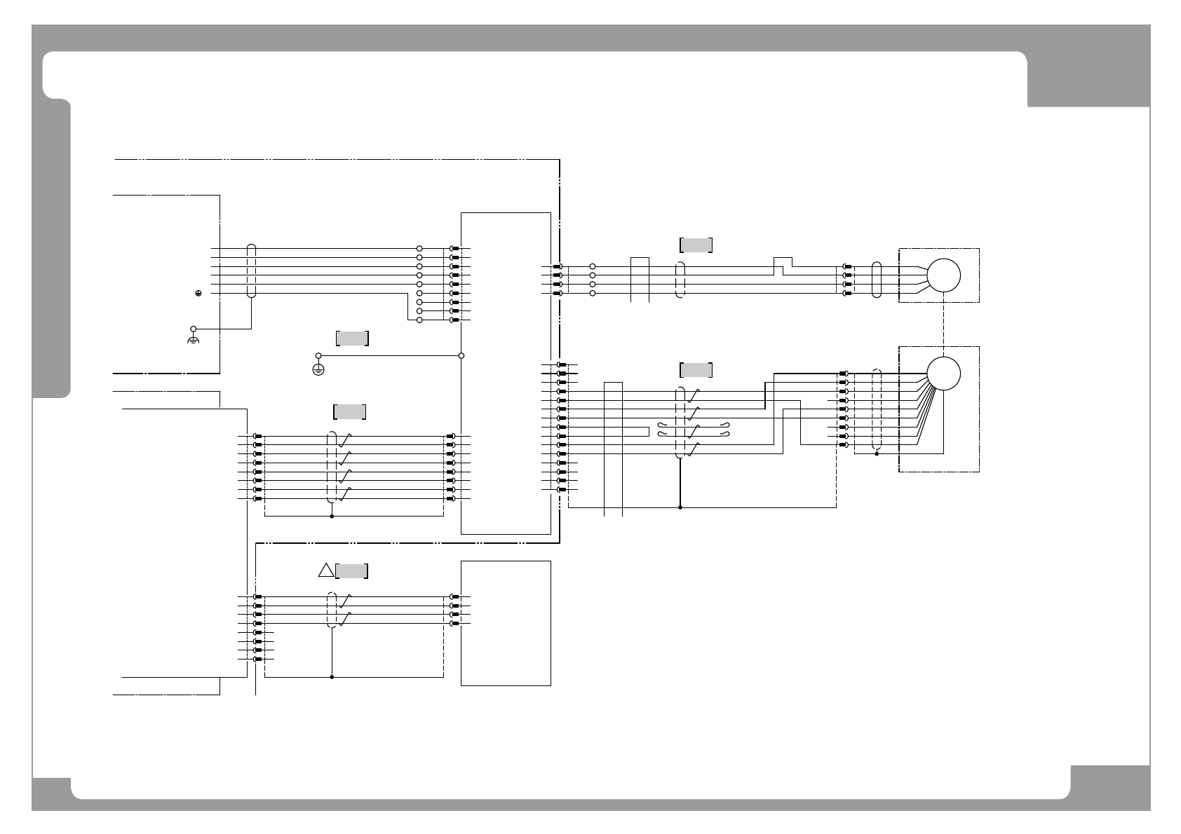
EXCEN PRO(M)
EXCEN PRO(D
)
EXCEN PRO(L)
Base - BFX Axis
-A02
L111
L211
L311
L11
L21
MOTION CONTROLER
CPU BOX
8
7
5
4
6
3
2
1
J11
8
7
5
4
6
3
2
1
J12
BFX-DRV-J11
8
7
5
4
6
3
2
1
AMP
5-569552-3
-MOTION#2
8
7
5
4
6
3
2
1
MTN2-OUT-J12
AMP
5-569552-3
RD1+
RD1-
TD1+
TD1-
RTERM1
RTERM1
TTERM1
TTERM1
TD0+
TD0-
RD0+
RD0-
RTERM0
RTERM0
TTERM0
TTERM0
L1
L2
L3
C1
C2
+BUS
-BUS
REGEN
PE
1
J1
9
8
7
6
5
4
3
2
-A01
-BFXDRV
RD
WH
BK
BU
BN
GN/YE
VCT 6C 0.75SQ
AWG17(1.0mm2)
AWG17(1.0mm2)
AWG17(1.0mm2)
AWG19(0.65mm2)
AWG19(0.65mm2)
AWG17(1.0mm2)
1.5SQ/M4
FG
1
UA-F1012
MSTB2,5/9-STF-5,08-BK
PHONENIX CONTACT
BFX-J11
9
8
7
6
5
4
3
2
U
V
W
PE
RD1+
RD1-
TD1+
+5V
GND
DATA+
DATA-
AUXPTC
PTCRTN
+5V
GND
AUXA+
AUXA-
AUXB+
AUXB-
J2
1
2
3
4
UA-F1012
MSTB2.5/4-STF-5.08
PHOENIX CONTACT
4
3
2
1
BFX-DRV-J2
V
U
W
350536-1
350780-1
AMP
BFX-MOT
1
2
3
4
15
14
13
12
11
10
9
8
7
6
5
4
3
2
1
J14
15
14
13
12
11
10
9
8
7
6
5
4
3
2
1
BFX-DRV-J14
DDK/SKE
17JE-23090-02(3ROW 15P)
17SE-9H-1C
EP02-001809A
RMFEV-SWST(20276)AWG25-4P
POWER UNIT
HKIV 2.5SQGN/YE
J90834001A
BFX Driver
8
7
5
4
6
3
2
1
J11
TD0+
TD0-
RD0+
RD0-
RTERM0
RTERM0
TTERM0
TTERM0
-BR HEAD AMP
G4 HEAD AMP(BR)
EP02-000938B
BFX-LIN
8
7
6
5
4
3
2
1
DDK
17JE23090-02(D1)
9
4
3
2
1
Linear
SSG
SM
BFX-axis MOTOR
U
V
W
-BFX
8
7
6
5
4
3
2
1
9
UTP-4PR 24AWG(CAT5e)
(0.75mm2-4C)
EP02-001801A
RMFEV(2517)AWG19 4C
WH
RD
BK
GN
2.5SQ/M4
BFX-DRV-FG
2.5SQ/M4
8
7
5
4
6
3
2
1
MTN2-IN-J11
AMP
5-569552-3
RDOUT+
RDOUT-
TDOUT+
TDOUT-
RM-CAT5STC AWG26/2P
EP02-001828B
WH/GN
GN
WH/OG
OG
2
4
1
3
CN13C
2
4
1
3
BR-AMP-CN13C
HIROSE
GT17HNS-4DS-HU
GT8-2428SCF(70)
GT17HNS-4DS-5CF
GT17HN-4DS-2C(C)
J90611803A : XY ROBOT HARNESSJ90611798A : XY HARNESS
TDK
ZCAT3035-1330
TDK
ZCAT3035-1330
1
1
4
5
2
3