1OM-1842-003_G5S_Vol1.pdf - 第193页
1OM-1842 4-3 1303-001 Elemento Descrizione 8. Limitazione di ritagli e fori sulle PCB Arresto posizionamento PCB Direzione flusso PCB da sinistra a destra Direzione flusso PCB da destra a sinistra Unità: mm Nota: Le aree…

1OM-1842
4-21303-001
Elemento Descrizione
7. PCB applicabile Dimensioni : 50 × 50 a 610 × 510 mm
(Quattro angoli: R1 a R1.5 mm)
Spessore : da 0.3 a 5.0 mm
Distorsione : I due requisiti che seguono devono essere soddisfatti.
• 0,2 mm o meno per 50 mm (lunghezza unità)
Esempio: La distorsione deve essere di 0,8 mm o meno quando le
dimensioni PCB sono di 200 mm.
• 1.0 mm al massimo
Esempio: La distorsione deve essere di 1,0 mm o meno quando le
dimensioni PCB sono di 250 mm.
Distorsione
Massa : 2,5 kg al massimo (PCB completata)
Tuttavia, per le dimensioni X di 280 mm o meno, la massa massima è di
1,5 kg (per la PCB completata)
Materiale : Vetro epossidico
Ceramica (opzionale)
Note:
(a) Consultare il nostro ufcio Marketing o Vendite per il vetro epossidico di
colore chiaro.
(b) In base al materiale, forma, distorsione, massa o condizioni della
supercie (lucida) della PCB, è necessario vericare se la PCB può essere
trasferita, oppure confermare che i componenti possano essere posizionati
normalmente.
(c) Quando non si utilizza il supporto di trasferimento PCB (trasportatore),
ordinare l'unità di backup (opzionale) alla nostra azienda.
T1D1-2
1.1 Speciche del sistema di assemblaggio chip SIGMA-G5

1OM-1842
4-31303-001
Elemento Descrizione
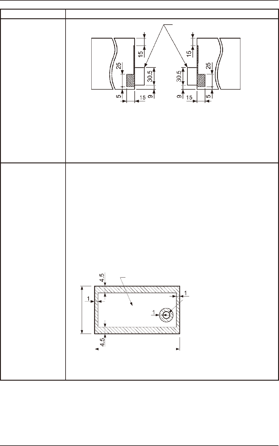
8. Limitazione di
ritagli e fori sulle
PCB
Arresto posizionamento PCB
Direzione flusso PCB
da sinistra a destra
Direzione flusso PCB
da destra a sinistra
Unità: mm
Nota:
Le aree ombreggiate indicano le aree in cui non dovrebbero esserci ritagli.
Quando nell'area ombreggiata è presente un ritaglio o un foro, eseguire un
normale posizionamento PCB.
9. Metodo di correzione
della posizione PCB
Riconoscimento PEC
• Riconoscendo i punti di riferimento utilizzando la telecamera PEC, la deviazione
della posizione che copre tutta la supercie della PCB e l'espansione dei modelli
stampati sulla PCB possono essere corrette.
• Per correggere la deviazione della posizione che copre tutta la supercie della PCB, i
punti di riferimento devono essere posti su due o tre punti della PCB (zone da 1 a 5).
Per ciascuna PCB di una unità PCB multipla sono necessari due punti di riferimento.
• Per correggere la deviazione di posizione dei punti di posizionamento dei
componenti, mettere uno o due punti di riferimento sulla PCB. In questo caso,
si consiglia di mettere due punti di riferimento in modo simmetrico così che il
centro di gravità (il centro dei punti di riferimento) diventi il centro del punto di
posizionamento dei componenti.
Campo in cui può essere messo un punto di
riferimento
(Dal lato della macchina)
Foro, eccetera
50 a 610
50 a 510
Unità: mm
T1D1-3
1.1 Speciche del sistema di assemblaggio chip SIGMA-G5

1OM-1842
4-4
Elemento Descrizione
Esempio:
Per correggere la deviazione di posizione che copre tutta la supercie della PCB
(correzione generale PCB)
Per migliorare la precisione del riconoscimento, mettere i punti di riferimento
diagonalmente su due punti della PCB quando è selezionata la modalità di
riconoscimento 2 punti. Nel caso di PCB con modalità di riconoscimento 2 punti,
mettere diagonalmente due punti di riferimento e un punto di riferimento vicino ad
uno degli angoli rimanenti.
Esempio 1:
Per correggere i punti componenti
(1-riconoscimento punti)
Mettere un punto di riferimento al centro del punto di posizionamento
componente o un punto voluto attorno al centro.
Posizione raccomandata: Centro del punto di posizionamento componente
Punto di riferimento
Esempio 2:
Per correggere i punti di posizionamento componente
(2-riconoscimento punti)
Mettere i punti di riferimento sui due punti voluti attorno al centro del
punto di posizionamento componente.
Posizione raccomandata: Simmetria di punti
Si raccomanda di mettere i due punti (punti di riferimento)
simmetricamente su entrambi i lati del centro della posizione
di posizionamento.
(A-A’/B-B’)
• Questi punti di riferimento sono utilizzati per correggere la posizione e il teta (angolo) del
componente.
Il riconoscimento 2 punti è efcace per correggere la parte deviata e distorta dei pattern di
stampa.
T1D1-4
Punto di riferimento
Punto di
riferimento
PCB
PCB
1303-001
1.1 Speciche del sistema di assemblaggio chip SIGMA-G5
Punto di riferimento
A
A’
B’
B