P-0192-001.pdf - 第115页
Key No. P AR T No. P AR T NAME Q’ ty REMARKS NOTE 113 MODEL TIM-5200F/R 0307-001 TT-1 1 630 121 7277 SUPPORT 2 805TT-010-002 2 630 121 7383 PLA TE 1 805TT-010-502 3 630 121 7284 SUPPORT 2 805TT-010-503 4 630 124 4204 PLA…

112
MODEL TIM-5200F/R
0307-001
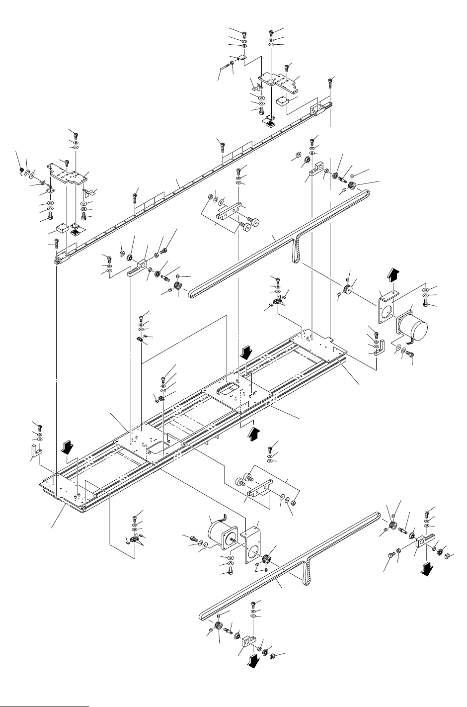
トラバ-ス部 TRAVERSE SECTION
Fig. TT-1 トラバ-ス取付ブロック Traverse Mounting Block
4
4
5
5
2
1
1
66
67
68
66
65
67
68
59
57
56
59
57
56
59
57
56
59
57
56
58
57
56
58
57
56
58
57
56
66
67
68
66
67
68
66
67
68
66
67
68
3
65
65
65
65
8
65
65
8
65
65
8
65
65
8
30
30
7
66
67
68
9
66
67
68
66
67
68
65
9
7
10
10

Key No. PART No. PART NAME Q’ty REMARKS
NOTE
113
MODEL TIM-5200F/R
0307-001
TT-1
1 630 121 7277 SUPPORT 2 805TT-010-002
2 630 121 7383 PLATE 1 805TT-010-502
3 630 121 7284 SUPPORT 2 805TT-010-503
4 630 124 4204 PLATE 2 805TT-010-504
5 630 121 7345 PLATE 2 805TT-010-505
7 630 121 7369 PLATE 2 805TT-010-507
8 630 121 7413 BOLT 4 805TT-010-508
9 630 121 7390 PLATE 2 805TT-010-509
10 630 121 7291 SUPPORT 2 805TT-010-510
30 630 059 0029 NUT 40 805TT-010-530
56 411 141 4503 WASHER V 8X17X1.6 14 FW8
57 411 141 3100 WASHER SPR 8 14 SW8
58 630 000 8012 BOLT,HEX-SCT 6 M8X20
59 630 000 8036 BOLT,HEX-SCT 8 M8X30
65 411 141 0703 NUT HEX 6 12 M6
66 411 141 4107 WASHER V 5X10X1 40 FW5
67 411 141 6705 WASHER SPR 5 40 SW5
68 630 091 5402 BOLT,HEX-SCT 40 M5X8

114
MODEL TIM-5200F/R
0307-001
トラバ-ス部 TRAVERSE SECTION
Fig. TT-2 テ-ブル駆動部 Table Driving Section
194
See Fig.TT-1
Key No.7
171
175
127
129
171
173
109
116
176
130
131
171
118
172
173
174
110
110
172
172
174
171
129
172
173
174
172
171
175
127
174
171
180
132
133
172
173
106
C
192
192
101
122
104
138
141
108
101
108
101
121
138
101
122
104
192
105
B
168
167
166
125
161
191
103
191
117
162
163
102
166
167
168
125
166
168
167
A
C
168
166
161
117
162
163
102
191
103
105
167
163
162
161
138
101
122
101
108
104
121
192
192
B
163
162
161
138
101
122
101
108
104
192
192
141
193
194
A
192
120
157
156
107
163
162
161
113
113
112
188
187
186
188
187
186
112
113
113
188
187
186
112
113
163
161
162
157
163
161
120
162
156
107
See Fig.TT-1
Key No.7
See Fig.TT-1
Key No.9
See Fig.TT-1
Key No.9
174
174
118
163
162
161
188
187
186
113
112
193