CP-742ME-03 - 第126页
R ・θ 上下 1 0 s t 1 0 s t U P & D O W N , R ・θ M O N T E E / D E S C R . θ 1 0 s t ノズル上下 9 s t 9 s t U P & D O W N , N O Z Z L E M O N T E E / D E S C B U S E 9 s t F ・θ 上下 8 s t 8 s t U P & D O W N , F ・θ M O …

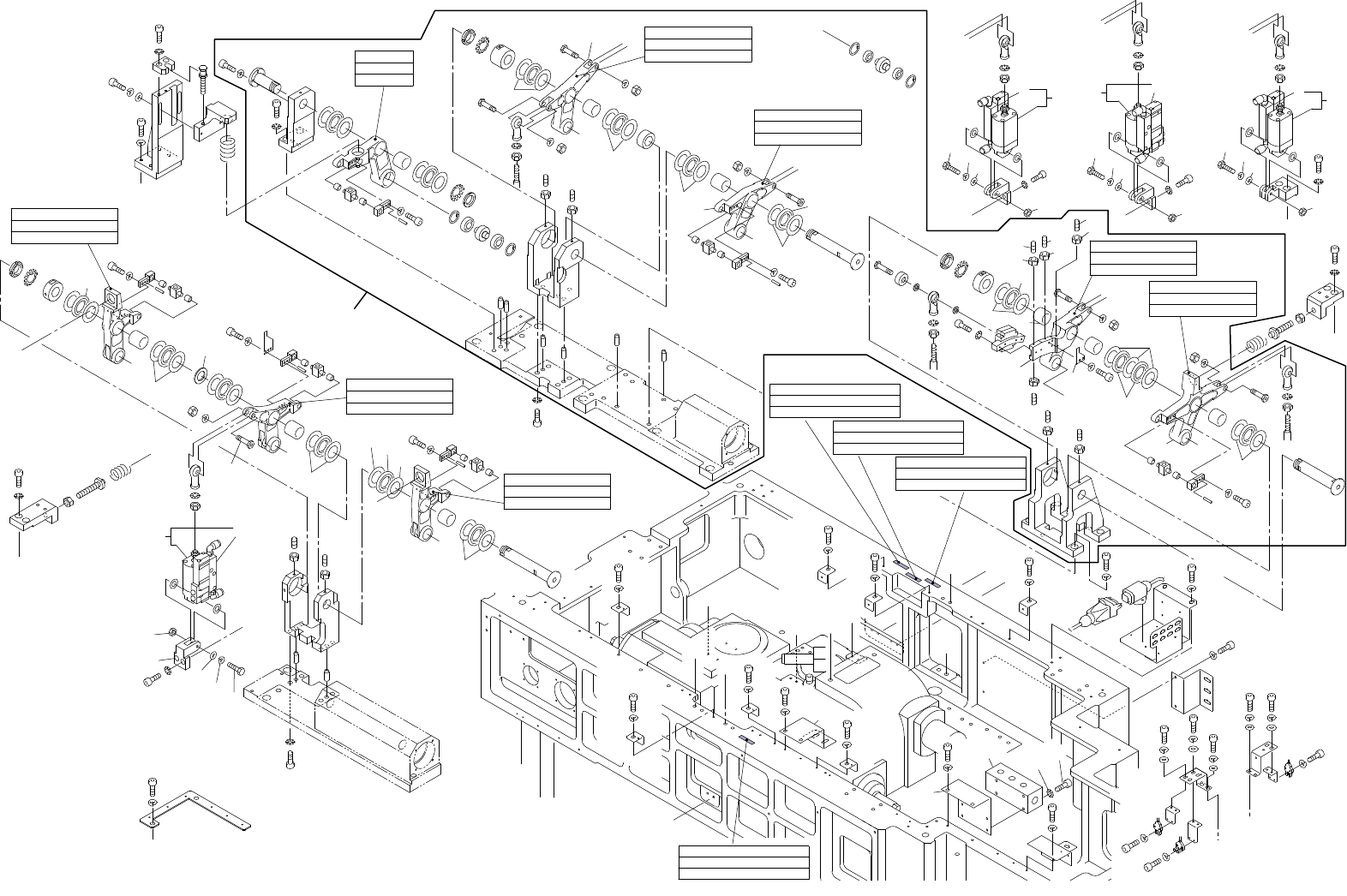
24.1.カムボックス(DCPA)
24.1.Cam box(DCPA)
番号 図番 & コード番号 個数 品名 規格 備考
No. Drg.No. & Code No. QTY Description Rating Remarks
293 H2064A 2 PIN, SPRING ピン スプリング ゚5X30L 重荷重用
294 H5278T
BOLT, HEX SOCKET
ボルト 六角穴
M3X18L
295 DGPA0030 1 BKT BKT
296 S2010K 1 ILLUMINATION LAMP 照明灯 FT1101-GL16(60Hz) 注2.Note.2
297 ADCPA8020 1 COVER, ACRYLIC カバー アクリル
307 ADCPA8070 1 GUIDE, RAIL ガイド レール
308 ADCPA8041 1 HANDLE ハンドル
309 DCPA1160 1 DOG ドッグ
310 DCPA1180 1 DOG ドッグ
311 S2010F 1 ILLUMINATION LAMP 照明灯 FT11001-GL15(50Hz) 注2.Note.2
312 K52565 SCREW, HEX SOCKET BUTTON 小ネジ六角穴ボタン M4X6L
注1.No.117,118,119,120は組み合わせ部品ですので同時に交換してください。
Note.1: No.117,118,119 and No.120 are used as set. If the replacement of one of the parts is necessary all must be replaced.
注2.(仕様選択部品)S2010M(60Hz),S2010H(50Hz)
Note.2:(Specified parts selection)S2010M(60Hz),S2010H(50Hz)
PARTS LIST CP-743ME,CP-742ME ver03
24 - 6
24.1.カムボックス(DCPA)
24.1.Cam box(DCPA)

R・θ 上下
10st
10st UP&DOWN,R・θ
MONTEE/DESC R.θ
10st
ノズル上下
9st
9st UP&DOWN,NOZZLE
MONTEE/DESC BUSE
9st
F・θ 上下
8st
8st UP&DOWN,F・θ
MONTEE/DESC F.θ
8st
ノズル上下
1st
1st UP&DOWN,NOZZLE
MONTEE/DESC BUSE
1st
残テープカット
1st
1st CUT
COUPE
1st
P・θ 上下
2st
2st UP&DOWN,P・θ
MONTEE/DESC P.θ
2st
切替クラッチ前後
14st
14st FWRD&BWRD,KNOTCH
SELECTION BUSE VALVE PNEUMATIQUE
14st
送り爪前後
1st
1st FWRD&BWRD,FEEDING JAW
AV/AR ALIMENTATION
1st
9st ノズル上下10SOL-5,6
9st UP&DOWN NOZZLE
10SOL-5,6
10SOL-5,6
9st MONTEE/DESC BUSE
10SOL-7,8 14st 切換クラッチ前後
10SOL-7,8
14st SELECT CLUTCH
10SOL-7,8
14st AV/AR SELECTION VERROU
10SOL-3,4 1st 送り前後
10SOL-3,4
1st FWRD&BWRD,FEEDING
10SOL-3,4
1st AV/AR ALIMENTATION
10SOL-1,2 1st ノズル上下
1st UP&DOWN NOZZLE
10SOL-1,2
10SOL-1,2
1st MONTEE/DESC BUSE
A
139
x9
241
268
248
269
277
276
277
276
269
246
281
280
269
257
238
259
280
257
238
257
238
228
255
228
255
257
13
283
256
233
283
256
233
13
257
270
332
228
255
283
256
233
Z
Z
167
167
167
34
34
M
179
179
178
178
215
107
F
E
164
156
156
104
104
105
102
103
Z
166
M
258
74
186
54
316
317
318
316
317
318
316
317
318
313
314
315
313
314
315
313
314
315
313
314
315
313
314
315
313
314
315
313
314
315
313
314
315
316
317
318
H
63
63
G
171
47
218
18
155
155
44
18
155
155
44
18
176
177
177
176
177
177
128
176
177
177
177
176
174
129
173
155
155
44
174
M
130
136
177
176
177
163
292
203
134
M
176
125
247
269
269
247
277
276
276
277
257
238
230
266
273
278
256
232
259
280
259
280
281
269
246
268
241
269
247
280
269
280
269
269
284
278
273
278
19
278
20
241
268
269
280
280
257
277
276
277
276
238
259
259
280
280
259
269
247
238
257
256
234
258
245
245
258
263
268
243
167
L
176
167
167
M
M
34
34
34
34
34
34
180
180
181
181
76
127
155
155
44
18
184
292
163
176
173
176
133
126
172
122
43
42
121
217
47
D
170
Y
J
K
K
J
Y
186
269
284
155
155
44
18
166
108
151
95
186
186
296
284
95
206
55
208
176
177
97
173
175
176
186
A
63
63
166
M
166
132
177
176
177
137
177
176
177
173
163
292
204
123
155
155
44
18
21
135
166
186
5
1
8
4
6
2
207
174
177
M
54
54
C
63
63
B
63
63
152
258
16
74
186
166
131
176
177
175
176
177
177
177
177
163
292
185
124
298
257
236
H
306
259
247
E
233
256
305
242
258
299
302
256
233
241
258
301
303
304
240
298
257
236
298
257
236
300
256
232
298
257
236
298
257
236
298
257
236
298
257
236
G
F
P
C
G
D
L
P
A
B
152
16
7
3
152
258
16
74
152
258
16
74
24.2.カムボックス(DCPA)
24.2.Cam box(DCPA)
24.2.カムボックス(DCPA)
24.2.Cam box(DCPA)
24 - 7
CP-743ME,CP-742ME PARTS LIST ver03

24.2.カムボックス(DCPA)
24.2.Cam box(DCPA)
番号 図番 & コード番号 個数 品名 規格 備考
No. Drg.No. & Code No. QTY Description Rating Remarks
1 ADCPA8111 1 CYLINDER シリンダ VALVE SOL+CYLINDER
2 ADCPA8121 1 CYLINDER シリンダ VALVE SOL+CYLINDER
3 ADCPA8131 1 CYLINDER シリンダ VALVE SOL+CYLINDER
4 ADCPA8141 1 CYLINDER シリンダ VALVE SOL+CYLINDER
5 ADCPA8150 1 VALVE, SOL バルブ SOL VALVE SOL
6 ADCPA8160 1 VALVE, SOL バルブ SOL VALVE SOL
7 ADCPA8170 1 VALVE, SOL バルブ SOL VALVE SOL
8 ADCPA8180 1 VALVE, SOL バルブ SOL VALVE SOL
12 H5237A BOLT, HEX SOCKET ボルト 六角穴 M6X30L HRC34-44
13 H5300A BOLT, HEX SOCKET ボルト 六角穴 M5X15L
16 W1051A WASHER, FLAT ワッシャ 平 6M/MX1.6X125(1W-6)
18 DCPA0800 6 HOLDER, PIN ホルダ ピン
19 N4025A BOLT, HEX SOCKET ボルト 六角穴 M3X16L
20 N4025Z BOLT, HEX SOCKET ボルト 六角穴 M3X20L
21 ADCPA8061 1 SHAFT, CAM シャフト カム
34 DCPA1300 8 PIN, LOCATING ピン 位置決め
42 DCPA1360 1 BKT BKT
43 DCPA1370 1
BOLT, ADJUSTING
ボルト セリ
44 DCPA0810 6 PIN ピン
47 DCPA0631 3 BOLT ボルト
54 DCPA0560 3 BKT, CYLINDER BKT シリンダ
55 DCPA0570 1 BKT, CYLINDER BKT シリンダ
63 DCPA1380 8 SPACER スペーサ
74 DCPA1332 4 PIN ピン
76 DCPA0790 1 ROLLER ローラ
77 DCPA0300 1 PLATE プレート
95 DCPA0900 2 COLLAR カラー
97 DCPA0711 1 SHAFT シャフト
102 DCPA1210 1 BKT, SENSOR BKT センサ
103 DCPA1220 1 BKT, SENSOR BKT センサ
104 DCPA0970 2 BKT, SENSOR BKT センサ
105 DCPA0990 1 BKT, SENSOR BKT センサ
107 DCPA1011 1 DOG ドッグ
108 DCPA0911 1 BOLT ボルト
121 DCPA0920 1 BKT BKT
122 DCPA1340 1 BKT BKT
123 DCPA1350 1 BKT BKT
124 DCPA0650 1 BKT BKT
125 DCPA0670 1 BKT BKT
126 DCPA0680 1 BKT BKT
127 DCPA0110 1 LEVER レバー
128 DCPA0120 1 LEVER レバー
129 DCPA0130 1 LEVER レバー
130 DCPA0140 1 LEVER レバー
PARTS LIST CP-743ME,CP-742ME ver03
24 - 8
24.2.カムボックス(DCPA)
24.2.Cam box(DCPA)