FX-3R_(操作手册.管理员)OperationManual2_Rev00_C - 第23页
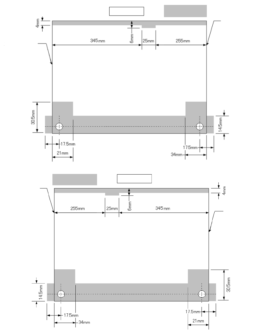
操作手册 II 1-13 2)支撑销不可设置的范围(基板背面图) * 使用定心销(选购项)时,需要追加※标记尺寸限制范围。 图 1-4-4-2 (a) 基板背面不可设置范围 (L 基板规格) 基板传送方向为反方向(向左流)时,支撑销不可设置范围与图成左右对称。 注意 ・ L 基板规格 ※ 支撑销 不可设置范围 传送轨道固定侧 挡块设置位置 ※ ※ ※ ※ 基板传送方向

操作手册 II
1-12
1-4-4 印刷基板规格
(1)基板条件 (单位:mm)
最小尺寸(L
1
×W
1
)
注1
最大尺寸(L
2
×W
2
)
注1
最小厚度 T
1
最大厚度 T
2
L 基板规格 50×50 410×360 注 2 0.3 4.0
L-Wide 带选购项 50×50 510×360 注 2 0.3 4.0
XL 基板规格 50×50 610×510 注 2 0.3 4.0
最大容许重量 2000 g
弯翘容许值
平均每 50 mm 上下 0.2 mm 以下,且上翘·下翘均在 1 mm 以下
(依照 JIS B 8461 标准)。
注 1:L 表示传送方向尺寸,W 表示 L 的直角方向,W/L=2 以下。
注 2:长尺寸基板对应机型,利用基板 2 次传送,L 尺寸可被扩展到 800mm。
* 不论何种基板材质、基板颜色,凡是反射率低的基板,有时传感器无法检测出。
(2)基板限制条件
1)不可贴片的范围
注 1:工厂出货时的尺寸。
注 2:外形基准(标准)时不需要。
注 3:对应长尺寸基板时扩展到 800mm。
图 1-4-4-1 基板表面不可贴片的范围(基板表面图)
基板传送方向
不可贴片范围
6mm(销的直径为 4mm 时)注 2
L 基板规格 50~410 mm 注 3
L-Wide 基板规格 50~510 mm 注 3
XL 基板规格 50~610 mm 注 3
特别订货 5~7mm (工厂出货时对应)
L/L-Wide 基板规格 50~360 mm
XL 基板规格 50~560 mm
5±0.1mm注 1
5±0.1mm
3mm
3mm

操作手册 II
1-13
2)支撑销不可设置的范围(基板背面图)
* 使用定心销(选购项)时,需要追加※标记尺寸限制范围。
图 1-4-4-2(a) 基板背面不可设置范围 (L 基板规格)
基板传送方向为反方向(向左流)时,支撑销不可设置范围与图成左右对称。
注意
・L 基板规格
※
支撑销
不可设置范围
传送轨道固定侧
挡块设置位置
※
※
※
※
基板传送方向

操作手册 II
1-14
・XL基板规格
* 使用定心销(选购项)时追加※标记尺寸限制范围。
图 1-2-5-2(b) 基板背面不可设置范围 (XL 基板规格)
※
※
※
※
※
※
※
挡块设置位置
挡块设置位置
挡块设置位置
挡块设置位置
传送轨道固定侧
传送轨道固定侧
支撑销
不可设置的范围
支撑销
不可设置的范围
R 站点
L 站点
不限定传送方向
不限定传送方向