80S15贴片机电路图 - 第155页
4 - 19 1710460- Y0029- 000-0 2-N-01-4 Illumin ation contr ol for P CB came ra 00325581 -0301 01MD4 Conve rsion b oard, PCB h andling 1. 3. 1. 10.04.97 10.04.97 10.04.97 Tu. Tu. Tu. 02.07.1996 02.07.1996 S MD Placement Sy…

4 - 18
1710460-Y0007-000-03-N-03-4 Vacuum measurement board
1710470-Y0059-000-03-N-03-4 Illumination control for component camera

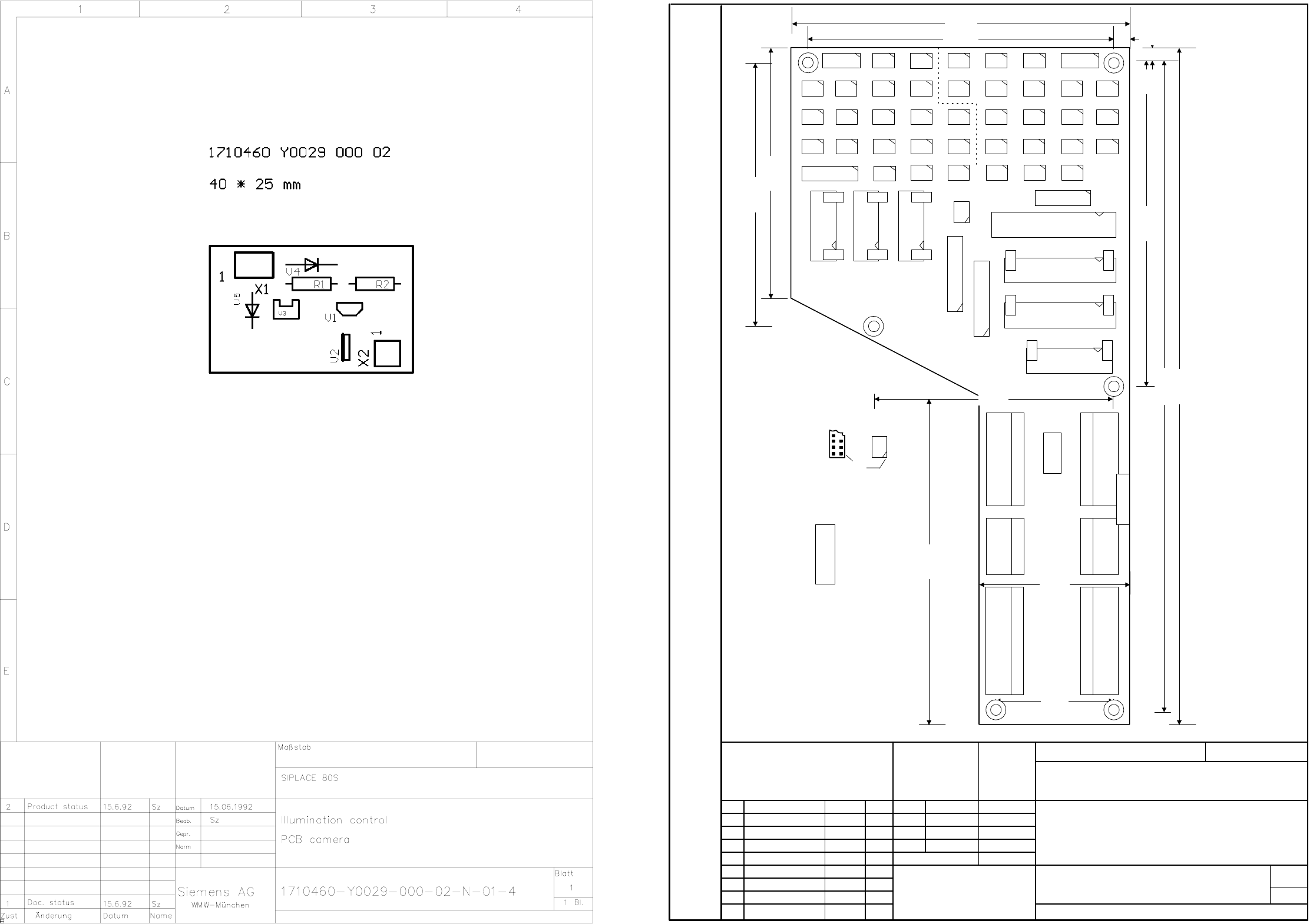
4 - 19
1710460-Y0029-000-02-N-01-4 Illumination control for PCB camera
00325581-030101MD4 Conversion board, PCB handling
1.
3.
1.
10.04.97
10.04.97
10.04.97 Tu.
Tu.
Tu.
02.07.1996
02.07.1996
S
MD Placement System Siplace 80S20/F4
Conversion board
00325581-030101MD4
SIEMENS
Aktiengesellschaft
AUT 5 EBS 8
Date
Resp.
Insp.
Std.
Name
File name:
Issue
Statuses
Date
Name
(Material number)
Format A4
Mat.-No.: FS ES US S/F
Sheet
Scale
Weitergabe sowie Vervielfältigung dieser Unterlage, Verwertung und Mitteilung
ihres Inhaltes nicht gestattet, soweit nicht ausdrücklich zugestanden.
Zuwiderhandlungen verpflichten zu Schadenersatz. Alle Rechte für den Fall
der Patenterteilung oder GM-Eintragung vorbehalten.
Copying of this document, and giving it to others and the use or communication
of the contents thereof, are forbidden without express authority. Offenders are
liable to the payment of damages. All rights are reserved in the event of the
grant of a patent or the registration of the utility model or design.
Function status
Product status
Document. status
X12
20 pol AMP
X13
20pol AMP
270 mm
130 mm
135mm
100 mm
60 mm
48mm
258 mm
129 mm
6 mm
6 mm123 mm
104 mm
94 mm
6 holes dia.=4.5 mm
Tolerances +/- 0.1mm
Plugs X12, X13, X16 - X49
viewed from the top
Pin 1
Key 1
Key 1
Key 1
Key 2
Key 2
Key 2
Plug designation
and coding (pin no.)
X45
5
X16
10
5
X24
5
X22
X20
1
X18
3
X42
5
X30
1
X48
4
X44
X38
1
X32
4
X26 X28
5
X36
4
X34
1
X40
4
X46
4
X6
BK mode 30pol
X8
BK mode 26pol
X10
BK mode 26pol
X7
BK mode 20pol
X5
BK mode 14pol
X3
BK mode 14pol
X4
BK mode 14pol
J1
X47 X45
5
X41 X43
4
X19
3
X21
1
X23
X49
5
X35
1
X37
4
X39
1
X33
1
X27
X31
4
X29
1
X17
9
25
5
X2
Combicon 7pol.
.1
X1
Combicon 7pol
1.
X14
Combi. 4pol
.1
X15
Combi. 4pol
1.
X11
Combicon 8pol
1.
X9
Combicon 8pol.
.1
00325581.M31
1/1
Combicon plug coding
Coding jumper CR-MSTB Order no.:
1734401
J1 Jumper on pin 1-2
A Inscription label
B Inspection label
Siemens AUT 5
00325581-01
B
A
X57
2 und 13
X56
1 and 14
X55
5
X53
1
X51
4
X50
1
X52
5
X54
1
14
15

4 - 20
1710460-Y0003-000-04-N-04-3 Conversion board, gantry, construction specifications