PTS-NXT2-01JE - 第339页
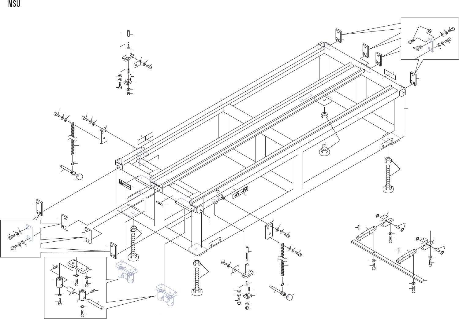
SPLICING TAPE STAND スプライシングテープスタンド UK03504 No. Drg.No. & Code No. QTY Description Rating Materials Remarks 番号 図番 & コード番号 個 数 品名 規格 材質 備考 76 W1024A 1 WASHER, LOCK ワッシャ スプリング 6M/M FE 77 N10798 1 NUT, HEX ナット 六角 M0…

SPLICING TAPE STAND
スプライシングテープスタンド UK03504
No. Drg.No. & Code No. QTY Description Rating Materials Remarks
番号 図番 & コード番号 個数 品名 規格 材質 備考
39 K5262T 2 SCREW, HEX SOCKET BUTTON 小ネジ 六角穴ボタン M08X015 FE
40 W1025A 2 WASHER, LOCK ワッシャ スプリング 8M/M FE
41 PM02GM2 1 BKT BKT FE
42 H5323A 2 BOLT, HEX SOCKET ボルト 六角穴 M06X018 FE
43 W1024A 2 WASHER, LOCK ワッシャ スプリング 6M/M FE
44 PM05HD1 1 BLOCK ブロック FE
45 H5291A 2 BOLT, HEX SOCKET ボルト 六角穴 M04X018 FE
46 W1022A 2 WASHER, LOCK ワッシャ スプリング 4M/M FE
47 XR00263 1 WRENCH レンチ OT
48 PM081E0 1 COLLAR, SPACER カラー スペーサ FE
49 H5293A 1 BOLT, HEX SOCKET ボルト 六角穴 M04X025 FE
50 W1043A 1 WASHER, FLAT ワッシャ 平 4W- 4 FE
51 W1022A 1 WASHER, LOCK ワッシャ スプリング 4M/M FE
52 N10796 1 NUT, HEX ナット 六角 M04(3カ クロ) FE
53 H5292A 1 BOLT, HEX SOCKET ボルト 六角穴 M04X020 FE
54 W1022A 1 WASHER, LOCK ワッシャ スプリング 4M/M FE
55 PM05HC2 1 BLOCK ブロック FE
56 H5291A 2 BOLT, HEX SOCKET ボルト 六角穴 M04X018 FE
57 W1022A 2 WASHER, LOCK ワッシャ スプリング 4M/M FE
58 N10796 2 NUT, HEX ナット 六角 M04(3カ クロ) FE
59 PB91042 1 HANDLE 取手 FE
60 K5359H 2 SCREW, HEX SOCKET COUNTERSUNK 小ネジ 六角穴皿 M04X010 FE
61 PB78182 1 BKT, ARM BKT アーム FE
62 H5299A 2 BOLT, HEX SOCKET ボルト 六角穴 M05X012 FE
63 W1023A 2 WASHER, LOCK ワッシャ スプリング 5M/M FE
64 W1040T 2 WASHER, FLAT ワッシャ 平 5M/MX1.0X10(1W-5)(3カ クロ) FE
65 W1003R 2 WASHER ワッシャ WSSSH8-5-5 FE
66 PB78171 1 PLATE, ARM プレート アーム FE
67 H5301A 2 BOLT, HEX SOCKET ボルト 六角穴 M05X018 FE
68 W1003N 2 WASHER ワッシャ WSSSH12-5-3 FE
69 W1023A 2 WASHER, LOCK ワッシャ スプリング 5M/M FE
70 N10797 2 NUT, HEX ナット 六角 M05(3カ クロ) FE
71 PM04DR1 2 PIN ピン FE
71.1 S1024A 2 CIR-CLIP サークリップ ST-EW- 6 FE
72 K5361T 2 SCREW, HEX SOCKET COUNTERSUNK 小ネジ 六角穴皿 M05X012 FE
73 PB78362 1 ARM アーム FE
74 PM02KZ2 1 PIN, PIVOT ピン 支点 FE
75 H5323A 1 BOLT, HEX SOCKET ボルト 六角穴 M06X018 FE
338
PTS-NXT2-01JE Vol.1

SPLICING TAPE STAND
スプライシングテープスタンド UK03504
No. Drg.No. & Code No. QTY Description Rating Materials Remarks
番号 図番 & コード番号 個数 品名 規格 材質 備考
76 W1024A 1 WASHER, LOCK ワッシャ スプリング 6M/M FE
77 N10798 1 NUT, HEX ナット 六角 M06(3カ クロ) FE
78 PM04DG1 1 BLOCK ブロック FE
79 R4050B 1 LEVER, CLAMP レバー クランプ CLDM6-20-B OT
80 W1045A 3 WASHER, FLAT ワッシャ 平 4W- 6 FE
81 K1321B 1 COLLAR カラー PIPS6-1-10 OT
81.1 H5280A 1 BOLT, HEX SOCKET ボルト 六角穴 M03X020 FE
81.2 W1021A 1 WASHER, LOCK ワッシャ スプリング 3M/M FE
81.3 W1042A 1 WASHER, FLAT ワッシャ 平 4W- 3 FE
83 H13276 1 HANDLE ハンドル GRAF8 FE
84 W1003S 1 WASHER ワッシャ WSSB20-12-5 FE
85 K53635 1 SCREW, HEX SOCKET COUNTERSUNK 小ネジ 六角穴皿 M08X030(3カ シロ) FE
86 T1070L 2 DAMPER ダンパ AXFME-D30-L90-V13 OT
87 K1321D 2 COLLAR カラー PIPS13-2-88 OT
88 H54245 1 BOLT, HEX SOCKET ボルト 六角穴 CB8-200 FE
89 W1090H 2 WASHER ワッシャ WSSB25-8-3 FE
90 W1025A 1 WASHER, LOCK ワッシャ スプリング 8M/M FE
91 N10799 1 NUT, HEX ナット 六角 M08(3カ クロ) FE
92 PB78371 1 HOOK フック FE
93 K5359H 2 SCREW, HEX SOCKET COUNTERSUNK 小ネジ 六角穴皿 M04X010 FE
94 W1022A 2 WASHER, LOCK ワッシャ スプリング 4M/M FE
95 N10796 2 NUT, HEX ナット 六角 M04(3カ クロ) FE
97 PB91052 1 HANDLE 取手 FE
98 K5359H 2 SCREW, HEX SOCKET COUNTERSUNK 小ネジ 六角穴皿 M04X010 FE
339
PTS-NXT2-01JE Vol.1

BB
BB
AA
AA
1
2
3
4
6
7
8
8
9
5
10
9
10
11
11
12
13
14
15
16
18
19
20
21
22
2
2
2
14
17
18
19
23
24
25
26
27
28
30
31
32
33
35
36
21
22
27
28
23
24
25
26
30
31
32
34
35
36
37
38
39
37
38
39
29
29
40
40
15
16
17
63
41
45
46
47
41
45
46
47
48
48
48
48
50
51
52
53
54
55
49
57
58
59
60
61
62
56
56
56
56
64
65
64
65
42
43
44
42
43
44
55.1
UK01508
340
PTS-NXT2-01JE Vol.1