CP-643E-08 - 第142页
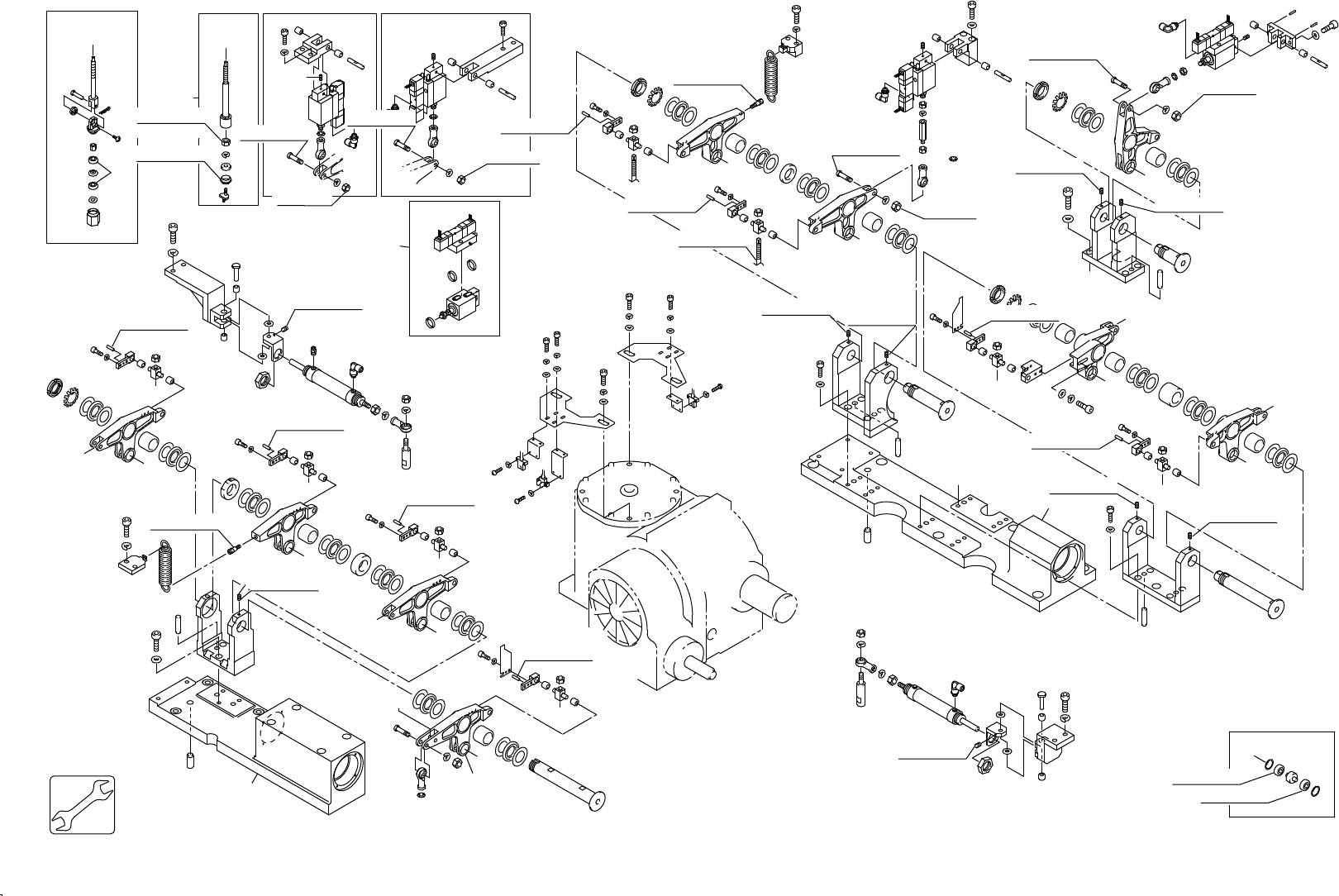
25.カムボックス 2(CSPA) 25.Cam box 2(CSPA) 番号 図番 & コード番号 個数 品名 規格 備考 材質 No. Drg.No. & Code No. QTY Description Rating Remarks Materials 1 WPA0016 1 BKT BKT FE 2 WPA1334 1 BKT BKT FE 3 WPA0634 1 CAM, LEVER カム レバー FE …

x8.5
1,11st
3,10,12,13st
B
F
F
F
B
B
F
Y
Y
Y
Z
F
A
A
F
F
F
C
C
F
F
Z
Y
Z
Y
C
B
25 - 2
25.カムボックス 2(CSPA)
25.Cam box 2(CSPA)
25.カムボックス 2(CSPA)
25.Cam box 2(CSPA)
CP-643E PARTS LIST
LOCTITE262
LOCTITE262
ThreeBond1373B
ThreeBond1390E
ThreeBond1373B
ThreeBond1390E
1.96N.m
3.9N.m
LOCTITE222
LOCTITE262
LOCTITE262
LOCTITE222
LOCTITE222
LOCTITE601
LOCTITE222
LOCTITE222
14.7N・m
LOCTITE262
14.7N・m
LOCTITE601
LOCTITE222
LOCTITE222
LOCTITE262
LOCTITE601
LOCTITE222
LOCTITE601
LOCTITE601
14.7N・m
14.7N・m
LOCTITE262
LOCTITE601
LOCTITE222
7.84N・m
LOCTITE222
LOCTITE222
LOCTITE601
LOCTITE601
LOCTITE601
LOCTITE601
LOCTITE222
LOCTITE222

25.カムボックス 2(CSPA)
25.Cam box 2(CSPA)
番号 図番 & コード番号 個数 品名 規格 備考
材質
No. Drg.No. & Code No. QTY Description Rating Remarks
Materials
1 WPA0016 1 BKT BKT FE
2 WPA1334 1 BKT BKT FE
3 WPA0634 1 CAM, LEVER カム レバー FE
4 WPA0624 1 CAM, LEVER カム レバー FE
5 WPA0614 1 CAM, LEVER カム レバー FE
6 WPA0604 1 CAM, LEVER カム レバー FE
7 H4396T 9 BEARING, NEEDLE ベアリング ニードル TA2525Z FE
8 H4302A 18 BEARING, THRUST ベアリング スラスト NTB2542 FE
9 WPA0752 1 COLLAR カラー FE
10 WPA0740 1 COLLAR カラー FE
11 WPA0713 1 SHAFT シャフト FE
12 N1046A 4 NUT, A ナット A AN05 FE
13 W1067A 4 WASHER, A ワッシャ A AW05 FE
14 WPA0705 9 PIN ピン FE
15 H4403A 22 BEARING, NEEDLE ベアリング ニードル TLA810Z FE
16 WPA0691 8 HOLDER, PIN ホルダ ピン FE
17 R5023T 9 PIN, NEEDLE ピン ニードル 4゚X15.8 FE
18 WPA1791 2 HOOK, SPRING フック スプリング FE
19 WPA5160 8 PLATE, END プレート エンド OT
20 WPA0591 8 PIN ピン FE
21 WPA0954 14 PIN, LOCATING ピン 位置決め FE
22 WPA1161 3 BKT BKT FE
23 WPA5142 7 CYLINDER, AIR シリンダ エアー OT
24 WPA0581 7 PIN ピン FE
25 H4401A 14 BEARING, NEEDLE ベアリング ニードル TLA69Z FE
26 WPA0029 1 BKT BKT FE
27 WPA1322 1 BKT BKT FE
28 H4398A 1 BEARING, NEEDLE ベアリング ニードル TA2530Z FE
29 WPA0684 1 CAM, LEVER カム レバー FE
30 WPA0677 1 CAM, LEVER カム レバー FE
31 WPA1343 1 CAM, LEVER カム レバー FE
32 WPA0644 1 CAM, LEVER カム レバー FE
33 WPA0654 1 CAM, LEVER カム レバー FE
34 WPA1503 1 BKT BKT FE
35 WPA0761 1 COLLAR カラー FE
36 WPA1534 1 SHAFT シャフト FE
37 WPA0780 1 COLLAR カラー FE
38 WPA1524 1 SHAFT シャフト FE
39 WPA0733 1 SHAFT シャフト FE
40 WPA1355 1 HOLDER, PIN ホルダ ピン FE
41 WPA1222 1 BKT BKT FE
CP-643E PARTS LIST
25 - 3
25.カムボックス 2(CSPA)
25.Cam box 2(CSPA)

25.カムボックス 2(CSPA)
25.Cam box 2(CSPA)
番号 図番 & コード番号 個数 品名 規格 備考
材質
No. Drg.No. & Code No. QTY Description Rating Remarks
Materials
42 WPA1393 1 BKT BKT FE
43 WPA1431 1 HOOK, SPRING フック スプリング FE
44 WPA1420 1 SPRING スプリング FE
45 WPA1201 1 HOOK, SPRING フック スプリング FE
46 WPA1721 1 SPRING スプリング FE
47 WPA1543 1 BKT BKT FE
48 WPA1552 1 BKT BKT FE
49 S2085H 2 CYLINDER, AIR シリンダ エアー DAD25X40-ZG553A2-3731W OT
50 WPA1560 2 BKT BKT FE
51 WPA1570 4 WASHER ワッシャ PL
52 WPA1710 2 PIN ピン FE
53 H31811 2 PLATE, END プレート エンド PBR8FN OT
54 WPQ0082 1 BOLT, STUD ボルト スタッド FE
55 WPQ0451 1 BOLT, STUD ボルト スタッド FE
56 GPH4491 9 ROLLER ローラ FE
57 H4130E 18 BEARING, BALL ベアリング ボール 608ZZ FE
58 S1001A 18 CIR-CLIP サークリップ RTW022 FE
59 N4038A SCREW, HEX SOCKET SET ネジ 六角穴止め M5X10L FE
60 N4027A SCREW, HEX SOCKET SET ネジ 六角穴止め M4X5L FE
61 N1089A NUT, HEX ナット 六角 M8 FE
62 W1025A WASHER, LOCK ワッシャ スプリング 8M/M FE
63 W1024A WASHER, LOCK ワッシャ スプリング 6M/M FE
64 W1023A WASHER, LOCK ワッシャ スプリング 5M/M FE
65 W1045A WASHER, FLAT ワッシャ 平 4W-6 FE
66 W1014A WASHER, CONICAL ワッシャ 皿 M-8-H FE
67 W1013A WASHER, CONICAL ワッシャ 皿 M-6-H FE
68 H5348A BOLT, HEX SOCKET ボルト 六角穴 M8X55L FE
69 H5345A BOLT, HEX SOCKET ボルト 六角穴 M8X40L FE
70 H5343A BOLT, HEX SOCKET ボルト 六角穴 M8X30L FE
71 H5342A BOLT, HEX SOCKET ボルト 六角穴 M8X25L FE
72 H5341A BOLT, HEX SOCKET ボルト 六角穴 M8X20L FE
73 H5326A BOLT, HEX SOCKET ボルト 六角穴 M6X25L FE
74 H5322A BOLT, HEX SOCKET ボルト 六角穴 M6X15L FE
75 H5300A BOLT, HEX SOCKET ボルト 六角穴 M5X15L FE
76 WPA1182 2 BKT, CYLINDER BKT シリンダ FE
77 WPA1230 1 JOINT ジョイント FE
78 WPA1410 1 HOLDER, PIN(For Station 18) ホルダ ピン(18st用) FE
79 WPA1514 1 BKT BKT FE
80 WPA1601 4 PIN, LOCATING ピン 位置決め FE
81 A4043A 4 ELBOW エルボ PL6-01(1/8) OT
82 H3181E 2 PLATE, END プレート エンド MBWT5 OT
CP-643E PARTS LIST
25 - 4
25.カムボックス 2(CSPA)
25.Cam box 2(CSPA)