CP-643E-08 - 第214页
43.1.インコンベア(逆流れ)(CSQC) 43.1.In conveyor (Right-to-left board flow)(CSQC) 番号 図番 & コード番号 個数 品名 規格 備考 材質 No. Drg.No. & Code No. QTY Description Rating Remarks Materials 1 CSQC0041 1 PLATE プレート FE 2 CSQC0051 1 PLA…

Ref.33-7
Ref.31-1
Ref.31-1
Ref.31-1
Ref.31-1
0.5 1 2 10
PULLEY ASSY
MQC-1061
PULLEY ASSY
MQC-1290
RUBBER BELT
CSQC-2190
CORROIE DE CAOUTCHOUC
CSQC-2190
172
221
222
172
221
222
222
221
172
222
221
172
158
204
158
204
203
155
157
155
199
155
199
155
152
105
162
157
199
155
180
157
105
107
82
107
105
68
157
12
12
105
169
205
116
118
205
118
116
169
170
157
82
81
81
199
76
76
173
173
71
71
218
176
212
164
201
107
105
107
105
212
164
201
75
210
209
211
208
106
106
186
189
200
200
155
186
164
189
168
176
217
157
157
164
199
125
110
73
8
9
176
216
200
42
38
106
176
105
176
176
106
5
110
220
2
110
176
106
105
106
176
106
110
36
106
65
176
176
28
108
186
22
106
106
104
63
65
202
123
120
157
119
162
105
119
162
108
108
105
105
105
105
105
217
216
103
164
103
199
157
200
57
86
83
155
69
78
75
70
155
172
221
222
172
221
222
172
221
222
172
221
222
131
157
171
156
160
164
158
158
157
121
138
56
93
99
181
181
127
127
169
169
124
124
122
122
100
94
139
121
125
126
93
191
204
12
204
12
133
202
132
193
156
160
194
156
160
156
160
194
186
181
可動ストッパ
Movable stopper
(Option)
126
125
121
121
94
157
171
157
84
126
125
121
121
94
84
105
203
219
198
157
171
164
157
206
157
200
206
157
164
157
155
121
106
106
63
200
157
42
98
98
58
176
55
35
137
129
123
92
123
123
123
182
168
168
168
168
92
164
88
176
74
198
88
126
157
79
125
121
121
94
126
171
125
79
121
94
64
106
176
106
176
37
106
65
106
29
176
110
110
176
22
186
106
104
43
65
66
108
39
106
176
176
4
110
110
220
106
176
1
L
C
H
A
G
L
C
D
E
D
B
A
B
H
M
M
M
M
N
N
G
E
x9
192
192
156
159
155
185
191
87
225
227
226
163
85
10
11
163
96
95
53
105
157
200
53
60
62
62
54
59
97
61
144
178
174
174
126
125
121
121
94
171
157
193
102
156
164
99
J
J
66
64
43
226
43 - 1
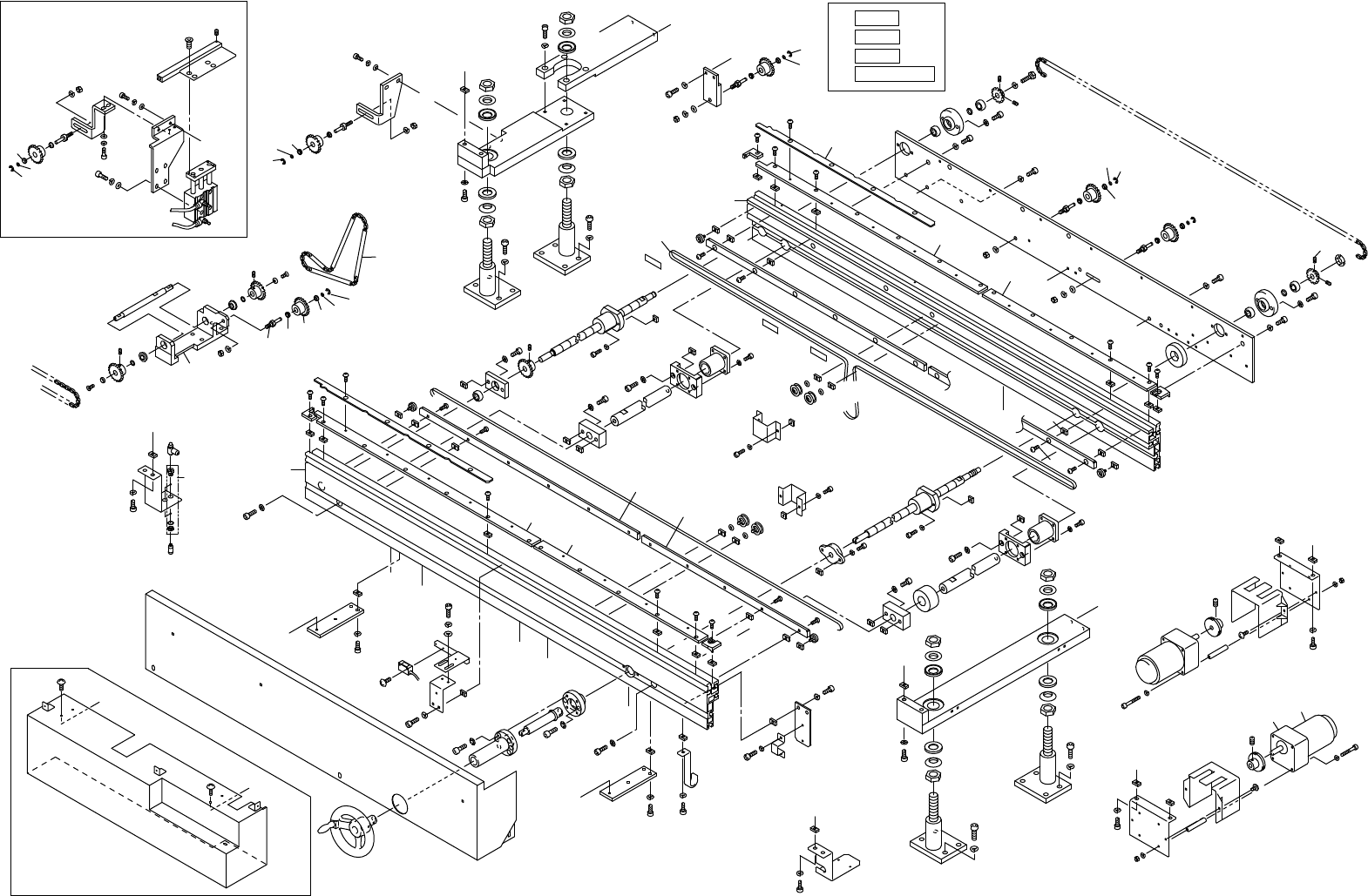
43.1.インコンベア(逆流れ)(Option)(CSQC)
43.1.In conveyor(Right-to-left board flow)(Option)(CSQC)
43.1.インコンベア(逆流れ)(Option)(CSQC)
43.1.In conveyor(Right-to-left board flow)(Option)(CSQC)
CP-643E PARTS LIST

43.1.インコンベア(逆流れ)(CSQC)
43.1.In conveyor (Right-to-left board flow)(CSQC)
番号 図番 & コード番号 個数 品名 規格 備考 材質
No. Drg.No. & Code No. QTY Description Rating Remarks Materials
1 CSQC0041 1 PLATE プレート FE
2 CSQC0051 1 PLATE プレート FE
4 CSQC0132 1 STOPPER ストッパ FE
5 CSQC0142 1 STOPPER ストッパ FE
8 MQC1480 1 PLATE プレート FE
9 MQC1490 1 PLATE, RETAINING プレート 押え FE
10 CSQC7471 1 COVER カバー FE
11 CSQC7483 1 COVER カバー FE
12 CSQC1200 4 BOLT, STUD ボルト スタッド FE
22 CSQC0511 2 COVER, BELT カバー ベルト FE
28 CSQC0680 1 GUIDE, BELT ガイド ベルト AL
29 CSQC0690 1 GUIDE, BELT ガイド ベルト AL
35 CSQC2582 1 PLATE プレート FE
36 CSQC2040 1 GUIDE, BELT ガイド ベルト AL
37 CSQC2050 1 GUIDE, BELT ガイド ベルト AL
38 CSQC2060 1 PLATE プレート FE
39 CSQC2070 1 PLATE プレート FE
42 CSQC2190 2 BELT ベルト OT
43 CSQC2200 1 NAMEPLATE 銘板 PL
53 CSQC7460 2 HOLDER 受け FE
54 CSQC7840 1 CYLINDER, AIR シリンダ エアー OT
55 CSQC2600 1 STOPPER ストッパ PL
56 CSQC2331 1 BKT BKT FE
57 CSQC2560 1 PLATE, SIDE プレート サイド AL
58 CSQC2570 1 PLATE, SIDE プレート サイド AL
59 CSQC7940 1 STOPPER ストッパ FE
60 CSQC7960 1 BKT BKT FE
61 CSQC7970 1 BKT BKT FE
62 CSQC8150 2 TUBE チューブ OT
63 MQC1061 4 PULLEY プーリ OT
64 MQC1073 1 SEAL シール PL
65 MQC1292 4 PULLEY プーリ OT
66 MQC1300 1 SEAL シール PL
67 MQC1420 1 PLATE プレート FE
68 MQC1430 1 BKT BKT FE
69 MQC3113 1 BALL SCREW ボールネジ OT
70 MQC3123 1 BALL SCREW ボールネジ OT
71 MQC3293 2 COVER カバー OT
72 MQC3305 1 BKT BKT FE
73 MQC3313 1 GUIDE ガイド FE
74 MQC3323 1 GUIDE ガイド FE
CP-643E PARTS LIST
43 - 2
43.1.インコンベア(逆流れ)(CSQC)
43.1.In conveyor (Right-to-left board flow)(CSQC)

43.1.インコンベア(逆流れ)(CSQC)
43.1.In conveyor (Right-to-left board flow)(CSQC)
番号 図番 & コード番号 個数 品名 規格 備考 材質
No. Drg.No. & Code No. QTY Description Rating Remarks Materials
75 CSQC1050 2 SHAFT シャフト FE
76 MQC3421 2 BKT BKT FE
78 MQC3451 1 HOLDER ホルダ FE
79 MQC3461 2 SHAFT シャフト FE
80 MQC3471 1 PLATE プレート FE
81 MQC3501 2 PULLEY プーリ FE
82 MQC3901 8 SPACER スペーサ FE
83 CSQC2590 1 STOPPER ストッパ PL
84 MQC4130 1 SHAFT シャフト FE
85 AJQC3941 1 HANDLE ハンドル OT
86 CLC3212 1 HOOK フック FE
87 CSQC7251 1 BKT BKT FE
88 CLC9051 25 HOLDER ホルダ FE
91 CSQC2760 2 BKT, SW BKT SW FE
92 GVC0141 2 COLLAR カラー FE
93 GVC0320 2 COLLAR カラー FE
94 GVC0350 5 COLLAR カラー FE
95 CSQC1393 1 BKT BKT FE
96 CSQC5792 1 BKT, SENSOR BKT センサ FE
97 H2048A 1 PIN, SPRING ピン スプリング 3゚X10L FE
98 GVC2262 2 SPROCKET スプロケット OT
99 GVC2311 2 SHAFT シャフト FE
100 GVC2320 1 SHAFT シャフト FE
102 CSQC2800 1 PLATE プレート FE
103 CSQC1071 2 HOLDER ホルダ FE
104 IQC6041 4 RETAINER, BEARING 押え ベアリング FE
105 IQC6062 27 NUT ナット FE
106 IQC6072 58 NUT ナット FE
107 IQC6291 4 NUT ナット FE
108 JQC3672 16
NUT, SQUARE
ナット 四角 FE
110 IQC6301 8 NUT ナット FE
116 M5017H 2 MOTOR, REVERSIBLE モータ リバーシブル 21K6RGN-A-K1(IEC) OT
118 H4006A 2
HEAD, GEAR
ヘッド ギヤ 2GN-7.5K OT
119 H4429M 2
BEARING, BALL
ベアリング ボール LMK20UU FE
120 H4123A 1
BEARING
ベアリング UFL000 FE
121 H4445A 10 BEARING, MINIATURE ベアリング ミニチュア LF-1050ZZ FE
122 H4451A 2 BEARING, MINIATURE ベアリング ミニチュア LF-1680ZZ FE
123 H4440A 5 BEARING, MINIATURE ベアリング ミニチュア L-1910ZZ FE
124 S3033A 2 SPROCKET スプロケット RS25-13T 1ガタ OT
125 S3034A 6 SPROCKET スプロケット RS25-13T 2ガタ OT
126 S1022A 5
CIR-CLIP
サークリップ ST-EW-4 FE
CP-643E PARTS LIST
43 - 3
43.1.インコンベア(逆流れ)(CSQC)
43.1.In conveyor (Right-to-left board flow)(CSQC)