CP-643E-08 - 第64页
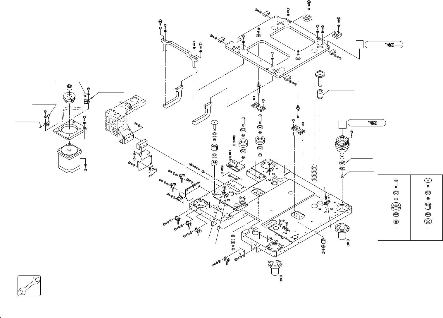
R e f . 9 - 1 R e f . 9 - 1 x 7 A B B A B A B A A B A B E D E F 9 - 5 9 . 2 . Z テーブル( C S S Z ) 9 . 2 . Z t a b l e ( C S S Z ) 9 . 2 . Z テーブル( C S S Z ) 9 . 2 . Z t a b l e ( C S S Z ) CP-643E P ARTS LIST L O C T I T E …

Ref.31-1
Ref.31-1
Ref.31-1
Ref.33-7
Ref.9-1
Ref.9-1
37
101
23
8
23
99
13
36
23
8
7
23
23
8
6
23
8
7
23
7
9
6
8
23
102
23
8
13
23
100
55
26
78
83
1
46
24
47
28
81
71
27
45
89
77
47
28
81
71
27
89
96
66
60
66
60
59
89
96
48
81
74
74
81
48
89
77
60
66
89
77
89
77
83
92
83
92
71
98
89
77
61
60
66
61
74
81
48
17
17
65
82
53
82
75
69
81
52
51
48
81
74
11
3
56
56
90
90
90
90
62
62
91
79
18
82
75
84
80
93
84
80
93
84
80
93
5
4
5
97
81
71
82
77
35
34
95
82
97
62
62
25
71
29
31
30
94
57
58
83
92
32
73
97
73
97
33
57
58
83
92
84
80
93
5
5
4
84
80
93
84
80
93
93
80
84
5
16
81
70
5486
86
54
54
86
54
86
208
176
165
175
161
175
161
175
161
183
162
176
167
175
161
13
13
B
A
139
x7
A
B
B
A
B
A
B
A
A
B
A
B
E
D
E
F
9 - 4
9.2.Z テーブル(CSSZ)
9.2.Z table(CSSZ)
9.2.Z テーブル(CSSZ)
9.2.Z table(CSSZ)
CP-643E PARTS LIST

Ref.9-1
Ref.9-1
x7
A
B
B
A
B
A
B
A
A
B
A
B
E
D
E
F
9 - 5
9.2.Z テーブル(CSSZ)
9.2.Z table(CSSZ)
9.2.Z テーブル(CSSZ)
9.2.Z table(CSSZ)
CP-643E PARTS LIST
LOCTITE262
LOCTITE262
ThreeBond1373B
ThreeBond1390E
ThreeBond1373B
ThreeBond1390E
1.96N.m
3.9N.m
LOCTITE222
LOCTITE601
LOCTITE222
PANDO15A
LOCTITE222
LOCTITE222
LOCTITE222

9.2.Zテーブル(CSSZ)
9.2.Z table(CSSZ)
番号 図番 & コード番号 個数 品名 規格 備考
材質
No. Drg.No. & Code No. QTY Description Rating Remarks
Materials
1 SAM6361 1 MOTOR, AC SERVO モータ ACサーボ OT
3 H4292A 4
BEARING, SLIDE
ベアリング スライド LM13UU FE
4 S4040W 2
SENSOR, PHOTO
センサ フォト EE-SPX305-W2A OT
5 S4040Y 5
SENSOR, PHOTO
センサ フォト EE-SPX405-W2A OT
6 WSZ4080 2 PIN ピン FE
7 CSSZ0480 7 ROLLER ローラ AL
8 WSZ4101 14 COLLAR カラー FE
9 WSZ4110 1 COLLAR カラー FE
11 WSZ4141 4 BAR, GUIDE バー ガイド FE
13 CSSZ0650 6 PULLEY, INTERMEDIATE プーリ 中間 OT
16 WSZ4500 1 PLATE, SENSOR プレート センサ FE
17 WSZ4703 2 BKT BKT FE
18 WSZ4730 1 BKT, SENSOR BKT センサ FE
23 H4202Z 26
BEARING
ベアリング 6900ZZ FE
24 R2069A 1
RING, LOCKING
リング 締結 ETP-D-12 OT
25 S30238 4
SPRING, COIL
スプリング コイル WM22-70 FE
26 H4475Z 1 BELT ベルト 2100-3GT-9 OT
27 K1107A 2 CAM FOLLOWER カムフォロア CF3UU OT
28 N40174 2
SCREW, HEX SOCKET SET
ネジ 六角穴止め M2.5 P=0.45X4 FE
29 AWSZ8043 4 BALL SCREW ボールネジ OT
30 WSZ4800 4 PLATE プレート FE
31 CSSZ0462 4 STOPPER ストッパ PL
32 WSZ4840 3 COVER カバー PL
33 WSZ4851 1 COVER カバー PL
34 CSSZ0670 1 BKT BKT FE
35 CSSZ0661 1 PLATE, RETAINING プレート 押え FE
36 WSZ4890 5 PIN ピン FE
37 WSZ4902 5 COLLAR カラー FE
45 CSSZ0170 1 BKT BKT AL
46 CSSZ0180 1 PULLEY, TIMING プーリ タイミング OT
47 CSSZ0190 2 BKT BKT FE
48 CSSZ0220 4 PLATE プレート FE
51 CSSZ0290 1 BKT, RETAINER BKT 押え FE
52 CSSZ0300 1 BKT BKT FE
53 CSSZ0310 1 SPACER スペーサ AL
54 S3099S 4 SW, PROXIMATE SW 近接 TL-W3MC1 OT
55 CSSZ0321 1 PLATE プレート AL
56 CSSZ0330 2 SHAFT シャフト FE
57 CSSZ0340 2 STOPPER ストッパ PL
58 CSSZ0350 2 WASHER ワッシャ FE
59 CSSZ0470 1 BKT BKT FE
CP-643E PARTS LIST
9 - 6
9.2.Zテーブル(CSSZ)
9.2.Z table(CSSZ)