SM471_TechnicalReference(Eng_Ver1[1].1) - 第125页
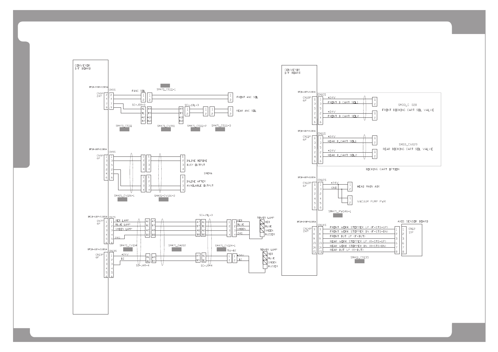
Page SAMSUNG TECHWIN 11 5 SM471 C onveyor Board Interface (2/5) NO. Lev . P ART NO. P ART NAME Q'TY Old No. Supply Supply L T Reference 1 AM03-0056 85A CABLE ASSY -F_ANC_SOL-EXT 1 S M 4 7 1 - C S 111 - 1 2 AM03-0056…

Page
SAMSUNG TECHWIN
114
SM471
Conveyor Board Interface (2/5)
[1 ]
[2 ] [3 ] [4 ]
[6 ] [7 ]
[5 ]
[8 ] [9 ] [8 ]
[10]
[11]

Page
SAMSUNG TECHWIN
115
SM471
Conveyor Board Interface (2/5)
NO. Lev. PART NO. PART NAME Q'TY Old No. Supply Supply LT Reference
1 AM03-005685A CABLE ASSY-F_ANC_SOL-EXT 1 SM471-CS111-1
2 AM03-005684A CABLE ASSY-FR_ANC_SOL 1 SM471_CS111
3 AM03-005430A CABLE ASSY-AX_X2_F_AREA_SNS_J5R-J10L 1 SM471_CV201
4 AM03-005686A CABLE ASSY-R_ANC_SOL-EXT1 1 SM471_CS111-2
5 AM03-005687A CABLE ASSY-R_ANC_SOL-EXT2 1 SM471_CS111-3
6 AM03-003541A CABLE ASSY-INLINE_IN-OUT_CVIF 1 SM421_CV106-1
7 AM03-003542A CABLE ASSY-INLINE_IN-OUT 1 SM421-CV106-1-2
8 AM03-005436A CABLE ASSY-TOWER_LAMP_J9L 1 SM471_CV104-1
9 AM03-005400A CABLE ASSY-CAN_TW_J4R-J9L 1 SM471_CA202
10 AM03-005699A CABLE ASSY-VACUUM_EJECTOR_PWR 1 SM471-PW146-1
11 AM03-004348A CABLE ASSY-AXIS_SENSOR_BD_STP-BUT 1 SM411_CS135

Page
SAMSUNG TECHWIN
116
SM471
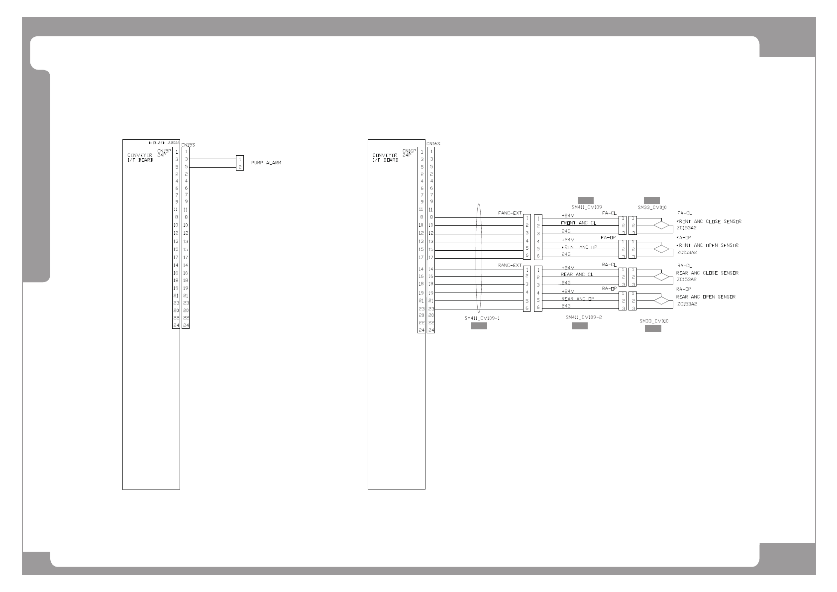
Conveyor Board Interface (3/5)
[1 ] [2 ]
[3 ] [4 ]
[2 ]
P