5OM-1501-006_w - 第129页
4-16 5OM-1501 5 5 B371 B41 B40 M43 M41 5 5 4 4 4 4 3 4 4 X430 X371へ Y50 Y51 M43(コネクタ) M43(コネクタ) 注1 A A SECT A-A B371 X371 B40 B40 B41 B41 M M41 M41 M M43 X430 M43 M M37 M37 PX142 PX153 配線図 Y50 Y51 Y50 B B B42 B42 M37 5 5…

4-15
5OM-1501
基板認識部ハーネス接続資料 2
0906-001-(2090006121-2)
2
EB
EB
EA
P
EA P
6
6 6
B65
B67
B68
Y9C
Y9A
B6A
Y7C
B89
B8A
M35
B354
B353
B351
Y79
Y78
B69
B04
E7A
コネクタ
B65,B66
コネクタ
B67,B68,
B69,E7A
コネクタ
X2065,X2068,X107A
X106A,Y78,Y79,Y7C
B89,B8A,Y9A,Y9C,X351,M35
2
E3S-LS3N
B66
注4
A
DETAIL A
注2
PX-140PX-177
注3 注4
M35アース線
15
注3注2
注1 注1

4-16
5OM-1501
55
B371
B41
B40
M43
M41
5 5
4 4 4 4
3
4 4
X430
X371へ
Y50
Y51
M43(コネクタ)
M43(コネクタ)
注1
A
A
SECT A-A
B371 X371
B40 B40
B41 B41
M
M41
M41
M
M43
X430
M43
M
M37
M37
PX142
PX153
配線図
Y50
Y51
Y50
B
B
B42 B42
M37
5 5
4 4 4 4
3
4 4
4 4
B41
B40
SECT B-B
X371
B40
B41
B42
M41
M37
Y50
M41
4
33
B42
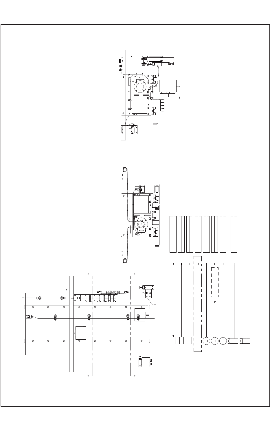
ケーブルベア
注2
注2
C
Lコンベア幅軸原点
Lコンベア基板移載確認
Lコンベア基板確認
基板ストッパ上限
Lコンベア基板搬送1モーター
Lコンベア基板搬送2モーター
Lコンベア幅モーター
Lコンベア基板ストッパ 出側
Lコンベア基板ストッパ 戻側
ハーネス PX-141:X371に接続
ハーネス PX-073:B40に接続
ハーネス PX-151:M41に接続
ハーネス PX-152:X430に接続
ハーネス PX-145:M37に接続
ハーネス PX-080:Y50に接続
ハーネス PX-073:B41に接続
ハーネス PX-073:B42に接続
L コンベア部ハーネス接続資料
0906-001-(309002019)

4-17
5OM-1501
R コンベア部ハーネス接続資料
0906-001-(309000201A)
55
B371
B41
B40
M43
M41
5 5
4 4 4 4
3
4 4
X430
X371へ
M37
Y51
Y50
M43(コネクタ)
M43(コネクタ)
注1
A
A
SECT A-A
5 5
4 4 4 4
3
4 4
4 4
B41
B40
B
B
SECT B-B
B371 X371
B40 B40
B41 B41
M
M41
M41
M
M43
X430
M43
M
M37
M37
PX144
PX149
配線図
X371
B40
B41
M41
M43
M41
Y50
Y50
Y51
Y50
M37
B42
注2
ケーブルベア
C
B42
Rコンベア幅軸原点
Rコンベア基板到着確認
Rコンベア基板通過確認
基板ストッパ上限
Rコンベア基板搬送1モーター
Rコンベア基板搬送2モーター
Rコンベア幅モーター
Rコンベア基板ストッパ 出側
Rコンベア基板ストッパ 戻側
ハーネス PX-143:X371に接続
ハーネス PX-074:B40に接続
ハーネス PX-147:M41に接続
ハーネス PX-148:X430に接続
ハーネス PX-146:M37に接続
ハーネス PX-081:Y50に接続
ハーネス PX-074:B41に接続
ハーネス PX-074:B42に接続