5OM-1501-006_w - 第94页
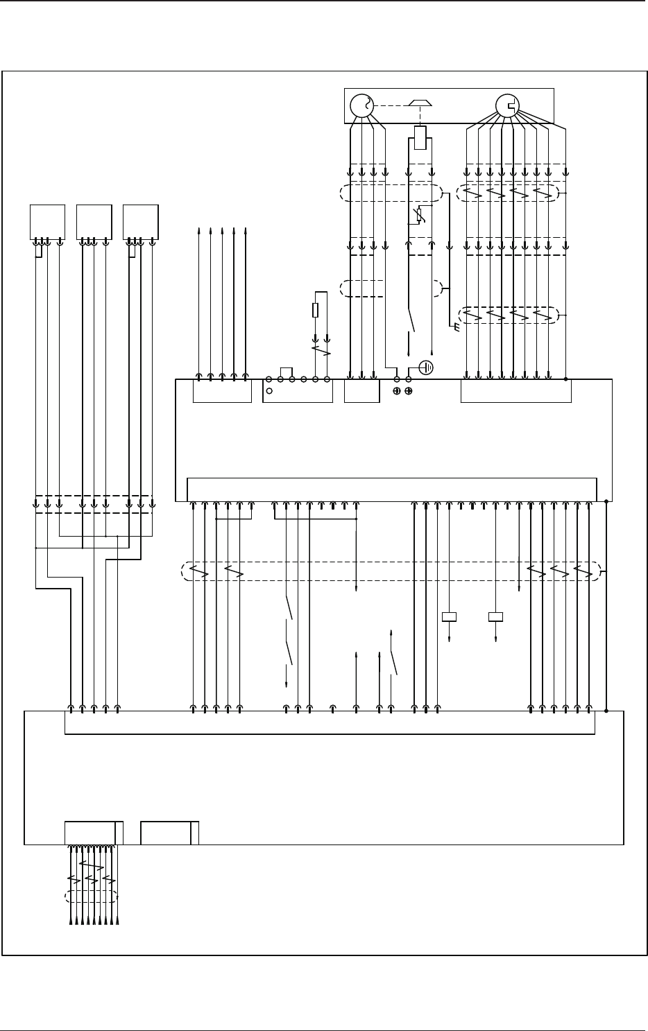
0912-005A(M900WBB--2009) テーブル Z 軸回路図 M 3 P G U 24A1 10A :B3 :A3 :B2 :A2 :B1 :A1 :A5 :B4 :1 :2 1170 24B3 10B :1 :1 :2 :3 :4 :1 :2 :3 :1 :2 13 9 :A4 24A3 1173 2173 54 53 10A 10A 53 54 10A 24A3 24A3 1172 1174 1175 54 53 217…

0906-004-(M900WBB--2007)
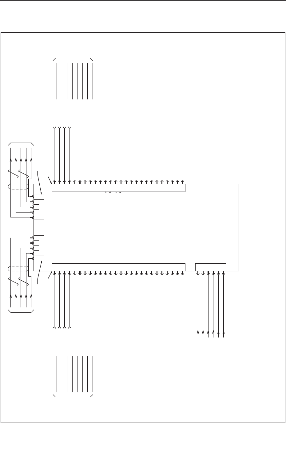
前後インターフェース部 I/O
SMEMA仕様
CN4 CN5
:9
:7
:5
コネクタケース
/RX
RX
/TX
TX
FG(コネクタケース
3
7 5
9 5
3 97
FG(コネクタケース
TX
/TX
RX
/RX
X0305X0304
STLT_IF
CN8
X0302A-F:2
X0302A-F:1
X0302A-F:4
X0302A-F:3
6
8
4
2
15
13
11
9
7
303
5
302
3
301
CN7
1
I/O P.C.B
X0302RX0302F
12
14
10
16
300
CN1
24A3
10A
24A3
10A
10E
24E
X0302A-R:1
X0302A-R:2
X0302A-R:3
X0302A-R:4
331
332
333
330
U03
6
5
4
3
2
1
17
18
19
20
21
22
23
24
25
26
17
18
19
20
21
22
23
24
25
26
6
8
4
2
15
13
11
9
7
5
3
1
12
14
10
16
SMEMA仕様
X0301
:3
:5
:2
コネクタケース
:4 :3
前後工程I/F
炉信号
ワーク搬送
ワーク搬送 GND
ワーク要求 +
ワーク要求 -
予備入力S1
予備入力S1 GND
予備出力S1 +
予備出力S1 -
ワーク搬送 +
ワーク搬送 -
ワーク要求
ワーク要求 GND
自工程 GND(自-後)
未使用
未使用
U52
U52-CN2
BOXコンピュータ
U05
X0501(CN1B)
基板搬送部/基板チャック部
3-16
5OM-1501

0912-005A(M900WBB--2009)
テーブル Z 軸回路図
M
3
P G
U
24A1
10A
:B3
:A3
:B2
:A2
:B1
:A1
:A5
:B4
:1
:2
117024B3
10B
:1
:1
:2
:3
:4
:1
:2
:3
:1
:2
13 9
:A4
24A3
1173 2173
54 53
10A
10A
53 54
10A
24A3
24A3
1172
1174
1175
54 53
2172
黒
X17B
:1
:2
RB1
RB2
黒
50Ω 30W
R17B
K203B
45
OUT7
44
OUT6
43
OUT5
32
CONT6
33
CONT5
6 2
K3171
42
OUT4(S-ON)
K203A
8 1
K3170
K310
STOP
20
X4170
A17-CN2
コネクタケース
GND
6
GND
5
信号線B
8
+V4
信号線 A
3
+V7
GND2
+V1
GND
コネクタケース
6
GND
5
信号線B
8
+V4
信号線 A
3
+V7
GND2
+V1
FG
GND
+V
COM B1
+V
GND
GND
COM A1
+V
+COM
11
A17-CNC
7
ZO
8
ZO-
LZ-
LZ+
27
28
5
BO
6
BO-
LB-
LB+
25
26
3
AO
OUT1
15
OUT2
16
-COM
12
RES
14
-
OUT
L
+
B172
A23-N2
(基板上下軸)
U17-N1 N1
N2
M17B
PP
PG
3
4
SG
48
GND
2
SG
47
RB2
CNB
DL1
DL2
P
RB1
-
シールド
黒
赤
黄
白
紫
緑
茶
青
:9
黄
黄
緑/黄
黒
白
赤
CNC
CNA
4
AO-
25
OUT-COM
24
OUT-COM
46
OUT8(ALM)
41
OUT3(INP)
40
OUT2(ALM)
39
OUT1(RDY)
49
OUT-PWR
35
CONT3
L108
L308
L109
L209
L309
:9
X2170
X171
+LS
31
30
-COM2
ORG
32
-LS
33
+COM2
29
CN1 U17-CN1
U17
NP
NG
INP
SVON
LA-
ALM
LA+
IN1
B173
-
OUT
-
OUT
L
L
+
+
B171
5
13
23
24
17
19
6
18
0V
+5V
C+
C-
CN2
U
V
W
M17
X175
A17-CNA
M17
50
37
CONT-COM
CONT1(SVON)
:1
:2
:3
:4
3
4
5
6
K17B
X1170
34
CONT4
X170
X1175
:1
:2
:3
:4
20
19
8
7
:7
:8
:6
:5
:7
:8
:6
:5
A+
A-
B+
B-
CONT2(RES)
36
S
R
CN1
26
27
28
29
+F-PC
-F-PC
+R-PC
-R-PC
A17-CN1
t
r
A17
T
テーブルZ軸
+オーバーラン
テーブルZ軸
-オーバーラン
テーブルZ軸
原点
テーブルZ軸
サーボモータ
主回路電源
AC200V
制御回路電
源
AC200V
3-17
5OM-1501

0906-003-(M900WBB--2010)
テーブル X 軸 / テーブル
θ
軸回路図
P GP G
A19
N1
A19-N1
U53-CN1
(AE-LINKライン1
センタボード)
M21
A19-CN5
CN5
M
M21
X215
A19-CN7
B
/B
A
/A
CN7
2
3
8
7
6
5
4
3
2
1
:B1
:A1
:B4
:A4
:B3
:A3
:B2
:A2
:A6
1
4
Z-
Z+
B-
B+
A-
A+
EGND
+5V
:3
:2
:4
:1
+V
COM A1
COM B1
GND
N2
A19-N2
A29-N1
(スクリーンY軸/
スクリーン認識Y軸)
+V
COM A1
COM B1
GND
A19-CN6
CN6
NC
BRK+
BRK-
3
2
1
B211
+
L
OUT
-
+
L
OUT
-
B212
A19-CN8
LS+ 4
DOWN
3
ORG
2
SEN+
CN8
1
X211
LS- 5
COM 6
+
L
OUT
-
B213
M19
A19-CN1
CN1
M19
X195
A19-CN3
B
/B
A
/A
CN3
2
3
8
7
6
5
4
3
2
1
:B1
:A1
:B4
:A4
:B3
:A3
:B2
:A2
:A6
1
4
Z-
Z+
B-
B+
A-
A+
EGND
+5V
:3
:2
:4
:1
A19-CN2
CN2
NC
BRK+
BRK-
3
2
1
B191
+
L
OUT
-
+
L
OUT
-
B192
A19-CN4
LS+4
DOWN
3
ORG
2
SEN+
CN4
1
X191
:A1
:B2
:B1
:B4
:A4
:A3
LS-5
COM6
+
L
OUT
-
B193
:B3
:A2
A19-CN10
CN10
MGND
3
2
1
4
A19-CN9
CN9
ALM+
ALM-
STP+
STP-
3
2
1
4
5
6
MGND
C+GND
M+48V
M+48V
C+24V
10A
24A7
青
赤
黄
橙
M
青
赤
黄
橙
10F5
10F5
24B1
10B
48F5
48F5
:A1
:B2
:B1
:B4
:A4
:A3
:B3
:A2
X210
X1215
:10
:4
:3
:2
:1
:8
:7
:6
:5
:3
:2
:4
:1
+V
3
2
1
4
信号線A
GND
信号線B
+V
信号線A
3
2
1
4
信号線B
GND
+V
+V
GND
GND
テーブルθ軸モータ
テーブルθ軸
原点
テーブルθ軸
+オーバーラン
テーブルθ軸
-オーバーラン
テーブルX軸モータ
テーブル
X軸
原点
テーブルX軸
+オーバーラン
テーブルX軸
-オーバーラン
3-18
5OM-1501