5OM-1501-006_w - 第97页
0906-003-(M900WBB--2012) テーブル幅軸回路図 B251 + L OUT - DOWN 3 COM 6 -LS 5 +LS 4 ORG 2 SEN+ CN2 1 CN4 5 3 4 2 A25-CN4 M25 A25-CN2 A25 3 2 1 NC GND 24V CN3 A25-CN3 A25-CN1 CN1 EMG+ EMG- ERR+ ERR- 4 3 2 1 24B3 10B :4 :3 M25 X250…

0912-005A(M900WBB--2011)
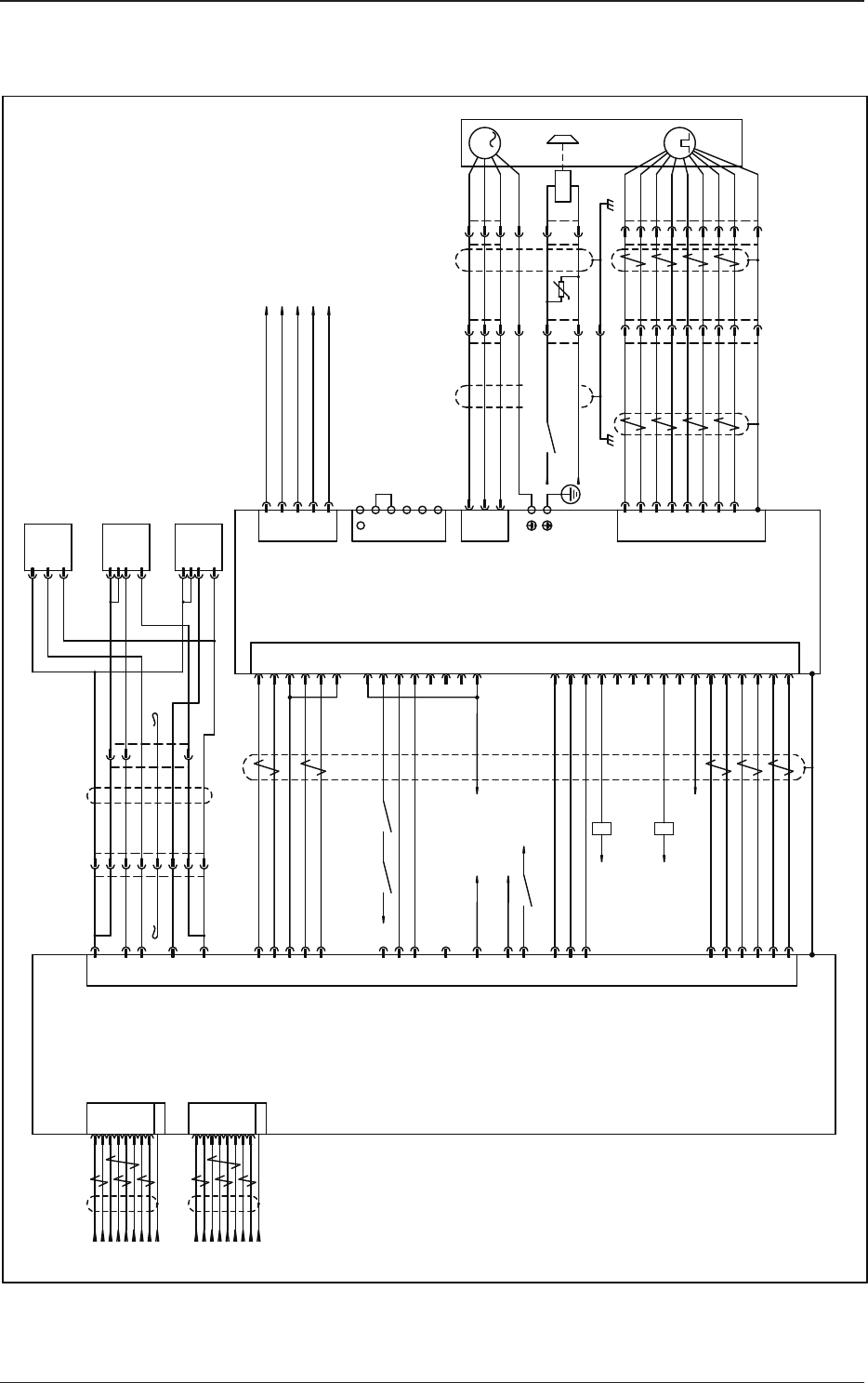
基板上下軸回路図
M
3
P G
U
10A
:1
:1
:2
:3
:1
:1
:2
:3
24A3
1233 2233
64 63
10A
1232
24A3
1235
10A
24A1
83 84
10A
84 83
2232
24A3
1234
:1
:2
123024B3
10B
:1
:2
14 10
:1
X4230
M23B
黄
黄
K23B
X2230
5 1
K3231
L108
L308
L109
L209
L309
K203B K203A
32
CONT6
33
CONT5
49
OUT-PWR
8 1
K3230
:B4
:A4
:3
X233
7
8
C+
C-
5
6
B+
B-
:A2
:B2
黄
白
OUT
L
+
B231
:B1
:A3
:A1
:A2
:A4
:B3
:B4
:B2
X1231
B232
-
OUT
L
+
:1
:2
B233
-
OUT
L
+
-
M23E
U17-N1
(テーブルZ軸
コントローラ)
FG
GND
+V
COM B1
+V
GND
GND
COM A1
+V
U23-N2
K310
STOP
20
A23-CN2
コネクタケース
OUT8(ALM)
OUT7
OUT6
OUT5
GND
6
GND
5
信号線B
8
+V4
信号線 A
3
+V7
GND2
+V1
GND
コネクタケース
6
GND
5
信号線B
8
+V4
信号線 A
3
+V7
GND2
+V1
FG
GND
+V
COM B1
+V
GND
GND
COM A1
+V
+COM
11
A23-CNC
7
ZO
8
ZO-
LZ-
LZ+
27
28
5
BO
6
BO-
LB-
LB+
25
26
3
AO
OUT1
15
OUT2
16
-COM
12
RES
14
A35-N2
(基板認識X軸)
U23-N1 N1
N2
PP
PG
3
4
SG
48
GND
2
SG
47
RB2
CNB
DL1
DL2
P
RB1
-
シールド
黒
赤
紫
緑
茶
青
:A6
緑
黒
白
赤
CNC
CNA
4
AO-
25
OUT-COM
24
OUT-COM
46
45
44
43
42
OUT4(S-ON)
41
OUT3(INP)
40
OUT2(ALM)
39
OUT1(RDY)
35
CONT3
:10
X1230
+LS
31
30
-COM2
ORG
32
-LS
33
+COM2
29
CN1 U23-CN1
U23
NP
NG
INP
SVON
LA-
ALM
LA+
IN1
5
13
23
24
17
19
6
18
0V
+5V
CN2
U
V
W
M23
X235
A23-CNA
M23
50
37
CONT-COM
CONT1(SVON)
:A1
:B1
3
4
34
CONT4
X230
X1235
:1
:2
:3
:4
20
19
:8
:7
:6
:5
:B3
:A3
A+
A-
CONT2(RES)
36
S
R
CN1
26
27
28
29
+F-PC
-F-PC
+R-PC
-R-PC
A23-CN1
t
r
A23
T
基板上下軸
原点
基板上下軸
+オーバーラン
基板上下軸
-オーバーラン
基板バックアップ上下軸
サーボモータ
主回路電源
AC200V
制御回路電
源
AC200V
3-19
5OM-1501

0906-003-(M900WBB--2012)
テーブル幅軸回路図
B251
+
L
OUT
-
DOWN
3
COM
6
-LS
5
+LS
4
ORG
2
SEN+
CN2
1
CN4
5
3
4
2
A25-CN4
M25
A25-CN2
A25
3
2
1
NC
GND
24V
CN3
A25-CN3
A25-CN1
CN1
EMG+
EMG-
ERR+
ERR-
4
3
2
1
24B3
10B
:4
:3
M25
X250
:1
:2
:A2
X1251 X251
/B
B
A
/A
N2
1 +V
2 GND
7 +V
3 信号線 A
4 +V
N1
A25-N1
8
信号線B
5
GND
6
:B1
:A1
:B2
10A
24A7
+V
COM A2
GND
GND
+V
COM B2
+V
GND
FG
GND
1 +V
2 GND
7 +V
3 信号線 A
4 +V
8
信号線B
5
GND
6
GND
+V
COM A2
GND
GND
+V
COM B2
+V
GND
FG
U53-CN2
(AE-LINKライン2
センタボード)
A37-N1
(基板搬送軸ドライバ1)
M
:2
:4
:1
:6
:5
:3
黄
赤
青
橙
黒
白
コネクタケース
コネクタケース
:A2
:B1
:A1
:B2
A25-N2
テーブル幅軸
原点
テーブル幅軸モータ
3-20
5OM-1501

0906-003-(M900WBB--2013)
スキージ駆動軸回路図
E
AC
AC
A27
L206
L106
B271
+
L
OUT
-
A27-CN3
ORG
4
COM
7
COM
8
DOWN
3
SEN+
2
SEN+
CN3
1
X271
A27-N2
N2
N1
A27-N1
A29-N2
(スクリーンY軸/
スクリーン認識X軸)
A33-N1
(基板認識Y軸)
A27-CN4
CN4
3
2
1
ERR+
EMG-
EMG+
ERR-
4
10A
24A7
+LS
5
-LS
6
+
L
OUT
-
B273
+
L
OUT
-
B274
A27-CN6
CN6
B
/B
A
/A
6
5
3
2
1
NC
NC
4
:6
:5
:4
:3
:2
赤
黄
黒
橙
青:1
:2
:4
X270
:1
:1
M27EX1270
M
:3
M27
M27
:1 白
X1271
:B2
:B3
:B1
:A4
:A2
:A1
:A3
:B4
1 +V
2 GND
7 +V
3
4 +V
8
信号線B
5
GND
6
GND
1 +V
2 GND
7 +V
3
4 +V
8
信号線B
5
GND
6
GND
信号線A
信号線A
+V
COM A1
GND
GND
+V
COM B1
+V
GND
+V
COM A1
GND
GND
+V
COM
B1
+V
GND
FG
コネクタケース
コネクタケース
:B2
:B3
:B1
:A4
:A2
:A1
:A3
:B4
スキージ駆動軸
原点
スキージ駆動軸
-オーバーラン
スキージ駆動軸
回転原点
スキージ駆動軸モータ
3-21
5OM-1501