P-257-004e - 第119页
117 MODEL PXH-1 1006-003 Key No. P AR T No. P AR T NAME Q’ty REMARKS New Code NOTE 301 6301398167 FEED SCREW 1 831H--1 10-301 223A0087 303 6301425672 GUIDE,LINEAR 1 831H--1 10-303 222L0812 304 6300890495 SHAFT ,LINEAR 1 …

MODEL PXH-1
1006-002
116
314
See Fig.H-3
Key No.215
361
375
366
374
323
324
311
326
374
303
375
365
374
301
375
365
367
328
361
369
330
370
362
319
377
378
368
362
317
307
306
370
369
361
370
369
310
A
B
384
369
370
361
374
375
365
370
369
362
321
320
372
370
369
329
362
373
363
376
309
375
387
369
322
331
370
361
318
385
386
370
369
308
305
304
327
382
313
382
A
314
B
370
369
361
370
369
See Fig.H-3
Key No.215
315
380
312
311
314
325
374
375
366
376
314
332
376
366
375
374
379
389
388
371
371
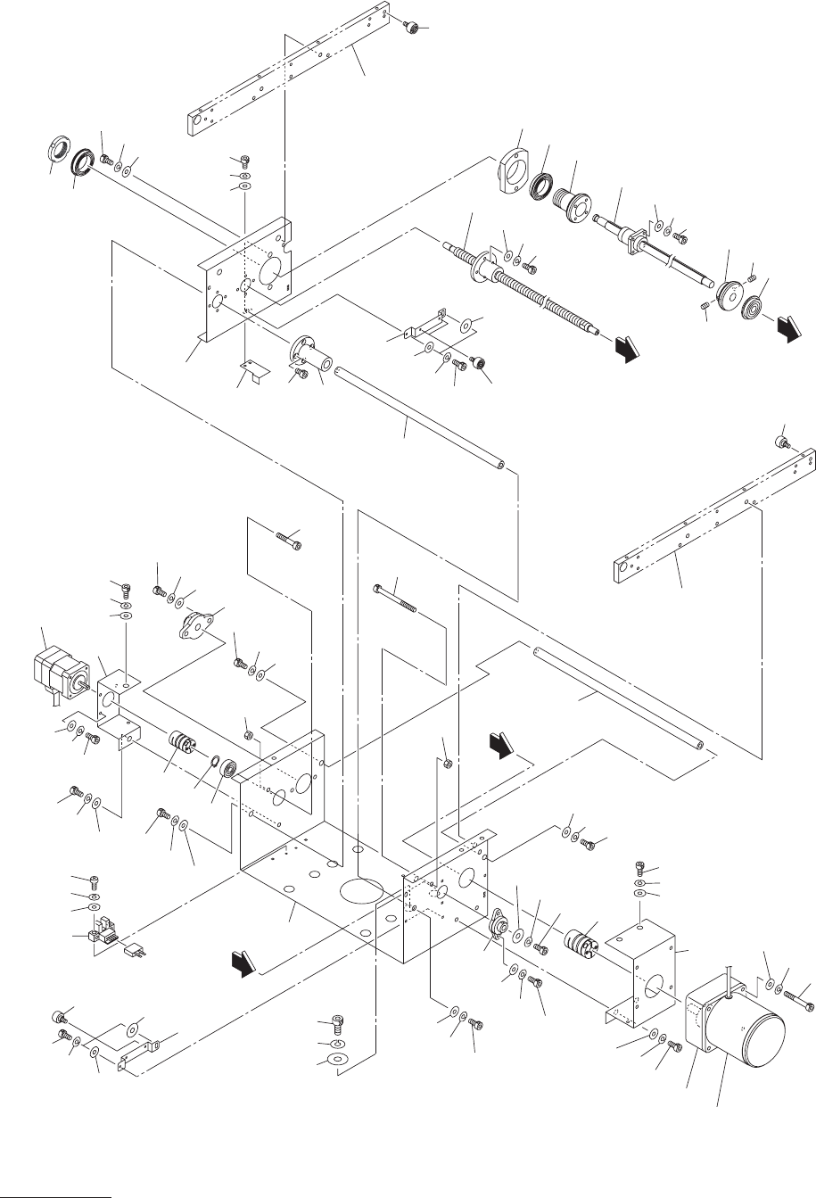
コンベア部
CONVEYOR SECTION
Fig. H-4 R
コンベアフレーム
R Conveyor Frame
( 手前基準)
(Front Reference)

117
MODEL PXH-1
1006-003
Key No. PART No. PART NAME Q’ty REMARKS New Code
NOTE
301 6301398167 FEED SCREW 1 831H--110-301 223A0087
303 6301425672 GUIDE,LINEAR 1 831H--110-303 222L0812
304 6300890495 SHAFT,LINEAR 1 831H--110-304 222K0205
305 6300883947 BUSH,BALL 1 831H--110-305 222J0195
306 6300884043 BEARING,RADIAL 1 831H--110-306 222D0327
307 6300966602 RING 1 831H--110-307 221K0040
308 6300085303 BEARING,UNIT 1 831H--110-308 222F0020
309 6300882988 BEARING,UNIT 1 831H--110-309 222F0076
310 6300000252 SENSOR,PHOTO 1 B391 831H--110-310 23G10002
311 6300884050 BEARING,RADIAL 2 831H--110-311 222D0328
312 6300012057 BEARING,PARTS 1 831H--110-112 222G0009
313 6300011548 BEARING,RADIAL 1 831H--110-313 222D0033
314 6301068978 PULLEY,FLAT 6 831H--110-314 223M0037
315 6300848533 BOLT,HEX 1 M6X70 HEX 221B0103
317 6300883985 COUPLING 1 831H--110-317 223C0153
318 6300883992 COUPLING 1 831H--110-318 223C0154
319 6300912470 MOTOR,STEPPING 1 M39 831H--110-119 4M140090
320 6301427799 MOTOR,REVERSIBLE 1 M03 831H--110-320 4M110049
321 6300884111 GEAR,REDUCTION 1 831H--110-321 223F0122
322 6301422893 FRAME 1 831H--110-322 210B3967
323 6301422909 BRACKET 1 831H--110-323 211FB272
324 6301422565 BOSS 1 831H--110-324 213E0185
325 6301418087 BRACKET 1 831H--110-325 211DA308
326 6300880588 PULLEY 1 831H--110-326 213B0122
327 6300880601 PULLEY 1 831H--110-327 213B0123
328 6301422923 PLATE 1 831H--110-328 211DB273
329 6300880625 BRACKET 1 831H--110-329 211F4883
330 6300880632 BRACKET 1 831H--110-330 211F4884
331 6300880656 SHAFT 1 831H--110-331 213A0658
332 6301418094 BRACKET 1 831H--110-332 221FA309
361 6300007886 BOLT,HEX-SCT 8 M6X16 221A0043
362 6300007862 BOLT,HEX-SCT 6 M6X10 221A0041
363 6300007824 BOLT,HEX-SCT 4 M5X45 221A0037
365 6300007633 BOLT,HEX-SCT 10 M4X12 221A0018
366 6300007619 BOLT,HEX-SCT 6 M4X8 221A0016
367 6300007602 BOLT,HEX-SCT 4 M4X6 221A0015
368 6300007527 BOLT,HEX-SCT 4 M3X10 221A0007
369 4111414305 WASHER V 6X12.5X1.6 14 FW6 221H0320
370 4111413001 WASHER SPR 6 14 SW6 221H0289
371 4110045104 NUT HEX 6 2 M6 F 221F0086
372 4111414107 WASHER V 5X10X1 4 FW5 221H0318
373 4111416705 WASHER SPR 5 4 SW5 221H0287
374 4111414008 WASHER V 4X9X0.8 14 FW4 221H0315
375 4111412905 WASHER SPR 4 17 SW4 221H0284
376 6300010213 WASHER 3 BW4 221H0004
377 4111413902 WASHER V 3X7X0.5 4 FW3 221H0312
378 4111412806 WASHER SPR 3 4 SW3 221H0281
379 4110406202 SCR PAN 3X10 2 M3X10 PAN 221E0488
380 6300008692 BOLT,HEX 1 M6X25 HEX 221B0014
382 6300008951 SET SCREW 2 M5X8 SET 221C0008
H-4

118
MODEL PXH-1
1006-002
Key No. PART No. PART NAME Q’ty REMARKS New Code
NOTE
384 6300008012 BOLT,HEX-SCT 4 M8X20 221A0056
385 4111413100 WASHER SPR 8 4 SW8 221H0291
386 6300010244 WASHER 4 BW8 221H0007
387 6300007626 BOLT,HEX-SCT 1 M4X10 221A0017
388 4111191909 WASHER V 3X7X0.5 2 FW3 F 221H0311
389 4110864408 WASHER SPR 3 2 SW3 F 221H0280
H-4