NXT head partlist - 第131页
H02F,H02 HEAD 1/7 H02F,H02 ヘッド 1/7 UH02617 No. Dr g .No. & Code No. QTY Descri p tion Ratin g Materials Remarks 番号 図番 & コード番号 個数 品名 規 格材 質 備 考 1 PB016D3 1 COVER, UPPER カバー 上 AL 2 K5186R 4 SCREW, C / R COUNTERSUN…

B
B
B
B
C
C
C
C
2
1
3
4
5
22
6
7
8
12
9
15
13
14
16
10
17
19
20
18
22
21
23
24
26
25
24
24
31
30.1
30.1
29
27
28
18
18
35
35
33
25.1
39
39
11
40
30.1
29
30.1
30
30
29
30
29
30
31
41
41
41
41
42
42
42
42
43
44
46
47
46
47
48
48
UH02617
+)+࣊ࢵࢻ
+)++($'
130
PTS-NAHEAD-02JE

H02F,H02 HEAD 1/7
H02F,H02 ヘッド 1/7
UH02617
No. Dr
g
.No. & Code No. QTY Descri
p
tion Ratin
g
Materials Remarks
番号 図番 & コード番号 個数 品名
規
格材質 備考
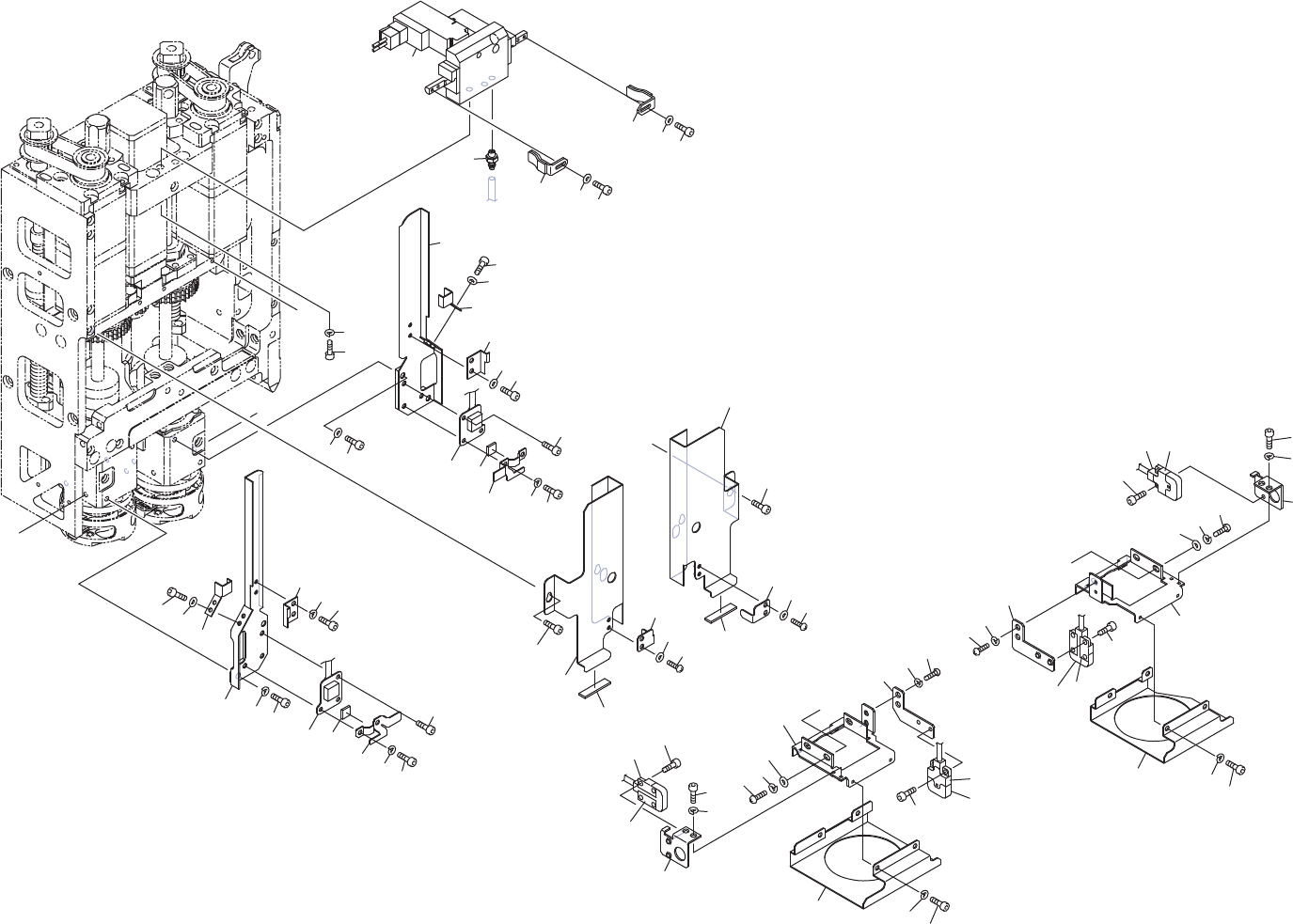
1 PB016D3 1 COVER, UPPER カバー 上 AL
2 K5186R 4 SCREW, C
/
R COUNTERSUNK 小ネジ 十穴皿 M03X005(3カクロ) FE
3 PB98263 1 COVER, SIDE カバー サイド AL
4 K5186R 6 SCREW, C
/
R COUNTERSUNK 小ネジ 十穴皿 M03X005(3カクロ) FE
5 K5170X 2 SCREW, C
/
R COUNTERSUNK 小ネジ 十穴皿 M02.5X005(3カクロ) FE
6 PB98283 1 BKT, RETAINER BKT 押え FE
7 H5265A 2 BOLT, HEX SOCKET ボルト 六角穴 M02X005 FE
8 W1020A 2 WASHER, LOCK ワッシャ ス
プ
リン
グ
2M
/
MFE
9 PB94722 1 COVER カバー FE
10 K5199Y 4 SCREW, WASHER ASS'Y 小ネジ 座金組込み M03X005 ナベセムス P4(3カシロ) FE
11 XK04691 1 BOARD, PRINTED CIRCUIT 基板
プ
リント OT
12 S3228S 4 SPACER スペーサ BSF-308E OT
13 W1021A 4 WASHER, LOCK ワッシャ ス
プ
リン
グ
3M
/
MFE
14 W1040R 4 WASHER, FLAT ワッシャ 平 3M
/
MX0.5X7(1W-3)(3カクロ) FE
15 PS03231 1 SHEET シート OT Consumable Parts
16 S3272X 4 SPACER スペーサ MSB-305-03E OT
17 PB86148 1 COVER, SIDE カバー サイド AL
18 K5186R 6 SCREW, C
/
R COUNTERSUNK 小ネジ 十穴皿 M03X005(3カクロ) FE
19 K51700 2 SCREW, C
/
R COUNTERSUNK 小ネジ 十穴皿 M02X004(3カクロ) FE
20 PB83472 1 BKT, RETAINER BKT 押え FE
21 XB03124 1 VALVE UNIT バル
ブ
ユニット OT
22 K5186R 4 SCREW, C
/
R COUNTERSUNK 小ネジ 十穴皿 M03X005(3カクロ) FE
23 PB98243 1 COVER カバー AL
24 K5186R 8 SCREW, C
/
R COUNTERSUNK 小ネジ 十穴皿 M03X005(3カクロ) FE
25 T50032 1 HANDLE 取手 THA-192-1<TG> OT
25.1 PM0FTY1 2 SPACER スペーサ FE
26 K5358A 2 SCREW, HEX SOCKET COUNTERSUNK 小ネジ 六角穴皿 M03X010 FE
27 PB98253 1 COVER, LOWER カバー 下 AL
28 K5186R 2 SCREW, C
/
R COUNTERSUNK 小ネジ 十穴皿 M03X005(3カクロ) FE
29 XS01582 4 SENSOR センサ OT
30 A4068H 4 ELBOW エルボ M-5ALU-4 OT
30.1 A4068G 4 ELBOW エルボ M-5ALU-3 OT
31 S4033G 2 SENSOR, PRESSURE センサ 圧力 PSE543-M5 OT
33 PX08531 1 NAMEPLATE
銘
板PL
35 PX05132 2 NAMEPLATE, CAUTION
銘
板 注意 PL
39 PX09460 1 NAMEPLATE
銘
板 PL SET
40 H1021H 1 BATTERY バッテリ ER6VLY OT Consumable Parts
41 A4067R 4 ELBOW エルボ M-5AU-3 OT
42 N2030T 4 NIPPLE ニッ
プ
ル M-5AU-4 OT
43 N2140D 1 NIPPLE ニッ
プ
ル LC-0425-M5 OT
44 R2031B 1 RING リン
グ
LS-0425 OT
46 XH00940 4 FILTER フィルタ OT Consumable Parts
47 K10577 4 COVER カバー Z05-030ヨウフィルタカバー OT
48 A5054Z 4 O RING Oリン
グ
5X1.2(Z05-030ヨウフィルタカバー) OT Consumable Parts
131
PTS-NAHEAD-02JE

C
C
C
C
B
B
B
B
A
A
A
A
( )
17
45
37
35
36
33
34
30
31
32
29
41
43
42
37
36
35
38
40
39
54
55
53
46
44
37
35
36
47
49
48
37
35
36
50
51
52
28
23
21
22
20
27
23
25
24
18
19
16
15
9
10
12
11
61
60
13
14
9
58
57
3
2
6
8
7
5
4
1
26
14.1
5.1
62
62
56
59
63
64
65
66
67
68
66
67
68
70
71
31.1
49.1
70
UH02617
+)+࣊ࢵࢻ
+)++($'
132
PTS-NAHEAD-02JE