NXT head partlist - 第35页
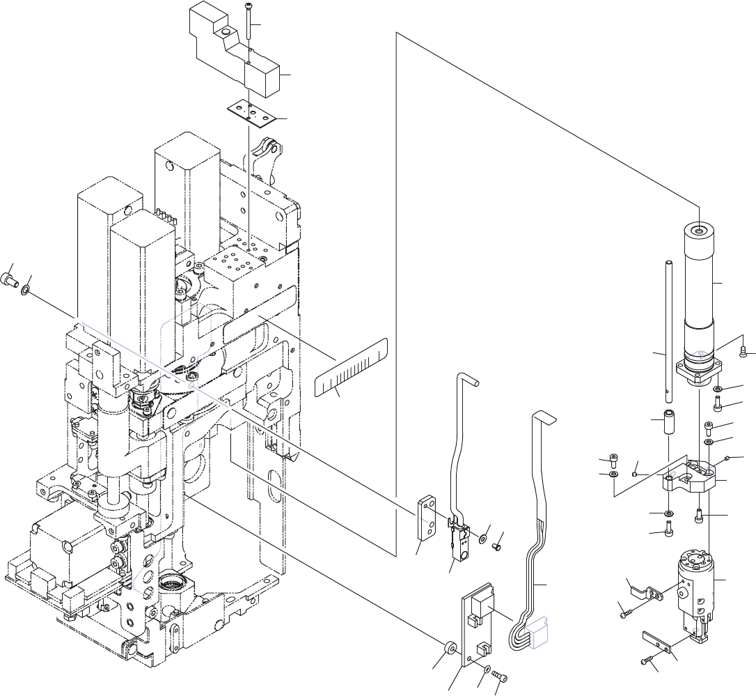
V12 HEAD (AUTO BACKUP PIN EQUIPMENT) V12 ヘッド (自動バックアップピン機能) AA9TG05 No. Dr g .No. & Code No. QTY Descri p tion Ratin g Materials Remarks 番号 図番 & コード番号 個数 品名 規 格材 質 備 考 1 H1122D 1 VALVE, SOL バル ブ SOL SYJ3140-5M0U…

㸨㹆㹘㸮㹂㸯ࠉ㸯㸰㸱㸲㸳㸴㸨
1
2
4
5
31
32
6
7
8
9
9
10
11
12
13
14
15
16
20
21
22
23
24
25
26
27
28
29
30
18
19
3
4.1
33
31
32
9+($'$872%$&.833,1(48,30(17
9࣊ࢵࢻ⮬ືࣂࢵࢡࢵࣉࣆࣥᶵ⬟
AA9TG05
34
PTS-NAHEAD-02JE

V12 HEAD (AUTO BACKUP PIN EQUIPMENT)
V12 ヘッド (自動バックアップピン機能)
AA9TG05
No. Dr
g
.No. & Code No. QTY Descri
p
tion Ratin
g
Materials Remarks
番号 図番 & コード番号 個数 品名
規
格材質 備考
1 H1122D 1 VALVE, SOL バル
ブ
SOL SYJ3140-5M0U OT
2 . 2 SCREW, C
/
R PAN 小ネジ 十穴鍋 M01.8X20 FE ACC-1
3 PJ22721 1 PLATE, ACRYLIC
プ
レート アクリル OT
4 XS01844 1 CYLINDER シリンダ OT
4.1 K51684 1 SCREW, C
/
R COUNTERSUNK 小ネジ 十穴皿 M02X006(3カクロ) FE
5 H5267A 3 BOLT, HEX SOCKET ボルト 六角穴 M02X008 FE
6 W1020A 3 WASHER, LOCK ワッシャ ス
プ
リン
グ
2M
/
MFE
7 PM07YM4 1 FLANGE フランジ AL
8 H5265A 1 BOLT, HEX SOCKET ボルト 六角穴 M02X005 FE
9 N4087K 2 SCREW, HEX SOCKET SET ネジ 六角穴止め M01.6X002 クボミサキ FE
10 PM55002 1 BUSHING, GUIDE
ブ
シュ ガイド OT
11 PM07YL0 1 SHAFT シャフト FE
12 H5266A 1 BOLT, HEX SOCKET ボルト 六角穴 M02X006 FE
13 W1020A 1 WASHER, LOCK ワッシャ ス
プ
リン
グ
2M
/
MFE
14 AA17R11 1 CHUCK チャック OT
15 PB002H1 1 DOG, SW ドッ
グ
SW FE
16 K5180G 2 SCREW, C
/
R PAN 小ネジ 十穴鍋 M02X004 0バン3シュ(3カクロ) FE
18 PB002K3 1 DOG, SW ドッ
グ
SW FE
19 K5180C 2 SCREW, C
/
R PAN 小ネジ 十穴鍋 M01.7X003 0バン3シュ(3カクロ) FE
20 XK05291 1 BOARD, PRINTED CIRCUIT 基板
プ
リント OT
21 S3227R 2 SPACER スペーサ C-2002.5 OT
22 H5267A 2 BOLT, HEX SOCKET ボルト 六角穴 M02X008 FE
23 W11080 2 WASHER, FLAT ワッシャ 平 2M
/
MX0.3X4.3(3カクロ) FE
24 2EGKHA000800 1 HARNESS ハーネス OT
25 PB002L2 1 BKT, SENSOR BKT センサ FE
26 H5274A 2 BOLT, HEX SOCKET ボルト 六角穴 M03X006 FE
27 W1010A 2 WASHER, CONICAL ワッシャ 皿 M-3-L FE
28 S40577 1 SENSOR センサ E2S-W16 1M OT
29 K5180E 1 SCREW, C
/
R PAN 小ネジ 十穴鍋 M02X003 0バン1シュ(3カ シロ) FE
30 W11080 1 WASHER, FLAT ワッシャ 平 2M
/
MX0.3X4.3(3カクロ) FE
31 H5265A 3 BOLT, HEX SOCKET ボルト 六角穴 M02X005 FE
32 W1020A 3 WASHER, LOCK ワッシャ ス
プ
リン
グ
2M
/
MFE
33 PX08322 1 SEAL, BAR CODE シール バーコード OT unit serial number
35
PTS-NAHEAD-02JE

H
H
J
J
J
J
K
K
K
K
A
A
A
A
H
H
24
25
26
1
2
3
4
5
6
6
7
8
9
11
12
13
14
15
16
17
18
19
20
21
22
10
30
31
32
33
35
36
37
38
39
39
40
41
42
43
44
45
44
45
53
54
55
56
57
57
58
58
59
60
60
61
64
65
66
67
68
69
72
73
74
75
76
77
78
79
82
83
83.1
83.1
84
85
86
87
88
89
90
91
92
93
94
95
96
97
98
99
100
101
102
103
104
105
106
107
108
108
109
109
110
110
112
113
114
114
115
115
116
117
118
119
120
120
121
122
123
124
125
126
127
128
128
129
130
131
132
133
134
135
136
137
138
139
140
141
142
143
144
145
146
147
148
149
150
151
152
153
154
155
156
157
158
79.1
79.2
70
71
71
96
28
27
27
29
23
79.3
62
63
123.1
159
56.1
56.2
52
49
50
51
111
111.1
111.1
111.1
111.1
111.1
111.1
++6࣊ࢵࢻ
++6+($'
UH03029
36
PTS-NAHEAD-02JE