P-199-001e - 第107页
MODEL TCM-3700-2 0109-001 105 Key N o. P AR T No . P AR T NAME Q’ t y REMA RKS NOTE 4-12 1 630 070 91 17 SUPP ORT 1 739E--01B-046 2 630 070 9124 SUPPORT 1 739E--01B-047 3 630 069 5694 SP RI N G,FLA T 2 739E--01B-045 4 63…

MODEL TCM-3700-2
0109-001
104
ਛ㑆ࡌࠬㇱ MIDDLE BASE SECTION
Fig. 4-12 ਛ㑆ࡌࠬࠞࡃ Middle Base Cover
See Fig.4-1
Key No.11
26
17
18
19
8
9
10
14
15
11
12
13
14
15
8
9
10
27
28
29
1
5
3
4
2
5
3
4
16
7
6

MODEL TCM-3700-2
0109-001
105
Key No. PART No. PART NAME Q’ty REMARKS
NOTE
4-12
1 630 070 9117 SUPPORT 1 739E--01B-046
2 630 070 9124 SUPPORT 1 739E--01B-047
3 630 069 5694 SPRING,FLAT 2 739E--01B-045
4 630 070 9902 MACHINE SCREW 4 739E--01H-018
5 630 000 7749 BOLT,HEX-SCT 2 M5X10
6 630 069 5731 SUPPORT 1 739E--01B-049
7 630 069 5724 SUPPORT 1 739E--01B-048
8 411 141 4107 WASHER V 5X10X1 4 FW5
9 411 141 6705 WASHER SPR 5 4 SW5
10 630 000 7770 BOLT,HEX-SCT 4 M5X20
11 411 141 4008 WASHER V 4X9X0.8 2 FW4
12 411 141 2905 WASHER SPR 4 2 SW4
13 630 000 7626 BOLT,HEX-SCT 2 M4X10
14 630 069 4598 PLUNGER 2 739E--01H-017
15 411 141 0406 NUT HEX 4 2 M4-3
16 630 070 9100 COVER 1 739E--01B-044
17 411 141 4008 WASHER V 4X9X0.8 2 FW4
18 411 141 2905 WASHER SPR 4 2 SW4
19 630 000 7619 BOLT,HEX-SCT 2 M4X8
26 630 070 9391 COVER 1 739E--01B-051
27 411 141 4008 WASHER V 4X9X0.8 2 FW4
28 411 141 2905 WASHER SPR 4 2 SW4
29 630 000 7626 BOLT,HEX-SCT 2 M4X10

MODEL TCM-3700-2
0109-001
106
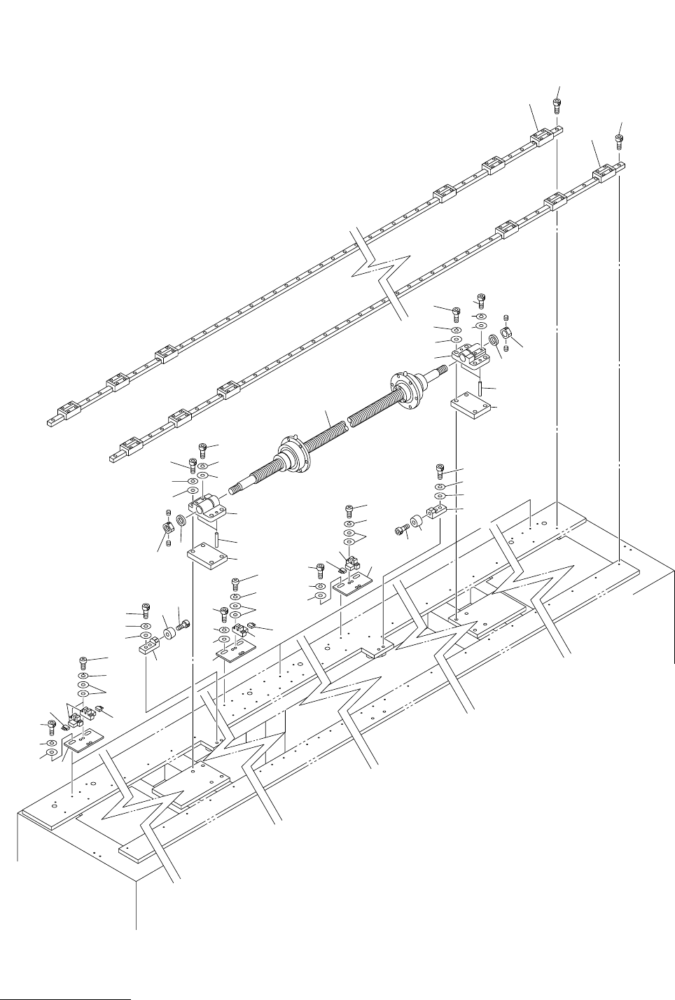
ㇱຠଏ⛎ㇱ FEEDER CARRIAGE SECTION
Fig. 5-1 ࡞ゲ Feeder Axis
21
22
21
22
3
4
2
8
7
6
12
11
9
2-1
10
1
2
8
7
6
9
2-1
12
11
3
4
10
31
32
33
39
38
37
33
36
35
34
31
43
42
41
46
45
44
33
32
36
35
34
39
38
37
39
38
37
31
32
33
36
46
45
44
41
42
43
35
34
TCM-3700-2
Fig.5-1