P-199-001e - 第121页
MODEL TCM-3700-2 0109-001 119 Key N o. P AR T No . P AR T NAME Q’ t y REMA RKS NOTE 5-5 12 1 630 1 10 41 19 ASSY ,CORD (C30 SVM2,3) 1 12 2 630 095 0168 CORD(C30-R-PG) 1 739FB-01D-805 12 3 630 076 2037 ASSY ,CORD (C30-R1-…

MODEL TCM-3700-2
0109-001
118
ㇱຠଏ⛎ㇱ FEEDER CARRIAGE SECTION
Fig. 5-5 ࠤࡉ࡞ Cable
121
132
131
133
122
123
See Fig.5-3
Key No.1-2
See Fig.5-3
Key No.99
See Fig.5-3
Key No.1-1
See Fig.5-3
Key No.99
TCM-3700-2
TCM-3100J-2
Fig.5-5

MODEL TCM-3700-2
0109-001
119
Key No. PART No. PART NAME Q’ty REMARKS
NOTE
5-5
121 630 110 4119 ASSY,CORD (C30 SVM2,3) 1
122 630 095 0168 CORD(C30-R-PG) 1 739FB-01D-805
123 630 076 2037 ASSY,CORD (C30-R1-LO) 1
131 630 110 4119 ASSY,CORD (C30 SVM2,3) 1
132 630 095 0168 CORD(C30-R-PG) 1 739FB-01D-805
133 630 076 2068 ASSY,CORD (C30-R2-LO) 1

MODEL TCM-3700-2
0109-001
120
19-1
39
17
26
25
24
23
46
46-1
47
44
45
32
31
30
18
51
52
92
91
78
9
80
81
82
6
14
15
16
10
116
115
114
117
74
75
76
77
61
62
63
56
55
54
53
57
58
56
55
9
7
9
13
12
11
10
10
11
12
13
54
57
58
14
15
16
61
62
63
105
104
103
102
113
112
106
110
109
107
119
120
118
107-1
108-3
108-2
108-1
101
53
60-2
60-1
59
60
111
11
12
13
1
93
52
51
34
35
36
37
33
21
22
48
49-1
49
50
38
43
45
19-2
19-3
40
41
42
27
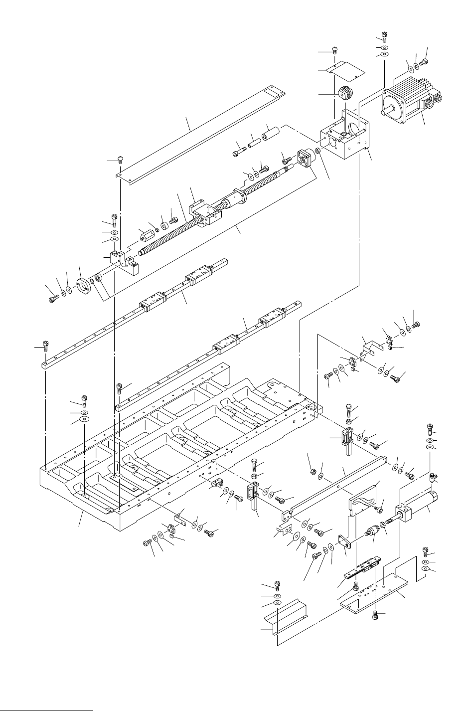
TCM-3700-2
TCM-3700
Fig.6-1
㨄㨅࠹ࡉ࡞ㇱ XY TABLE SECTION
Fig. 6-1 㨄ゲ X Axis