N7202A019B - 第85页
Ref No. Remark s R 1 Q'ty 17-A フィーダーテーブルカバー(交換台車対応)Front側:NPM-W Feeder Table Cover(Feeder Cart)Front:N PM-W イラスト No. Part No. 品 名 品番 数量 R 2 パーツリスト Kit N o . キット品 番 Kit Name キット名称 N610124114AA Part Nam e 備 考 セクションNo.…

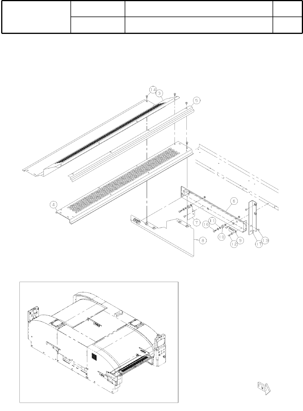
17-A
フィーダーテーブルカバー(交換台車対応)Front側:NPM-W
Feeder Table Cover(Feeder Cart)Front:NPM-W
パーツレイアウト
Ki
t
N
o
.
キット
品番
Kit Name
キット名称
N610124114AA
セクションNo.
PARTS LAYOUT
Section No.
--
S61
( KN610124114AA-07-1 )

Ref
No.
Remarks
R
1
Q'ty
17-A
フィーダーテーブルカバー(交換台車対応)Front側:NPM-W
Feeder Table Cover(Feeder Cart)Front:NPM-W
イラスト
No.
Part No.
品 名品番 数量
R
2
パーツリスト
Kit N
o
.
キット品
番
Kit Name
キット名称
N610124114AA
Part Name
備 考
セクションNo.
PARTS LIST
Section No.
R
3
COVER
1
3 N210152851AA
COVER
1
4 N210152852AA
COVER
1
5 N210147099AB
BRACKET
1
6 N210147101AD
COVER
1
7 N210147835AA
COVER
1
8 N610124223AD
MAGNET
2
9 KXF0CS8AA00 C-54-2-black
URETHANE
4
10 N510030817AA 87URWH12-8-5
SPACER
4
11 N510017097AA CB-405E
SCREW
4
12 N510018233AA
Cross recessed Truss head machine screw M3X10-4.8 A2S (Trivalent)
SCREW
13
13 N510018280AA
Cross recessed Truss head machine screw M4X6-4.8 A2S (Trivalent)
SCREW
18
14 N510018283AA
Cross recessed Truss head machine screw M4X8-4.8 A2S (Trivalent)
SCREW
4
16 N510018266AA
Cross recessed Truss head machine screw M4X16-4.8 A2S (Trivalent)
COVER
1
17 N210151351AB
S62
--
( KN610124114AA-07-1 )

17-B
フィーダーテーブルカバー(交換台車対応)Front側:NPM-W
Feeder Table Cover(Feeder Cart)Front:NPM-W
パーツレイアウト
Ki
t
N
o
.
キット
品番
Kit Name
キット名称
N610124114AA
セクションNo.
PARTS LAYOUT
Section No.
--
S63
( KN610124114AA-07-2 )