00191087-01 - 第31页
Käyttöohje SIPLACE 80 S/F/G 0 Johdanto Painos 07/97 CE FIN ohjelmave rsiosta SR.010.xx 0.4 Kokoonpanokatsaus 0 - 27 0.4.7 SI PLACE G:n kokonaiskuva Kuva 0.4.7 Kokonaiskuva S IPLACE G - Seloste k uvaa n 0.4.7 1) An nost u…

0 Johdanto Käyttöohje SIPLACE 80 S/F/G
0.4 Kokoonpanokatsaus Painos 07/97 CE FIN ohjelmaversiosta SR.010.xx
0 - 26
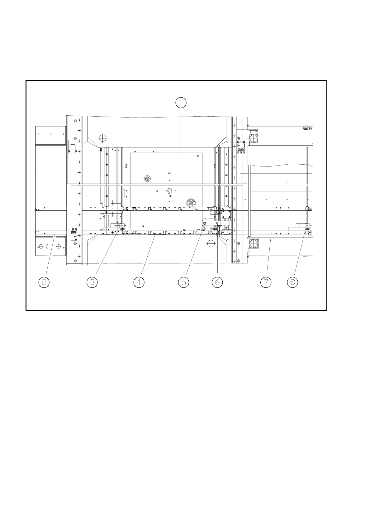
0.4.6 Yleiskatsaus painopiirilevykuljetukseen
Kuva 0.4.6 Yleiskatsaus painopiirilevykuljetukseen
- Seloste kuvaan 0.4.6
1) Nostopöytä 2) Syöttöhihna
3) BERO-ääniluotain 4) Keskihihna
5) BERO-ääniluotain 6) Öiirilevypysäytin
7) Lähtöhihna 8) BERO-ääniluotain

Käyttöohje SIPLACE 80 S/F/G 0 Johdanto
Painos 07/97 CE FIN ohjelmaversiosta SR.010.xx 0.4 Kokoonpanokatsaus
0 - 27
0.4.7 SIPLACE G:n kokonaiskuva
Kuva 0.4.7 Kokonaiskuva SIPLACE G
- Seloste kuvaan 0.4.7
1) Annostusyksikkö 1 2) Annostusyksikkö 2
3) Annostusyksikkö 3 4) Kaavintarulla

0 Johdanto Käyttöohje SIPLACE 80 S/F/G
0.4 Kokoonpanokatsaus Painos 07/97 CE FIN ohjelmaversiosta SR.010.xx
0 - 28
0.4.8 Yleisnäkymä SIPLACE G:n annostusyksiköistä
Kuva 0.4.8 Yleisnäkymä SIPLACE G:n annostusyksiköistä
- Seloste kuvaan 0.4.8
1) Annostusyksikkö 1 2) Annostusyksikkö 2
3) Annostusyksikkö 3
❒
3
1
2