00191087-01 - 第54页
2 Ilmaisimet ja ohjauselimet Käyttöoh je SIPLACE 80 S/F/ G 2.2 Automaatin syöttö- ja tulostuslaitteet Painos 07/97 CE FIN ohjelmaversiosta SR.010.xx 2 - 8 Näppäimis tö on l iitet ty ohjaus yksik köön si joite ttuun ti et…

Käyttöohje SIPLACE 80 S/F/G 2 Ilmaisimet ja ohjauselimet
Painos 07/97 CE FIN ohjelmaversiosta SR.010.xx 2.2 Automaatin syöttö- ja tulostuslaitteet
2 - 7
HUOMAUTUS
Vaakapoikkeutus ja pystypoikkeutus on säädetty tehtaalla eikä niiden säätöä tarvitse tavallisesti korjata.
Allakuvatuissa tapauksissa säätöä on kuitenkin tarkennettava:
• Kuva liukuu: Säädä vaakapoikkeutus.
• Kuva pyörii läpi: Säädä pystypoikkeutus.
2.2.1.3 Näppäimistö
Näppäimistö on IBM-MF-yhteensoveltuva näppäimistö, jossa on 104 näppäintä ja maakohtainen näppäinkaa-
vio (suomi). Lisävarusteena näppäimistöön voidaan integroida juovakoodin tulkintalaite.
Kuva 2.2.3 Näppäimistö
- Seloste kuvaan 2.2.3
1) RETURN-näppäin 2) SHIFT-näppäin
3) Normaalikäytössä molempien loistediodinäyttöjen 4) Kohdistimen ohjausnäppäimrt
on oltava sammuksissa. (Koskevat vain tapauksia
joissa lisävarusteena on juovakoodin tulkintalaite.)
5) Numeronäppäimistö

2 Ilmaisimet ja ohjauselimet Käyttöohje SIPLACE 80 S/F/G
2.2 Automaatin syöttö- ja tulostuslaitteet Painos 07/97 CE FIN ohjelmaversiosta SR.010.xx
2 - 8
Näppäimistö on liitetty ohjausyksikköön sijoitettuun tietokoneeseen joustavalla johdolla, jossa on 5-napainen
DIN-normin mukainen diodiliitin. Näppäimistön oikealle sivulle on sijoitettu juovakoodilukukynän liitosrasia.
Valikon ohjaukseen (katso jakso 2.3) tarvittavat näppäimet on merkitty Kuva 2.2.3 tummalla reunalla.
HUOMAUTUS
Numeronäppäimistöön ryhmitetyt näppäimet
• kuva ylös/alas
•POS 1
•END
• Nuoli ylös / alas / vasemmalle / oikealle
toimivat näissä funktioissa vain jos NUMLOCK-toiminto on kytketty toiminnasta (tällöin loistodiodinäyttö on
sammunut). Muussa tapauksessa nämä näppäimet toimivat numeronäppäiminä.
Jos NUMLOCK-toiminto on päällä (loistediodinäyttö palaa), voit kytkeä sen pois painamalla yksinkertaisesti
numeronäppäimistössä olevaa NUM-näppäintä.
Näppäimistön alimmalla rivillä on kaksi erikoisnäppäintä, joissa lukee "LASER" ja "PROG" ja joissa on sisään-
rakennettu loistodiodinäyttö. Tämä näyttö syttyy kun kyseiset funktiot ovat toiminnassa. "PROG"-näppäimellä
valitaan juovalukukynän ohjelmointimoodi, ja "LASER"-näppäimellä voi vaihtaa kytkentää juovalukukynän ja
laser-kuvanlukijapistoolin välillä.
HUOMAUTUS
Varmista normaalikäytössä, että näiden näppäinten funktiot eivät ole toiminnassa: Molempien loistediodinäyt-
töjen on oltava sammuksissa.
2.2.1.4 Juovakoodilukukynä (lisävaruste)
Juovakoodilukukynän ansiosta voit tuotanto-olosuhteissakin nopeasti ja luotettavasti lukea tietoja komponent-
tien keloista, jos esimerkiksi haluat vertailla komponenttivaraston ja esisäätötiedoston edellyttämiä määriä
(jälkitäyttötarkastus).
Jos tietue on luettu virheettömästi, kuuluu kuittauksena akustinen signaaliääni.
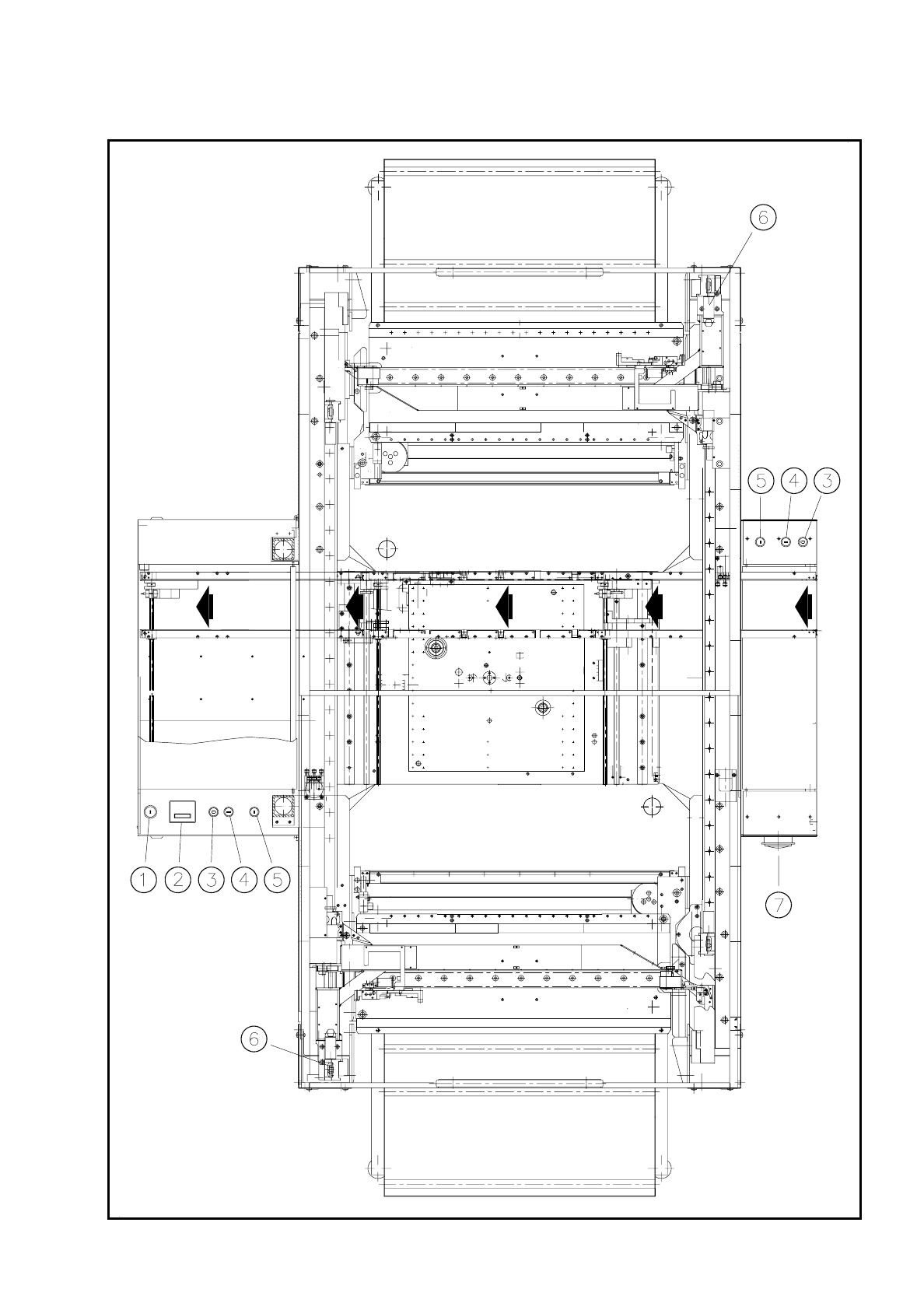
2.2.1.5 Automaatin kytkimet
Kuva 2.2.4 ilmenevät automaatin seuraavien kytkinten paikat: pääkytkin, kupukytkimet, käynnistys- ja seis-
painikkeet, hätäkaisimet, lukollinen kosketin ja komponentinlaskija.
VAROITUS
∆
!
∆
!
Lukollisella koskettimella pystyy peruuttamaan tietyt turvatoiminnot kuten esimerkiksi portaaliakseleiden siirtä-
misen suojakupujen ollessa auki. Tätä kosketinta saavat käyttää ainoastaan tähän koulutetut henkilöt huolto-
tai kunnossapitotöiden yhteydessä. Kaikissa muissa tapauksissa on avain pidettävä asiattomien ulottuvilta,
koska asiaton käyttö voi aiheuttaa vakavia vammoja tai automaatin vaurioita.

Käyttöohje SIPLACE 80 S/F/G 2 Ilmaisimet ja ohjauselimet
Painos 07/97 CE FIN ohjelmaversiosta SR.010.xx 2.2 Automaatin syöttö- ja tulostuslaitteet
2 - 9
Kuva 2.2.4 Automaatin kytkinten paikat