KE-3010_KE-3020V_KE-3020VR-Rev07 - 第216页
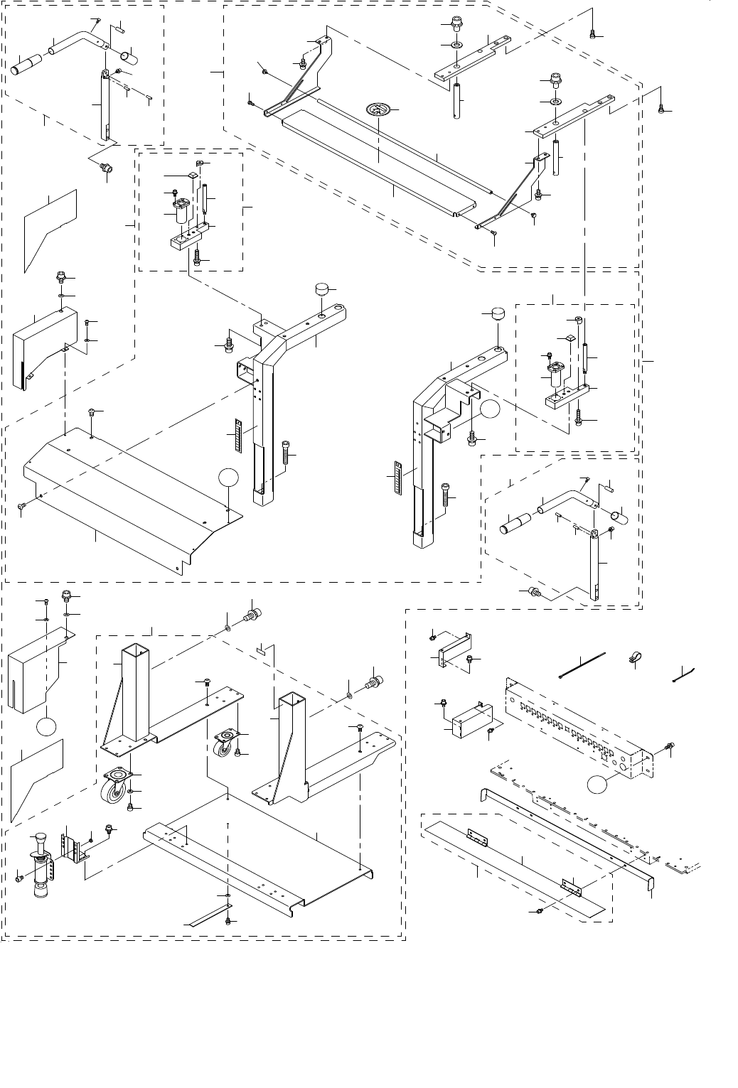
- 207 - 104.M REPLACING OVERALL CHANGER T RUCK COMPONENTS(WITHOU T CONNEC TOR BRACKET) メカ一括交換台車関係(コネクタブラ ケット無し) 3 4 5 6 6 8 9 7 10 11 12 13 15 16 14 23 23 24 24 22 25 26 26 27 27 37 31 39 38 29 44 41 33 44 40 42 32 34 35…

- 206 -
NOTE( 注記 ) #01....FOR EN EN 用
REF.NO NOTE PART NO D E S C R I P T I O N
品 名
Qty
1 E2508-729-0A0 CONNECTOR BRACKET (30) ASM.
コネクタブラケット組
1
2
#01
E2508-729-AA0 CONNECTOR BRACKET ASM.
コネクタブラケット組
1
3 B4011-210-000 SPACER
基板スペーサ
(4)
4 NM-6030003-SC NUT M3X0.5 TYPE3
六角ナット M3X0.5 3種
(4)
5 SM-4020801-SC SCREW M2 X 8
なべ小ねじ M2 L=8
(4)
6 HX-0029400-00 FIXED BASE
固定ベース
(1)
7 SM-4030601-SC SCREW M3 X 6
なべ小ねじ M3X0.5 L=6
(1)
8 PJ-3010651-06 KNIFE UNION
メスユニオン
(2)
9 E2904-700-000 SOCKET
ソケット
(2)
10 PJ-2300061-00 UNION 06
隔壁用ユニオン 06
(1)
11 PJ-3050600-04 TEE
チーズ
(1)
12 PJ-0320090-05 NIPPLE
エアカプラニップル
(1)
13 E2642-721-000 CONNECTOR NO. LABEL
コネクタNO.ラベル
(1)
14 BT-0600400-EC TUBE HOSE, BLUE
ウレタンホース 青
(1.3)
15 EA-9500B01-00 CABLE BAND
束線バンド
(4)
16 E8615-715-0A0 FEEDER BANK CIRCUIT BOARD ASM.
フィーダバンク基板組
(2)
17 E8618-721-0A0 FEEDER I/F BOARD ASM.
フィーダI/F基板組
(1)
18 E2508-729-000 CONNECTOR BRACKET (30)
コネクタブラケット
(1)
19
#01
HN-0017900-0B NOISE FILTER
ノイズフィルタ
(2)
20
#01
HN-0017900-0D FERRITE CLAMP
フェライトクランプ
(4)
21
#01
HK-0429900-8A CAP
キャップ
(1)
22
#01
HN-0014900-00 CLAMP FILTER(L)
クランプフィルタ
(3)
23 SM-4860601-SC SCREW M2.6 L=6
なべ小ねじ M2.6 L=6
(16)
24 SM-4031201-SC SCREW M3 X 12
なべ小ねじ M3X0.5 L=12
(4)

- 207 -
104.M REPLACING OVERALL CHANGER TRUCK COMPONENTS(WITHOUT CONNECTOR BRACKET)
メカ一括交換台車関係(コネクタブラケット無し)
3
4
5
6
6
8
9
7
10
11
12
13
15
16
14
23
23
24
24
22
25
26
26
27
27
37
31
39
38
29
44
41
33
44
40
42
32
34
35
43
46
45
46
45
49
51
52
53
53
55
55
54
56
57
57
58
71
72
76
73
75
76
75
62
63
64
21
30
A
A
48
83
81
2
B
B
85
84
86
86
87
87
92
90
89
88
91
17
19
18
28
36
50
50
59
60
59
60
66
68
70
64
63
62
66
68
69
65
74
73
74
77
82
82
61
20
61
1
70
47
67
69
67
69
69
65
80
93
78
79

- 208 -
NOTE( 注記 ) #01....FOR EN EN 用
REF.NO NOTE PART NO D E S C R I P T I O N
品 名
Qty
1 400-21958 FLOOR TROLLEY SUB UNIT
フロアトロリーサブユニット
1
2 400-21959 TROLLEY BOTTOM ASSY
トロリーボトム組
(1)
3 400-21912 TROLLEY FRAME BL
トロリーフレームBL
(1)
4 400-21913 TROLLEY FRAME BR
トロリーフレームBR
(1)
5 400-21914 TROLLEY BASE PLATE
トロリーベースプレート
(1)
6 SM-3061252-TN SCREW M6 L=12
丸ねじ M6 L=12
(6)
7 400-21957 TROLLEY CASTER (75)
トロリーキャスタ(75)
(2)
8 WP-0612516-SD WASHER 6.1X15.2X2.5
平座金 6.1X15.2X2.5
(8)
9 SM-6060802-TN BOLT
六角穴ボルト
(8)
10 400-21956 TROLLEY CASTER (50)
トロリーキャスタ(50)
(2)
11 SM-6060802-TN BOLT
六角穴ボルト
(8)
12 E2711-721-000 TROLLEY STOPPER
トロリーストッパー
(2)
13 E2710-721-000 STOPPER ATTACHMENT
ストッパーアタッチメント
(2)
14 SM-6060802-TN BOLT
六角穴ボルト
(8)
15 SL-6061242-TN BOLT
座金付き六角穴ボルト
(4)
16 NM-6060003-SC NUT M6
六角ナット M6
(4)
17 WP-0430801-SC WASHER M4
平座金 M4
(2)
18 400-23476 FG GUM SHEET
FGゴムシート
(1)
19 SM-6040802-TN SCREW
六角穴ボルト M4X0.7 L=8
(1)
20 400-21960 TROLLEY UPPER ASSY
トロリーアッパー組
(1)
21 400-58933 TROLLEY FRAME L
トロリーフレームL
(1)
22 400-58934 TROLLEY FRAME R
トロリーフレームR
(1)
23 SM-6125052-TR SCREW
六角穴ボルト M12 L=50
(2)
24 400-01730 SCALE MARKS SEAL
メモリシール
(2)
25 400-58935 TROLLEY UPPER PLATE
トロリーアッパープレート
(1)
26 SM-3061252-TN SCREW M6 L=12
丸ねじ M6 L=12
(6)
27 400-01731 TROLLEY RUBBER B
トロリーラバーB
(4)
28 400-22464 STOPPER PLATE L ASSY
ストッパープレートL組
(1)
29 400-53180 TROLLEY STOPPER PLATE L
トロリーストッパプレートL
(1)
30 400-01748 TROLLEY SUB GUIDE
トロリーサブガイド
(1)
31 SL-6063092-TN SCREW M6 L=30
座金付き六角穴ボルトM6 L=30
(1)
32 E2703-721-000 TROLLEY SHAFT
トロリーシャフト
(1)
33 S1021-710-000 ST RUBBER FOOT
STゴム足
(1)
34 SB-8160005-C0 BEARING
ころがり軸受
(1)
35 SL-6041042-TN BOLT
座金付き六角穴ボルト
(4)
36 400-22465 STOPPER PLATE R ASSY
ストッパープレートR組
(1)
37 400-01735 TROLLEY STOPPER PLATE
トロリーストッパープレート
(1)
38 400-01748 TROLLEY SUB GUIDE
トロリーサブガイド
(1)
39 SL-6063092-TN SCREW M6 L=30
座金付き六角穴ボルトM6 L=30
(1)
40 E2703-721-000 TROLLEY SHAFT
トロリーシャフト
(1)
41 S1021-710-000 ST RUBBER FOOT
STゴム足
(1)
42 SB-8160005-C0 BEARING
ころがり軸受
(1)
43 SL-6041042-TN BOLT
座金付き六角穴ボルト
(4)
44 SL-6082092-TN BOLT
座金付き六角穴ボルト
(4)
45 WP-1052001-SC WASHER 10,5X21X2
平座金みがき丸 M10
(4)
46 SL-6102042-TN SCREW
座金付き六角穴ボルト
(4)
47 400-21961 TROLLEY SLIDE ASSY
トロリースライド組
(1)
48 400-21916 BANK PLATE L
バンクプレートL
(1)
49 400-21917 BANK PLATE R
バンクプレートR
(1)
50 400-23221 SUPPORT SHAFT
サポートシャフト
(2)
51 400-01736 FS BRACKET L
FSブラケットL
(1)
52 400-01737 FS BRACKET R
FSブラケットR
(1)
53 SL-6061692-TN BOLT
座金付き六角穴ボルト
(4)
54 400-01739 FS PLATE
FSプレート
(1)
55 SM-3040652-TN SCREW M4 L=6
丸ねじ M4 L=6
(4)
56 400-21918 TAPE GUIDE
テープガイド
(1)
57 400-68308 SET SCREW M4 L=8
化粧ねじ M4×8
(2)
58 E5721-729-000 LABEL
荷重禁止シール
(1)
59 SL-6102042-TN SCREW
座金付き六角穴ボルト
(2)
60 WP-1052001-SC WASHER 10,5X21X2
平座金みがき丸 M10
(2)
61 400-21962 TROLLEY HANDLE ASSY
トロリーハンドル組
(2)
62 400-21920 TROLLEY HANDLE
トロリーハンドル
(1)
63 E2641-729-000 HANDLE CLIP
ハンドルグリップ
(1)
64 E2635-729-000 HANDLE SLIDER
ハンドルスライダ
(1)
65 400-21919 HANDLE SHAFT
ハンドルシャフト
(1)
66 SL-6030642-TN SCREW M3 L=6
座金付き六角穴ボルト
(1)
67 SL-6040642-TN BOLT
座金付き六角穴ボルト
(1)
68 PS-0600182-KP SPRING PIN
スプリングピン 6X18
(1)
69 PS-0400122-KP SPRING PIN
スプリングピン
(2)
70 SL-6082092-TN BOLT
座金付き六角穴ボルト
(4)
71 400-58936 TROLLEY COVER AL
トロリーカバーAL
(1)
72 400-58937 TROLLEY COVER AR
トロリーカバーAR
(1)
73 SM-3040652-TN SCREW M4 L=6
丸ねじ M4 L=6
(4)
74 WP-0430801-SC WASHER M4
平座金 M4
(4)
75 WP-0841601-SC WASHER 8.4X17.4X1.6
平座金みがき丸 M8
(2)
76 SL-6081242-TN BOLT
座金付き六角穴ボルト
(2)
77 E4981-700-000 LABEL
EPROM用ブランクラベル
(1)
78 400-58938 SIDE TAPE L
サイドテープL
(1)
79 400-58939 SIDE TAPE R
サイドテープR
(1)
80 HX-0006500-0B CABLE BAND
束線バンド
6
81 HX-0015000-0K CABLE CLIP
ケーブルクリップ
1
82 400-01734 SCREW
段ねじ
4
83 SL-6051492-TN BOLT
座金付き六角穴ボルト
4
84
#01
E1173-725-000 PLATE STAND COVER L
プレートスタンドカバーL
1
85
#01
E1174-725-000 PLATE STAND COVER R
プレートスタンドカバーR
1
86 SL-6040892-TN BOLT
座金付き六角穴ボルト
2
87 SL-6051092-TN BOLT
座金付き六角穴ボルト
2
88
#01
400-01749 BANK FLAP ASSY
バンクフラップ組
1
89 400-18388 BUTT HINGE
平型蝶番
(2)
90 400-18389 BANK FLAP
バンクフラップ
(1)
91
#01
400-01750 BANK COVER
バンクカバー
1
92
#01
SL-6040892-TN BOLT
座金付き六角穴ボルト
4
93 HX-0067400-00 CABLE BAND
ケーブルバンド
4