SIPLACE D4-D4i 工程师手册_EN - 第88页
Service Work Component Handling 4.3.2 Cutter 88 Service Manual SIPLACE D4/D4i Removing the Blades Removing/fitting the stat io nary and movable blade WARNING ! Risk of injury! There is a high risk of injury from the blad…

Service Work
4.3.2 Cutter Component Handling
Service Manual SIPLACE D4/D4i 87
See also
4.3.2.4.1 Tightening Torques for Cutter Screws [ ➙ 83]
6.4.3 Check the gap between the empty-tape baffle, inside and the leading edge of the tape deflec-
tor. [ ➙ 223]
4.3.2.4 Overview of Cutter [ ➙ 82]
3.4.2.2 Overview: Mechanical Construction [ ➙ 38]
4.3.2.6
4.3.2.6 Turning the Stationary and Moveable Blade by 180 °
Turning the Stationary and Moveable Blade by 180 °
► Plug the compressed air connection to the machine
into the Y socket union (9) (in the cable duct).
► Place the cover back on the control board and the ca-
ble duct.
► Fit the empty-tape duct assembly and check the gap
between the empty-tape baffle, inside and the leading
edge of the tape deflector.
► In this position tighten all 4 screws crosswise.
CAUTION! Tighten the screws to the correct
torque.
► Perform the appropriate “Final Steps”.
NOTICE
The movable blade has a cutting edge on both sides.
If one cutting edge becomes worn, the blade can still be used by turning it 180° on its vertical
axis and reinstalling it.
At the same time, the stationary blade must also be turned 180° on its vertical axis and installed.
If both edges are already blunt, replace the blades.

Service Work
Component Handling 4.3.2 Cutter
88 Service Manual SIPLACE D4/D4i
Removing the Blades
Removing/fitting the stationary and movable blade
WARNING! Risk of injury!
There is a high risk of injury from the blades and the tape
deflector.
Wear appropriately thick protective gloves!
Never reach into the cutter from below or into the empty-
tape duct from above.
Make sure that no-one can injure themselves on the cut-
ter, after it has been dismantled and placed next to the
machine!
► Remove the cutter.(See "4.3.2.5 Exchanging the
Pneumatic Cutter" [ ➙ 83].)
► Dismantle the deflector plate (12): 4 hexagon socket-
head screws M4 x 8 (13).

Service Work
4.3.2 Cutter Component Handling
Service Manual SIPLACE D4/D4i 89
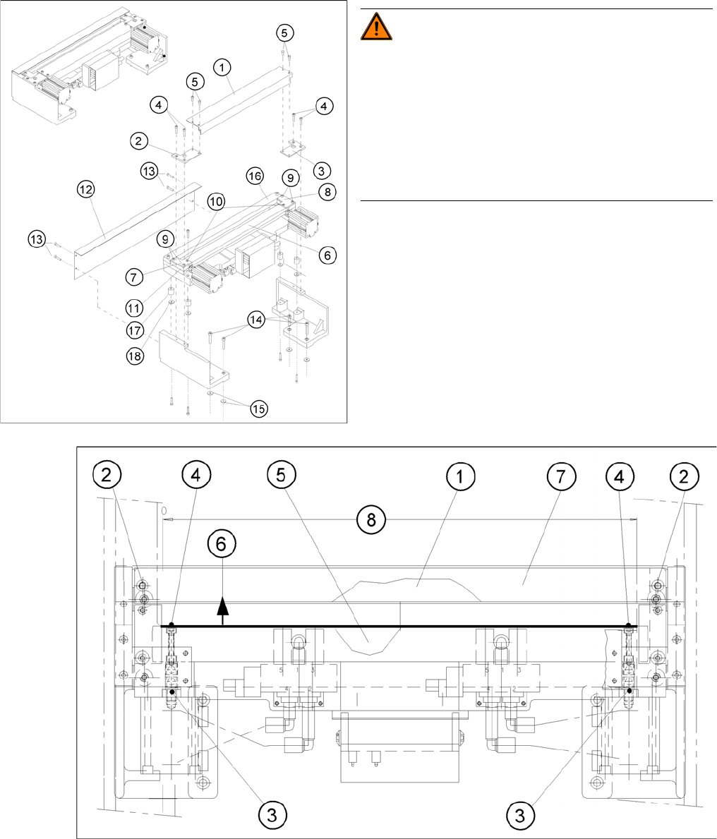
Legend
► Loosen the screws fastening the stationary blade on the left and right (2).
► Mark the mounting position of the stationary blade (on the blade) with a water-insoluble marker (=
right end = right).
► Before any further disassembly, fasten the dismantled cutter to the retaining bracket (LH and RH)
with 2 parallel clamps, on a flat sturdy work bench, or screw it tight to the mounting plate with four
M6 hexagon socket head screws
► Remove the screw caps.
► Take hold of the stationary blade (1) by its ends and lift it up and out of the machine.
► Holding the articulated joint with a size 11 open-end wrench (3), loosen the screws fastening the ar-
ticulated joint in the movable blade (1 hexagon socket-head screw each on the right and left(4)).
► Push the movable blade in parallel (in the direction of the conveyor), until it is in the mounting position
of the stationary blade (for the direction of movement see (6)). Using a tool such as a screwdriver,
move the blade by alternately prying on the left and right next to the compressed air cylinder.
► Mark the mounting position of the movable blade (on the blade) with a water-insoluble marker (right
end = right).
► Lift the movable blade out of the cutter in this position.
Installing the Blades
1 Stationary blade 5 Movable blade (under the tape deflector)
2 Fixture for the stationary blade (under the
deflector plate): 2 hexagon socket head
screws M6 x 35
6 Direction for removing the movable blade
3 Articulated joint 7 Deflector plate
4 Screws fastening the articulated joint in the
movable blade:
1 hexagon socket head screw M4 x 25 DIN
912 each; strength 12.9, Loctite No. 243
8 Cutter area
WARNING
Risk of injury!
► Wear appropriately thick protective gloves!
► There is a high risk of injury from the blades and the tape deflector.
CAUTION
Tighten the screws to the correct torque.
Make sure all parts are clean before installing them!
Do not use grease dissolving agents for cleaning!