SIPLACE D4-D4i 工程师手册_EN - 第98页
Service Work Component Handling 4.3.2 Cutter 98 Service Manual SIPLACE D4/D4i Removing Articulated J oint, Installing It on New Master Cylinde r and Bonding It in Place Legend ► Dismant le the articulat ed joint (2) f ro…

Service Work
4.3.2 Cutter Component Handling
Service Manual SIPLACE D4/D4i 97
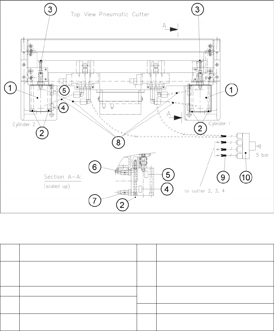
Removing and Installing the Short-Stroke Cylinder
Legend
► Loosen the screws fastening the two inductive proximity switches to the short-stroke cylinder (1
screw each (4, 5)).
► Loosen the screws fastening the short-stroke cylinder (1) (2 M5x65 screws (5)) and remove the cyl-
inder, incl. the articulated joint screwed into it.
1 Short-stroke cylinders 1 and 2 6 One-way restrictor (for running cylinder
out)
2 Screws fastening the short-stroke cylin-
ders: 2 M 5x65 hexagon socket-head
screws each
7 One-way restrictor (for running cylinder in)
3 Articulated joint fixtures 8 Allocation of the compressed air connec-
tions, pneumatic hoses
4 Proximity switch (for position cylinder
moved in). Fastener: 1 Phillips screw 9 Y-socket union (in the cable duct)
5 Proximity switch (for position cylinder
moved out). Fastener: 1 Phillips screw
10 Multiple-Y-distributor on the safety valve (5
bar from compressed air unit)

Service Work
Component Handling 4.3.2 Cutter
98 Service Manual SIPLACE D4/D4i
Removing Articulated Joint, Installing It on New Master Cylinder and Bonding It in Place
Legend
► Dismantle the articulated joint (2) from the cylinder (1) by turning the open-end wrenches
(SW 11, 14) on the surfaces marked (3) .
Installing the articulated joint and short-stroke cylinder
► Apply a small amount of Loctite no. 243 to the thread of the new joint.
1 Short-stroke cylinder (1 or 2) 6 Slide surface of the movable blade
2 Articulated joint (complete) 7 Screw fastening the articulated joint to the
movable blade:
One M4 x 24 DIN 912 socket hex head cap
screw each, strength 12.9, secured with
Loctite no. 243
3 Wrench surface for disassembling the artic-
ulated joint
4 Secure articulated joint thread with Loctite
no. 243
5 Open-end wrench surface of articulated
joint
8 Movable blade with slot to prevent the artic-
ulated joint from turning if the articulated
joint is damaged, use a (complete) new one
(article no.: see ) or clean the residues of
Loctite from the thread of the existing artic-
ulated joint pin.
NOTICE
The threaded pin is secured with Loctite no. You will need somewhat more strength than usual
to loosen it.
WARNING
There is a high risk of injury from the blades and the tape deflector!
CAUTION
Tighten the screws to the correct torque.

Service Work
4.3.2 Cutter Component Handling
Service Manual SIPLACE D4/D4i 99
► If the enamel on the one-way restrictor is damaged use a new "short-stroke cylinder".
DANGER
One-way restrictors may not be set at the machine. This is only permitted at the factory.
For this reason the replacement short-stroke cylinder must always be installed, together with
the new, already adjusted restrictors attached to it.
Removing Articulated Joint, Installing It on New Master
Cylinder and Bonding It in Place
► Screw the articulated joint into the short-stroke cylin-
der.
► Turn the articulated joint into the installation position.
Once the cylinder is installed, the slot in the moveable
blade prevents the articulated joint from turning.
► Copy the exact mounting position of the proximity
switch to the short-stroke cylinder (feeler gauge, fine-
tip marker).
► Install the prepared cylinder - complete with one-way
restrictors - on the cutter, in the correct rotational po-
sition for the articulated joint.
► Fasten the cylinder in this position, with the 2 M5x65
screws (2) provided.
► Install the proximity switch (Item No. see section 5.2)
precisely in the position you marked on the short-
stroke cylinder with the permanent marker (4, 5).
► Connect the compressed air hoses to the one-way re-
strictor on the cylinder, in the correct allocation (see
markings).
⇨ One-way restrictor (for running cylinder out) (6)
⇨ One-way restrictor (for running cylinder in) (7)
⇨ Allocation of the compressed air connections,
pneumatic hoses (8)