PTS-NXT2-04JE - 第441页
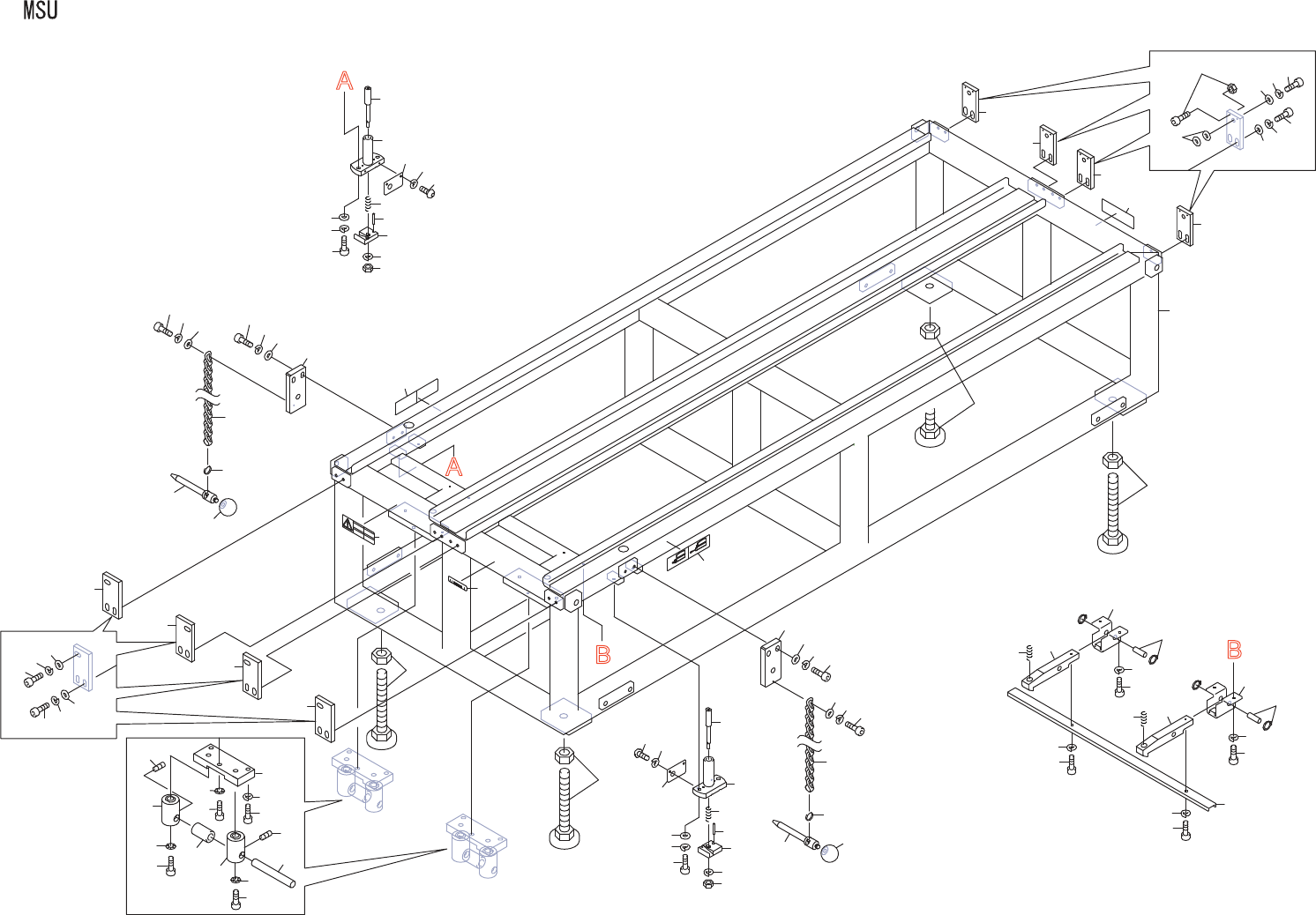
MSU UK01508 No. Drg.No.&CodeNo. Q TY Description Rating Materials Remarks 番号 図番 &コード 番号 個数 品名 規格 材質 備考 1 PM61017 1 FRAME フレー ム F E 2 A1250D 4 ADJUSTER アジャ スタ FJSN20-130 OT 3 PM55784 2 PLATE プレー ト FE 4 H5428…

B
B
A
A
1
2
3
4
6
7
8
8
9
5
10
9
10
11
11
12
13
14
15
16
18
19
20
21
22
2
2
2
14
17
18
19
23
24
25
26
27
28
30
31
32
33
35
36
21
22
27
28
23
24
25
26
30
31
32
34
35
36
37
38
39
37
38
39
29
29
40
40
15
16
17
63
41
45
46
47
41
45
46
47
48
48
48
48
50
51
52
53
54
55
49
57
58
59
60
61
62
56
56
56
56
64
65
64
65
42
43
44
42
43
44
55.1
UK01508
440
PTS-NXT2-04JE
Vol.1

MSU
UK01508
No. Drg.No.&CodeNo. QTY Description Rating
Materials
Remarks
番号 図番&コード番号 個数 品名 規格 材質 備考
1 PM61017 1 FRAME フレーム FE
2 A1250D 4 ADJUSTER アジャスタ FJSN20-130 OT
3 PM55784 2 PLATE プレート FE
4 H5428R 4 BOLT,HEXSOCKET ボルト六角穴 M08X030(3カシロ) FE
5 W1106G 4 WASHER,LOCK ワッシャスプリング 8M/M(3カシロ) FE
6 H5428F 2 BOLT,HEXSOCKET ボルト六角穴 M08X015(3カシロ) FE
7 W1014A 2 WASHER,CONICAL ワッシャ皿 M-8-H FE
8 PM55772 4 GUIDE ガイド FE
9 H5429E 4 BOLT,HEXSOCKET ボルト六角穴 M12X025(3カシロ) FE
10 W1016A 4 WASHER,CONICAL ワッシャ皿 M-12-H FE
11 N4048C 4 SCREW,HEXSOCKETSET ネジ六角穴止め M06X010ヒラサキステンレス FE
12 PM50282 2 ROLLER ローラ FE
13 PM50271 2 PIN,ROLLER ピンローラ FE
14 PB31124 2 BKT BKT FE
15 H5427B 4 BOLT,HEXSOCKET ボルト六角穴 M05X012(3カシロ) FE
16 W1106E 4 WASHER,LOCK ワッシャスプリング 5M/M(3カシロ) FE
17 H2189S 2 PIN ピン HCDGH10-30 OT
18 PM60954 2 LEVER レバー FE
19 S3260D 2 SPRING スプリング SWR10.5-25 OT
20 PB33755 1 BKT BKT FE
21 H54269 2 BOLT,HEXSOCKET ボルト六角穴 M05X010(3カシロ) FE
22 W1106E 2 WASHER,LOCK ワッシャスプリング 5M/M(3カシロ) FE
23 PM61006 2 HOLDER,STOPPER ホルダストッパ FE
24 H54274 4 BOLT,HEXSOCKET ボルト六角穴 M06X025(3カシロ) FE
25 W1106F 4 WASHER,LOCK ワッシャスプリング 6M/M(3カシロ) FE
26 W1108F 4 WASHER,FLAT ワッシャ平 4W-6(3カシロ) FE
27 PB39373 2 PLATE,GUIDE プレートガイド FE
28 K5258L 4 SCREW,HEXSOCKETBUTTON 小ネジ六角穴ボタン M04X008(3カシロ) FE
29 W1106D 4 WASHER,LOCK ワッシャスプリング 4M/M(3カシロ) FE
30 PM60992 2 STOPPER ストッパ FE
31 S3019L 2 SPRING スプリング WL10-45 OT
32 H2093M 2 PIN,PARALLEL ピン平行 ゚4X25Aシュ OT
33 PM60974 1 PLATE プレート FE
34 PM60984 1 PLATE プレート FE
35 N1079C 2 NUT,HEX ナット六角 M5P=0.81シュ(3カシロ) FE
36 W1106E 2 WASHER,LOCK ワッシャスプリング 5M/M(3カシロ) FE
37 PB33746 2 PLATE,STOPPER プレートストッパ FE
38 H5428N 4 BOLT,HEXSOCKET ボルト六角穴 M08X025(3カシロ) FE
441
PTS-NXT2-04JE
Vol.1

MSU
UK01508
No. Drg.No.&CodeNo. QTY Description Rating
Materials
Remarks
番号 図番&コード番号 個数 品名 規格 材質 備考
39 W1106G 4 WASHER,LOCK ワッシャスプリング 8M/M(3カシロ) FE
40 W1108G 4 WASHER,FLAT ワッシャ平 4W-8(3カシロ) FE
41 T20439 2 CHAIN チェーン CHSP4-200 OT
42 H54251 2 BOLT,HEXSOCKET ボルト六角穴 M03X006(3カシロ) FE
43 W1106C 2 WASHER,LOCK ワッシャスプリング 3M/M(3カシロ) FE
44 W1108B 2 WASHER,FLAT ワッシャ平 M03(3カシロ) FE
45 R2035R 2 RING リング RWS14 OT
46 PM60965 2 PIN,STOPPER ピンストッパ FE
47 N21197 2 GRIP 握り PBA8-35-R OT
48 PB21484 4 PLATE,STOPPER プレートストッパ FE Tparts
49 H5494E 8 BOLT,STOPPER ボルトストッパ UNAH3-15 OT
50 H5428R 8 BOLT,HEXSOCKET ボルト六角穴 M08X030(3カシロ) FE
51 W1106G 8 WASHER,LOCK ワッシャスプリング 8M/M(3カシロ) FE
52 W1108G 8 WASHER,FLAT ワッシャ平 4W-8(3カシロ) FE
53 H5428R 4 BOLT,HEXSOCKET ボルト六角穴 M08X030(3カシロ) FE
54 W1106G 4 WASHER,LOCK ワッシャスプリング 8M/M(3カシロ) FE
55 W1108G 4 WASHER,FLAT ワッシャ平 4W-8(3カシロ) FE
55.1 W1108G 8 WASHER,FLAT ワッシャ平 4W-8(3カシロ) FE
56 PB21474 4 PLATE,FIXED プレート固定 FE Tparts
57 H5428R 8 BOLT,HEXSOCKET ボルト六角穴 M08X030(3カシロ) FE
58 W1106G 8 WASHER,LOCK ワッシャスプリング 8M/M(3カシロ) FE
59 W1108G 8 WASHER,FLAT ワッシャ平 4W-8(3カシロ) FE
60 H5428R 4 BOLT,HEXSOCKET ボルト六角穴 M08X030(3カシロ) FE
61 W1106G 4 WASHER,LOCK ワッシャスプリング 8M/M(3カシロ) FE
62 W1108G 4 WASHER,FLAT ワッシャ平 4W-8(3カシロ) FE
63 PX03621 1 SEAL,BARCODE シールバーコード OT unitserialnumber
64 PZ19231 2 SEAL シール PL
65 PZ25581 2 SEAL シール PL
442
PTS-NXT2-04JE
Vol.1