PTS-NXT2-04JE - 第558页
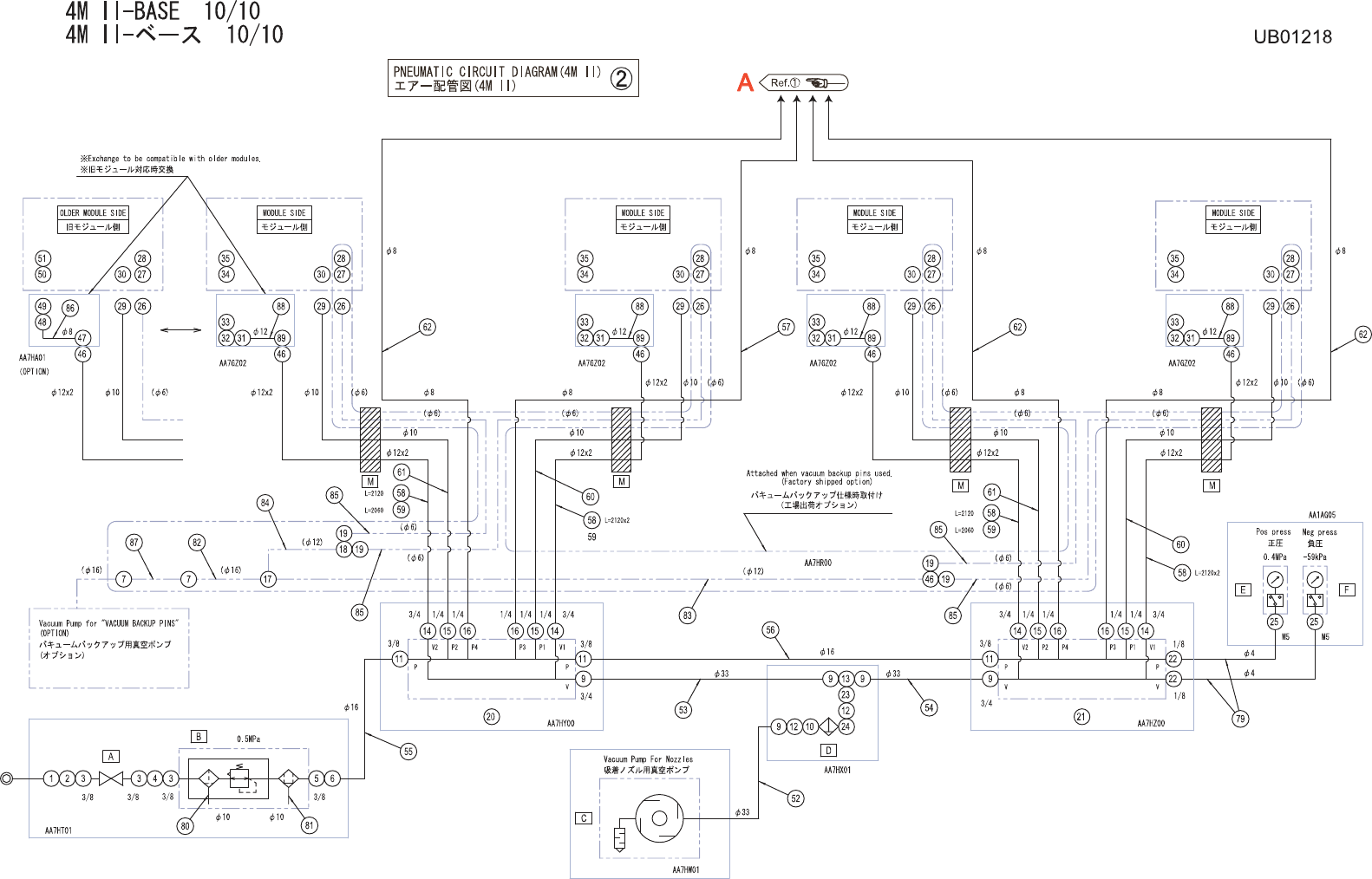
4MII-BASE10/10 4MII -ベース 10/1 0 UB01218 No. Drg.No.&CodeNo. Q TY Description Rating Materials Remarks 番号 図番 &コード 番号 個数 品名 規格 材質 備考 1 S5023H 1 SOCKET ソ ケット 30SH OT 2 H3114C 1 PLUG プ ラグ 30PF OT 3 H1282A…

81
PTS-NXT2-04JE
Vol.2

4MII-BASE10/10
4MII-ベース10/10
UB01218
No. Drg.No.&CodeNo. QTY Description Rating
Materials
Remarks
番号 図番&コード番号 個数 品名 規格 材質 備考
1 S5023H 1 SOCKET ソケット 30SH OT
2 H3114C 1 PLUG プラグ 30PF OT
3 H1282A 3 PIPE,DOUBLEENDED パイプ両口 3/8X25 OT
4 A41516 1 ELBOW エルボ SGPPE10A OT
5 Y3122K 1 UNION,ELBOW ユニオンエルボ KQ2V16-03S OT
6 A40687 1 ELBOW エルボ KQ2L16-99 OT
7 Y3081E 0(2) UNION,ELBOW ユニオンエルボ KQ2L16-00 OT Note.1
9 S2313A 5 JOINT ジョイント BJ-A-25 OT
10 N2140C 1 NIPPLE ニップル VN-06(04100905) OT
11 Y30869 3 UNION,HALF ユニオンハーフ KQ2S16-03S OT
12 A41515 2 ELBOW エルボ SGPPE20A OT
13 T40420 1 TEE ティー SGPPT20A OT
14 Y3126C 4 UNION,ELBOW ユニオンエルボ KQ2LU12-04S OT
15 Y3122A 4 UNION,ELBOW ユニオンエルボ KQ2VS10-02S OT
16 Y3079T 4 UNION,ELBOW ユニオンエルボ KQ2L08-02S OT
17 Y3076K 0(1) UNION ユニオン KQ2U12-16 OT Note.1
18 Y3074X 0(1) UNION ユニオン KQ2T12-00 OT Note.1
19 Y3069C 0(4) UNION ユニオン KQ2R06-12 OT Note.1
20 PM07ZM2 1 MANIFOLD,AIR マニホールドエアー AL
21 PM07ZN2 1 MANIFOLD,AIR マニホールドエアー AL
22 Y3082X 2 UNION,HALF ユニオンハーフ KQ2H04-01S OT
23 H1196L 1 PIPE パイプ SGPP20A-78 OT
24 H1196N 1 PIPE パイプ SGPP20A-106 OT
25 Y3049G 2 UNION,ELBOW ユニオンエルボ KJL04-M5(シロ) OT
26 S50251 0(4) SOCKET ソケット CPSE7-6 OT Note.1
27 K1161W 0(4) COUPLER カプラ CPPE7-01 OT Note.1
28 Y3024A 0(4) UNION ユニオン PMF6-01 OT Note.1
29 S5026T 4 SOCKET ソケット KK4S-10L-X42 OT
30 K11578 0(4) COUPLER カプラ KK4P-10E OT Note.1
31 Y3081F 4 UNION,ELBOW ユニオンエルボ KQ2L12-04S OT
32 PM09MY1 4 ADAPTER アダプタ AL
33 S5026B 4 SOCKET ソケット K4-04SH OT
34 K1158B 0(4) COUPLER カプラ K4-04PM OT Note.1
35 PM05ZF2 0(4) JOINT ジョイント AL Note.1
36 Y3071H 4 UNION ユニオン KQ2T08-00 OT
37 PZ16811 4 TUBE チューブ OT
38 Y3079Z 4 UNION,ELBOW ユニオンエルボ KQ2L08-00 OT
39 Y30680 8 UNION ユニオン KQ2N08-99 OT
82
PTS-NXT2-04JE
Vol.2

4MII-BASE10/10
4MII-ベース10/10
UB01218
No. Drg.No.&CodeNo. QTY Description Rating
Materials
Remarks
番号 図番&コード番号 個数 品名 規格 材質 備考
40 Y30860 8 UNION,HALF ユニオンハーフ KQ2S08-01S OT
41 PZ20931 16 TUBE チューブ OT
42 Y3079A 8 UNION,ELBOW ユニオンエルボ KQ2L06-02S OT
43 Y30377 8 UNION ユニオン KQ2TW06-00 OT
44 Y3075A 8 UNION ユニオン KQ2U06-00 OT
45 Y3049W 32 UNION,ELBOW ユニオンエルボ KJL06-01S(シロ) OT
46 Y3035C 4(5) UNION ユニオン KQ2U12-00 OT Note.1
47 A4151B 0(4) ELBOW エルボ KQ2L08-12 OT Note.1
48 A4066R 0(4) ELBOW エルボ KQ2L08-99 OT Note.1
49 S5025X 0(4) SOCKET ソケット CPS15-8 OT Note.1
50 K1161Y 0(4) COUPLER カプラ CPP15-01 OT Note.1
51 Y30249 0(4) UNION ユニオン PMF8-01 OT Note.1
52 PZ39091 1 HOSE ホース OT
53 PZ39101 1 HOSE ホース OT
54 PZ39111 1 HOSE ホース OT
55 PZ39870 1 TUBE チューブ OT
56 PZ39730 1 TUBE チューブ OT
57 PZ06681 1 TUBE チューブ OT
58 PZ39891 6 TUBE チューブ OT
59 PZ39901 2 TUBE チューブ OT
60 PZ39920 2 TUBE チューブ OT
61 PZ39930 2 TUBE チューブ OT
62 PZ06023 3 TUBE チューブ OT
63 PZ39800 4 TUBE チューブ OT
64 PZ39810 2 TUBE チューブ OT
65 PZ39820 2 TUBE チューブ OT
66 PZ39830 2 TUBE チューブ OT
67 PZ39840 2 TUBE チューブ OT
68 PZ39850 2 TUBE チューブ OT
69 PZ39860 2 TUBE チューブ OT
70 PZ06101 8 TUBE チューブ OT
71 PZ06092 4 TUBE チューブ OT
72 PZ06331 4 TUBE チューブ OT
73 PZ14711 4 TUBE チューブ OT
74 PZ39910 4 TUBE チューブ OT
75 PZ11691 4 TUBE チューブ OT
76 PZ11701 4 TUBE チューブ OT
77 PZ39940 4 TUBE チューブ OT
83
PTS-NXT2-04JE
Vol.2