PTS-NXT2-04JE - 第565页
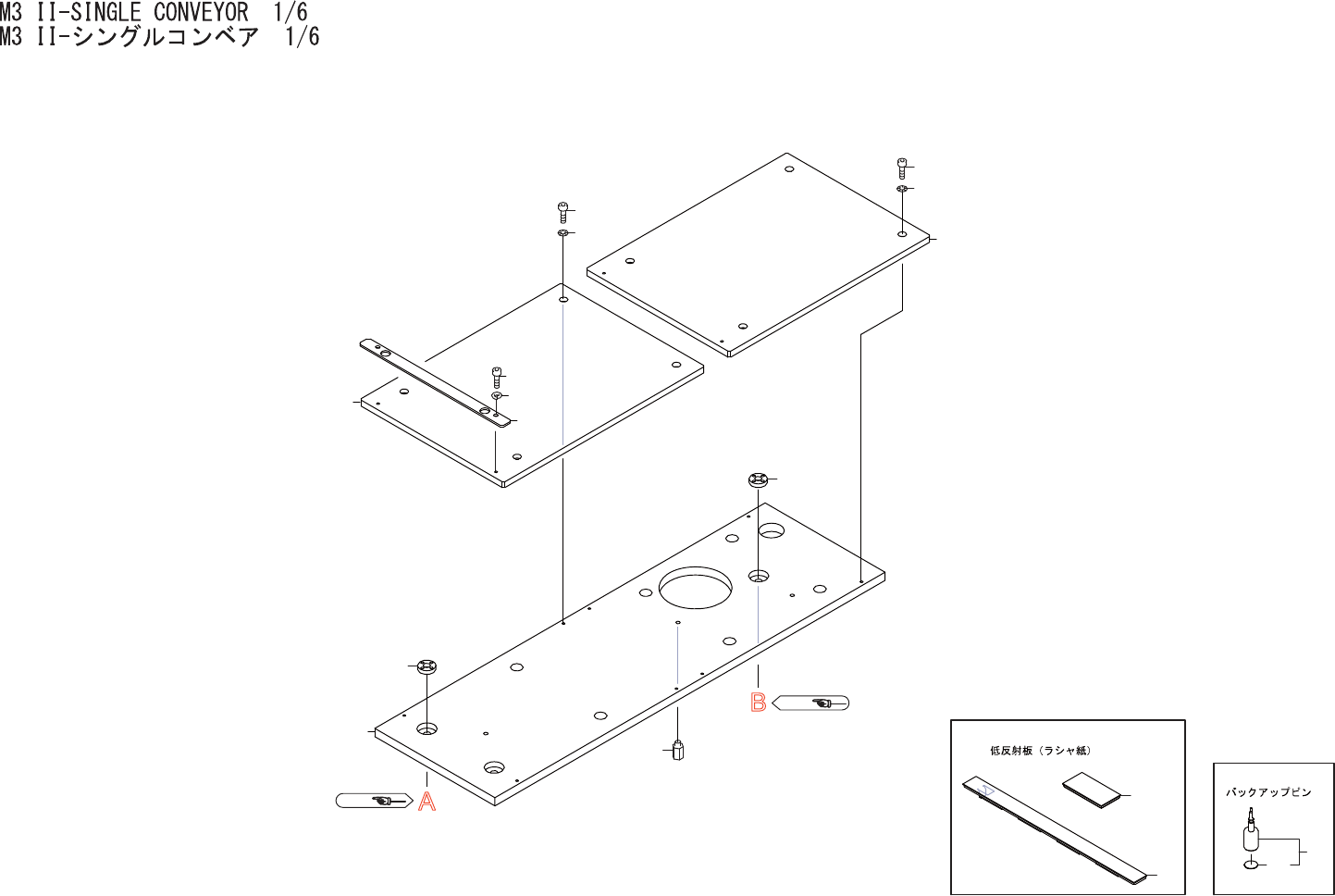
M3II-SINGLECONVEYOR1/6 M3 II- シングル コンベ ア1/6 UQ04110 No. Drg.No.&CodeNo. Q TY Description Rating Materials Remarks 番号 図番 &コード 番号 個数 品名 規格 材質 備考 1 PM055G3 1 FRAME フレー ム A L 2 H20231 1 PIN,STOPPER ピン …

Ref.2/
A
B
Ref.2/
Low reflective sheet(felt paper)
BACK-UP PIN
1
2
4
7
8
9
4
5
6
5
6
3
3
11
12
14
13
UQ04110
88
PTS-NXT2-04JE
Vol.2

M3II-SINGLECONVEYOR1/6
M3II-シングルコンベア1/6
UQ04110
No. Drg.No.&CodeNo. QTY Description Rating
Materials
Remarks
番号 図番&コード番号 個数 品名 規格 材質 備考
1 PM055G3 1 FRAME フレーム AL
2 H20231 1 PIN,STOPPER ピンストッパ STFHN10-15 OT
3 GGQC2241 3 NUT ナット FE
4 PM054Z5 2 PLATE,BACKUP プレートバックアップ FE
5 PM083K0 8 BOLT ボルト FE
6 W1011A 8 WASHER,CONICAL ワッシャ皿 M-4-L FE
7 PB97052 1 PLATE,PARTITION プレート仕切り FE
8 H5288A 2 BOLT,HEXSOCKET ボルト六角穴 M04X010 FE
9 W1022A 2 WASHER,LOCK ワッシャスプリング 4M/M FE
11 AA8DG01 1 PLATE プレート OT
12 AA8AN01 1 PLATE プレート OT
13 AA6WL05 8 PIN,BACKUP ピンバックアップ OT
14 PZ34032 8 SHEET シート OT ConsumableParts
89
PTS-NXT2-04JE
Vol.2

A
DETAIL
T2
DETAIL
U2
T2
U2
S
V
DETAIL
V
B
Ref.1/
S
S
Ref.1/
DETAIL
S
4
4
43
42
44
45
46
47
18.1
19
20
21
28
29
27
22
23
24
25
26
30
31
32
33
34
38
39
39
48
49
50
51
52
53
54
55
56
57
58
59
61
62
64
65
60
63
66
66
66
67
68
40
1
15
2
3
16
17
14
5
9
12
13
10
11
6
7
8
35
36
37
UQ04110
90
PTS-NXT2-04JE
Vol.2