PTS-NXT2-04JE - 第923页
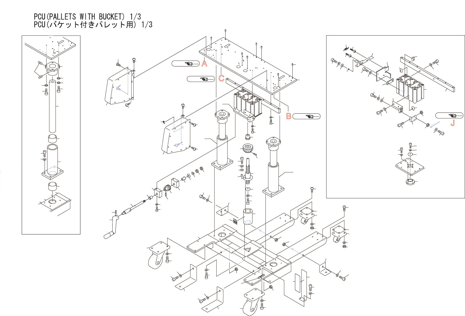
PCU(PALLETSWITHBUCKET)1/3 UX04009(M3S,M3II) PC U(バケ ット付 きパレ ット用) 1/3 UX04109(M6S,M6II) No. Drg.No.&CodeNo. Q TY Description Rating Materials Remarks 番号 図番 &コード 番号 個数 品名 規格 材質 備考 1 PM02EG2 1 FRAME フレー …

U
U
A
B
V
Ref.2/
DETAIL V
9
8
0
9
6
0
9
4
0
9
2
0
9
0
0
8
8
0
DETAIL U
Ref.2/
C
Ref.2/
J
Ref.2/
1
6
30
41
42
43
11
10
50
49
9
11
10
9
29
28
98
99
35
36
37
34
39
40
27
16
19
22
23
24
47
56
48
48
51
55
52
54
53
62
61
38
53
17
18
19
20
21
26
25
65
64
47
44
31
32
33
45
46
59
60
63
66
67
68
13
14
12
15
26
25
26
7
8
5
6
69
70
71
78
72
74
75
73
79
5.1
7
8
5
5.1
72.1
72.2
72.3
72.5
107
108
109
110
111
112
113
114
72.4
58
57
94
94
94
94
93
97
97
97
97
96
88
101
102
101
102
100
91
102.1
95
92
104
105
103
104
105
106
106
94.1
76
77
80
81
UX04109(M6S,M6II)
UX04009(M3S,M3II)
246
PTS-NXT2-04JE
Vol.3

PCU(PALLETSWITHBUCKET)1/3
UX04009(M3S,M3II)
PCU(バケット付きパレット用)1/3
UX04109(M6S,M6II)
No. Drg.No.&CodeNo. QTY Description Rating
Materials
Remarks
番号 図番&コード番号 個数 品名 規格 材質 備考
1 PM02EG2 1 FRAME フレーム FE
5 K2142C 2 CASTER キャスタ NO.102HB2-EP<TG> OT
5.1 PB70851 2 SPACER スペーサ AL
6 K52584 8 SCREW,HEXSOCKETBUTTON 小ネジ六角穴ボタン M06X012(3カシロ) FE
7 W1106F 8 WASHER,LOCK ワッシャスプリング 6M/M(3カシロ) FE
8 N1079K 8 NUT,HEX ナット六角 M06(3カシロ) FE
9 K2142D 2 CASTER キャスタ NO.107BS<TG> OT
10 H5428F 8 BOLT,HEXSOCKET ボルト六角穴 M08X015(3カシロ) FE
11 W1106G 8 WASHER,LOCK ワッシャスプリング 8M/M(3カシロ) FE
12 PB77831 1 BKT BKT FE
13 H5425C 2 BOLT,HEXSOCKET ボルト六角穴 M06X012(3カシロ) FE
14 W1106F 2 WASHER,LOCK ワッシャスプリング 6M/M(3カシロ) FE
15 PZ20501 1 SCALE スケール PL
16 PM87061 2 HOLDER ホルダ FE
17 H5428N 8 BOLT,HEXSOCKET ボルト六角穴 M08X025(3カシロ) FE
18 W1106G 8 WASHER,LOCK ワッシャスプリング 8M/M(3カシロ) FE
19 H30638 4 BUSHING ブシュ SPB-405030 OT
20 H5055K 2 HOLDER ホルダ STHSB40 OT
21 N4046B 4 SCREW,HEXSOCKETSET ネジ六角穴止め M06X008(3カシロ) FE
22 PZ40450 2 SHAFT シャフト OT
23 PM08KK0 1 PLATE プレート AL
24 H2095A 8 PIN,PARALLEL ピン平行 ゚6X12Aシュ(M6) OT
25 H5428M 8 BOLT,HEXSOCKET ボルト六角穴 M08X022(3カシロ) FE
26 W1014B 12 WASHER,CONICAL ワッシャ皿 M-8-H(3カシロ) FE
27 PM93262 1 SPACER スペーサ AL
28 H54272 3 BOLT,HEXSOCKET ボルト六角穴 M06X020(3カシロ) FE
29 W1106F 3 WASHER,LOCK ワッシャスプリング 6M/M(3カシロ) FE
30 XN00242 1 SCREW,TRAPEZOID ネジ台形 OT
31 H5425D 1 BOLT,HEXSOCKET ボルト六角穴 M06X015(3カシロ) FE
32 W1106F 1 WASHER,LOCK ワッシャスプリング 6M/M(3カシロ) FE
33 W1087R 1 WASHER ワッシャ R10-27 OT
34 K1135B 4 COLLAR カラー CLBSB6-8.0 OT
35 H5426S 4 BOLT,HEXSOCKET ボルト六角穴 M04X018(3カシロ) FE
36 W1106D 4 WASHER,LOCK ワッシャスプリング 4M/M(3カシロ) FE
37 W1043C 4 WASHER,FLAT ワッシャ平 4W-4(3カシロ) FE
38 W1090F 1 WASHER ワッシャ WSSB25-6-5 FE
39 H5425D 1 BOLT,HEXSOCKET ボルト六角穴 M06X015(3カシロ) FE
40 W1106F 1 WASHER,LOCK ワッシャスプリング 6M/M(3カシロ) FE
247
PTS-NXT2-04JE
Vol.3

PCU(PALLETSWITHBUCKET)1/3
UX04009(M3S,M3II)
PCU(バケット付きパレット用)1/3
UX04109(M6S,M6II)
No. Drg.No.&CodeNo. QTY Description Rating
Materials
Remarks
番号 図番&コード番号 個数 品名 規格 材質 備考
41 PM25692 1 GEAR,SPIRALBEVEL ギヤスパイラルベベル OT
42 H2065A 1 PIN,SPRING ピンスプリング 5゚X40 FE
43 H4121T 1 BEARING ベアリング NAX1523 OT
44 PM87591 1 HOLDER,BEARING ホルダベアリング AL
45 H5427E 4 BOLT,HEXSOCKET ボルト六角穴 M05X018(3カシロ) FE
46 W1106E 4 WASHER,LOCK ワッシャスプリング 5M/M(3カシロ) FE
47 PM87601 2 BLOCK ブロック AL
48 H48987 2 BEARING,DRY ベアリングドライ JZF12-20 OT
49 H5427S 4 BOLT,HEXSOCKET ボルト六角穴 M05X050(3カシロ) FE
50 W1106E 4 WASHER,LOCK ワッシャスプリング 5M/M(3カシロ) FE
51 PM65584 1 SHAFT シャフト FE
52 W1090C 1 WASHER ワッシャ WSSB20-10-3 OT
53 N1094D 2 NUT,HEX ナット六角 M103シュ(3カシロ) FE
54 W1106K 1 WASHER,LOCK ワッシャスプリング 10M/M(3カシロ) FE
55 PM65562 1 GEAR,SPIRALBEVEL ギヤスパイラルベベル OT
56 H2031C 1 PIN,SPRING ピンスプリング ゚5X20 FE
57 XH01151 1 HANDLE ハンドル OT
58 H2063T 1 PIN,SPRING ピンスプリング ゚5X25 FE
59 PB55302 1 PLATE プレート AL
60 XH00951 1 FRAME フレーム OT
61 H5337K 4 BOLT,HEXSOCKET ボルト六角穴 M06X120(3カシロ) FE
62 W1106F 4 WASHER,LOCK ワッシャスプリング 6M/M(3カシロ) FE
63 PM93201 1 BAR バー AL
64 H54277 6 BOLT,HEXSOCKET ボルト六角穴 M06X040(3カシロ) FE
65 W1106F 6 WASHER,LOCK ワッシャスプリング 6M/M(3カシロ) FE
66 N10034 2 NUT ナット SFB-103(M6) OT
67 H54274 2 BOLT,HEXSOCKET ボルト六角穴 M06X025(3カシロ) FE
68 W1106F 2 WASHER,LOCK ワッシャスプリング 6M/M(3カシロ) FE
69 PB65801 1 BKT BKT FE
70 H5425D 2 BOLT,HEXSOCKET ボルト六角穴 M06X015(3カシロ) FE
71 W1106F 2 WASHER,LOCK ワッシャスプリング 6M/M(3カシロ) FE
72 N10034 4 NUT ナット SFB-103(M6) OT
72.1 PB99990 1 BKT BKT FE
72.2 PB99980 1 PLATE プレート FE
72.3 H54273 2 BOLT,HEXSOCKET ボルト六角穴 M06X022(3カシロ) FE
72.4 W1106F 2 WASHER,LOCK ワッシャスプリング 6M/M(3カシロ) FE
72.5 N10034 2 NUT ナット SFB-103(M6) OT
73 PB65811 1 BKT BKT FE
248
PTS-NXT2-04JE
Vol.3