JM-100-Rev02 - 第67页
- 62 - NOTE( 注記 ) #01.... FOR FRONT OF THE MACHINE マシン前側用 #02....FOR REAR OF THE MACHINE マシン後側用 #03....FOR EN E N 用 REF.NO NOTE PART NO D E S C R I P T I O N 品 名 Qty 1 #01 402-07408 BANK_UNIT_FS バンクユニットFS 1 2 #02 402-074…

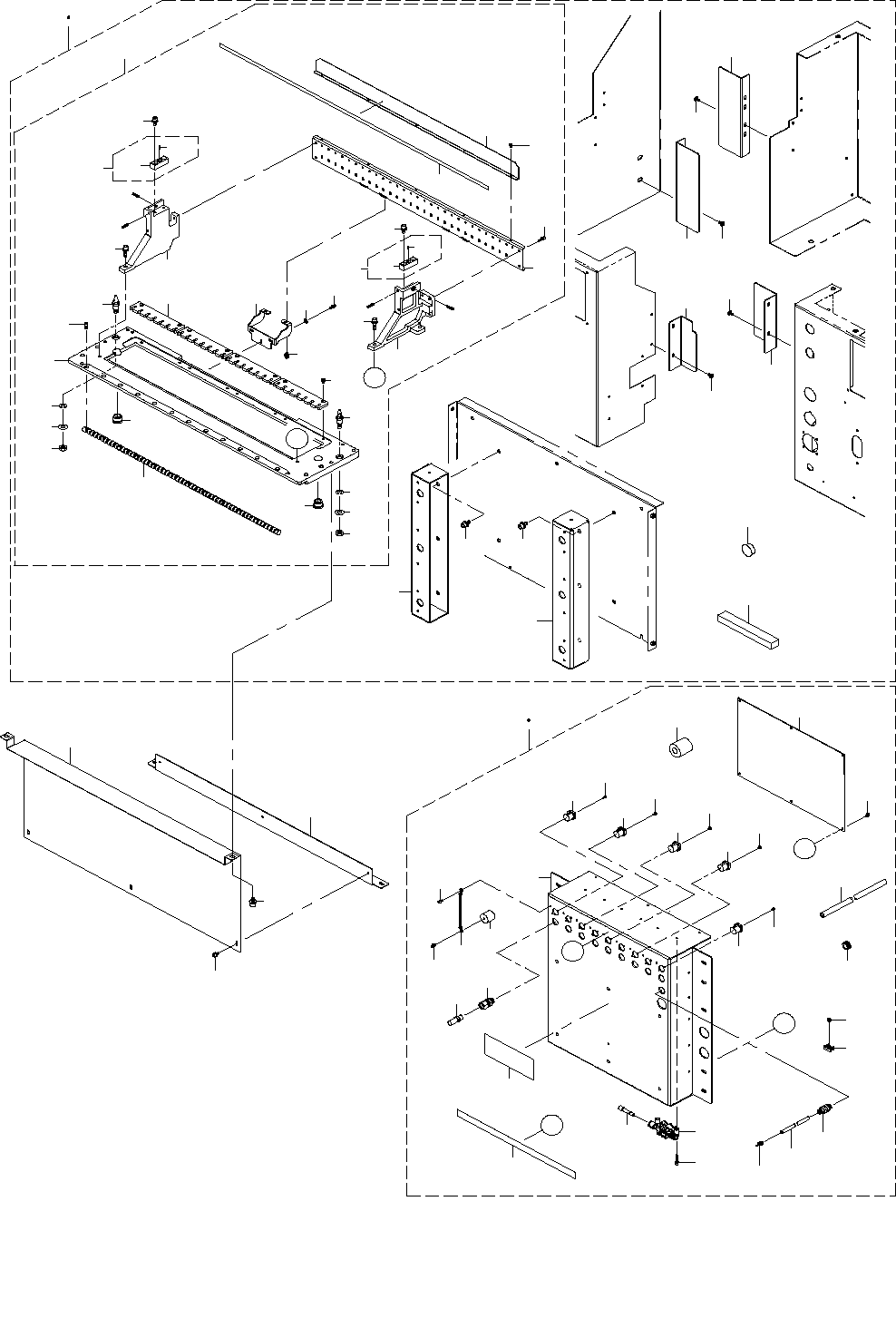
- 61 -
OPTION
オプション
31.FEEDER BANK COMPONENTS (1)
フィーダバンク関係(1)
17
18
19
16
18
16
17
19
15
14
15
26
5
13
22
23
9
8
7
9
8
7
11
29
21
24
12
27
4
10
52
53
56
61
60
61
61
67
61
58
61
59
49
50
64
65
43
48
46
47
32
32
33
44
45
67
66
68
68
40 41
28
25
6
20
30
33
34
38
39
39
31
3
38
1 2
35
37
37
36
51
55
54
62
63
42
69
70
71
72
B
B
C
C
A
A
10

- 62 -
NOTE( 注記 ) #01....FOR FRONT OF THE MACHINE マシン前側用
#02....FOR REAR OF THE MACHINE マシン後側用
#03....FOR EN EN 用
REF.NO NOTE PART NO D E S C R I P T I O N
品 名
Qty
1
#01
402-07408 BANK_UNIT_FS
バンクユニットFS
1
2
#02
402-07409 BANK_UNIT_RS
バンクユニットRS
1
3 402-07387 BANK_ASM_J1
バンク組J1
(1)
4 402-06443 BANK_BASE
バンクベース
(1)
5 E2609-721-000 BANK LOCATE PIN A
バンクロケートピンA
(1)
6 E2610-721-000 BANK LOCATE PIN B
バンクロケートピンB
(1)
7 WP-0841601-SC WASHER M8
平座金みがき丸 M8
(2)
8 WS-0820002-KN SPRING WASHER M8
ばね座金 M8
(2)
9 NM-6080003-SC NUT M8X1.25 TYPE3
六角ナット M8X1.25 3種
(2)
10 E2602-721-000 BANK LOCATE BUSH A
バンクロケートブッシュ A
(2)
11 402-06452 LOCK_SH
ロックシャフト
(1)
12 SM-6040802-TN SCREW M4X0.7 L=8
六角穴ボルト M4X0.7 L=8
(12)
13 E2502-729-000 PLATE STAND L
プレートスタンドL
(1)
14 E2503-729-000 PLATE STAND R
プレートスタンドR
(1)
15 SL-6052092-TN SCREW M5 L=20
座金付き六角穴ボルト M5 L=20
(4)
16 E2505-729-0A0 MARK ASM.
マーク組
(2)
17 E2601-725-000 MARK
マーク
(1)
18 E2505-729-000 MARK BASE
マークベース
(1)
19 SL-6041292-TN SCREW M4 L=12
座金付き六角穴ボルト M4 L=12
(4)
20 402-06448 FIXING_PLATE
フィクシングプレート
(1)
21 SL-6041292-TN SCREW M4 L=12
座金付き六角穴ボルト M4 L=12
(5)
22 402-06450 NUMBER_PLATE
ナンバープレート
(1)
23 402-06455 POSITION_LABEL
ポジションラベル
(1)
24 SM-6030552-KS SCREW
平ねじ M3 L=5
(5)
25 402-06449 PLATE_SUPPORT
プレートサポート
(2)
26 SL-6040892-TN SCREW M4 L=8
座金付き六角穴ボルト M4 L=8
(4)
27 SL-6031092-TN SCREW M3 L=10
座金付き六角穴ボルト M3 L=10
(6)
28 WP-0430801-SC WASHER M4
平座金 M4
(6)
29 402-06451 FIXING_PLATE_B
フィクシングプレートB
(4)
30 SM-4040655-SN SCREW M4X0.7 L=6
なべ小ねじ M4 L=6
(8)
31
#02
401-99894 SEALING_PACKING_140
シーリングパッキン140
(1)
32 401-36921 CONECTOR_BR_SUPPORT
コネクタブラケットサポート
(2)
33 SL-6061292-TN SCREW M6 L=12
座金付き六角穴ボルト M6 L=12
(4)
34 HX-0032600-0A GROMMET
ドームプラグ
(1)
35
#01
402-06647 SIDE_COVER_FL_FIX
サイドカバーFL_FIX
(1)
36
#01
402-06648 SIDE_COVER_FR_FIX
サイドカバーFR_FIX
(1)
37
#01
400-81751 B_COVER_SCREW
Bカバースクリュウ
(4)
38
#02
402-06638 SIDE_COVER_R_FIX
サイドカバー_R_FIX
(2)
39
#02
400-81751 B_COVER_SCREW
Bカバースクリュウ
(4)
40
#02
402-07397 CONNECTOR_BRACKET_UNIT
コネクタブラケットユニット
2
41
#03
402-07398 CONNECTOR_BRACKET_UNIT_EN
コネクタブラケットユニット_EN
2
42
#03
EZ-1482181-11 FERRITE CLAMP (GRFC-13)
FERRITEクランプ(GRFC−13)
(1)
43 402-06444 CONNECTOR_BR
コネクタブラケット
(1)
44 401-30360 FEEDER I/F PCB ASM
FEEDER I/F基板組
(1)
45 SL-4030691-SC SCREW M3 L=6
座金付きなべ小ねじ M3 L=6
(6)
46 BT-0600400-EC URETHANE TUBE BLUE 6X4
ポリウレタン チューブ 青 6X4
(1)
47 PJ-0320090-05 AIR COUPLER NIPPLE
エアカプラ ニップル
(1)
48 PJ-2300061-00 PARTITION UNION 06
隔壁用 ユニオン 06
(1)
49 PJ-3090600-03 QUICK MANIFOLD 5PX6
ワンタッチ マニホールド 5PX6
(3)
50 SL-6032092-TN SCREW M3 L=20
座金付き六角穴ボルト M3 L=20
(6)
51 PX-9500010-00 PLUG 6
止栓(Φ6用)
(1)
52 PJ-3010651-06 FEMALE UNION
メス ユニオン
(9)
53 E2904-700-000 SOCKET
ソケット
(9)
54 BT-1000651-EA URETHANE TUBE BLUE 10X6.5
ポリウレタン チューブ 青 10X6.5
(1)
55 HX-0022100-0F GROMMET
グロメット
(1)
56 402-05750 RADIAL CB CABLE 1 ASM
RADIAL CBケーブル1組
(1)
57 402-05751 RADIAL CB CABLE 2 ASM
RADIAL CBケーブル2組
(1)
58 402-05752 RADIAL CB CABLE 3 ASM
RADIAL CBケーブル3組
(1)
59 402-05753 RADIAL CB CABLE 4 ASM
RADIAL CBケーブル4組
(1)
60 402-05754 RADIAL CB CABLE 5 ASM
RADIAL CBケーブル5組
(1)
61 SM-4850501-SC SCREW M2.5 L=5
なべ小ねじ M2.5 L=5
(18)
62 402-06454 CONN_LABEL_MI
コネクタラベルMI
(1)
63 401-36861 MI_BANK_CON_NOTICE_LABEL
MIバンクコネクタ注意ラベル
(1)
64 HX-0029400-00 FIXED BASE
固定ベース
(14)
65 SL-4030591-SC SCREW M3 L=5
座金付きなべ小ねじ M3 L=5
(14)
66
#03
401-16750 BALL_CHAIN
ボールチェイン
(9)
67
#03
401-16749 CONNECTOR_CAP
コネクタキャップ
(9)
68
#03
SL-6030692-TN SCREW M3 L=6
座金付き六角穴ボルト M3 L=6
(18)
69
#03
402-11111 BANK_UNDER_COVER_S
バンクアンダーカバーS
1
70
#03
402-11112 BANK_UNDER_COVER_BR_S
バンクアンダーカバーブラケットS
1
71
#03
SL-6061292-TN SCREW M6 L=12
座金付き六角穴ボルト M6 L=12
2
72
#03
SL-6040892-TN SCREW M4 L=8
座金付き六角穴ボルト M4 L=8
3

- 63 -
32.FEEDER BANK COMPONENTS (2)
フィーダバンク関係(2)
26
10
3
19
34
34
18
33
32
31
29
28
27
25
24
22
21
20
21
20
2
17
16
15
13
12
11
9
8
7
23
6
5
5
4
4
35
37
36
38
14
30
40
41
42
43
44
45
47
46
48
39
53
54
52
50
51
56
55
57
58
49
58
60
61
62
63
66
64
67
68
65
59
69
69
59
1
77
76
75
78
73
71
72
74
72
71
71
71
73
74
70