PTS-XPFL-03JE - 第172页
A 110 106 109 108 107 105 104 103 102 99 98 95 96 97 93 92 88 86 87 85 91 90 89 94 84 84 81 77 80 79 78 83 82 74 72 73 71 76 75 12 13 67 66 65 69 70 64 68 11 5 59 58 61 62 63 46 45 50 51 48 44 56 24 25 41 27 28 29 26 24 …

This page intentionally blank.
171
PTS-XPFL-03JE

A
110
106
109
108
107
105
104
103
102
99
98
95
96
97
93
92
88
86
87
85
91
90
89
94
84
84
81
77
80
79
78
83
82
74
72
73
71
76
75
12
13
67
66
65
69
70
64
68
11
5
59
58
61
62
63
46
45
50
51
48
44
56
24
25
41
27
28
29
26
24
34
40
39
37
36
35
31
32
33
38
30
6
1
3
2
8
9
10
7
4
5
15
16
17
20
19
14
112
113
18
111
43
42
21
23
22
49
4
57
53
54
52
55
47
7.1
60
60.1
114
AGGQC9006
172
PTS-XPFL-03JE

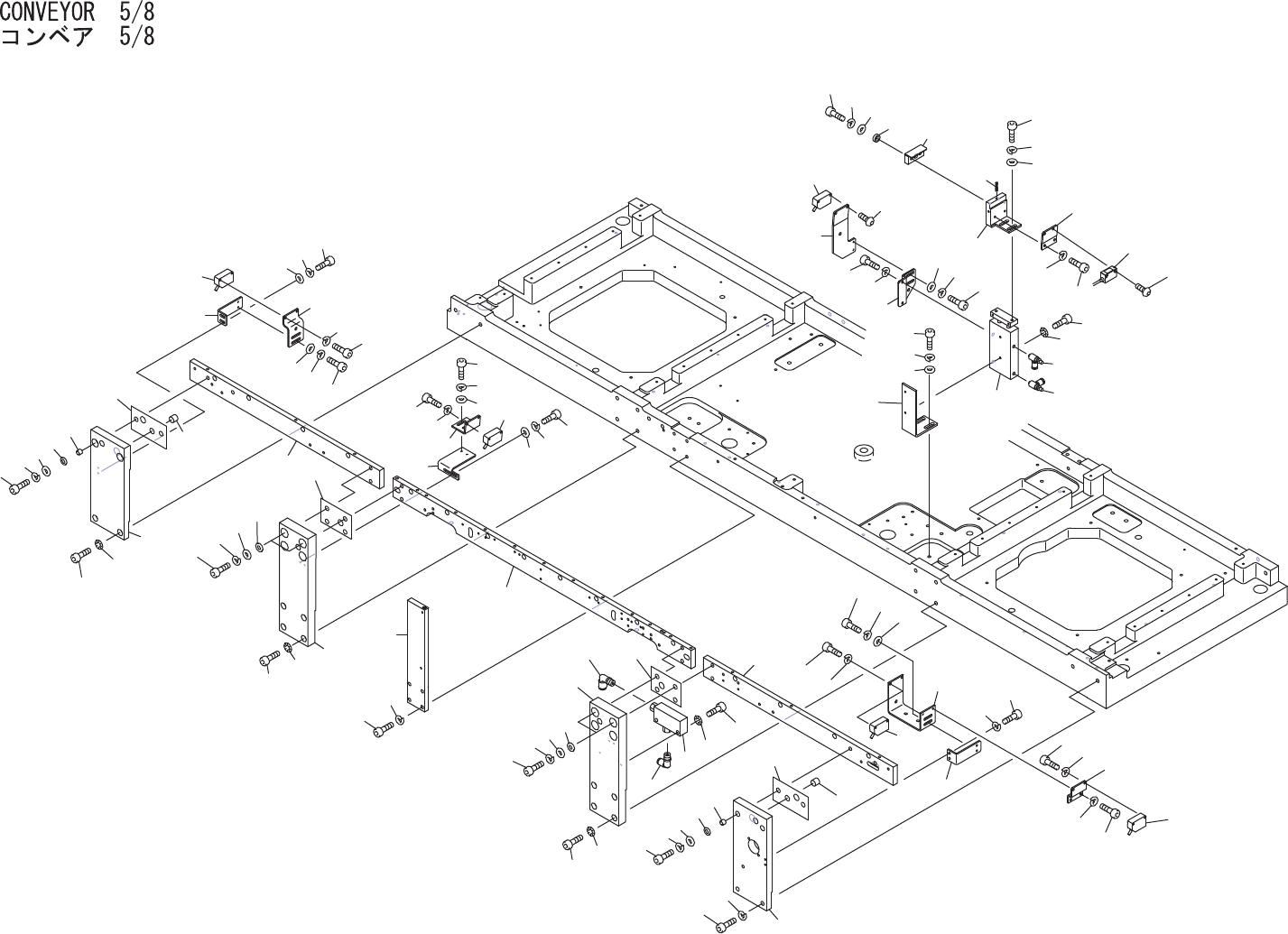
CONVEYOR 5/8
コンベア 5/8 AGGQC9006
No. Drg.No. & Code No. QTY Description Rating Materials Remarks
番号 図番 & コード番号 個数 品名 規格 材質 備考
1 GGQC2131 1 BKT, CONVEYOR BKT コンベア FE
2 H5322A 2 BOLT, HEX SOCKET ボルト 六角穴 M06X015 FE
3 W1013A 2 WASHER, CONICAL ワッシャ 皿 M- 6-H FE
4 GGQC1940 2 SHEET シート OT
5 GGQC2170 2 BLOCK ブロック AL
6 GGQC0061 1 PLATE プレート FE
7 GGQC2390 2 WASHER, FLAT ワッシャ 平 PL
7.1 GGQC2410 2 COLLAR カラー OT
8 H5322A 2 BOLT, HEX SOCKET ボルト 六角穴 M06X015 FE
9 W1024A 2 WASHER, LOCK ワッシャ スプリング 6M/M FE
10 W1040W 2 WASHER, FLAT ワッシャ 平 6M/MX1.6X12.5(1W-6)(3カ クロ) FE
11 GGQC0391 1 BKT BKT FE
12 H5275A 2 BOLT, HEX SOCKET ボルト 六角穴 M03X008 FE
13 W1021A 2 WASHER, LOCK ワッシャ スプリング 3M/M FE
14 GGQC2330 1 BKT BKT FE
15 H5275A 2 BOLT, HEX SOCKET ボルト 六角穴 M03X008 FE
16 W1042A 2 WASHER, FLAT ワッシャ 平 4W- 3 FE
17 W1021A 2 WASHER, LOCK ワッシャ スプリング 3M/M FE
18 S3125R 1 SW, PHOTOELECTRIC SW 光電 E3Z-LS81 OT
19 H5277A 2 BOLT, HEX SOCKET ボルト 六角穴 M03X012 FE
20 W1021A 2 WASHER, LOCK ワッシャ スプリング 3M/M FE
21 GGQC1802 1 BKT, CONVEYOR BKT コンベア FE
22 H5324A 4 BOLT, HEX SOCKET ボルト 六角穴 M06X020 FE
23 W1013A 4 WASHER, CONICAL ワッシャ 皿 M- 6-H FE
24 GGQC1960 2 SHEET シート OT
25 GGQC1973 1 PLATE プレート FE
26 GGQC2400 4 WASHER, FLAT ワッシャ 平 PL
27 H5323A 4 BOLT, HEX SOCKET ボルト 六角穴 M06X018 FE
28 W1024A 4 WASHER, LOCK ワッシャ スプリング 6M/M FE
29 W1040W 4 WASHER, FLAT ワッシャ 平 6M/MX1.6X12.5(1W-6)(3カ クロ) FE
30 GGQC2430 1 BKT BKT FE
31 H5275A 2 BOLT, HEX SOCKET ボルト 六角穴 M03X008 FE
32 W1021A 2 WASHER, LOCK ワッシャ スプリング 3M/M FE
33 W1042A 2 WASHER, FLAT ワッシャ 平 4W- 3 FE
34 GGQC0321 1 BKT BKT FE
35 H5275A 2 BOLT, HEX SOCKET ボルト 六角穴 M03X008 FE
36 W1021A 2 WASHER, LOCK ワッシャ スプリング 3M/M FE
37 W1042A 2 WASHER, FLAT ワッシャ 平 4W- 3 FE
173
PTS-XPFL-03JE