PTS-XPFL-03JE - 第252页
H=912mm H=950mm H=962,965mm 25 26 24 23 22 1 2 3 4 9 11 10 8 7 6 14 13 5 21 15 18 17 16 19 20 45 48 47 46 42 44 43 41 38 40 39 83 83 78 35 37 29 30 31 27 28 49 51 50 52 54 53 55 56 80 79 81 82 80 81 82 80 81 82 57 12 72 …

This page intentionally blank.
251
PTS-XPFL-03JE

H=912mm H=950mm
H=962,965mm
25
26
24
23
22
1
2
3
4
9
11
10
8
7
6
14
13
5
21
15
18
17
16
19
20
45
48
47
46
42
44
43
41
38
40
39
83
83
78
35
37
29
30
31
27
28
49
51
50
52
54
53
55
56
80
79
81
82
80
81
82
80
81
82
57
12
72
45
48
47
46
42
44
43
41
73
73
74
75
76
77
73
73
36
58
59
60
61
62
69
65
66
68
67
70
71
64
63
7979
83
83
AGGTF9542
252
PTS-XPFL-03JE

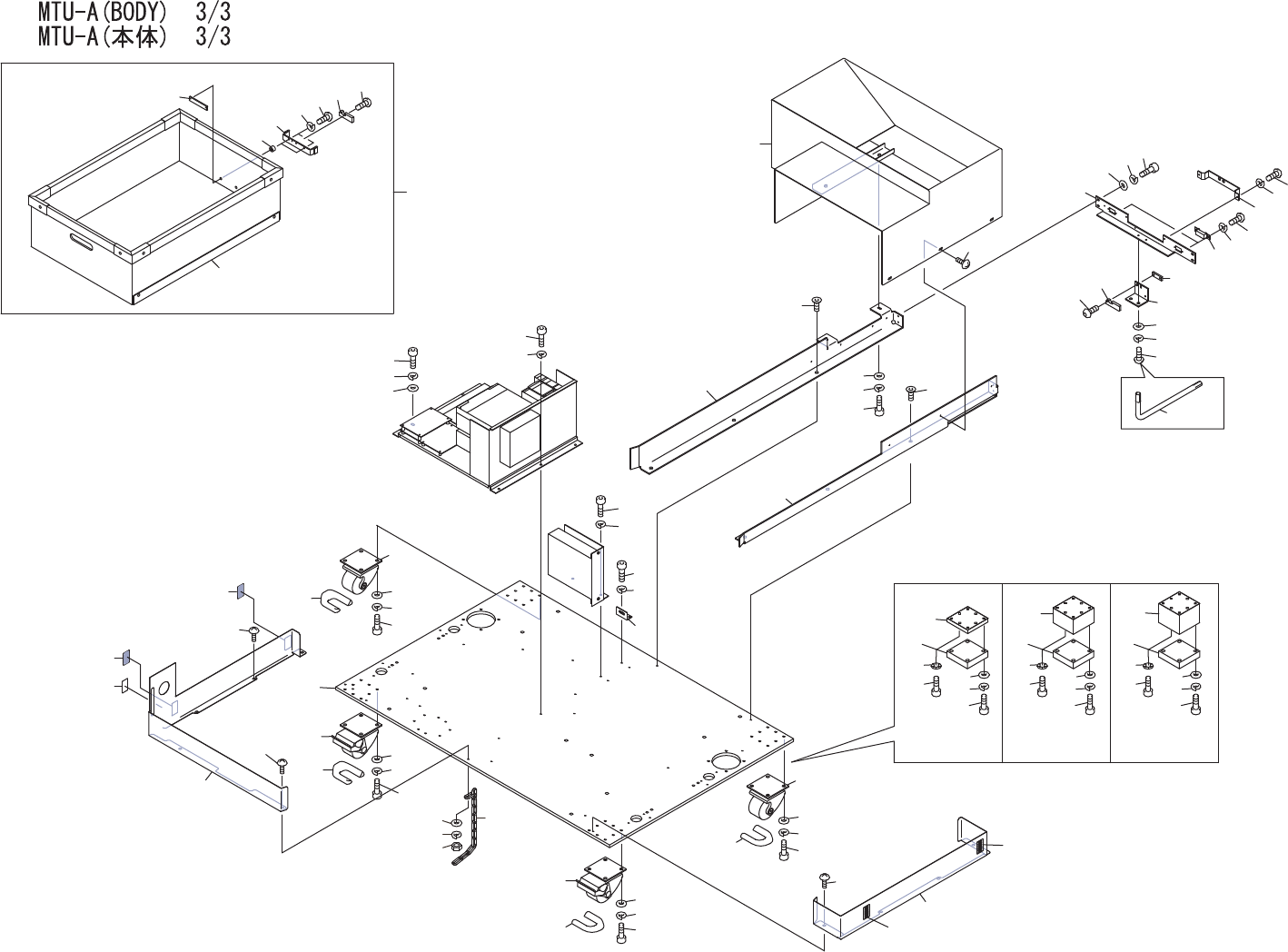
MTU-A(BODY) 3/3
MTU-A(本体) 3/3
AGGTF9542
No. Drg.No. & Code No. QTY Description Rating Materials Remarks
番号 図番 & コード番号 個数 品名 規格 材質 備考
1 GGTF7071 1 CATCH, BOX 受け BOX FE
2 K5361H 3 SCREW, HEX SOCKET COUNTERSUNK 小ネジ 六角穴皿 M05X010 FE
3 GGTF7080 1 CATCH, BOX 受け BOX FE
4 K5361H 3 SCREW, HEX SOCKET COUNTERSUNK 小ネジ 六角穴皿 M05X010 FE
5 GGTF6121 1 BKT BKT FE
6 H5288A 4 BOLT, HEX SOCKET ボルト 六角穴 M04X010 FE
7 W1022A 4 WASHER, LOCK ワッシャ スプリング 4M/M FE
8 W1043A 4 WASHER, FLAT ワッシャ 平 4W- 4 FE
9 M1005N 2 MAGNET CATCH マグネットキャッチ YN-005 OT
10 K5255H 4 SCREW, HEX SOCKET BUTTON 小ネジ 六角穴ボタン M03X005 FE
11 W1021A 4 WASHER, LOCK ワッシャ スプリング 3M/M FE
12 GGTF6150 1 BKT BKT FE
13 K52551 2 SCREW, HEX SOCKET BUTTON 小ネジ 六角穴ボタン M03X006(ステンレス) FE
14 W1021C 2 WASHER, LOCK ワッシャ スプリング 3M/M ステンレス FE
15 GGTF6130 1 BKT BKT FE
16 H5515C 2 BOLT ボルト SRBS-M4X10 FE
17 W1022A 2 WASHER, LOCK ワッシャ スプリング 4M/M FE
18 W1088R 1 WASHER ワッシャ WSSB15-4-2 OT
19 M1056K 1 MAGNET SW マグネットSW XCS-DMC7905 OT
20 H5514C 2 BOLT ボルト SRBS-M3X12 OT
21 GGTF6140 1 NUT ナット FE
22 GGTF6500 1 BKT BKT FE
23 H5298A 2 BOLT, HEX SOCKET ボルト 六角穴 M05X010 FE
24 W1023A 2 WASHER, LOCK ワッシャ スプリング 5M/M FE
25 H5298A 2 BOLT, HEX SOCKET ボルト 六角穴 M05X010 FE
26 W1023A 2 WASHER, LOCK ワッシャ スプリング 5M/M FE
27 H5298A 3 BOLT, HEX SOCKET ボルト 六角穴 M05X010 FE
28 W1023A 3 WASHER, LOCK ワッシャ スプリング 5M/M FE
29 H5298A 2 BOLT, HEX SOCKET ボルト 六角穴 M05X010 FE
30 W1023A 2 WASHER, LOCK ワッシャ スプリング 5M/M FE
31 W1044A 2 WASHER, FLAT ワッシャ 平 4W- 5 FE
35 GGTF7220 1 COVER カバー FE
36 K5172Y 4 SCREW, C/R TRUSS 小ネジ 十穴トラス M05X008(3カ シロ) FE
37 GGTF6290 1 SEAL シール PL
38 GGTF6400 1 PLATE プレート FE
39 GGTF7090 1 COVER カバー FE
40 K5172Y 4 SCREW, C/R TRUSS 小ネジ 十穴トラス M05X008(3カ シロ) FE
253
PTS-XPFL-03JE