XP-243E-02JE PART LIST - 第176页
176 PTS-XP243E-02JE

MTU TRAY SHUTTLE(TR) 2/
MTU トレイシャトル(TR) 2/
No. Drg.No. & Code No. QTY Description Rating Materials Remarks
番号 図番 & コード番号 個数 品名 規格 材質 備考
81 H20974 1 PIN, SPLIT ピン 割 ゚2X10 OT
82 K1127K 2 CAM FOLLOWER カムフォロア CF 4R-A OT
83 N1080A 2 NUT, HEX ナット 六角 M 4 P=0.7 FE
84 W1022A 2 WASHER, LOCK ワッシャ スプリング 4M/M FE
85 W1043A 2 WASHER, FLAT ワッシャ 平 4W- 4 FE
86 S3250M 1 SPRING スプリング AWT3-20 OT
90 K11065 2 CAM FOLLOWER カムフォロア CF03-A OT
92 H4440A 2 BEARING, MINIATURE ベアリング ミニチュア DDL-1910ZZ OT
93 W1092N 1 WASHER ワッシャ WSSB 13-5-2 OT
94 SAM6860 1 MOTOR, AC SERVO モータ ACサーボ SGMAS-01A2A-FJ31 OT
97 H4518L 1 BELT, TIMING ベルト タイミン
グ
1305-3GT-9 OT
175 PTS-XP243E-02JE

176 PTS-XP243E-02JE

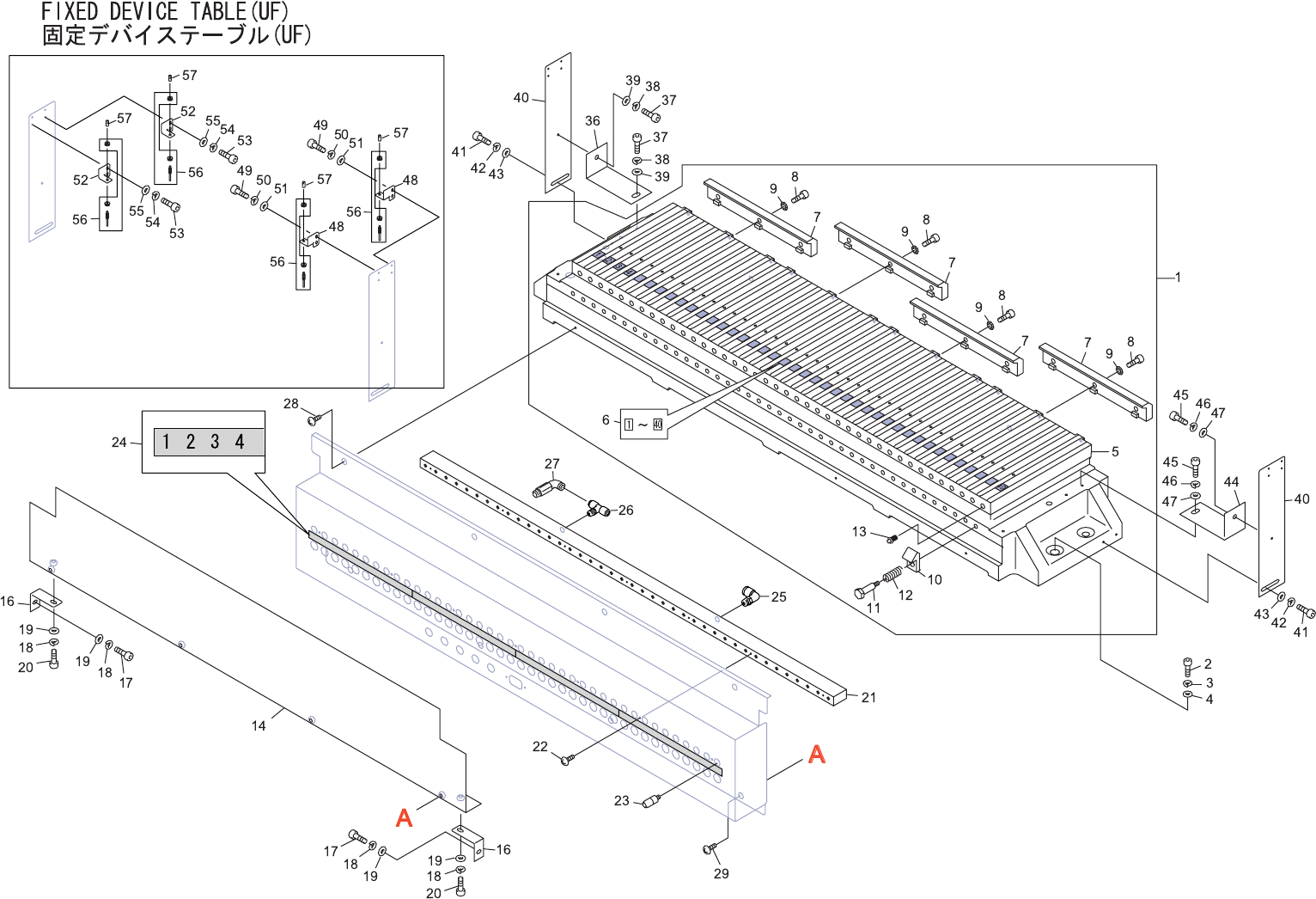
FIXED DEVICE TABLE(UF)
固定デバイステーブル(UF)
No. Drg.No. & Code No. QTY Description Rating Materials Remarks
番号 図番 & コード番号 個数 品名 規格 材質 備考
1 ADNUF9503 1 BODY 本体 OT
2 H5363A 4 BOLT, HEX SOCKET ボルト 六角穴 M10X040 FE
3 W1026A 4 WASHER, LOCK ワッシャ スプリング 10M/M FE
4 W1055A 4 WASHER, FLAT ワッシャ 平 10M/MX2.0X21(1W-10) FE
5 DNUF4004 1 BASE ベース FE
6 DEUF3120 1 SEAL シール PL
7 DEUF3101 4 CLAMPER クランパ FE
8 H5322A 12 BOLT, HEX SOCKET ボルト 六角穴 M06X015 FE
9 W1013A 12 WASHER, CONICAL ワッシャ 皿 M- 6-H FE
10 IPA5411 40 CLAMPER クランパ FE
11 IPA5422 40 BOLT ボルト FE
12 IPA5430 40 SPRING スプリング FE
13 IPA5460 40 PIN ピン FE
14 DNUF4013 1 COVER, REAR カバー リヤー FE
16 DNUF4023 2 BKT, COVER BKT カバー FE NOTE.1
17 H5289A 2 BOLT, HEX SOCKET ボルト 六角穴 M04X012 FE NOTE.1
18 W1022A 4 WASHER, LOCK ワッシャ スプリング 4M/M FE NOTE.1
19 W1043A 4 WASHER, FLAT ワッシャ 平 4W- 4 FE NOTE.1
20 H5288A 2 BOLT, HEX SOCKET ボルト 六角穴 M04X010 FE NOTE.1
21 DEUF3110 1 MANIFOLD マニホールド AL
22 K5170T 7 SCREW, C/R TRUSS 小ネジ 十穴トラス M03X006 ユニクロメッキ(シロ)FE
23 S5019B 40 SOCKET ソケット MC05SM FE
24 DEUF3130 1 SEAL シール PL
25 Y3078A 1 UNION, ELBOW ユニオン エルボ KQ2L06-01S OT
26 Y3071A 1 UNION ユニオン KQ2T06-01S OT
27 Y30811 1 UNION, ELBOW ユニオン エルボ KQ2W06-02S OT
28 K5208A 4 SCREW, C/R TRUSS 小ネジ 十穴トラス M04X006 ユニクロメッキ FE
29 K5210A 4 SCREW, C/R TRUSS 小ネジ 十穴トラス M04X010 ユニクロメッキ FE
36 DNPQ3091 1 BKT, SUPPORT BKT 支え FE
37 H5288A 2 BOLT, HEX SOCKET ボルト 六角穴
M04X010 FE
38 W1022A 2 WASHER, LOCK ワッシャ スプリング 4M/M FE
39 W1043A 2 WASHER, FLAT ワッシャ 平 4W- 4 FE
40 DNPQ3100 2 BKT BKT FE
41 H5289A 4 BOLT, HEX SOCKET ボルト 六角穴 M04X012 FE
42 W1022A 4 WASHER, LOCK ワッシャ スプリング 4M/M FE
43 W1043A 4 WASHER, FLAT ワッシャ 平 4W- 4 FE
44 DNPQ3081 1 BKT, SUPPORT BKT 支え FE
45 H5288A 2 BOLT, HEX SOCKET ボルト 六角穴 M04X010 FE
177 PTS-XP243E-02JE