XP-243E-02JE PART LIST - 第72页
72 PTS-XP243E-02JE

CHUCK MECHANICAL(NC)
メカチャック(NC)
ADNNC9301
No. Drg.No. & Code No. QTY Description Rating Materials Remarks
番号 図番 & コード番号 個数 品名 規格 材質 備考
1 ADNNC9311 1 CHUCK チャック OT
2 DENC0021 1 CASE ケース FE
3 H5264T 4 BOLT, HEX SOCKET ボルト 六角穴 M02X004 FE
4 N4017T 4 SCREW, HEX SOCKET SET ネジ 六角穴止め M02X004 ヒラサキ FE
5 N4017X 1 SCREW, HEX SOCKET SET ネジ 六角穴止め M02X005 ヒラサキ FE
6 K53569 2 SCREW, HEX SOCKET COUNTERSUNK 小ネジ 六角穴皿 M02X006 FE
7 DENC0031 1 PISTON ピストン FE
8 DENC0040 2 LINK リンク FE
9 DENC0060 1 SPRING スプリング FE
10 DENC0150 2 JAW, MASTER 爪 親 FE
11 DENC0080 1 BLOCK 駒 CO
12 DENC0090 1 SPRING スプリング FE
13 DENC0100 1 COVER カバー FE
14 DENC0120 2 RAIL レール OT
15 H5263S 1 BOLT, HEX SOCKET ボルト 六角穴 M01.6X005 FE
16 DENC0131 1 GUIDE, SPRING ガイド スプリング FE
17 DENC0181 4 GUIDE ガイド OT
18 R5004M 3 ROLLER, NEEDLE ローラ ニードル ゚1.5X4.8 OT
19 R5010A 1 ROLLER, NEEDLE ローラ ニードル ゚2.0X19.8 OT
20 DENC0140 2 PLATE プレート FE
21 K5175L 2 SCREW, C/R PAN 小ネジ 十穴鍋 M02X003(0バン1シュ) ステンレス FE
22 ADNNC8310 1 SLEEVE スリーブ OT
23 DNNC3010 1 SLEEVE スリーブ AL
24 DNPN3572 1 SHEET, RUBBER シート ゴム PL
25 DENC0111 1 PLATE, STOPPER プレート ストッパ AL
26 H5265A 2 BOLT, HEX SOCKET ボルト 六角穴 M02X005 FE
27 DENC0051 2 JAW, FINGER 爪 フィンガ AL
28 H5265A 2 BOLT, HEX SOCKET
ボ
ルト 六角穴 M02X005 FE
71 PTS-XP243E-02JE

72 PTS-XP243E-02JE

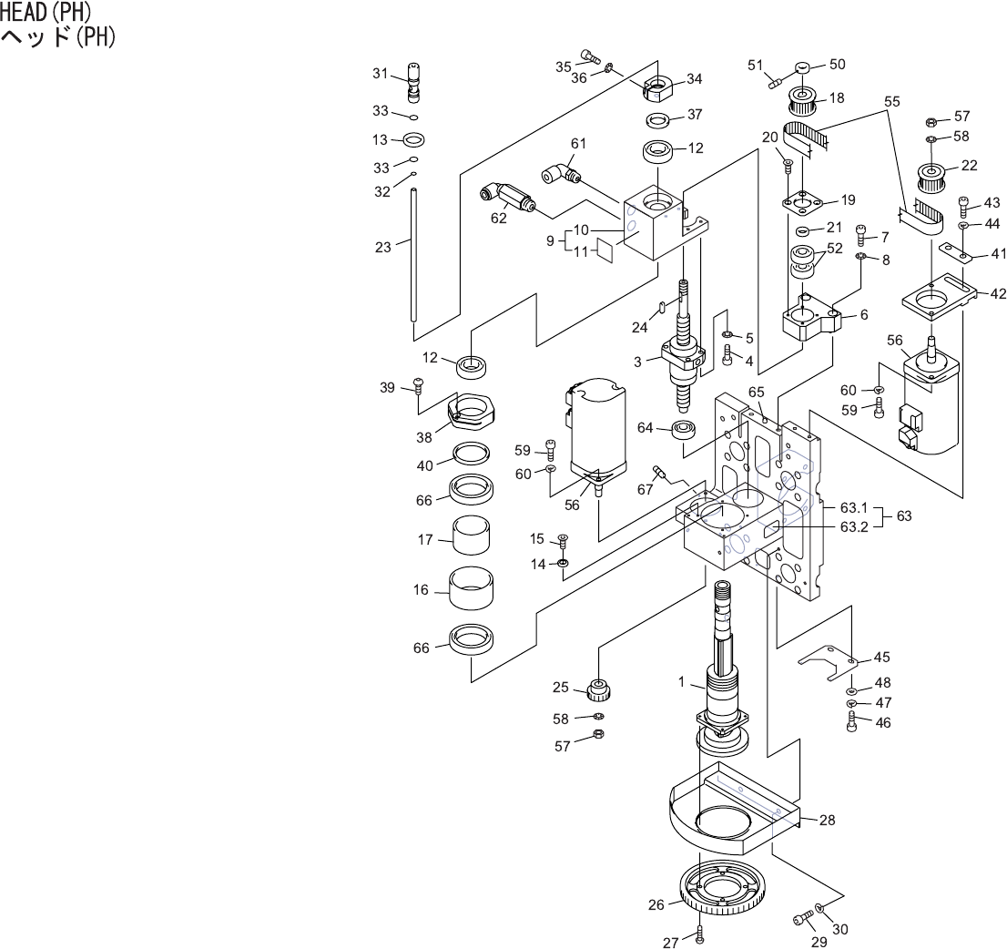
HEAD(PH)
ヘッド(PH)
No. Drg.No. & Code No. QTY Description Rating Materials Remarks
番号 図番 & コード番号 個数 品名 規格 材質 備考
1 ADEPH8307 1 SHAFT, SPLINE シャフト スプライン OT
3 DEPH3042 1 BALL SCREW ボールネジ OT
4 H5291A 4 BOLT, HEX SOCKET ボルト 六角穴 M04X018 FE
5 W1011A 4 WASHER, CONICAL ワッシャ 皿 M- 4-L FE
6 DEPH3051 1 BLOCK ブロック AL
7 H5300A 2 BOLT, HEX SOCKET ボルト 六角穴 M05X015 FE
8 W1012A 2 WASHER, CONICAL ワッシャ 皿 M- 5-L FE
9 ADNPH8600 1 BKT BKT OT
10 DNPH3050 1 BKT BKT AL
11 DNPZ1050 1 SEAL シール PL
12 H42693 1Set BEARING, ANGULAR ベアリング アンギュラ 7902A5DBC7P5 0T
13 A40985 1 X RING Xリング R-15 OT
14 DEPH3070 4 RETAINER 押え FE
15 K5357M 4 SCREW, HEX SOCKET COUNTERSUNK 小ネジ 六角穴皿 M03X006 FE
16 DEPH3081 1 COLLAR, BEARING カラー ベアリング FE Note.1
17 DEPH3091 1 COLLAR, BEARING カラー ベアリング FE Note.1
18 DEPH3100 1 PULLEY, TIMING プーリ タイミング AL
19 DEPH3110 1 RETAINER, BEARING 押え ベアリング FE
20 K5357M 4 SCREW, HEX SOCKET COUNTERSUNK 小ネジ 六角穴皿 M03X006 FE
21 DEPH3120 1 COLLAR カラー FE
22 DEPH3130 1 PULLEY, MOTOR プーリ モータ AL
23 DNPH3060 1 PIPE パイプ FE
24 DEPH3150 1 KEY, PARALLEL キー 平行 FE
25 DEPH3162 1 GEAR ギヤ FE
26 DEPH3173 1 GEAR ギヤ FE
27 K5255T 4 SCREW, HEX SOCKET BUTTON 小ネジ 六角穴ボタン M03X006 FE
28 DEPH3180 1 COVER カバー FE
29 H5287A 2 BOLT, HEX SOCKET ボルト 六角穴 M04X008 ゼンネジ FE
30 W1022A 2 WASHER, LOCK ワッシャ スプリング 4M/M FE
31 DEPH3191 1 BUSHING ブシュ AL
32 A5129T 1 O RING Oリング S 5 OT
33 A5131H 2 O RING Oリング
S-8 OT
34 DEPH3201 1 NUT ナット AL
35 H5276A 1 BOLT, HEX SOCKET ボルト 六角穴 M03X010 FE
36 W1010A 1 WASHER, CONICAL ワッシャ 皿 M- 3-L FE
37 DEPH3210 1 COLLAR カラー FE
73 PTS-XP243E-02JE